|
Eingangsseite
Aktuelle Informationen
Jahrestagungen von Alemannia Judaica
Die Mitglieder der
Arbeitsgemeinschaft
Jüdische Friedhöfe
(Frühere und bestehende) Synagogen
Übersicht: Jüdische Kulturdenkmale
in der Region
Bestehende jüdische Gemeinden
in der Region
Jüdische Museen
FORSCHUNGS-
PROJEKTE
Literatur und Presseartikel
Adressliste
Digitale Postkarten
Links
| |
zurück zur Übersicht "Synagogen in der Region"
zurück zur Übersicht "Synagogen in Rheinland-Pfalz"
zur
Übersicht "Synagogen im Landkreis Mainz-Bingen und Stadtkreis Mainz"
Mainz (Landeshauptstadt von Rheinland-Pfalz)
Jüdische Geschichte / Synagogen
Hinweis: zur neuen
Synagoge in Mainz gibt es in dieser Website eine
weitere Seite
Es bestehen auch Seiten mit Texten aus jüdischen
Periodika des 19./20. Jahrhunderts:
- Berichte zur mittelalterlichen jüdischen
Geschichte in Mainz
- Berichte aus dem jüdischen Gemeinde-
und Vereinsleben des 19./20. Jahrhunderts (bis zur NS-Zeit)
- Berichte zu Rabbinern und Lehrern
sowie weiteren Kultusbeamten und dem Schulwesen der jüdischen Gemeinde (bis zur
NS-Zeit)
- Berichte zu einzelnen Personen aus der
jüdischen Gemeinde im 19./20. Jahrhundert (bis zur NS-Zeit)
- Berichte über die (orthodoxe)
Israelitische Religionsgesellschaft (bis zur NS-Zeit)
- Berichte zu einzelnen Einrichtungen
der jüdischen Gemeinde (bis zur NS-Zeit)
Übersicht über diese Seite:
Zur Geschichte der jüdischen Gemeinde (english
version)
Mittelalter
In Mainz bestand eine bedeutende jüdische Gemeinde zunächst im Mittelalter
(eine der drei SchUM-Gemeinden nach den Anfangsbuchstaben der Städten
Speyer, Worms und Mainz). Möglicherweise gab es bereits zu römischen Zeiten
eine jüdische Niederlassung in der Stadt. Die Entstehung der mittelalterlichen
Gemeinde geht in die Zeit Mitte des 10. Jahrhunderts zurück. Unter
anderem ließen sich noch vor der Jahrtausendwende Vertreter der berühmten jüdischen
Familien Kalonymus aus Lucca/Italien in der Stadt nieder. Ein Angehöriger
dieser Familie soll Kaiser Otto II. nach der Schlacht von Cotrone i.J. 982 das
Leben gerettet haben. Aus der Kalonymus-Familie entstammten mehrere Gelehrte und
Leiter der Mainzer jüdischen Gemeinde. Viele andere jüdische Gelehrte werden
bereits im 10./11. Jahrhundert genannt (u.a. Rabbi Gerschom bar Jehuda).
Eine erste Verfolgung traf die Gemeinde 1012. 1084 wurde bei einem
Brand das jüdische Wohnviertel (im nordwestlichen Bereich der Altstadt gelegen,
von der heutigen Betzelstraße und der Stadthausstraße über den Flachsmarkt
unter Einschluss von Teilen der Schuster- und der Christofstraße) weitgehend
zerstört; ein Teil der Gemeinde übersiedelte nach Speyer.
Mit dem Beginn der Kreuzzüge 1096 begann die Zeit der schlimmen
Verfolgungen. Mehrmals wurde ein großer Teil der Mainzer Judenschaft grausam
niedergemetzelt, zuletzt während der Zeit der Pest (Sommer 1349).
Dazwischen gab es auch Zeiten einer friedlichen Entwicklung der Gemeinde. Die jüdische
Gemeindeverwaltung lag in den Händen des "Judenrates"; an seiner
Spitze war ein vom Erzbischof ernannter "Judenbischof". Nach der
Verfolgung 1349 werden Juden in Mainz erstmals wieder 1356 genannt. 1410
gab es etwa 20 jüdische Haushalte, 1432 14.
Die Zahl der jüdischen Einwohner betrug 1460 nur etwa 110 bis 120 (vor 1096 und
vor 1349 waren jeweils über 1.000 Juden in der Stadt). Die Juden lebten vom Handel
mit Geld, Wein, Frucht und Waren, auch werden jüdische Ärzte und
Gemeindebedienstete genannt. Im 15. Jahrhundert kam es mehrfach zur
Vertreibungen (1438, 1462, 1471 und schließlich 1483).
Neuzeit
Nach Zuzügen einzelner jüdischer Familien konnte sich 1583 eine neue jüdische
Gemeinde bilden. Aus Frankfurt am Main, Worms, Hanau und anderen Orten zogen
einzelne jüdische Familien zu. Sie lebten lange in sehr armseligen
Verhältnissen.
1662 wurden durch ein Dekret von Kurfürst Johann Philipp von Schönborn
die wirtschaftlichen Möglichkeiten der jüdischen Einwohner stark beschränkt.
Ihnen war nicht mehr erlaubt, offene Läden zu betreiben. Sie durften nur noch
mit bestimmten Waren handeln. Ihr Wohngebiet blieb auf die von beiden Seiten
abgeschlossene Judengasse beschränkt (im 18. Jahrhundert wurde das
Wohngebiet erweitert auf die seit Mitte des 19. Jahrhundert sog. "Vordere
und Hintere Synagogengasse"). Im 18. Jahrhundert nahm die Zahl der jüdischen
Einwohner bis auf etwa 550 Personen zu; im jüdischen Wohnviertel mit seinen
schmalen Häusern herrschte drangvolle Enge. Als Frucht der Aufklärungszeit und
der Französischen Revolution fielen am 12. September 1792 die Tore des
Judenghettos.
 |
 |
 |
Hochzeitsfeier in der
Mainzer
Judengasse 1690 |
Die "Judenwache" am
Eingang
zur Judengasse |
Die Judengasse
(Foto von 1929) |
Die obigen
Abbildungen sind mehrfach veröffentlicht, u.a. in:
P. Arnsberg: Die jüd. Gemeinden in Hessen. Bilder und
Dokumente. 1971. S. 136.138 oder Katalog "Juden in Mainz" s.u. |
Im 19. Jahrhundert nahm die Zahl der
jüdischen Einwohner zu: 1828 waren es 1.620 Personen, 1861 2.665, 1871 wurde
die Höchstzahl von 2.998 erreicht. 1925 waren unter den damals ca. 109.000
Einwohnern noch etwa 2.800 jüdische Personen 1933: 2.730). Mitte des 19.
Jahrhunderts trennten sich wie in vielen anderen Großstädten auch die
Orthodoxen von den liberalen Juden, nachdem gottesdienstliche Reformen (deutsche
Gebete, Orgel in der Synagoge) eingeführt wurden. Erster orthodoxer Rabbiner
war Markus Lehmann. In der liberalen Gemeinde wirkte damals Rabbiner Joseph
Aub.
Seit der 2. Hälfte des 19. Jahrhunderts
hatten die jüdische Einwohner im Leben der Stadt eine große Bedeutung u.a. als
Unternehmer und Gewerbetreibende, als Ärzte, Rechtsanwälte und Journalisten.
Zwei bedeutende Rabbinerpersönlichkeiten verschafften der Mainzer Gemeinde
zwischen 1880 und 1933 hohes Ansehen bei der gesamten
Bürgerschaft: Prof. Dr. Siegmund Salfeld (1880-1918) und Dr. Sali Levi
(1917-1941). Zur Vielgestaltigkeit des Mainzer Kulturlebens trugen zahlreiche
jüdische Vereine bei.
Nach 1933 setzte wie im ganzen Deutschen Reich auch in Mainz
die zunehmende Entrechtung der jüdischen Bevölkerung durch die
nationalsozialistische Politik ein. In der Pogromnacht im November 1938 kam
es zu zahlreichen Übergriffen gegen die jüdische Bevölkerung, ihre Wohnungen
und Gewerbebetriebe; das Schicksal der Synagogen wird unten geschildert. Am 17.
Mai 1939 wurden noch 1.452 Juden in der Stadt gezählt. Im März und September 1942 wurde ein
Großteil der verbliebenen jüdischen Einwohnerschaft in Vernichtungslager des
Ostens oder in das Ghetto Theresienstadt deportiert. Die letzte Deportation am
10. Februar 1943 löschte vollends das jüdische Gemeindeleben in Mainz aus. Nur
wenige Juden in sogenannter "privilegierter Mischehe" erlebten das
Kriegsende in Mainz. Insgesamt wurden etwa 1.300 bis 1.400 Mainzer Juden
ermordet.
Nach 1945: Am 17. Oktober 1945 konnte von einigen wenigen Überlebenden
der Konzentrationslager eine neue Gemeinde gegründet werden. Erster
Gemeindevorsteher war Max Waldmann.1948 gehörten 80 Personen, 1970 122 Personen
der Gemeinde an. Durch den Zuzug von jüdischen Emigranten aus den GUS-Staaten
nahm die Zahl der jüdischen Gemeindeglieder bis 2005 auf etwa 1.000
Gemeindeglieder zu (2012: 1.027 Gemeindemitglieder).
Zur Geschichte der Synagogen in
Mainz
Mittelalterliche Synagogen
1093 wird eine erste Synagoge in der damaligen
Unterstadt im Bereich der nach 1288 erbauten St.
Quintinskirche genannt. Sie wurde im Zusammenhang mit der Judenverfolgung
beim 1. Kreuzzug am 29. Mai 1096 durch den jüdischen Gemeindevorsteher
angezündet. Er wollte damit möglicherweise einer Schändung des Hauses durch
die Christen beziehungsweise die Kreuzfahrer und der Umwandlung in eine Kirche zuvorkommen. Neben der Synagoge gab
es bereits im 11. Jahrhundert kleinere Bet- und Lehrstätten. Nachdem sich
einige Jahre nach dem Pogrom von 1096 wieder eine Gemeinde bilden konnte, wurde
am selben Ort ein Bethaus errichtet. Die Juden der Oberstadt trafen sich aus
Furcht vor der Stadtbevölkerung im Lehrhaus des Rabbi Juda bar Kalonymos.
1188 wird eine neue Synagoge im Bereich der Stadthaus- und der
Schusterstraße erwähnt (Schusterstraße 41-43/Ecke Stadthausstraße), die
vermutlich schon einige Jahre oder Jahrzehnte zuvor erbaut worden war. 1271
wurde diese Synagoge renoviert. Dabei ist ein kunstvoll gepflasterter Fußboden
eingebracht wurden. Beim Judenpogrom von 15. Juni 1281 wurde diese Synagoge
niedergebrannt. Einige Jahre später scheint dieses Bethaus wieder aufgebaut
worden zu sein. Im Zusammenhang mit den Verfolgungen in der Pestzeit wurde sie
am 23. August 1349 von verzweifelten Juden in Brand gesetzt.
In der zweiten Hälfte des 14. Jahrhunderts wurde wiederum eine Synagoge erbaut
oder ein Betsaal eingerichtet. 1433 und 1442 wird eine
"Judenschule" genannt, die wahrscheinlich in der Nähe der späteren Stadionerhofstraße lag. Nach der Vertreibung der Juden 1438 wurde in ihr ein
städtisches Kohlenlager eingerichtet. 1445 konnte die Mainzer Juden wieder
zurückkehren; die Synagoge erhielten sie zurück. Nach der Ausweisung 1470/71
wurde die Synagoge vom Erzbischof in eine christliche Kapelle "Omnium
Sanctorum" ("Allerheiligen") umgewandelt (1473).
Texte
zur Geschichte der mittelalterlichen Synagogen aus jüdischen Periodika
Artikel
in der Zeitschrift "Der Israelit" vom 30. Mai
1907: "Zur Geschichte der Juden von Mainz.
Mainz, 29. Mai (1907). Am 7. März dieses Jahres hat man am Tietzschen
Neubau dahier Steine mit hebräischen Inschriften gefunden, die in
in Bezug auf die früher auf diesem Platze befindliche Synagogen und das jüdische Lehrhaus (sog. Judenschule) neue Tatsachen zu enthüllen geeignet sind. Unser rühmlichst bekannter Typologe Heinrich Wallau ist soeben damit beschäftigt, von den Steinen Matrizen anzufertigen, um sie den Fachgelehrten vorzulegen. Bis dahin muss ein abschließendes Urteil über die Bedeutung des Fundes zurückgehalten werden. Soviel erscheint aber auch dem der hebräischen Sprache kundigen Laien ersichtlich, dass es sich hier wahrscheinlich bei dem einen Stein um die Gedenktafel der Stifter des Gotteshauses, bei den anderen um eine solche bei Erneuerung des Baues bzw. beim Umbau handelt. Es dürfte darin von der Errichtung des Baues und der dafür stattgehabten Geldsammlung- und Spende die Rede sein. In Bezug auf Namen wollte es uns erscheinen, als ob von einem Manne namens Ben Zion, Sohn des Abraham, und von einem Jacob die Rede sei.
Der Schrift nach gehört der eine Stein der zweiten Hälfte des 11. Jahrhunderts an
(vergleiche Wallau, in der Festschrift Schneider: 'Frühe Formen der
semitisch-griechischen Buchstabenschrift etc.', wo die Schrift aus dem Jahre 1080 aus Mainz auf der beigegebenen Tafel ganz genau mit der Schrift des gefundenen Steines übereinstimmt), die Schrift des zweiten Steines unterscheidet sich nur wenig von der jetzt gebräuchlichen hebräischen Quadratschrift, scheint aber aus dem ersten Drittel des 16. Jahrhunderts zu stammen, denn besondere Eigenarten der Schrift zeigen Ähnlichkeit mit einer im Jahre 1536 in Prag gedruckten illustrierten Haggadah; nach anderer Ansicht ist der zweite Stein noch bedeutend älter als der erste; diese Ansicht führt an, dass im ersten Drittel des 16. Jahrhunderts hier gar keine Juden wohnten. (Löwenstein
'Zur Geschichte der Rabbiner in Mainz in: Jahrbuch der
Jüdisch-Literarischen Gesellschaft IV 1905 S. 220-239). |
Wie bekannt, gehörte die ganze Gegend, wo sich demnächst der Tietzsche Neubau
erheben wird und noch weit herum, im ganzen 54 Häuser u. z. Betzelsgasse,
Flachsmarkt, Hinter Christophstraße, ein Teil der Schustergasse, das Invalidenhaus (zum Hammerstein), Hintere
Flachsmarktstraße, Stadthausstraße, der Mainzer Judenschaft (vergleiche Schaab, Geschichte der Juden zu Mainz, Mainz 1885 Salfeld, Bilder aus der jüdischen Vergangenheit der Gemeinde
Mainz, Mainz 1903.) Auch der 'Hof zum Gutenberg', gegenüber dem Tietzschen Neubau war jüdisches Eigentum und und manche wollen sogar behaupten, dass der Name unseres Meisters
korrumpiert aus Judenerbe – Gutenberg – (nach niederrheinischer Aussprache) entstanden
sei (vergleiche Festschrift zum 500-jährigen Geburtstag von Johann Gutenberg. Im Auftrag der Stadt Mainz herausgegeben von Otto Hartwig. Mainz 1900. Beitrag des Freiherrn Schenk zu
Schweinsberg).
Bei den furchtbaren Judenverfolgungen Ende des dreizehnten Jahrhunderts wurden die den
gemordeten und entflohenen Juden gehörigen Häuser vom Stadtmagistrat konfisziert und erhielten von nun an den Namen Judenerbe. Diesen Namen behielten die Häuser bis zum Jahre 1462, wo sich der Erzbischof Adolf II. alles städtische Vermögen zueignete und darüber nach seinem Gefallen verfügte. Für den Geschichtsphilosophen mag die Tatsache merkwürdig sein, dass
gerade von der Stätte aus, wo der Aberglaube der Judenverfolgung in den Gefühlen der Menschen so furchtbare Verheerung anrichtete, der große Lichtbringer erstand, der durch seine Erfindung Aufklärung und Wissen über die Welt verbreitete. Also an der Stelle war dereinst das Gotteshaus der Mainzer Juden, dessen Gründungsgedenkstein jetzt mit dem neuen Fund zum Vorschein kam. -
Einen Stein, ebenfalls eine hebräische Inschrift enthaltend fand man am 6. Mai bei der Erneuerung der Johanniskirche. Dessen Schrift, nur wenige Buchstaben scheint aus den ersten Jahrhunderten unserer Zeitrechnung zu
stammen (vergleiche Wallau wie oben Tab. Nr. 8.) Man will das Wort Schalom - Friede – herausgelesen haben. Es ist möglich, dass der Stein einen Teil einer Portalinschrift an der Johanniskirche bildete, oder des an dieser Stelle gewesenen Doms, wie es ja früher Gebrauch war, hebräische Inschriften an Kirchen anzubringen. (An der St. Ignazkirche hier findet sich noch heute eine solche.)" |
Zur Geschichte der Mainzer Synagogen
(1909)
Der Artikel beschäftigt sich im zweiten Teil mit drei aufgefundenen
Gedenkinschriften an der mittelalterlichen, 1349 niedergebrannten
Synagoge.
Artikel in der Zeitschrift "Der Israelit" vom
15. April 1909: "Zur Geschichte der Mainzer Synagogen.
Der Boden, auf dem das neue Mainz sich erhebt und nach allen
Himmelsgegenden kräftig ausdehnt, schenkt jahraus jahrein dem Forscher
wertvolle Zeugnisse einer vielbewegten Vergangenheit. Wenn die hoch
entwickelte Kunst der Neuzeit dem Wasser und Gas, sowie den Vermittlern
der elektrischen Ströme das Bett der Erde ebnet, wenn für Wohnungen und
Berufsstätten ein sicherer Grund gelegt wird, treten Überreste früherer
Zeiten in die Erscheinung, die eine stumme, aber dennoch beredte Sprache
führen. Wer die Stätten, an denen sie aufbewahrt werden, die Hallen des
'Vereins zur Erforschung der rheinischen Geschichte und Altertümer'
durchschreitet, wird über die Fülle des angehäuften Materials staunen
und die Bedeutung ermessen, die es für die Aufhellung früherer Kulturen,
geschichtlicher Vorgänge, des wichtigen öffentlichen und privaten Lebens
hat. Eine überaus rührige Forschung hat die Funde meist schon für die
Wissenschaft verwertet. Während dabei umfassende Fachkenntnis und
peinliche Gewissenhaftigkeit tätig waren, sind die zahlreichen, aus dem
Boden gehobenen Denkmäler der Vergangenheit der jüdischen Gemeinde Mainz
bis heute nur zu einem ganz geringen Teile wissenschaftlich bearbeitet
worden. Rabbiner Dr. Salfeld, hat nun nach dieser Richtung hin mit drei
Synagogen-Inschriften einen weiteren Versuch gemacht (Zur Geschichte der
Mainzer Synagogen, Sonderabdruck aus der Mainzer Zeitschrift, Mainz 1909)
und zu seinen früheren Arbeiten und zu den des verstorbenen Rabbiners Dr.
Lehmann schätzenswerte Ergänzungen geliefert. Eine Beschreibung von mehr
denn 1500 Grab- |
stein-Inschriften,
gewonnen aus Material, das neuerdings zutage gefördert wurde, hat der
genannte Forscher gleichfalls bereits in Angriff genommen. Sie lässt eine
reiche Ausbeute für hebräische Paläographie, Inschriftenkunde und
jüdische Literaturgeschichte erwarten.
Die drei hier behandelten Steine, von denen der erste bei der
Kanalisierung in der Stadthausstrasse, in der Nähe der Falkischen
Druckerei, der zweite und dritte bei der Ausschachtung des Fundaments für
den Neubau des Tietz'schen Warenhauses gefunden ist, beweisen durch ihre
Schriftcharaktere, dass sie nicht über die erste Hälfte des 14.
Jahrhunderts hinausreichen. Da sie alten Mainzer Synagogen eingefügt
waren, müssen hier einige Bemerkungen über die letzteren vorausgeschickt
werden.
Mainz, das im Mittelalter als 'Haupt und Fürstin unter allen Städten des
Deutschen Reiches' gepriesen wird, haben Juden schon zurzeit der
römischen Weltherrschaft aufgesucht. Als es vom 8. Jahrhundert an einer
industriellen und kommerziellen Blüte entgegenschritt, entwickelte sich
in seiner Mitte ein jüdisches Gemeinwesen, das nach und nach für die Judenschaft der Diaspora tonangebend wurde, und, soweit es ihm ermöglicht
wurde, gewissenhaft im öffentlichen wirtschaftlichen Leben sich
betätigte. Mainzer Juden, die sich 1084 nach Speyer geflüchtet hatten,
wo der Bischof Rüdiger Huozman ihre Intelligenz und ihren Fleiß für
seine Stadt nutzbar machte, sprechen mit hoher Verehrung von ihrer
Vaterstadt. Ein jüdischer Chronist aus dem Anfang des 12. Jahrhunderts
sagt von der im ersten Kreuzzug vernichteten jüdischen Gemeinde Mainz,
dass ihr Ruf in allen Ländern breitet und sie wie Gold geschätzt sei. Er
hebt besonders die in ihr anzutreffende Gelehrsamkeit, Ehrenhaftigkeit und
Fröhlichkeit, ihren Reichtum und ihr Wohltun hervor. Nach den
Schreckenszeiten der Kreuzzüge hat die Gemeinde sich langsam wieder
erholt und friedlich entwickelt, bis im letzten Viertel des 13.
Jahrhunderts der Blutwahn seine Furien entfesselte, zahlreiche Mainzer,
Frankfurter und Wetterauer Juden 1286 zur Auswanderung zwang und den
Katastrophen der Armleder-Verfolgung von 1336 bis 1337 und der sozialen
Revolution mit ihren Judenbränden von 1349 bis 1349 die Pfade
ebnete.
Dass die alte Mainzer jüdische Gemeinde neben ihren blühenden
Hochschulen schon früh würdige Gotteshäuser hatte, ist
selbstverständlich. Die erste Erwähnung einer Synagoge stammt aus
dem Jahr 1093. Drei Jahre später, am 29. Mai 1096, ward sie ein
Raub der Flammen. Der bei der Verfolgung gewaltsam getaufte Vorsteher Max
Isak hatte sie angezündet und darin mit seinen Angehörigen den Feuertod
erlitten. (Näheres hierüber findet der Leser in den Aufsätzen: 'Zur
Geschichte der Juden von Mainz' in den Nummern des 'Mainzer Journals' vom
27. Mai und vom 1. Juni 1907). Dadurch verhinderte er, dass die Synagoge
zu einer Kirche umgebaut wurde, wie man beabsichtigt hatte. Neben der
Hauptsynagoge bestanden noch andere Tempel. Von Mainzer Synagogen erhalten
wir ferner Kunde aus einer Mitteilung zum Jahre 1188, 13. Februar.
An jenem Tage bestieg der Rabbiner Juda, Sohn des Kalonymos, 'die hölzerne
Tribüne', um seine Gemeinde bei drohender Gefahr, die ein
Machtwort des Kaisers Friedrich Barbarossa abwandte, zu ermahnen, zu
trösten und aufzurichten. Ferner erzählt uns ein Leichenstein von 1281,
der dem Rabbiner Mair, Sohn des Abraham Hakohen, gesetzt wurde, von der Einäscherung
der Synagoge. Nach der Flucht vieler Juden aus Mainz (1286) ist die
Synagoge von den Zurückgebliebenen wohl notdürftig wiederhergestellt worden.
Sie ist Eigentum der Gemeinde geblieben und nicht als 'Judenerb'
in den Besitz der Stadt übergegangen. Die jüdische Gemeinde bediente
sich ihrer bis zum Bartholomäustage, 24. August 1349. Auch sie
ging in Flammen auf.
Das historische Resultat, das die neugefundenen Gedenksteine ergeben,
lässt sich in folgendem zusammenfassen: Die Synagoge, an die der erste Stein
erinnert, ist 1271 in einer, dank der judenfreundlichen Bulle des
Papstes Innocenz IV. und des Landfriedens von 1265 verhältnismäßig
ruhigen Zeit erbaut worden. Sie ist in einem Volksaufstande 1281,
als die Blutbeschuldigung von neuem erhoben und auch für den sogenannten 'Rheinbezirk' zur furchtbaren Geißel wurde, angezündet und demoliert
worden. Die Freigebigkeit der Mainzer Israeliten ermöglichte die
Ausbesserung und Wiederherstellung, wie dies der zweite Stein kündet. Als
die Gemeinde von den Wunden und Schäden, die die Überfälle von 1281 und
1283 verursacht hatten, sich langsam erholte, konnte man an die innere
Ausschmückung der Synagoge denken und nach Angabe des dritten Steins,
einen mit Steinen ausgelegten Fußboden herstellen lassen. Das renoviert
Gotteshaus bestand, wie gesagt, bis zu den furchtbaren Tagen der
Verfolgung in den Zeiten des schwarzen Todes, da man die Juden der
Brunnenvergiftung bezichtigte, sie zu Tausenden mordete und in den Tod
trieb, ihren Besitz raubte und ihre Häuser in Schutt und Asche legte. Das
gewaltige Feuer, das die Häuser des Judenquartiers in Mainz verzehrte und
die Glocke der nahen Quintinskirche zum schmelzen brachte, zerstörte auch
die Synagoge in der Schusterstrasse (später Nr. 41-42, jetzt Tietz'sches
Warenhaus). So erzählt die fast verwitterte Schrift der älteren
Gedenksteine auch ein Stück bewegter Mainzer
Geschichte.
Dass es Dr. Salfeld gelungen, den Inhalt der Inschriften richtig zu
entziffern, ist ihm von einer Reihe hervorragender jüdischer Gelehrten,
die Abklatsche und Photographien der Funde erhielten, bestätigt
worden." |
Die Synagogen des 16./17.Jahrhunderts
In der 1568 erstmals genannten "Judengasse",
die nichts mit dem mittelalterlichen jüdischen Viertel zu tun hat, befand sich
ein Haus, das 1620 als "Zur Judenschule" bezeichnet wird. Auch
im Haus des Jospe Menz (gest. 1623) war ein Betsaal eingerichtet. 1594 wird eine
Synagoge im Haus "Zum Kalten Bad" genannt.
1639 wurde eine Synagoge auf dem Grundstück Klarastraße/Ecke
Stadionerhofstraße (neben dem Bleidenstädter Hof) eingeweiht. Nach einer
Judenordnung von 1671 wurde verordnet, dass diese Synagoge binnen eines
Jahres verkauft werden musste. Es gelang der Judenschaft, diese Vorschrift bis
1672 hinauszuzögern. Dann konnte der Grundstein für eine neue Synagoge
zwischen Margaretengasse (spätere "Judengasse", Judenviertel) und
Rechengasse gelegt werden. Diese neue Synagoge wurde innerhalb des seit 1671
eingerichteten "Judenviertels" an Stelle des von der Judenschaft
erworbenen Hauses "Zur goldenen Eichel" erstellt und 1673 eingeweiht.
Im Vorderhaus wurde das Rabbinat, im Keller 1684 ein rituelles Bad (Mikwe)
eingerichtet.
Die Synagogen des 18. Jahrhunderts
1715/17
wurde das Synagogengebäude von 1673 vergrößert. Nach dem Umbau war es ein
viergeschossiges Gebäude, worin im Erdgeschoss der Betsaal eingerichtet war, zu
dem einige Stufen herabführten. Im
ersten Stock waren ein Sitzungssaal und die Geschäftszimmer der Gemeinde, im zweiten Stock die
"Hochschule" (kleinerer Betraum) und Wohnungen; ebenso gab es im dritten Stock Wohnungen.
Die am Ende des 18. Jahrhunderts aus der Umgebung nach Mainz zugezogenen
jüdischen Familien richteten sich einen eigenen Betsaal ein (im "Homburgischen"
oder dem "Ledeburgischen Haus").
1846 wurde im Blick auf einen seit 1844 geplanten Neubau (siehe unten) die Synagoge des Judenviertels
abgebrochen; der letzte Gottesdienst war in ihr am 23. März 1846. Bis zur Einweihung
der neuen Synagoge wurden die Gottesdienste der jüdischen Gemeinde in einem
Privathaus gegenüber der abgebrochenen Synagoge abgehalten.
Texte aus der Geschichte der Synagoge vor Einweihung der Synagoge 1853 aus jüdischen Periodika
Eine
in der Synagoge in Mainz 1763 gehaltene Predigt des Rabbiners Moyses Brandeis
(1868)
Anmerkung: zu dem im Text genannten Kurfürsten Emmerich Joseph von Breidbach
zu Bürresheim siehe den diesbezüglichen
Wikipedia-Artikel. Emmerich Joseph war am 5. Juli 1763 vom Mainzer
Domkapitel zum neuen Erzbischof und Kurfürsten gewählt worden.
Artikel in der Zeitschrift "Der Israelit" vom 8.
Januar 1868:
"Eine in der Synagoge zu Mainz vor 105 Jahren gehaltene Predigt.
Es liegt uns ein interessantes Schriftwerk vor, eine vom Vorstande der israelischen Gemeinde zu
Mainz im Jahre 1763, also vor 105 Jahren, dem Kurfürsten Emmerich Joseph überreichte, in hebräischer und deutscher Sprache abgefasste Adresse,
die zugleich eine vom damaligen Rabbiner, Moyses Brandeis, am Wahltage gehaltene Predigt enthält.
Das ganze ist sehr schön – das Deutsche in Fraktur, das Hebräische in Quadratschrift – teilweise mit goldenen Buchstaben geschrieben; es ist ein Folio-Band, der 16 Blätter enthält. Das Buch hat zwei Titelblätter, an jeder Seite eins, ein hebräisches und ein deutsches; auf beiden befindet sich, sehr schön ausgeführt, das Familienwappen des Kurfürsten samt dessen lateinischen Wahlspruch, in welchem großgedruckte Buchstaben die
christliche Jahreszahl bezeichnen.
Der deutsche Titel lautet:
,Eine Den Fünften Julii 1763 an dem Freudensvollen Wahl Tag unseres gnädigsten Landes Herrn und Churfürsten Herrn,
Herrn,
Emmerich Joseph aus dem Reichs Hochfreyherrlichen Geschlecht Breidbach zu Bürresheim
von dem allhiesigen Rabiner Moyses Brandeis auf Begehren deren Vorgängern verfasste in der Synagoge allhier in Mayntz von sammtlicher getreuer Judenschaft mit einer
Illumination und Musik angestellten Dancksagung und Gebett so auf
Hebräisch und Teutsch hier folget.,
Der hebräische Titel hat ähnlichen Inhalt; zu bemerken ist darin, dass ,Kurfürst, mit
(hebräisch) ,Fürst und wählender Herzog , übersetzt, und dass Bürresheim mit
Berreshei, (hebräische Schreibweise) wiedergegeben ist. ,Mainz, heißt
Magenza, wie es in den altjüdischen Schriften genannt wird und wie man hier noch heute in der
Ketuba (Ehevertrag) schreibt. In anderen altjüdischen Dokumenten haben wir den Namen der
Stadt Mantz gelesen; wahrscheinlich liegt in diesem so vielfachen Wechsel der Namensschreibweise der
Grund, dass man hier schon seit Jahrhunderten keinen gt schreibt, während noch in
den Toschawot von Maharil (siehe Wikipedia-Artikel)
angezogen von beit Josef, Eben Haëser c. 128 – ein von Mainz aus datirtes
gt-Formular abgedruckt ist. Die Stadt hieß nacheinander Manz, Minz, Magenza, Mantz, Mainz, Mainz (unterschiedliche hebräische Schreibweisen); doch dies nur beiläufig.
Ehe wir auf den Inhalt des vorliegenden Schriftstückes näher eingehen, wollen wir die darin erwähnten Persönlichkeiten beleuchten.
Kurfürst und Erzbischof Emmerich Joseph, welcher in Mainz von 1763 bis 1774 regierte, war ein Vater seiner
Untertanen, als Staatsmann und Gelehrter gleich groß, als Mensch der Edelsten Einer; die Stadt Mainz hat ihm ein dankbares Andenken bewahrt und eine ihrer Straßen nach ihm
,Emmerich-Joseph- Straße, benannt. Wiewohl katholischer Kirchenfürst, ist er doch als weltlicher Kurfürst allen seinen
Untertanen, den Juden wie den Protestanten ein gerechter und wohlwollender Herr gewesen.
Über den Rabbinen, den Verfasser des vorliegenden Schriftstückes, wollen wir hier aus dem Memorialbuche der Mainzer Gemeinde einige
Mitteilungen machen.
Rabbi Moses Brandeis war ein Nachkomme des berühmten ,hohen Rabbi Löb, von Prag, der da der Held so vieler Sagen geworden ist; der Lehrer seiner Jugend war der Präses der Prager Jeschibah,
Rabbi Abraham Brodi. Da Rabbi Moses schon in früher Jugend von
seinem Lehrer mit der ,Morenu, (Autorisation zum Rabbiner) beehrt wurde, so drang sein Ruf bis nach
Fürth, wo ein reicher Mann, Namens
Rabbi Gabriel, ihn zum Schwiegersohn erkor, in Fürth ein Beth
HaMidrasch (Talmudschule) gründete, es mit 10,000 fl. fundierte und Rabbi Moses an die Spitze desselben stellte, der zugleich das Rabbineramt
Schnaittach verwaltete. Später wurde
Rabbi Moses Rabbiner von Bunzlau in Böhmen, wo seine erste Gattin starb und er sich zum zweiten Male mit der Tochter des R. Baruch Austerlitz von Prag, eines Enkels des berühmten Primators von Prag, Rabbi Samuel Taußk (= Rabbi Samuel Taussig-Sachsl), vermählte. Sechzehn Jahre lang lebte Rabbi Moses als Rabbiner in Bunzlau; während dieser Zeit wurde er bei allen wichtigen Anlässen nach
Prag berufen, woselbst er manchmal ein halbes Jahr verweilte. Dahin strömten viele Schüler, um seine scharfsinnigen Vorträge zu hören, so dass man ihn nie mehr anders als Rabbi Moses Moscheh
Charif, d. i. der Scharfsinnige, nannte. Dieser große Ruf brachte ihm die Berufung nach Mainz, woselbst er als Stadt- und Land-Oberrabbiner 34 Jahre lang
fungierte. Er starb am 23. Sivan 5527 (1767). Das Memorialbuch rühmt seine grenzenlose Frömmigkeit, sein unendliches Wissen und seine schrankenlose
Wohltätigkeit; noch im hohen Alter war seine Kraft ungeschwächt trotz mannigfacher Trauerfälle in seiner Familie. Ein erwachsener Sohn Namens Rabbi Simon starb kurz vor dessen Hochzeit am 24.
Ador 1733; er hätte eine Tochter des berühmten Rabbi Simon Jonathan Eibeschütz
heiraten sollen; ein anderer erwachsener Sohn, Rabbi Gabriel, wurde, als Trenk,s Panduren die Prager |
Judenstadt plünderten – 22. Kislew 5505 (1774) – erschlagen (hebräisch
und deutsch:), ,weil er den Namen Gottes heiligte.,
Vielleicht kann einer unserer geehrten Leser in Prag nähere Auskunft über
dies tragische Ereignis geben. – Der Leichenstein des R. Moscheh Charif
sowie der eines seiner Vorgänger, Rabbi Juda Löb
Enosch, Verfasser des Kol Jehuda, eines Kommentars zu dem kabbalistischen Werke
Asara Mi,omerot, war verfallen; in Folge dessen die hiesige Chewra
Kadischa (Beerdigungsbruderschaft) auf Anlass eines eines ihrer Mitglieder, Rabbi Bär Scheuer
- sein Licht leuchte -, zwei neue Leichensteine setzen ließ, für die der Herausgeber dieser Blätter die Inschriften verfasste; sie folgte hierin dem Beispiele ihrer Väter,
die im Jahre 5552 für Rabbi Schimeon Hagadol einen neuen Leichenstein
anstatt des verfallenen aufrichtete. – Ein Sohn des Rabbi Moses Charif, Rabbi Jacob Brandeis, war Rabbiner in
Darmstadt, ein Enkel von ihm, Rabbi Abraham
Brandeis, war Rabbiner in Bingen
und dessen Bruder,
Rabbi Sender, war Chasan in Mainz. Sowohl hier als auch in hiesiger Gegend leben noch Nachkommen von Rabbi Moscheh
Charif, ja eine seiner Töchter starb erst vor noch nicht langer Zeit in Frankfurt a. M.
Das vorliegende Schriftstück enthält zuvörderst eine kurze Predigt des Rabbiners in hebräischer und deutscher Sprache. Dieselbe hebt die Zeitumstände hervor. Vergessen wir nicht, dass der Vorgang im Jahre 1763 vor sich ging, gerade zu der Zeit des Ausgangs des siebenjährigen Krieges, der Deutschland so schlimm heimgesucht hatte. Wir wollen die kurze Predigt hier in extenso wiedergeben, jedoch nach dem hebräischen Texte, den wir in jetztübliches Deutsch übertragen wollen. (Schluss folgt.). |
| |
Artikel in der Zeitschrift "Der Israelit" vom
15. Januar 1868: "(Schluss.) Die Predigt selbst lautet:
,Wer kann die großen Taten des allmächtigen Gottes aussprechen und alle seine löblichen Werke preisen! (Psalm 106,
2).
,Er ist der Schöpfer des Alls, Er setzt Könige ein auf Erden, und Sein ist die Herrschaft.
,König Salomo legt dar im Buche Kohelet K. 3, dass diese Welt von der Erschaffung an bis zum Ende derselben von 14 guten und 14 bösen Zeiten, in 14 Versen, bestehe von denen wir drei in die Betrachtung ziehen wollen:
,Es ist eine Zeit zum Kriege und zum Frieden;
,Es ist eine Zeit geboren zu werden, und eine Zeit, zu sterben;
,Es ist eine Zeit zu klagen und eine Zeit, fröhlich zu sein.
,Es sind also hier drei gute und drei böse Zeiten geschildert.
,Jene drei bösen Zeiten sind über die Kurmainzer Israeliten mit aller Schwere hinweggegangen;
furchtbare Abgaben, Beschränkungen und Steuern haben die hier und im ganzen Kurstaate wohnenden Israeliten seit langer Zeit derart bedrückt,
dass es uns kaum möglich war, unsere Frauen und Kinder zu ernähren. Aber
Not folgte auf Not. Seit mehr als sechs Jahren herrscht Krieg zwischen vielen Königen in
den Ländern des Westens, die man Europa nennt, und es wurde an uns erfüllt das Wort der heiligen Schrift: Und Israel verarmte gar sehr (Richter K. 6, V. 6).
,Die Führer und Leiter unserer Gemeinde wussten sich mehr weder nach rechts noch nach links zu wenden in
Folge der großen Kriegsauflagen. Also ist an uns erfüllt worden zum Bösen:
,Es ist eine Zeit des Krieges,.
,Aber nachher kam uns die Freudenbotschaft, dass Friede geworden in allen Ländern
Europas. Da hofften wir, dass auch uns die Verheißung König Salomos zum Guten erfüllt werde:
,Es ist eine Zeit des Friedens,.
,Da nun die erfreuliche Friedensbotschaft zu uns gedrungen, so erhofften wir Hilfe von unserem gnädigen Landesherrn, dem Kurfürsten, und es flehten zu ihm die Führer und Leiter der Gemeinde Mainz, sowie die aller Gemeinden des Kurstaates,
dass er uns erleichtern möge die Last er Bedrückung, der Steuern und Auflagen. Aber es war ihm nicht gegönnt, uns zu helfen, er erkrankte und starb.
,Es ist eine Zeit, geboren zu werden und eine Zeit, zu sterben., Und als er gestorben war, da beklagten wir den Tod des Landesherrn, des Kurfürsten.
,Es ist eine Zeit zu klagen., Und so zogen über uns hinweg die drei bösen Zeiten, von denen König Salomo spricht; sie kamen rasch auf einander; aber von den guten Zeiten haben wir nicht eine erlebt.
,Allein der Schöpfer, Sein Name werden gepriesen, gelobt sei Er und gelobt sei Sein großer Name, Er kennt die
Not Israels; denn so heißt es: Er, der bildet insgesamt ihr Herz, Er merkt auf
all ihr Tun, - er ist,s, der verwundet und wieder heilt, Er hat uns gezeigt auch bald eine Zeit zum Guten, die Zeit, fröhlich zu sein, von der König Salomo – über ihm walte der Friede – spricht.
,Siehe, eine Stimme ertönte, eine Stimme, die nicht aufhörte, dass erwählt worden zum Herrscher über alle Mainzer Lande der große,
berühmte Fürst,
der seinen Namen zeichnet auf Papier mit Tinte und Feder (hebräisch
wie kursiv)
Emmerich Joseph, dass er Herr sei über alle Herren und Herrscher über alle Herrscher, dass er gleich einem Könige herrsche in allen Provinzen seines Reiches, als erhabener Kurfürst in allen kurmainzischen Provinzen.
,Da wir nun seit früheren Jahren gesehen und gehört haben, dass Emmerich Joseph liebevoll und barmherzig gegen die Armen und Bedrängten ist, so hat ein großer Trost unsere bekümmerten Herzen belebt, und so wollen wir denn erfüllen jetzt,
dass es nach dem Ausspruche Salomos auch eine Zeit zum Fröhlichsein gibt.
,Jauchzen und Jubel herrscht im Lager Israels hier in unserer Gemeinde – Gott schütze sie – und in allen Provinzen des Mainzer Landes! Danken und loben wollen wir den Ewigen und preisen Seinen großen Namen und beten wollen wir heute in der Synagoge, die da ist ein
kleines Heiligtum (hebräisch dasselbe) für unseren Herr, den frommen Kurfürsten, dessen Majestät erhöhet werde und der da heißt:
Emmerich Joseph.
,Wir wollen ihn segnen mit allen Segnungen und Glückwünschen; möge er Glück haben, wohin er
sich wende, möge Gott seine Tage und Jahre verlängern bis zu hundert Jahren.
Amen!," |
Feier des Geburtsfestes des Großherzogs in der
Synagoge (1838)
Anmerkung: gefeiert wurde (wie auch im nachfolgenden Artikel von 1841) in der
Synagoge der Geburtstag von Großherzog Ludwig II. (geb. 26. Dezember 1777;
Großherzog von 1830-1848)
Artikel in der "Allgemeinen Zeitung des Judentums"
vom 6. Februar 1838: "Mainz. 7. Januar (1838). Die kirchliche
Feier der hiesigen Synagoge, bei Gelegenheit des Geburtsfestes unseres
Großherzogs, war diesmal eine wahrhaft würdige, treffliche deutsche
Choräle erklangen, und eine inhaltsschwere Predigt setzte auseinander,
wie vieles die Juden des Großherzogtums von jeher, und besonders in den
neueren Zeiten, ihrem Fürsten zu danken haben. Das ist aber auch ein
Punkt, der nicht genug hervorgehoben werden kann. Will man eine wirklich
erfreuliche Lage dieser Staatsangehörigen sehen, so muss man sie in
Hessen suchen. Zu den Wissenschaften, zu den Künsten, zu allen Gewerben,
zum Feldbau, kurz zu allen Quellen ehrbarer Lebensbeschäftigungen ist hier
den Juden der Weg gestattet, und ebenso wenig denkt man daran, sie im
kleineren oder größeren Handel zu beschränken, obwohl man sie indirekt
von dem unehrbaren Schacher abzieht, da man sie in den ehrbaren
Nahrungszweigen vorzugsweise unterstützt. Ist auch die vollkommene
Emanzipation als solche noch nicht ausgesprochen, so zeugen doch alle
Symptome dafür, dass wir nicht mehr fern von diesem Endpunkte der
gerechten Wünsche der hessischen Juden sind. Und bliebe auch dieses
erwünscht Gut noch länger aus, als man erwartet, so wird schon darum die
Entbehrung nciht wehe tun, weil man weiß, dass sie von keiner Intoleranz
und von keinem Vorurteil ausgeht. (L.A.Z.)." |
Gottesdienst zum Geburtsfest des Großherzogs
(1841)
Artikel in der "Allgemeinen Zeitung des Judentums"
vom 30. Januar 1841: "Mainz, 28. Dezember (1841). Am
hohen Geburtsfeste unseres geliebten Großherzogs fand in der hiesigen
Synagoge ein sehr erbaulicher Gottesdienst statt. Gebete für das Wohl des
Landesfürsten drangen zum Himmel, Choralgesänge wurden von den Knaben
vorgetragen, und die Predigt, die Herr Rabbine Ellinger hielt, war
voll der edelsten Gesinnungen, der Untertanentreue, der Menschen- und
Bruderliebe. Hätte der schon in hohen Jahren stehende Greis diese Rede
ebenso rhetorisch ausstatten können, als er sie herzlich meinte, so
würde sie noch einen größeren Eindruck hervorgebracht haben, als sie
wirklich hervorbrachte. Indessen erfreut sich dieser Mann der Achtung der
ganzen Gemeinde und wird von Jedermann für loyal und tolerant gehalten. -
Man sieht übrigens bei dieser Gelegenheit, dass der gegenwärtige
israelitische Vorstand sich keineswegs den vernünftigen Fortschritten
entzieht. Er hat seine Einwilligung zur jährlichen Konfirmation gegeben,
er hat dem tüchtigen Religionslehrer Dr. Kahn jetzt einen
größeren Gehalt ausgeworfen, er hat sich bereitwillig für den neuen
Schulbau erklärt, insofern die freiwilligen Beiträge ansehnlich
ausfallen; und ist einmal das neue Gotteshaus errichtet, dann wird auch
wohl der Prediger und die regelmäßigen Predigten nicht fehlen. Endlich
hat er ganz kürzlich die Anwesenheit Crémieur,s in Main auf eine Weise
geehrt, die ihm selbst sehr zur Ehre gereicht. (Didask.)."
|
Abschied von der alten Synagoge
(1846)
Artikel in der "Allgemeinen Zeitung des Judentums"
vom 13. April 1846: "Mainz, 25. März (1846). Am 23. (März)
abends nahm die israelitische Gemeinde in Mainz in einem feierlichen
Trauergottesdienst Abschied von ihrer alten 500-jährigen Synagoge, da
dieselbe abgerissen und ein neues, prachtvolles Gotteshaus auf derselben Stätte
aufgeführt werden soll." |
Auszug aus der alten Synagoge in eine Interims-Synagoge
(1846)
Artikel in der Zeitschrift "Der treue Zionswächter"
vom 14. April 1846: "Mainz, den 24. März (1846). Gestern, als
am 25. Ador (23. März), fand der Auszug aus unserer altberühmten
Synagoge und der Einzug in die Interims-Synagoge statt, da, wie Ihnen
bekannt, unsere alte Synagoge eingerissen und an deren Stelle eine neue
erbauet wird. Das Alter unserer Synagoge kann nicht genau angegeben
werden; doch wird sich wohl beim Abreißen eine Stelle vorfinden, wo dies
genau verzeichnet sein wird. Gewiss ist aber, dass selbige sehr alt ist,
und fand man sich hier daher veranlasst, die Zeremonie des Ausziehens mit
einer besonderen, der Sache angemessenen Feierlichkeit zu vollziehen. Ich
erlaube mir daher, den Lesern Ihres geschätzten Blattes eine kleine
Beschreibung davon zu machen, und belieben Sie, selbige der
Veröffentlichung wert zu |
erachten.
Nachdem um 5 Uhr Nachmittags in der alten Synagoge noch das Mincha
gebetet wurde, und das Lokal mit Andächtigen gedrängt voll war, trug
Herr Moritz Reis, unser würdiger Präses des Vorstandes, die Motive vor,
welche die Gemeinde dazu bestimmt hätten, zu dem Bau eines neuen
Gotteshauses zu schreiten; setzte mit großer Genauigkeit auseinander, wie
unter den obwaltenden Umständen der hochwürdige Rabbiner es nach den mosaisch-talmudischen Gesetzen für erlaubt erklärt hätte, diese
Synagoge einzureißen, um auf demselben Platze eine neue aufbauen zu
lassen. Nach diesem Vortrag betrat Herr Samuel Bondi im Namen
unseres hochwürdigen Rabbinen, Herrn Leon Ellinger, welcher
augenblicklich durch ein Augenübel verhindert war, die Rednerstelle, und
trug die eigentliche Abschieds- oder Auszugsrede vor. Dieser Vortrag
machte einen unbeschreiblich tiefen Eindruck auf sämtliche Zuhörer. Ganz
besonders erregten die mit großem Nachdruck vorgetragenen Stellen: ,Wie
viel Mal wurde Sch,ma Jisrael in dieser Synagoge gesagt, und wie
oft Amen. Sein erhabener Name sei gepriesen immerdar in Ewigkeit?
tiefe und mächtige Gefühle. Nachdem der Vortragende nach üblichem
Brauch die Synagoge und den Toraschrein um Verzeihung
gebittet hatte, ließ derselbe wie beim Ausgang des Versöhnungstages...
sieben Mal die Schemot sagen. Wie gesagt, es lässt sich der
Eindruck dieses Momentes insbesondere gewiss nicht beschreiben. Es blieb
kein Herz unberührt und kein Auge tränenleer. Nach diesem sprach Herr S. Bondi noch den Wunsch aus, dass, sowie dieser Auszug in Frieden, Eintracht
und Einigkeit geschehe, diese Tugenden nicht minder beim Einzug in die
neue Synagoge vorherrschend sein, und jeder der Gemeindeglieder dies
erleben möge.
Nach Beendigung dieser Rede wurden nun die Torarollen aus dem Toraschrein
herausgenommen und in folgender Reihe nach der Interims-Synagoge gebracht.
Zuerst unser hochwürdiger Herr Rabbiner, sodann die sämtlichen
Vorstands-Mitglieder, die Ältesten der Gemeinde, sämtlich mit Torarollen
in der Hand. Darauf folgten sämtliche Gemeindeglieder. In der neuen
Synagoge angekommen, trug der Präses des Vorstandes im Namen der ganzen
Gemeinde den üblichen Tenai vor, dass man nämlich diese
Interims-Synagoge später wieder zum profanen Gebrauche benutzen dürfe,
sobald der Neubau vollendet sei. Zehn passende Psalmen und Maariw
beschlossen diese Feier. - Bei dieser Gelegenheit zeigte unsere
sämtlichen verehrten Vorstands-Mitglieder ganz besonders ihren Eifer für
das religiöse und friedliebende Verfahren, und wie ihr Bestreben
vorzüglich dahin gerichtet sei, den bei uns vorherrschenden Geist des
religiösen Sinnes, wie der Friedfertigkeit, stets als Richtschnur ihres
Verfahrens gelten zu
lassen." |
In der Synagoge befindet sich eine Orgel
(1849)
Artikel in der Zeitschrift "Der treue Zionswächter"
vom 7. Dezember 1849: "Mainz. Vielleicht haben Sie es
noch nicht erfahren, dass in die hiesige neue Synagoge eine Orgel gekommen
ist. Unsere hiesigen Orthodoxen blieben aber dazu nicht still, sondern
legten bei der Regierung Protest ein, man sieht nächstens einer
Entscheidung der Regierung deshalb entgegen. Im Falle die Orgel in der
Synagoge verbleibt, so wird Mainz die erste Gemeinde Hessens sein, die
sich trennt, und es wird dann sehr in Frage stehen, ob die Reformfreunde
so viel Anhang bekommen, um ihre Kultuskosten zu bestreiten. Wir der Rabbinatsverweser
Dr. Kahn dabei wegkommen wird, der doch mit der Reform liebäugelt,
ist leicht vorauszusehen, für die Reformisten wird er nicht Redner genug
sein und die andere Partei wird sich um einen tüchtigen Rabbiner umsehen.
Schließlich können wir nicht umhin, Herrn Moses Reis unsere
Anerkennung an den Tag zu legen, weil er wegen dieser Orgel einen
gedruckten Protest erließ, wodurch bewirkt wird, dass etwa hundert
Familien gegen den Vorstand protestierten. Mögen in allen jüdischen
Gemeinden, in welchen die Reform ihr Haupt erhebt, immer
Gemeindemitglieder sich der Sache annehmen, dann werden auch die zu
Schande werden, welche die heilige Religion Israels
angreifen." |
Fund alter Toraschrein-Vorhänge
(1911)
Artikel im "Frankfurter Israelitischen Familienblatt"
vom 3. November 1911: "Mainz. Bei Räumungsarbeiten in der
Synagoge wurden in einer alten, kunstvoll gearbeiteten Truhe aus dem Jahre 1678
Vorhänge von großem Kunstwerte aufgefunden. Es sind da Arbeiten aus der frühesten Renaissancezeit, ja sogar solche, die
wahrscheinlich bei der Vertreibung der Juden aus Spanien mit nach Deutschland wanderten, denn sie weisen byzantisch-maurische Figuren auf. Manche der Stickereien erinnern mit ihren großzügigen Zeichnungen an die Zeit Rubens, andere mit ihren Blumen- und Früchtemotiven an die Blütezeit des Rokoko. Die in die Mitte der Vorhänge eingesetzten Samtspiegel mit hebräischen Inschriften sind meist jüngeren Datums, denn ehe die kostbaren Stoffe dem Gotteshause gestiftet wurden, befanden sie sich oft schon sehr lange in Privatbesitz der Familien. So erzählt eine Inschrift,
dass eine Frau zur Barmizwoh ihres Ältesten ihr Brautkleid der Synagoge geschenkt habe (1749), eine andere Widmung besagt, dass der Gatte beim Tode seiner Gemahlin deren kostbares Gewand für einen Altarvorhang bestimmen ließ (1768). Die Inschriften auf diesen Synagogenvorhängen zeigen die Namen uralter Mainzer jüdischer Familien, wie Ladenburg,
Hamburg, Utitz, Weltsch, Wrangkfurth, Wissibad etc.
Der Vorsitzende der jüdischen Gemeinde, Kommerzienrat B. A. Mayer, beabsichtigt, den Antrag zu stellen, die Vorhänge mit noch anderen interessanten Antiquitäten dem Mainzer Museum zu überlassen, das sodann eine Abteilung jüdischer Altertümer, wie sie
anderweitig existieren, zu bilden hätte." |
| |
Artikel in der Zeitschrift "Der Israelit" vom
9. November 1911: "(Funde jüdischer Altertümer.) Die Verwaltung der jüdischen Gemeinde in Mainz, die wegen des Neubaus der Synagoge mit Räumungsarbeiten beschäftigt ist, fand in einer alten, kunstvoll gearbeiteten Truhe aus dem Jahre 1678, verfertigt von Adam Riedel, eine Reihe antiker
Parochot (Toraschreinvorhänge) von großem Kunstwerte. Die Vorhänge bestehen zumeist aus uralten seidenen Stoffen, die mit herrlichen
Stickereien, Blumen, Früchte oder Tiere darstellend, versehen sind. Wir finden da Arbeiten aus der frühen Renaissancezeit, ja sogar solche, die wahrscheinlich aus Spanien, aus der Zeit der
Vertreibung der Juden aus diesem Lande mit nach Deutschland wanderten, denn sie weisen byzantisch-maurische Figuren auf. Manche der Stickereien erinnern mit ihren großzügigen Zeichnungen an die Zeit Rubens, andere mit ihren Blumen- und Fruchtmotiven an die Blütezeit des Rokoko. Die in der Mitte der Vorhänge eingesetzten Samtspiegel mit hebräischen Inschriften sind meist jüngeren Datums, denn ehe die kostbaren Stoffe dem Gotteshause gestiftet wurden, befanden sie sich oft schon sehr lange Zeit in Privatbesitz der Familien. So erzählt eine Inschrift, dass eine Frau zur
Bar Mizwa ihres Ältesten ihr Brautkleid der Synagoge geschenkt
habe (1749), eine andere Widmung besagt, dass der Gatte beim Tode seiner Gemahlin deren kostbares Gewand für einen
Parochet-vorhang bestimmen ließ (1768). Die Inschriften auf diesen Synagogenvorhängen zeigen die Namen uralter Mainzer jüdischer Familien, wie Ladenburg,
Hamburg, Utitz, Weltsch, Wrangkfurth, Wissibad usw. Der Vorstand der jüdischen Gemeinde beabsichtigt die im Besitz der Gemeinde befindlichen Vorhänge mit noch anderen interessanten Antiquitäten dem Mainzer Museum zu überlassen, das sodann eine Abteilung jüdischer Altertümer, wie sie
anderweitig existieren, zu bilden hätte." |
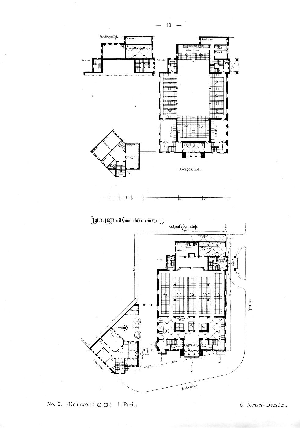
Die 1853 eingeweihte Hauptsynagoge der "Israelitischen
Religionsgemeinde"
1844 beschloss der jüdische Gemeindevorstand den Neubau einer Synagoge am bisherigen Standort zwischen der Vorderen und der Hinteren Synagogenstraße (heute: zwischen Klarastraße und Rechengasse). Auf Grund der politisch unruhigen Zeiten (Revolutionsjahr 1848) konnte der Synagogenbau erst 1853 abgeschlossen und das Gotteshaus
am 11. März 1853 eingeweiht werden. Architekt war der Regierungs- und Mainzer Dombaumeister Ignaz Opfermann. Er baute die Synagoge im maurischen (neu-islamischen) Stil. Charakteristisch war eine monumentale, dreigeschossige Fassade. Eine breite Treppe zwischen hohen Podesten führte zum Portal des Mittelrisalits. Im Betsaal gab es 764
Sitzplätze.
Nach der Einweihung der neuen Hauptsynagoge (1912) wurde die Synagoge von 1853 verkauft und bis 1937 als eine städtische Lagerhalle genutzt. In der Pogromnacht im November 1938 wurde das Gebäude geschändet, 1945 bei einem Bombenangriff weitgehend zerstört. Nach 1945 wurde die Ruine abgebrochen. Bei Bauarbeiten 1993 wurde ein Werkstein von einer der Turmspitzen entdeckt und 1999 zur Erinnerung an die Synagoge im Innenhof der Landesbausparkasse Rheinland-Pfalz aufgestellt.
Texte zur
Geschichte der 1853 eingeweihten Hauptsynagoge aus jüdischen Periodika
Für den Neubau der Synagoge konnten 60.000 Gulden
gesammelt werden (1846)
Artikel in der "Allgemeinen Zeitung des Judentums"
vom 5. Januar 1846: "Mainz, 23. Dezember. Innerhalb weniger Tage ist diese Woche von wohlhabenden Israeliten die Summe von 60,000
Fl. zum Bedarf des Baues der neuen Synagoge gezeichnet worden." |
Einweihung der Synagoge (1853)
Artikel
in der "Allgemeinen Zeitung des Judentums" vom 4. April
1853: "Mainz, 12. März. (Didask.) Gestern Abend und heute Morgen wurde die Einweihung
der neuen Synagoge der hiesigen israelitischen Gemeinde auf würdevolle Weise gefeiert. Gestern vor 5 Uhr war schon das neue
Gotteshaus in allen seinen weiten Räumen mit Mitgliedern der Gemeinde und mit Einlasskarten versehenen Gästen angefüllt. Nicht lange nach 5 Uhr kam der Zug der bei der Abschiedsfeier in dem seitherigen Bethause
tätig oder zugegen gewesenen Gemeindemitglieder in der Synagoge an und bewegte sich unter Musik und Gesang durch den mittleren Gang nach dem
Heiligtume, wo unter den üblichen Zeremonien die Tora niedergelegt wurde, worauf Gesang, von den vollen Tönen der schönen Orgel und der Musik des Bürgermusikvereins begleitet, mit Gebet wechselten, bis der erste Rabbiner, Herr Dr. Aub, die Kanzel betrat und in fast anderthalbstündiger Predigt, welche des besten Eindrucks nicht verfehlte, die Bedeutung des Tages auseinander
setzte. Nach der Predigt folgten noch Gesang und Gebet bis 8 Uhr, wo für diesen Tag die Feier
endete, der die höchsten Zivil- und Militärautoritäten, sowie mehrere höhere Geistliche der beiden christlichen Konfessionen beiwohnten. Sprechen wir nun auch von dem Eindrucke, den das Innere des neuen Baues selbst auf uns und auf Alle machte, welche wir darüber sich äußern hörten, so war derselbe ein im höchsten Grade überraschender, großartiger. Das hohe, mit Glaskuppeln gewölbte Schiff, von zwei auf drei Seiten übereinander hinlaufenden Galerien umkränzte, unter diesen die entsprechenden Nebenräume, und alle diese Räume
aufs prachtvollste durch Malereien und architektonische Verzierungen geschmückt und von dem Lichtmeer der Hunderte von Gas
ausströmenden Kerzen durchstrahlt. Alles das wirkte wahrhaft zauberhaft auf den Beschauer und rief in ihm die
Überzeugung hervor, dass dieser Tempel eine der schönsten Zierden unserer Stadt
bilde." |
Über die Einweihung der Synagoge - ausführlicher Bericht (1853)
Artikel
in der Zeitschrift "Der Israelitische Volksschullehrer" vom
März 1853:
(März 1853).
Einweihungs-Feier
der Synagoge zu Mainz.
Freitag, den 11. März 1853.
Eine das Judentum verherrlichende, ihre Veranlasser ehrende,
bedeutungsvolle Feier hat an diesem Tage in unserer Nachbarstadt und
Gemeinde stattgefunden. Sie hat der Hebung unseres Gottesdienstes einen
mächtigen Vorschub geleistet, indem sie in der dortigen Gemeinde die
Tatkräftigen und Eifrigen für ihre Ausdauer gelohnt und zu neuer
Tätig- |
keit
begeistert, die Lauen erwärmt, die Zagenden beruhigt, die Böswilligen
beschämt, und in einer strengkatholischen, aber doch im Grunde ihres
Herzens den menschenverbindenden Ideen des Jahrhunderts hingegebenen Stadt
dem Judentume Anerkennung und seinen Anhängern Hochachtung verschafft -
- Gründe genug, um der Einweihung der neuerbauten Synagoge zu
Mainz, als einem ebenso erfreulichen als denkwürdigen Ereignisse, in
dieser der Weckung würdigen Gestaltung des jüdisch-religiösen Lebens
gewidmeten Zeitschrift einige Blätter einzuräumen. -
Sechs Rabbiner halfen diese Feier zelebrieren; nämlich: Herr Dr. Aub,
erster Rabbiner zu Mainz; Herr Dr. Cahn, zweiter Rabbiner daselbst;
Herr Dr. Levi, Provinzialrabbiner zu Gießen; Herr Dr. Sobernheim,
Kreisrabbiner zu Bingen; Herr Samuel Süßkind, Stadt- und
Bezirksrabbiner zu Wiesbaden, und der Herausgeber. - Freitag um 5 Uhr
versammelte man sich in dem bisherigen, interimistischen, über zwei
Treppen eines altfinsteren Hauses gelegenen Betsaale um daselbst das Mincha-Gebet
als Scheidegruß zu sprechen. Wir sahen in manchem Auge eine Träne der
Rührung; denn solcher Abschied hat immer etwas tief Ergreifendes! Herr
Dr. Aub sprach hier, vor dem Herausnehmen der Gesetzrollen, einige
Worte, worin er auf die Bedeutung der nun zu verlassenden Räume für die Gemeinde,
die hier einige Jahre den Herr verehrt, sowie für ihn selbst, der
hier seinen Bund mit der Gemeinde schloss, hinwies. - Hierauf setzte sich
der Zug in Bewegung, indem der genannte Redner ausrief und die Gemeinde
antwortete (hebräisch und deutsch):
,Ich freue mich, spricht man zu mir,
Wir ziehen zum Haus des Herrn!,
Zwölf Tora-Rollen wurden, reich verziert, von den anwesenden
Rabbinern und Vorstehern getragen, auf beiden Seiten von Notabeln der
Gemeinde und den Festordnern begleitet, denen sich die Gemeindemitglieder,
zu drei und drei Personen, anschlossen. Dem Zuge voran gingen zwölf
weißgekleidete, mit Kränzen geschmückte Mädchen im Alter
von |
8
bis 12 Jahren; es waren gleichsam die Engel der Unschuld und
Herzensreinheit, welche dem Gottesworte den weg bahnten beim Einzuge in
das Heiligtum des Herrn. Vor dem Portale, über welchem mehrere kleine
Türme sich erheben und zu welchem eine Anzahl von Treppen emporführt,
die zum Feste reich mit Blumen geschmückt waren, hielt der Zug stille;
der erste Rabbiner trat vor und sprach die Worte (hebräisch und
deutsch):
,Öffnet die Pforten, dass eintrete Die Gemeinde, welche den Glauben
wahrt.
Öffnet mir des Heiles Pforten, Ich trete ein und danke Gott.
Das ist die Pforte zum Herrn, Die Frommen treten hier ein.,
Die Pforten taten sich auf; die Posaunen erdröhnten; die Pauken
wirbelten; die Orgel ließ ihre mächtigen Töne erbrausen; drein klangen
helle Kinderstimmen, wie Chöre aus den Höhen, das ,Ma-tobu, in vollem
Chorale anstimmend; dazu der überraschende Anblick der von unzähligen
Gasflammen erleuchteten und im Glanze ihrer reichen Ornamente bräutlich
strahlenden prachtvollen Synagoge - es war ein großer, unbeschreiblicher
Moment! - Tränen der Rührung und des Dankes traten in meine Augen, und
ich sprach mit Salomo in meinem Herzen (hebräisch und deutsch): ,gelobt
sei Gott, der seinem Volke Israel Ruhe geschenkt!, - Denn ein Zeugnis
besserer Zeiten, die uns Gott erleben ließ, ist dieser Tempel, erbaut von
einer ehrwürdigen Gemeinde in Israel, die, bei ihrem Eingehen in die
neuere Zeit und ihre fortschreitenden Grundsätze, doch den alten Gott und
den alten Glauben nicht verlassen hat. - Das neue, herrliche Gotteshaus,
von dem rühmlichst bekannten Baumeister Opfermann zu Mainz im Maurischen
Stile ebenso würdig als geschmackvoll ausgeführt, bietet dem Auge des
Beschauers im Inneren ein längliches Viereck dar, innerhalb dessen, zu
ebener Erde, sich die wie Kirchensitze eingerichteten Plätze für die
Männer befinden, und an dessen beiden Seiten eine Reihe schöner Säulen
sich hinzieht, über deren Knauf die Hauptlehren und |
Grundgebote
des Judentums in hebräischen Versen angebracht sind. Die Säulen tragen
zwei übereinander hinlaufende, mit kleineren Säulen geschmückte offene
Galerien für die Frauen; in der Mitte der oberen Galerie im zweiten Stockwerke
befindet sich, im Westen, die Orgel - die erste in einer
großen deutschen Synagoge, welche den ganzen Gottesdienst
begleitet - ihr zu beiden Seiten geräumige Plätze für Knaben und
Mädchen, für Sänger und Sängerinnen. Im Osten befindet sich, wie
gewöhnlich, die heiligen Lage; vor ihr ein geräumiger Platz, zu welchem
mehrere Stufen von beiden Seiten empor führen. Neben diesem Auftritte
befindet sich die Kanzel; unter ihr, in derselben Ebene mit den Plätzen
für die Männer, die Stätte für den Kantor, welche zugleich als
Lesestätte für den Vortrag aus der Tora benutzt wird, und ihr zu beiden
Seiten die Plätze für die beiden Rabbiner*). In der Höhe, von wannen
das Licht kommt, geht der reichbemalte Plafond in zwei Fensteröffnungen
aus, und das Ganze, farbenprächtig, bietet, besonders zur Abendzeit, bei
hell erleuchtetem Hause und bei zahlreicher Versammlung - denn der
schönste Schmuck eines Gotteshauses bleiben immer seine Besucher - einen
erhebend schönen Anblick dar. - Kehren wir, nachdem wir den Leser im
Geiste in das neue Haus eingeführt, zu dessen Einweihungsfest zurück! -
Die Träger der heiligen Torarollen stellten sich am Stande des Vorbeters
auf,
*) In Betreff dieser Räumlichkeiten bleibt noch manches zu wünschen
übrig. 1) Muss die Kanzel höher gerichtet werden, wenn der Redner
im Verhältnisse zur Höhe des Hauses seine Stelle einnehmen soll; 2) muss
auch die Stätte für den Kantor eine erhöhte sein, sonst kann seine
Stimme, namentlich beim gewöhnlichen Gebete, die Gemeinde nicht
beherrschen; 3) muss an der Rückseite des Betpultes ein Lesepult
für die Tora sich befinden, dem Volkes zugewendet, denn die Tora hat der
Vorbeter nicht Gott, sondern der Gemeinde vorzutragen. - Da
der Raum zwischen Kanzel und heiliger Lade ohne Zweck sehr abundant ist,
so werden sich diese Übelstände zum Vorteile des Ganzen leicht
beseitigen lassen. |
und nachdem der
Ma-tobu-Choral beendigt war, sprach der erste Rabbiner die Worte:
(hebräisch und deutsch:) ,Wie ehrfurchtsvoll ist diese Stätte!
(hebräisch und deutsch:) ,Ja dies ist Gottes Haus,
(hebräisch und deutsch:) ,Und dies ist die Pforte zum Himmel!, –
Hierauf wurde zum ersten Male in dem der Verehrung des einig-einzigen
Gottes gewidmeten Tempel das ,Schema Jisrael, angestimmt – ein ergreifender
Moment! – und unter dem Gesange des Simchat-Tora-Festes, hoscha na wurden sodann die üblichen Umzüge auf dem für die heiligen Funktionen bestimmten Raume abgehalten und die Thorarollen unter Absingung des Chorals:
,erhebt, ihr Thore, das Haupt, ect. in die heilige Lade eingeführt, worauf der zweite Rabbiner mit dem Gebete (hebräisch) diesen Theil der Handlung abschloss.
Daran reihte sich die Einweihungspredigt mit den begleitenden deutschen Gesängen. – Herr
Dr. Aub knüpfte die Einleitung seines Vortrages in passender Weise an den Wochenabschnitt
(Pikudei) an und ging dann zu seinem Thema von der Bedeutung des Gotteshauses über, welches er an den Text aus Hosea 2, 21. 22. anknüpfte:
(hebräisch und deutsch:) ,ich verbinde dich mir auf ewig; ich verbinde dich mir durch
Recht und Gerechtigkeit, durch Liebe und Erbarmen; ich verbinde mich dir durch die
Treue, auf dass du erkennest den Herrn., – Dieser Text gab den Rednern die
Einteilung von selbst an die Hand. Er stellte nämlich den Satz auf, dass das Gotteshaus seine Bedeutung darin habe, dass es ein
Bau für die Ewigkeit sei; wohl werde es, wie das Haus, das ihm vorangegangen, einstselbst in Staub zerfallen, aber in ihm und durch dasselbe soll der innere unzerstörbare Gottestempel gegründet und ausgeführt werden, und die Bausteine dazu sind:
Gerechtigkeit, Liebe und Treue. Dieser Vortrag, in klarer Darstellung Vergangenheit und Gegenwart würdigend, die verschiedenen Momente des menschlichen wie des Gemeinde- und gottesdienstlichen Lebens in obige drei Worte einschließend und so gleichsam alle in den neuen Tempel bedeutungsvoll einfü-
|
rend, verfehlte seines guten Eindruckes nicht bei den zahlreich versammelten Zuhörern aus
allen Konfessionen, und der Redner erntete, nach vollendetem Gottesdienste, - welche nach dem deutschen Einweihungsgebete in der üblichen Liturgie abgehalten wurde, - reichlichen Dank und
beglückwünschende Anerkennung von allen Seiten. Dieselbe wurde auch dem würdigen
Vorstande in verdientem Maße zu Teil, ihm, der unter vielen Kämpfen und unermüdlicher Ausdauer das Gotteshaus neu gegründet, das
Rabbinat neu befestigt, dem Gottesdienste eine neue Bahn des Fortschrittes und der Entwicklung eröffnet, ihm,
der an dem ,Baue der Ewigkeit, in seiner Gemeinde das Seinige redlich und gottesfürchtig ausgeführt, indem er, wie einst die wiedergekehrten Väter beim Baue der Mauer zu Jerusalem, mit der einen Hand baute und mit der anderen die Widersacher abwehren musste –
Gedenke ihm Gott zum Guten... (nach Nehemia 5,19; 13,31). – Die zahlreich anwesenden
christlichen Notabeln der Stadt waren von der ganzen Handlung und von der durchaus würdigen Haltung der dreistündigen Feier sichtlich ergriffen. Es haben aber auch Alle, welche durch ihre Mitwirkung den Gottesdienst verherrlichen halfen, das Ihrige freudig beigetragen, die Würde desselben zu wahren; die Sänger und Sängerinnen, ein zahlreicher Chor, nur aus Gemeinde-Angehörigen bestehend, - indem man einen gerechten Stolz darein setzte, nur durch
eigene Kräfte das heilige Werk zu vollführen, - haben, namentlich in den Chorälen, Treffliches geleistet und ein sehr wirksames Ensemble kundgegeben; möchten sie alle in ihrem schönen Eifer ausharren! Denn wahrer Eifer darf nicht Sache des momentanen
Enthusiasmus sein – ein Flackerfeuer! – sondern muss, wie das Feuer auf dem Altare im Tempel, stetig fortbrennen
(ein ewiges Feuer), unauslöschlich (nicht wird es gelöscht). Selbst des Vorbeters, Herrn Lehmeier, müssen wir anerkennend Gedenken; es hat dieser Mann, schon in reiferen Jahren stehend, sich mit löblichem Eifer die neue Vortragsweise angeeignet und die
betreffenden Gebete und Gesänge mit Würde und Präzision vorgeführt. Nur war es uns verdrieß- |
lich, hier wieder eine neue Art von Responsorien und Synagogenmelodien zu hören, während die
Sulzer’schen – auch zu Frankfurt a. M. eingeführt und von der Gemeinde mitgesungen, so dass dieselben auch so leicht nach
Mainz zu verpflanzen waren, - sich bereits in Deutschland eine große Anzahl von Synagogen erobert haben. Es ist ein ganz unbegründetes
Vorteil, dass dieselben so schwer seien; es mag dies von mehreren größeren und schwierigen
Pieçen des
,Schir Zion, zu sagen sein; von den Responsen und vielen Synagogenmelodien ist dies sicher nicht der Fall; Sulzer hat mit genialer Begabung die alten Synagogengemeinden benutzt, veredelt, verherrlicht; an diesen Meister sollte die deutsche Synagoge sich
allenthalben anschließen; in ihm ist fast durchgehend Alles einfach und erhaben, während
wir in den Mainzer Chorälen und Melodien viel Gedehntes und in den Responsen, bei Schma, Jehe scheme rabba
usw. viel Schnörkel und Modulationen gefunden haben, welche der Würde und Hoheit der Aussprüche Eintrag
tun. Wir hoffen doch, dass wenigstens in den Responsen in unserer Umgegend
eine Einheit in den gleichstrebenden Gemeinden erzielt werde, damit, wer von einer Synagoge in die andere komme, die
Genugtuung habe, bei den heiligen Sprüchen mit einstimmen zu können und sich durch den gottesdienstlichen Gesang in Harmonie mit Gleichgesinnten zu fühlen.
Einen Misston bei der schönen Einweihungsfeier gab der Umstand, dass die katholische
Geistlichkeit, - eingeladen, wie die protestantische, die erschienen ist – dieser, doch sicher der Mehrung des religiösen Lebens und der Verherrlichung des Höchsten geweihten
Zeremonie fern blieb. Warum? Vergibt die Eine Konfession Etwas an ihrer Würde, wenn sie die würdige Begehung eines gottesdienstlichen Festes bei der anderen beiwohnt? Darf nicht das
Judentum, als die Mutter des Christentums, von dieser seiner Tochter, mag diese noch so reich und stolz erscheinen und jene für arm und abgelebt halten, die
gehörige Hochachtung in Anspruch nehmen? Ist die katholische Kirche nicht auch in manchen Ländern in der |
Minderheit? War sie nicht wenigstens auch in manchen Ländern die zurückgesetzte, ecclesia pressa? Und ist es nicht ein heiliger Grundsatz – auch des
Christentums: liebe deinen Nächsten wie dich selbst, d. h. die Zurücksetzung, welche dir missfallen würde, füge nicht deinem Nächsten zu? Und handelte es sich hier ja um keine
Anerkennung des Judentums, sondern lediglich um eine Betätigung brüderlicher Gesinnung und bürgerlichen Gemeinsinns, und die
katholische Geistlichkeit hätte sich durch eine solche Kundgebung, ebenso wie die vielen achtbaren Katholiken, welche der Feier beiwohnten,
gewiss nur selbst geehrt* (*Anmerkung: siehe Beilage S. 64). – Doch genug
hiervon! – Gehen wir zu einer erfreulicheren Erscheinung der Zeit über! – Am
Festabend um zehn Uhr brachte,
auf eigenen Antrieb, die Bürgermusik der Stadt Mainz den beiden Herren Rabbinern – eigentlicher gesprochen der guten Sache,
der Sache echter Menschenliebe und heiligen Bürgerfriedens – eine glänzende
Serenade. Sie ließ zu diesem Berufe,
auf eigene Kosten, ein schönes Blatt drucken, welches, in Goldrahmen gefasst, in vielen Exemplaren den Herrn Rabbinern und Vorstehern überreicht wurde, und worauf sich die Worte befanden:
,Serenade zu Ehren der hiesigen israelitischen Religionsgemeinde, repräsentiert
durch die ehrenwerten Herren Dr. Aub und Dr. Cahn, nach feierlicher Verrichtung des ersten Gottesdienstes in der neu erbauten Synagoge, am 11. März 1853, dargebracht durch die
Mainzer Bürgermusik, unter der Leitung des Herrn Ferdinand Walter., (Programm). Die gespielten
Pieçen wurden mit großer Meisterschaft und mit sichtlichem Fleiße aufgeführt; Tausende von Menschen waren als Zuhörer versammelt; die hellen und klaren Töne wogten feierlich durch die lauschende Nacht, und verkündeten laut und trostvoll, dass weit hinter uns liegen die finsteren Zeiten, wo die Bürger in die Judengassen eindrangen, um arme Verfolgte zu misshandeln; wo Hass und Feindschaft und Rachegefühl das Leben der Völker mit ungelösten |
Dissonanzen erfüllte. Wo aus der Synagoge Weh- und Jammergeschrei aufstieg zu Gott über die Unterdrückung von Menschen zu Menschen! – Hört diese Töne, ihre benachbarten finsteren Giebeldächer der Judengasse, ihr Zeugen einer alten versinkenden Zeit! Die Bürger sind gekommen mit klingendem Spiel in eure Nähe, um Frieden und Freude zu verkünden und in Liebe zu sühnen die Schuld der Vergangenheit! Höre
diese Töne, benachbartes freundliches, heute geweihtes Gotteshaus, Zeuge einer
neuen aufgehenden Zeit! Die Bürger sind gekommen, dir den Willkommensgruß zu bringen, dir, aus dessen Mitte Lob und Dankgesänge emporsteigen sollen, zu Gott für die bessere Zeit, welche er uns geschenkt hat. – Es gibt einen heiligen
Dreiklang, der heißt: Gott, Menschheit und Vaterland; in diesen Dreiklang werden alle Misstöne der Gegenwart sich lösen in einer immer siegreicher herannahenden, weltverbrüdernden Zukunft. –
Am Sabbatmorgen, nachdem der Frühgottesdienst (Schacharit) um 7 Uhr abgehalten worden war, begann um 9 Uhr der Hauptgottesdienst mit dem Lesen aus der
Tora und der deutschen Haftara, worauf Herr Rabbiner Dr. Cahn die zweite Festrede abhielt über den Text aus Jesaias 26,
2. (hebräisch und duetsch:) ,öffnet euch, ihr Tore, dass einziehe das Volk, das gerechte, welches die
Treue bewahrt., Der Redner sprach über die Treue, die wir dem Gotteshause schuldig sind, beherzigende Worte und legte in einem sehr bezeichnenden Gleichnisse von einem großen, herrlichen
Palaste, dessen schöne Räume leer und verlassen stehen, und einer kleinen, dunklen Hütte, wo eine Familie
gemütlich und einig beisammen wohnt, den versammelten Gemeinde-Angehörigen die Pflicht ans Herz, das neuerbaute Gotteshaus fleißig und gewissenhaft zu besuchen, damit nicht das frühere alte, dunkle Haus, welches die Familie einigte, dem jetzigen neuen und herrlichen
Palaste vorzuziehen sein möchte, wenn in diesem die Gemeindefamilie fehlen würde. – In diese Ermahnung können wir nur von ganzem Herzen einstimmen! – Zur Steigerung und Erhaltung der Frequenz des
|
Gottesdienstes wird aber eine Läuterung des letzteren das Ihrige gewiss beitragen. Wir haben in dem
Vorworte zur hiesigen Gottesdienstordnung (Volkslehrer B. I. S. 23.) die Wahrnehmung ausgesprochen, dass, sobald wir den alten jüdischen Gottesdienst zu
ordnen beginnen, uns seine Mängel erst recht entgegen treten; denn
sein Übermaß war auf die Unordnung berechnet. Gleich am ersten Sabbate
traf diese Wahrheit beim Gottesdienste zu Mainz klar hervor, und die Rabbiner und Vorsteher haben den Vorsatz gefasst, Lücken auszufüllen und
Übermäßiges abzustellen, wie Zeit und Gelegenheit es gebieten und gestatten. – Namentlich tritt das Bedürfnis eines
neuen Gebetbuches überall dringend und unerlässlich hervor, wo die bessere Ordnung unter Gesang und Orgelgesang ihren Einzug feiert, und hoffentlich werden die benachbarten, in ihrem Streben sich nachstehenden Gemeinden sich in Bälde vereinen, um wenigstens über die Grundzüge eines Gebet- und Andachtsbuches (denn die häusliche Andacht muss mit besorgt und neuerbaut werden) eine Verständigung zu erzielen. –
Samstag Abend wurde die schöne Festesfeier mit einem Festmahle geschlossen, welches Vorstand und Ausschuss den Gästen veranstalteten, und bis Morgens um 3 Uhr hielt die freudige Stimmung die Gesellschaft beisammen. Ernste und scherzhafte Toaste, Gesang und anregende Diskussionen wechselten und gaben dem Mahle den Charakter bald eines brüderlich frohen Zusammenseins, bald eines weihevollen
,Symposions,. Trinksprüche auf die Ehrengäste, auf die beiden Herren Rabbiner zu Mainz, dann auf die Verdienste des
Vorstandes, namentlich seines würdigen, energisch ausdauernden
Vorsitzenden,
Herrn Leopold Goldschmidt, sowie auf das Zusammengehen des Ausschusses mit dem Vorstande in allen gemeinnützigen Angelegenheiten wurden in rheinländisch
kordialer Weise ausgebracht und beantwortet, wobei wir insbesondere die Erwiderung
des geistreichen Präses des Ausschusses, Herrn Dr. Creizenach, hervorheben müssen. Herr
Rabbiner Dr. Levi nahm von der Anwesenheit eines greisen (orthodoxen) Ausschussmitglieds die Gelegenheit, in einem Toaste den Wunsch
|
auszusprechen, dass diesem Beispiele die übrigen noch dissentierenden Alten in der Gemeinde folgen mögen. – Herr
Rabbiner Dr. Sobernheim sprach als Vertreter der Rheinprovinz und
würdigte in einem, allgemein Anklang findenden Toast den elften März, an welchem nun vor 41 Jahren (1812) jenes Preußische Emanzipationsedikt bei den Israeliten des Rheinlands so freudige
Hoffnung erregte. Seien diese auch teilweise wieder vereitelt worden, so dokumentierte doch dieser Tag die Macht einer voranschreitenden besseren Zeit, und in ihrem besseren Geiste sei auch das gestern
neugeweihte Gotteshaus errichtet worden. – Herr Rabbiner Süßkind sprach von dem Eindrucke, welchen das reiche Gaslicht am gestrigen Abende auf ihn machte, als er mit der
Tora in die Hallen des neuen Gotteshauses einzog. Das Gaslicht aber sei Naturlicht, ein Kind der Wissenschaft in der
neuen, die Tora das Licht Gottes, die Mutter des Glaubens aus der alten Zeit: beide sollen zusammengehen, die Wissenschaft und der Glaube; ihrem
Vereine galt des Redners innigster Trinkspruch. – Schreiber dieses
brachte das Wohl der israelitischen Gemeinde zu Mainz aus, indem er die Hoffnung aussprach, dass, wie an dieser schönen Stadt der Rhein- und Mainstrom nebeneinander hergehen, bis jener diesen überwältigt und brüderlich in sich hinüberzieht, so in der Gemeinde die strebende Mehrheit die widerstrebende Minderheit in sich hinüberziehe, dass beide als Ein majestätischer Strom dem Ziele der Ewigkeit zustreben, in der Tiefe das fromme Gefühl unergründlich bergend, und von ihrem Spiegel die Klarheit des religiösen Gedankens sonnig
wiedergebend.-
Möge der allgütige Gott die Wünsche alle in Erfüllung gehen lassen, welche
bei diesem Feste für das Wohl einer der ältesten Gemeinden in Israel rege
wurden! – (hebräisch und deutsch:) ,Möge Friede herrschen, o Mainz, in deiner Ringmauer,
Eintracht in deinen hochstrebenden Häusern! Um meiner Brüder und Freunde willen wünsche ich Frieden für dich,
umwillen des Hauses, unserem Gott und Herrn geweiht, bete ich für dein
Heil!,. |
Beilage (zu S. 60.)
Wir freuen uns, im folgenden Aktenstücke, - einem Briefe, welche Seine Excellenz der Staatsminister, Herr v.
Dalwigh zu Darmstadt, früher Regierungspräsident zu Mainz, an den
israelitischen Gemeinde-Vorstand daselbst geschrieben – einen Beweis der Hochachtung und der
Teilnahme, welchen die Regierung für das geschilderte Fest kundgeben, in weiteren Kreisen bekannt machen zu können. – Der Brief lautet:
,An den verehrlichen Vorstand der israelitischen Gemeinde zu Mainz! – In Ihrem gefälligen Schreiben vom 2. I. M. habe ich dankbar einen ehrenden Beweis fortdauernden freundlichen Andenkens erblickt. Ich war einst Zeuge der rühmlichen und unermüdeten Bestrebungen, durch welche es dem Vorstande der israelitischen Gemeinde zu Mainz gelungen ist, ein so würdiges Gotteshaus, wie das dortige, herzustellen, und ich kann nicht ohne wahre Befriedigung daran denken, dass unter meiner früheren Verwaltung ein so schönes Denkmal der Religiosität, des Bürgersinnes und des kräftigen Willens des israelitischen Religionsverbandes und der israelitischen Religionsgemeinde zu Mainz entstanden ist. – Mit wahrer Freude würde ich deshalb dem bedeutungsvollen Feste beigewohnt haben, zu dem ich von Ihnen mit einer Einladung beehrt worden bin. – Leider gestatten mir meine Amtsgeschäfte nicht, an dem von Ihnen bezeichneten Tage Darmstadt zu verlassen, aber meine Gedanken und Erinnerungen werden bei Ihnen sein. Entschuldigen Sie die Verspätung dieses Schreibens mit einer bisher nicht aufgegebenen Hoffnung, die Reise nach Mainz doch noch möglich machen zu können, und empfangen Sie die erneuten Versicherungen meiner wohlbekannten vorzüglichen Hochachtung.
Darmstadt, den 8. März 1853. (gez.) von Dalwigh.,
Bemerkung. Auf Anregung des Herrn Dr. Aub ist der Tag der Einweihung noch besonders durch Stiftung einer
Waisenanstalt geheiligt worden, wovon im nächsten Hefte. – Auch die Einweihungspredigt hoffen wir in einem der folgenden Hefte geben zu können.. |
Feier des Jahrestages der Einweihung der Synagoge -
zwei Israeliten wurden als Stadträte gewählt
(1854)
Artikel in der "Allgemeinen Zeitung des Judentums"
vom 13. März 1854: "In dem benachbarten Mainz wird Samstag, den 4. März der Jahrestag der Einweihung der dortigen prachtvollen Synagoge feierlich begangen werden. – Es wurden daselbst zwei Israeliten als
Stadträte gewählt, wobei nur das von Interesse ist, dass diese zwei Herren von ultramontaner Seite vorgeschlagen und durchgebracht wurden." |
Zerstörungen an der Synagoge durch die
Pulverturmexplosion (1857)
Anmerkung: am 18. November 1857 verwüstete eine Pulverturmexplosion Teile
der Stadt Mainz. Es gab dadurch 42 Todesfälle, 57 ganz zerstörte und 64
teilweise zerstörte Häuser. Kein Haus der Stadt blieb unbeschädigt. Auch die
St.-Stephan-Kirche wurde sehr stark beschädigt. Vgl. Wikipedia-Artikel
"Pulverturm (Mainz)"
Artikel in der "Allgemeinen Zeitung des Judentums"
vom 14. Dezember 1857: "Worms, im Dezember (1857).
(Privatmitteilung) In Folge der
furchtbaren Katastrophe in Mainz musste der Gottesdienst in den beiden Synagogen einige Zeit unterbrochen werden, da
die Oberfenster der Neusynagoge und die Fenster der Altsynagoge zerstört wurden. Dass keiner unserer Glaubensgenossen getötet, oder
tödlich verwundet verwundet wurde, haben Sie bereits berichtet; es verdient aber noch
mitgeteilt zu werden, dass der um 2 Uhr abgelöste Posten vor dem Pulverturm
ein österreichischer jüdischer Soldat war, der ein Opfer der Explosion geworden wäre, wenn er den Postendienst von 2-4 hätte versehen müssen; eine ebenso merkwürdige Lebensrettung ereignete sich in einem Hause, wo eine jüdische Dame (von hier gebürtig) ihren Säugling aus der Wiege nahm, wohinein im nächsten Augenblick ein schwerer Stein, durch das Fenster dringend, fiel. Dass unsere Glaubensgenossen unter Die
gehören, welche durch überraschend große Summen zur Unterstützung der Mainzer sich auszeichnen, brauche ich wohl kaum zu sagen; dagegen ist es ein seltsamer Zufall, dass zu den Mitgliedern des in Paris sich gebildeten
Hilfskomitees ein Dr. Bamberger (Israelit) gehört, welcher, in Mainz gebürtig, nach 1848 von dort flüchten musste; der hessische Gesandte in Paris darf ihm
keinen Pass nach Mainz erteilen, wohl aber mit ihm im Wert der Menschenliebe sich vereinigen, und hat das Haus, mit dem Dr. Bamberger liiert ist, 4000 Fl. zur Unterstützung der Mainzer
beigesteuert. - " |
In der Hauptsynagoge ("Orgel-Synagoge")
findet die Konfirmation statt - Kritik von orthodoxer Seite
(1869)
Artikel
in der Zeitschrift "Der Israelit" vom 19. Mai
1869: "Mainz, den 18. Mai. Wie alljährlich wurde auch eben am verflossenen Schabuoth-Feste die feierliche
Konfirmation in der Orgel-Synagoge vollzogen. Da während der Feierlichkeit Regenwetter eintrat, so standen Droschken und Equipagen vor der
Synagogen-Türe, und Konfirmanden und Konfirmandinnen, welche soeben die Heilighaltung der jüdischen Religion feierlich schworen hatten, fuhren nach Hause, den heiligen Festtag sofort
öffentlich entweihend! Welch ein frevelhaftes Spiel! –" |
30-jähriges Bestehen der Synagoge und 30-jähriges
Jubiläum von Chordirigent und Organist Johann Staab (1883)
Anmerkung: Johann Staab war nicht jüdischer Konfessionszugehörigkeit; die
Orgel konnte z.B. am Sabbat nicht von einem jüdischen Organisten gespielt
werden.
Artikel in der "Allgemeinen Zeitung des Judentums"
vom 27. März 1883: "Die israelitische Gemeinde zu Mainz feierte am 10. d. W. den
30-jährigen Bestand ihres neuen Gotteshauses und gleichzeitig das Jubiläum ihres Beamten, des Chordirigenten und Organisten Herrn
Johann Staab. Ist es schon keine leichte Aufgabe, ein solches
Amt treulich zu pflegen, so war es vor 30 Jahren für einen Andersgläubigen
doppelt schwierig, israelitische Gesänge chorgerecht einzuüben. Herr J. Staab verstand dies alles nicht nur vorzüglich, sondern
komponierte die Gesänge, die noch heute in der Gemeinde als mustergültig gelten. Die Festrede in der Synagoge hielt
Herr Rabbiner Dr. Salfeld. Nach beendigtem Gottesdienste
überreichte der Präses der Gemeinde,
Herr Oppenheim, im Namen derselben Herrn Staab einen silbernen Pokal. Am Abend fand ein Festmahl statt." |
50-jähriges Bestehen der Synagoge (1903)
Anmerkung: der genannte Prof. Fritz Volbach (1861-1940) war seit 1891
Musikdirektor in Mainz, Wikipedia-Artikel
Fritz Volbach.
Artikel im "Frankfurter Israelitischen Familienblatt"
vom 20. März 1903: "Mainz, 16. März. Samstag feierte die israelitische Gemeinde den Tag, an dem vor 50 Jahren die Synagoge eingeweiht wurde. Herr
Rabbiner Dr. Salfeld, der die Festpredigt hielt, hat zu dem Gedenktag eine Schrift:
,Bilder aus der jüdischen Vergangenheit Mainz, verfasst, die von mehr als nur lokalem Interesse ist. Eine von Herrn Professor Volbach komponierte stimmungsvolle fünfminütige Motette gelangte durch Mitglieder der Liedertafel und des Damengesangvereins, ein Psalm von Schubert unter Mitwirkung der Herren Werner und Suppantschitsch in würdiger Weise zum Vortrag." |
Überlegungen zum Neubau einer Synagoge
(1906)
Artikel im "Frankfurter Israelitischen Familienblatt"
vom 28. September 1906: "Mainz. Der Neubau der Synagoge wurde in einer vertraulichen Sitzung der
Höchstbesteuerten der israelitischen Gemeinde beraten. Als Platz für die Synagoge dürfte der Platz, auf dem die Gendarmeriekaserne steht, in Frage kommen, welcher Platz von der Regierung der Stadt zum Kaufe angeboten ist.
Gelegentlich des Roschhaschonoh-Festes (Neujahrsfestes) sollte die bisherige Synagoge polizeilich gesperrt werden, da bei der an den hohen Feiertagen herrschenden Überfüllung die Eingänge in Rücksicht auf Feuersgefahr unzulänglich sind; nur der Intervention des Herrn Stadtbaumeister Rühl ist es zu verdanken, dass die Polizei ihr Verbot wieder zurückzog." |
Soll die alte Synagoge umgebaut oder eine neue Synagoge gebaut
werden (1907)
Artikel im "Frankfurter Israelitischen Familienblatt"
vom 25. Oktober 1907: "Mainz. Erbauung einer neuen Synagoge oder Umbau der alten Synagoge?
Mit dieser Frage beschäftigte sich der Vorstand der israelitischen Gemeinde schon seit längerer Zeit. Es liegen zwei Kostenanschläge vor, nach dem einen derselben würde sich der Umbau der alten Synagoge mit einer Summe von 160.000
Mark bewerkstelligen lassen, während der Neubau einer Synagoge eine Summe von 350.000
Mark erfordern würde, ein Vertrag, den sowohl die Herren O. Hauswald und Gebr. Mertens, wie auch die Herren Architekten Jürgens und
Bachmann - Berlin, die Erbauer der neuen Synagoge in Frankfurt a. M. für ausreichend erklärten. Aus einer dem Vorstand unterbreiteten Eingabe, welche sich für den Neubau einer Synagoge ausspricht, entnehmen wir folgendes:
'Nachdem festgestellt worden ist, dass ohne weitere Erhöhung der Steuern ein Neubau durch
Vermieten der Plätze finanziert werden kann, und nachdem festgestellt worden ist, dass ein unserer Gemeinde würdiges Gotteshaus für 350.000 M. gebaut werden kann, kann man nie und nimmer begreifen, wie man 160.000 M. zum Umbau einer alten Synagoge ausgeben kann, deren Lage heute eine geradezu unwürdige ist. Die Störungen des Gottesdienstes durch den Lärm in den engen Gassen, das Geschrei unzähliger Kinder und streitender Weiber braucht den Besuchern der Synagoge gewiss nicht erwähnt zu
werden.' In der Eingabe wird dann weiter mitgeteilt, dass bereits für einen Umbau die Zinsen von 160.000 M. durch Steuern
gedeckt sind, dass mithin für einen Neubau nur nur noch 200.000 M. fehlen, dass aber die Zinsen und die Amortisation dieses Betrages durch die Sesselmiete leicht
gedeckt werden könne." |
Die alte Synagoge soll zu einem Museum für
israelitische Altertümer umgebaut werden (1912)
Artikel in der "Allgemeinen Zeitung des Judentums"
vom 20. September 1912: "Die in der Margaretengasse befindliche alte Synagoge zu Mainz wird zu einem Museum für israelitische Altertümer eingerichtet werden. Ein Teil der höchst wertvollen Vorhänge wurde in dem Trausaal der neuen Synagoge verwendet." |
| |
Artikel im "Frankfurter Israelitischen Familienblatt"
vom 25. September 1912: "Mainz. Nachdem die neue Synagoge in Benutzung genommen ist, soll die alte Synagoge in ein
Museum für jüdische Kunst umgewandelt werden." |
Die orthodoxen Betsäle/Synagogen der
"Israelitischen Religionsgesellschaft"
Da in der 1853 eingeweihten Hauptsynagoge eine Orgel
eingebaut und weitere Reformen durchgeführt wurden (Almemor nicht mehr in der
Mitte des Betsaales u.a.m.), beschlossen die Orthodoxen der Gemeinde, einen
eigenen - zunächst provisorischen - Betraum einzurichten und in diesem
Gottesdienst in traditioneller Weise abzuhalten. Seit
1855 wurden die Gottesdienste vorübergehend im Gasthaus "Zur Stadt
Darmstadt" abgehalten (Vordere Judengasse/Synagogenstraße 20).
Am 24. September 1856 konnte auf dem Eckgrundstück Flachsmarkt-/Margarethenstraße eine
orthodoxe Synagoge eingeweiht werden. Der Entwurf stammt von Architekt Albert.
Nach 20 Jahren zeigten sich allerdings erhebliche Bauschäden, sodass 1877 mit
den Planungen für einen grundlegenden Um- beziehungsweise Neubau begonnen wurde.
Eine neue orthodoxe Synagoge wurde nach Plänen von Stadtbaumeister Eduard Kreysig im
maurischen Stil erbaut und am 26. Mai 1879 eingeweiht. Sie bot 300 Personen Platz. Der Zugang erfolgte zwischen
den Gebäuden Margarethenstraße 19 und Flachsmarktstraße 25.
Beim Novemberpogrom 1938 wurde die Synagoge durch einen Brand beschädigt, die
Inneneinrichtung völlig zerstört. 1939/40 wurde das Gebäude abgebrochen. Ein
hebräischer Inschriftenstein ist erhalten, der 1983 auf dem jüdischen Friedhof
entdeckt wurde. Er war 1879 aus Palästina nach Mainz gebracht worden und hatte
auf dunklem Marmor eine vergoldete Inschrift (siehe Pressebericht unten von
1879) mit einem Zitat aus Psalm 102,15: "Denn es lieben deine Diener ihre (sc.
Zion,s) Steine und seinem Staube sind sie hold".
Texte
zur Geschichte der orthodoxen Betsäle / Synagogen der "Israelitischen
Religionsgesellschaft" aus jüdischen Periodika
Einweihung der Synagoge der Religionsgesellschaft
(1856)
Artikel
in der Zeitschrift "Jeschurun" vom Januar
1856: "Mainz. Am 24. Sept. fand die Einweihung der von dem frommen
Teile der hiesigen Gemeinde neuerbauten Synagoge, unter der freudigen und aufrichtigen
Teilnahme der gesamten Bevölkerung statt. Es ist dies der gerechte Tribut, der jedem aufrichtigen wackeren Streben, das für die Sache, die es als die heilige erkannt, vor keinem Opfer zurückschreckt, geschuldet wird. Denn wahrlich an Opfern hat es das kleine Häuflein Männer, deren Herz noch warm für die heilige Sache unseres Volkes schlägt, nicht fehlen lassen, und so wie es mit eine der trüben, schmerzlichen Folgen der Gegenwart ist, dass die frommen Juden um ihren Gewissenspflichten zu genügen gezwungen sind, die ihnen
teuren Stätten der Väter, an die sich so manche heilige Erinnerung knüpft, zu verlassen, so liegt doch gerade
in Erscheinungen wie hier, in der mit den größten Opfern verbundenen und unter den beständigen Anfeindungen der Gegner unternommenen Bildung einer neuen Gemeinde, in der
Erbauung einer Synagoge, in der Gründung einer Schule, die Bürgschaft, dass das alte
Judentum, das man so gerne als veraltet schimpft, doch noch nicht allen
Boden in den Herzen seiner Bekenner verloren, und dass es noch Kreise gibt, die es in sich zur Wahrheit machen wollen und ihm immer neue Stätten bereiten. Die Beschreibung der Festlichkeiten, die, wie schon bemerkt, unter der allgemeinen
Teilnahme der Behörden und der gesamten christlichen Bevölkerung stattfanden, so dass z.B. in den Straßen durch welche sich der Festzug bewegte, alle Häuser mit Flaggen, Fahnen, Teppichen
etc. geziert waren, werden Sie wohl schon aus den öffentlichen Blättern erfahren haben. Wir haben nur den einen Wunsch, dass unsere junge Gemeinde
unter der wackeren Führung ihres Rabbiners, des Herrn Dr. Lehmann, der durch seine treffliche Einweihungsrede von Neuem bewies, wie treu und aufrichtig er es mit der heiligen Sache meine, unter dem Beistande Gottes zu immer größerer
Blüte und Vollendung gelangen möge." |
Feier des Geburtstag des Großherzogs in der Synagoge
(1860)
Artikel in der Zeitschrift "Der Israelit" vom
13. Juni 1860: "Mainz, 10. Juni. In unserem gesegneten Lande, in welchem die
Emanzipation in voller Wirklichkeit schon seit einer langen Reihe von Jahren durchgeführt ist, und, was mehr ist als das, in welchem Gewissensfreiheit auch den gesetzestreuen Israeliten einer reformtüchtigen Majorität
gegenüber gegönnt ist, ist der 9. Juni, der Geburtstag des Monarchen, immer ein froher Festtag. Derselbe wurde auch gestern in der Synagoge der
israelitischen Religionsgesellschaft (orthodoxer Richtung) hierselbst unter großer
Beteiligung und in ergreifender Weise durch Gebet, Gesang (Psalmen und Ursprache) und Predigt gefeiert." |
Über den Gottesdienst in der Synagoge der
Religionsgesellschaft (1862)
Artikel
in der Zeitschrift "Der Israelit" vom 18. Juni
1862: "Der Gottesdienst in der Synagoge der isr.
Religionsgesellschaft zu Mainz,
von Oberlehrer Fuld.
Das innere Leben des Menschen, die Welt seiner Gedanken und Gefühle von dem höhern und für das höhere Leben, der Glaube an das Göttliche, der in ihm wohnt, die erreichte höhere Vollkommenheit seiner Seele, tritt in keiner Lebenserscheinung so
charakteristisch und eigentümlich hervor, wie in der öffentlichen Gottesverehrung. Je mehr der Mensch sich für das
Höhere und Himmlische zu begeistern vermag, desto tiefer hat sein religiöser Glaube Wurzel geschlagen, desto kräftiger ist seine religiöse Überzeugung geworden. Er nimmt vermöge seines inneren Lebens einen höheren Standpunkt auf der Stufenleiter menschlicher
Veredlung ein; denn er wird abgezogen von niederem Streben; sein Leben erhält eine höhere Richtung, ist einem höheren Lebenszweck gewidmet. Während der Geist des im sinnlichen Genusse Schwelgenden stets von seiner himmlischen Urquelle mehr entfernt wird und am Ende alle Empfänglichkeit für die Erfassung der höhern Wahrheit verliert, gewinnt der Geist des ersteren stets eine höhere Klarheit in der Erfassung göttlicher Dinge.
Dieses innere religiöse Leben ist einesteils ein Produkt unserer gewonnen religiösen
Erkenntnis; denn durch dieselbe entsteht der religiöse Gedanke, und dieser hat die Erweckung religiöser Gefühle, deren Keime im menschlichen Herzen vorhanden sind, zur unmittelbaren Folge.
Der Geist des Israeliten wird durch das religiöse Wissen nach Oben gelenkt. Die Menschheit tritt ihm in ihren höchsten Idealen vor Augen, und eine neue Gedanken- und Gefühlswelt muss die
notwendige Folge davon sein. Je reicher und klarer die gewonnene Erkenntnis, desto reicher auch das innere Leben,
wie unsere Weisen sagen (hebräisch und deutsch:) 'eine reichere
Torakenntnis schafft ein reicheres Leben'; desto kräftiger werden auch diese |
durch die heilige Lehre geweckten Gefühle in den religiösen Handlungen zu Tage treten. Diese äußere Erscheinung der religiösen Gedankenwelt muss dadurch bei der öffentlichen Gottesverehrung da am meisten hervortreten, wo eine gegenseitige
Anregung stattfindet und wo die religiösen Gefühle zur freien Entfaltung kommen. Freilich müssen je nach der individuellen Beschaffenheit der menschlichen Temperamente auch bei gleichem Erkenntnisgrade, Grade des Unterschiedes in der Erscheinung nach Außen
stattfinden; aber diese Unterschiede berühren das eigentliche Wesen des in der
Tat sich ausprägenden religiösen Lebens nicht.
Andernteils ist das innere religiöse Leben ein Ergebnis der auf den Menschen so mächtig einwirkenden Wechselfälle des
Lebens; doch diese vermögen wohl momentan den Sinn demütig zu machen, ein inneres religiöses Leben vermögen sie jedoch nur dann zu schaffen, wenn eine religiöse Erkenntnis mitwirkt.
Diese innere Welt des religiösen Denkens und Fühlens tritt uns – wir haben dies an den jüngsten Feiertagen wieder so recht in vollem
Maße empfunden – in der herrlichsten und erhebensten Entfaltung in der Synagoge der
israelitischen Religionsgesellschaft zu Mainz entgegen. Auf diese andächtige Versammlung hinblickend, fühlen wir uns mächtig ergriffen und zu gleicher Andacht angeregt. Wir glauben uns zurückversetzt in jene schöne Periode der Vergangenheit, wo das jüdisch religiöse Leben so kräftig zu Tage trat, wo die heilige Lehre noch das ganze israelitische Leben beherrschte. Wir sehen, dass diese Gemeinde nicht aus den Katechismen der Neuzeit die Begeisterung für die Bewahrung ihrer alten Institutionen geschöpft, sondern aus dem Munde gottesbegeisterter Lehrer, an der
unmittelbaren Quelle der Tora selbst. Es ist der religiöse Ernst, es ist die tiefste, unerschütterlichste religiöse Überzeugung; es ist der
unverkennbarste Eifer für die genaue vorschriftsmäßige Beobachtung der göttlichen Gebote; es ist die alte in ihrer vollsten Herzlichkeit sich entfaltende Anhänglichkeit an den väterlichen Glauben; es ist die Reihe der in der heiligen Sprache liegenden Klänge, die uns mächtig anregen und den Unterschied zwischen den urkräftigen alten und den nach Willkür beschnittenen lückenvollen und mangelhaften Institutionen der Neuzeit fühlbar machen. Dabei würde man aber irren, wenn man glauben wollte, weil das religiöse
Gemüt hier so ohne allen Formenzwang der Neuzeit sich naturwüchsig entfalten kann, es würde den ästhetischen Anforderungen der Gegenwart nicht Rechnung tragen, und es wäre in dieser Beziehung auf die äußere Einwirkung keine Rücksicht genommen. Freilich bedarf es in dieser Synagoge der Einwirkung von Außen durch kirchliche Musik und Choräle nicht. Den Besuchenden ist der Besuch des Gotteshauses religiöses Bedürfnis; sie bringen die andächtige Stimmung mit, ohne dass dieselbe durch Choralgesang und Orgelspiel geweckt zu werden braucht;
dessen ungeachtet sind die ästhetischen Anforderungen der Neuzeit nicht unbeachtet geblieben. Die Gemeinde besitzt zunächst einen Vorsänger, begabt mit einer herrlichen Stimme und voll warmer Begeisterung für die Heiligkeit seines Amtes. Mit ihm wirkt, unter der Leitung eines tüchtigen Gesangslehrers, ein Chor von Dilettanten und Schulkindern, dessen Leistungen hinter denen anderer großer Städte durchaus nicht zurückstehen, und der einer immer größeren Vollkommenheit
entgegengehen muss, weil seine Mitglieder nicht, wie in anderen Städten, des Lohnes wegen, sondern rein der guten Sache ihre Gesangskräfte widmen. Das Mitwirken eines Chors bestand schon in der alten Synagoge seit etwa 30 Jahren. Seine Wirksamkeit greift indessen nicht so tief in das Wesen der Gebete ein, dass die Gemeinde zur Passivität gedrängt würde. Er begleitet den Vorsänger bei der Einleitung des Sabbats
(lecha dodi etc. etc.); dahingegen bei solchen Gebeten, da die Gemeinde in ihrer Gesamtheit mitzubeten hat, wie z.B. bei der
keduscha, wirkt kein Chor mit. Dabei ist hervorzuheben, dass die Eigentümlichkeiten
der hebräischen Melodien in den Chorälen beibehalten sind, so dass dieselben weder zu viel an das Kirchliche, noch an das Profane streifen. Betrachten wir die winzigen Anfänge dieser Gemeinde, so müssen wir staunen, wie aus so Geringem sich so Großes entwickelt hat. Wenn der Mensch für die höchsten und heiligen Güter, die er besitzt, Opfer zu bringen vermag, dann erscheint er uns in seinem edelsten Streben.
Wohl lassen sich hier die Worte des Psalmisten anwenden: (hebräisch und
deutsch aus Psalm 118,23:) 'Von dem Ewigen ist dieses geworden; uns scheint es
wunderbar.' Es bietet uns die Entstehung dieser Gemeinde die geschichtliche Wahrheit dar, dass der Allgütige stets für die Erhaltung jener Prinzipien Sorge trägt, aus denen das sittliche Leben der
Nationen seine Nahrung zieht und durch welche das edlere Menschentum sich wieder aufbaut. Noch immer, wenn das Streben des Menschen
allzu sehr auf das Materielle gerichtet war und die Gefahr sich mehrte, dass der Mensch herabsinke von seiner höheren Würde und seinem Verfall entgegengehe, da trug die göttliche Vorsehung Sorge, dass in einzelnen Menschen seine Lehre unverfälscht genährt und gepflegt wurde, damit sie sich durch diese Weniger wieder ausbreite und das Gemeingut Vieler werde; aber eine weitere Lehre können wir noch aus den
Erscheinungen des besprochenen öffentlichen Gottesdienstes ziehen. Die zu Tage tretende Begeisterung bei der Gottesverehrung hängt von dem
Maße der gewonnenen |
religiösen Erkenntnis ab; also je mehr wir unsere Kleinen an dem Born der Erkenntnis trinken lassen, desto mehr werden wir ein kräftiges, andauerndes inneres religiöses Leben schaffen, dass allein unserem Gottesdienst seine Erhabenheit für die Zukunft zu bewahren mag.
Eine reichere Torakenntnis schafft ein reicheres Leben.
Nachbemerkung der Redaktion: Wir haben noch einige Worte über den, vom geehrten Herrn Einsender besprochenen
sogenannten Chor hinzuzufügen. Bereits im Jahre 1831 wurde in Mainz von einem der modernen Richtung angehörigen Vorstande Chorgesang eingeführt; als wir im Jahre 1856 unser, aus unseren eigenen Mitteln erbauten Gotteshaus einweihten, durften wir den Chor nicht
emendieren, ohne uns der Gefahr auszusetzen, viele Gemüter unserem Gottesdienste und damit der heiligen Sache des
Judentums zu entfremden. Unsere Schwester-Religionsgesellschaft in Frankfurt a. M. befand sich in derselben Lage und ging uns darin, wie in vielen anderen Dingen, mit ihrem Beispiele voran. Wir sorgten jedoch dafür, dass der Chorgesang auf ein Minimum beschränkt wurde und in der
Tat mehr als in ästhetischer Weise geregelt, alte Institut von Chasan
(Kantor) und Meschorerim ist. Es wird vom Chore nichts gesungen als Lecha
Dodi, die Gesangsstücken beim beim Herausnehmen und Zurückstellen der
Tora, Hodu und im Hallelgebete, und Jigdal an den Festabenden."
|
Trauergottesdienst in der Synagoge der Israelitischen
Religionsgesellschaft für die verstorbene Großherzogin Mathilde
(1862)
Artikel in der Zeitschrift "Der Israelit" vom
2. Juli 1862: "Mainz, 23. Juni. Am 22. dieses Monats wurde in der Synagoge der
israelitischen Religionsgesellschaft in Folge Anordnung hoher Regierung ein feierlicher Trauergottesdienst für höchstselige Großherzogin
Mathilde abgehalten. Die Synagoge, schwarz drapiert und entsprechend beleuchtet, gewährte einen imposanten Anblick. Die Feier, welche circa 1 ½ Stunden dauerte, machte auf die zahlreichen Anwesenden einen ergreifenden Eindruck. Bei Gelegenheit des Seelengebetes wurden 50 fl. gespendet, von denen die Hälfte für jüdische, die Hälfte für christliche Arme bestimmt wurde. Die Liebe ihrer
Untertanen aller Konfessionen und Glaubensschattierungen ist das schönste Monument, welches sich die Fürsten setzen können. Es war dieser Gedanke, von
Herrn Dr. Lehmann in der Trauerrede gebührend hervorgehoben, welcher in Aller Herzen
Anklang und Wiederhall fand. (Mainzer Anzeiger.)" |
Einweihung einer neuen Torarolle für die Synagoge der
Israelitischen Religionsgesellschaft (1864)
Artikel in der Zeitschrift "Der Israelit" vom
14. September 1864: "Mainz, den 8. Sept. Am 2., 3. und 4. d. M. feierte die
israelitischen Religionsgesellschaft hier das Fest der Einweihung einer neuen
Thorarolle, welche der Verein Liviat Chen hatte schreiben lassen. Freitag, den 2.
September, war zur Vorfeier im Lokale des hiesigen Krankenvereins, welche zu diesem Zweck auf auf das Wundervollste mit Blumen geschmückt war, die Thorarolle in einer prachtvollen eigens zu diesem Zweck hergerichtet Halle dem Publikum zur Ansicht dargeboten, für dessen
Bewirtung der Verein Liviat Chen in splendidester Weise gesorgt hatte. Der Herausgeber dieser Blätter hielt die Festrede. Der geräumige Saal konnte die herzuströmende Menge nicht fassen, und so wogte es denn ab und zu bis nahe an Mitternacht.
Samstag, den 3. September, wurde in feierlichem Festzuge, an welchem sich die Schüler und Schülerinnen der Unterrichtsanstalt der
israelitischen Religionsgesellschaft beteiligten, die Thorarolle in die Synagoge getragen, in deren Vorhof die ältesten Mitglieder mit den anderen Thorarollen im Arme dieselben empfingen. Nachdem sie am Simchat Thora üblichen Halaphot
(Umzüge) um die Bimah (Bereich mit dem Vorlespult) vollzogen worden waren, wurde die
Sidra Schophtim aus der neuen Thorarolle verlesen. Dieselbe ist vom hiesigen
Sofer (Toraschreiber) Herrn Heimann mit großer Sorgfalt und Eleganz geschrieben. Beim Aufrufe zur Thora wurde reichliche Spenden zu
wohltätigen Zwecken gelobt.
Die Synagoge war buchstäblich überfüllt. Der Herausgeber dieser Blätter hielt wiederum die Festpredigt.
Sonntag Nachmittags versammelten sich die Mitglieder des Vereins Leviat Chen
zu einem Festessen, welches sichtlich das Gepräge einer Freude
über die Erfüllung einer religiösen Weisung trug und die Teilnehmer
in der angeregteste Stimmung bis nach Mitternacht vereinigte. Belehrende sowohl als launige Vorträge wurden vielfach gehalten, und noch lange wird diese schöne Feier allen denen im Gedächtnis bleiben, die ihr beizuwohnen das Glück hatten." |
Friedensfeier in der Synagoge der Religionsgesellschaft
(1871)
Artikel in der Zeitschrift "Der Israelit" vom
8. März 1871: "Mainz, 7. März. Die Friedensfeier in der Synagoge der
israelitischen Religionsgesellschaft machte dadurch einen ganz besonders erhebenden Eindruck, dass circa 100 deutsche Soldaten jüdischen Glaubens, darunter viele mit dem
eisernen Kreuze geschmückt, und ungefähr 50 französische Soldaten dem Gottesdienste anwohnten. Herr Rabbiner Dr. Lehmann wies in der Festpredigt besonders darauf hin, dass die Juden in Deutschland als Deutsche, in Frankreich als Franzosen mit großer Hingebung ihre Pflichten erfüllt und gern und freudig für ihr Vaterland ihr Leben eingesetzt haben. Als der
Redner die Schrecken des Krieges schilderte, vor denen Gott Deutschland gnädiglich bewahrt hat, als er das Wort an die tapferen Krieger richtete und sie zum Dank gegen Gott, der sie von so vielen Gefahren errettet, aufforderte, als er die Väter und Mütter anredete, die jetzt nicht mehr für das Leben ihrer noch auf dem Kriegsschauplatz befindlichen Söhne zu sorgen und zu bangen haben, blieb kein Auge
tränenleer. Herr Cantor Marx und der von Herrn Wolf dirigierte Chor trugen die Festgesänge in bekannter Meisterschaft vor. Die Feier dauerte 1 ½ Stunden.
(Mainzer Anzeiger.)" |
Über den Bau der Synagoge der Israelitischen
Religionsgesellschaft und den Inschriftenstein (1879)
Anmerkung: dieser Inschriftenstein ist bis zur Gegenwart erhalten. Er hat die
Zerstörung und den Abbruch der Synagoge 1938 überstanden und wurde 1983 auf
dem Friedhof der Gemeinde wiederentdeckt.
Artikel in der Zeitschrift "Der Israelit" vom
2. April 1879: "Mainz, 31. März. Der Neubau der Synagoge der Israel. Religionsgesellschaft geht nunmehr seiner baldigen Vollendung entgegen. Derselbe, im maurischen Stile, von dem genialen Stadtbaumeister Herrn Kreißig ausgeführt, wird unsrer Stadt zur Zierde gereichen. Ein Hauptschmuck der Synagoge wird heute darin befestigt. Es ist dies ein Stein aus dunklem Marmor, welcher Herr Jechiel Bril,
Redakteur der hebräischen Ausgabe des
'Israelit' (Halebanon), aus Palästina hat kommen lassen.
Der Stein trägt die nachfolgende, vergoldete Inschrift: (hebräisch und
deutsch:)
'Dieser aus dem heiligen Lande gebrachte Stein ruft uns aus der Mauer
entgegen: ' ' Es lieben deiner Diener ihre (Zion's) Steine und denken ihres Staubes wehmuthsvoll' (Psalm 102, V. 15)
Die feierliche Einweihung der Synagoge wird wahrscheinlich am 4. Siwan (26. Mai), zwei Tage vor dem Wochenfeste, stattfinden." |
Ankündigung der Einweihung der neuen Synagoge der Religionsgesellschaft
(1879)
Artikel
in der Zeitschrift "Der Israelit" vom 21. Mai
1879: "Mainz, 19. Mai. Die feierliche Einweihung der neuerbauten Synagoge der hiesigen
israelitischen Religionsgemeinschaft findet (hebräisch) am 26. Mai, Nachmittags 4 Uhr, statt; die Abschiedsfeier in der bisherigen Interims-Synagoge (Mitternachtstraße 12) beginnt um 3 ½ Uhr."
|
Die Einweihung der Synagoge der Religionsgesellschaft
(1879)
Artikel in der Zeitschrift "Der Israelit" vom 4. Juni
1879:
"Die Einweihung der neuerbauten Synagoge der israelitischen Religionsgesellschaft zu Mainz.
Mainz, 27. Mai.
Es war eine schöne bezaubernde Feier, von der wir unsere geehrten Lesern heute berichten.
Die israelitische Religionsgesellschaft hat sich vor 23 Jahren ein Haus gebaut,
das durch die Erstarkung der Orthodoxie in unserer Stadt, wiewohl Anfangs zu groß, bald zu klein war. Da die Verhältnisse keinen Umbau gestatteten – die Fundamente des Gebäudes waren in Folge der
bekannten Pulverturmexplosion am 18. November 1857 stark erschüttert – so erheischte der Neubau große, für die Religionsgesellschaft fast unerschwingliche Opfer. Erst im Jahre 1877, als die Zustände fast unerträglich geworden waren, entschloss man sich, schweren Herzens, zu dem Neubau, der nunmehr durch Gottes gnädige Fürsorge gestern seiner Bestimmung ist übergeben worden.
Die neuerbaute Synagoge ist ein wunderbar schönes Gebäude, dessen Anblick alle Besucher entzückt; Herr
Stadtbaumeister Kreißig hat dadurch seinem Ingenium ein Denkmal gesetzt, das noch spätere Geschlechter bewundern werden.
Schon Samstag, 25. Mai, herrschte in der ganzen Stadt eine festliche Stimmung, und schon kamen von nah und fern die Gäste herbei; wir wollen von den
Auswärtigen gleich hier einige nennen: Herr Dr. M. Hirsch, Direktor
der Realschule der israelitischen Religionsgesellschaft zu Frankfurt a M. (Herr
Rabbiner Hirsch war leider durch Unwohlsein verhindert) und der Gesamt-Vorstand der genannten Gesellschaft, Herr
Rabbiner Dr. Marx von Darmstadt, von dem dortigen Vorstande begleitet, Herr
Rabbiner Dr. Cahn von Wiesbaden nebst den Vorstehern der
altisraelitischen Kultusgemeinde, Herr Rabbiner Dr. Sänger von Bingen, ebenfalls in Begleitung des dortigen Vorstandes, Herr
Bezirksrabbiner Dr. Salvendi von Dürkheim, Herr Rabbiner Dr. Goitein von
Karlsruhe," |
Herr
Provinzial-Rabbiner Dr. Cahn von Fulda und viele, viele Andere.
Um 3 ½ Uhr begann die Feier in dem bisherigen Betlokale mit dem Minchah-Gebete. Dann wurde
vom Vorsänger und der Gemeinde der 132. Psalm rezitiert. Hierauf bestieg der Herausgeber dieser Blätter die Kanzel und sprach ungefähr Folgendes:
,So haben wir denn, teure Freunde, zum letzten Male in diesem Hause, unser Gebet zu Gott emporgesandt, in diesem Hause, das uns länger als zwei
Jahre eine Stätte der Andacht gewesen, wohin wir täglich, Morgens und Abends, unsere Schritte lenkten, um uns zu unserem Vater im Himmel im Gebet zu erheben, wo wir das Wort unseres Gottes verlesen hörten, wo wir täglich, und namentlich am Sabbat, Belehrung suchten und fanden. Es ist eine uns liebgewordene Stätte, von der wir jetzt für immer scheiden! Was Wunder, dass mitten in unserem Jubel sich die
Zähre der Wehmut mischt – namentlich, wenn wir bedenken, dass unseren Herzen so
teure Männer und Frauen, die mit einzogen in dieses Haus, unterdes sind eingezogen in das Haus unseres ewigen Vaters! Ich will nun einen nennen, den unvergesslichen Gründer unserer Religions-Gesellschaft, meinen
teuren Schwiegervater Rabbi Samuel Bondi - das Andenken an den
Gerechten ist zum Segen, der an dieser Stätte noch wenige Wochen vor seinem Hinscheiden beim Ausgange des Versöhnungsfestes die heiligen
Gottesnamen - Schemot, verkündet. – Doch, bannen wir die Gefühle der Wehmut am Tag der Freude,
(hebräisch und deutsch:) ,Wenn auch Vater und Mutter mich verlassen – Gott nimmt mich
auf!, (Psalm 27, V. 10) Gottes Majestät ist mit uns hierher gezogen an diese bescheidene Stätte, Gottes Majestät zieht mit uns in das neuerbaute, herrliche Haus, in das wir unsere
Heiligtümer zu bringen im Begriffe stehen. Zuvor aber lasst uns die Einheit Seines Namens, die ewige Dauer Seiner Regierung, Sein göttliches Walten auf Erden in herzinnigem Ausruf verkünden,
wie Israel es zu tun pflegt in den feierlichen Augenblicken des Lebens: 'Schma Jisrael
... Baruch schem Kewod... Adonai hu haelohjim... adonai melech..."
Hierauf wurde unter den üblichen Gesängen die Thora-Rollen den anwesenden Rabbinen und Vorstehern übergeben, und der Festzug setzte sich in Bewegung durch die im reichen Fahnenschmuck prangenden Straßen, durch die zahlreiche Menge, die an beiden Seiten ehrfurchtsvoll Spalier bildete.
Voran zogen die Schülerinnen, dann die Schüler der Unterrichtsanstalten der
israelitischen Religionsgesellschaft, dann folgten die Sänger (Synagogen-Gesang-Verein), die Rabbinen und übrigen Träger der Thora-Rollen, ein Jeder von zwei Ältesten der Gemeinde begleitet,
dann viele Mitglieder der Religions-Gesellschaft und fremde Gäste. Unter
Absingung des 122. Psalmes ('ich freute mich über
die, die zu mir sagen: lasset uns ziehen zum Haus des Herrn...') bewegte sich der Zug in den festlich geschmückten Synagogenhof,
wo sieben junge Mädchen durch Vortragung eines Gedichtes – die eine,
Fräulein Bertha Bondi, sprach das Gedicht, die anderen wiederholten den Refrain – der Weihe des Momentes Ausdruck verliehen. Hierauf
wurde dem Erbauer des Hauses der Schlüssel überreicht, der ihn dem
Bürgermeister der Stadt Mainz,
Herrn Dr. Dumont, überreichte, nachdem er hervorgehoben, dass diese feierliche Übergabe des Schlüssels an die höchste Behörde der Stadt ein Symbol sei, dass dieses Gebäude ein öffentliches, das sich gleich anderen öffentlichen Gebäuden des besondern Schutz der Gesetze erfreue. Der Herr Bürgermeister sprach dann, sichtlich ergriffen, einige erhebende Worte, in welchen er auf die hohe Bedeutung und den heiligen Zweck des Gotteshauses hinwies.
Nun begann die Hauptfeier. Die höchsten Behörden waren dazu erschienen.
Seine Excellenz, der Gouverneur der Festung Mainz, Herr General von Pritzelwitz, die Obersten der hier
garnisonierenden Regimenter, Herr Bürgermeister Dr. Dumont und dessen beide
Adjunkten Herr Dr. Oechsner und Herr Reinach, Herr
Gerichtspräsident Dr. Aull, Herr Kreisassessor Dr. Breiter, der erste evangelische Geistliche des
Großherzogtums Herr Prälat Dr. Schmitt, Herr Pfarrer Dr.
Steinmetz, Herr Pfarrer Büttel, Herr Garnisons-Pfarrer
Clausius, Herr Pfarrer Hieronymie, Herr Polizeirat
Künstler, der Landtagsabgeordnete Herr Kommerzienrat Betz, der
Gymnasialdirektor Herr Dr. Löhbach, der Direktor der Realschule Herr Dr. Schödler, die Vorsteher der Gemeinde und die Rabbinen derselben
Herr Dr. Cahn und Herr Dr. Fürst und viele, viele Andere. Das geräumige Haus war gefüllt, fast überfüllt und dabei war die Verwaltung mit der
Verteilung der Eintrittskarten überaus sparsam vorgegangen – dennoch mögen etwa 1200 Personen anwesend gewesen sein.
Unter den Klängen des von Herrn Chordirigenten Wolf komponierten Festmarsches zog man in das Gotteshaus ein. Hierauf wurde
mah towu gesungen und der 84. Psalm (,wie herrlich sind deine
Wohnungen...,) rezitiert; dann fanden unter den üblichen Gesängen
|
die 7 Umzüge um den
Almemor statt, worauf die Träger der Tora-Rollen Almemor bestiegen. Der Herausgeber dieser Blätter sprach dann die vorgeschriebene Berachah
(hatow umantiw) siehe Schulchan-Aruch Orach Chajim Cap. 223, Baër Hêtêb § 9) und den Segen für den deutschen Kaiser, den Großherzog von Hessen, für Vaterstadt und Vaterland, wie er hier in Mainz bei besonders feierlichen Gelegenheiten (anstatt des sonst üblichen
haniten teschuah usw.)) gesprochen wird. – Nachdem die
Tora-Rollen unter den üblichen Gesängen in die heilige Lade verbracht worden, hielt der Herausgeber dieser Blätter die Festrede, deren hauptsächlichen Inhalt wir im Nachstehenden wiedergeben:
Festpredigt.
(Hebräisch und deutsch:) ,Also hat Gott gesprochen: Die Himmel sind mehr Thron und die Erde ist meiner Füße Schemel! – welches ist das Haus, das ihr mir bauen wollt, und welches der Ort meiner Ruhestätte’?,
(hebräisch und deutsch:) ,Und alles Dieses hat meine Hand gemacht, und alles Dieses ist durch Gottes Wort entstanden, und nur auf
den schaue ich, der bescheiden und zerknirschten Gemütes ehrfurchtsvoll mein Wort
beachtet!, (Jesaja Kapitel 66, Verse 1 und 2)
Allmächtiger Schöpfer des Weltalls! Die Himmel mit ihren zahllosen Welten, die wir Gestirne nennen, sie sind Dein Thron, und die Erde, die wir bewohnen, die uns winzigen Menschen so über alle Vorstellung groß erscheint, ist deiner Füße Schemel – und wir könnten es wagen, Dir, o Gott ein Haus zu bauen, eine Stätte, auf der Deine
Majestät throne? Aber Du, o Gott, der du schauest auf den Demütigen, auf
den, der zerknirschten Gemütes ehrfurchtsvoll Dein Wort beachtet, hast zu
uns gesprochen durch Deinen Propheten (hebräisch und deutsch:) ,Und ich werde bei ihnen sein auch in den kleinsten
Heiligtümern in allen Ländern, in die sie wandern werden (Ezechiel Kapitel 11.
Vers 16), (hebräisch und deutsch:) ,Das sind, sagen die Weisen (Megillah 29)
die Synagogen und Lehrhäuser. So lasse, Allbarmherziger, in diesem
kleinen Heiligtum, deine Majestät walten, auf dass wir Dir dienen in Liebe und in Wahrheit, Amen! –
Andächtige Gemeinde, verehrte Versammlung! An den Pforten des Gotteshauses, durch die wir soeben mit unseren heiligen Thora-Rollen eingezogen sind, begrüßt uns der
Ausspruch des Propheten Jesaias (Kapitel 26, Vers 2) (hebräisch und
deutsch:), ,Öffnet die Pforten, damit einziehe ein gerechtes Volk, das die Treue
bewahrt., Diese Worte der heiligen Schrift, welche wir an den Eingang unseres Gotteshaus gestellt haben, mögen auch den
Gegenstand unserer heutigen Betrachtungen bilden, und so will ich es denn versuchen, darzulegen, welches der Zweck, die Bestimmung und die Weihe des Hauses ist, dessen Pforten sich uns geöffnet haben und wie die Gemeinde sein soll, die in dasselbe würdig einziehe.
I.
Der Zweck, die Bestimmung und die Weihe des jüdischen Gotteshauses werden genau angegeben durch die Namen, die man demselben beizulegen pflegt:
Bet HaKnesset, das Haus der Versammlung, mit der griechischen
Bezeichnung Synagoge,
Bet HaTefilah, das Bethaus, und endlich Bet HaMidrasch, das Lehrhaus oder in der allgemein üblichen Bezeichnung: die Schule.
Vor Allem soll uns das Gotteshaus sein ein Haus der Versammlung Bet
haKnesset; es sei der Mittelpunkt der Gemeinde, der Mittelpunkt des religiösen Lebens; zwei- oder dreimal täglich besucht der Jude diese heilige Stätte, der
neugeborene Knabe empfängt hier am achten Tage seines Lebens die religiöse Weihe und wenn die junge Mutter, nach überstandener Gefahr, zum ersten Male das Haus verlässt, so wendet sie
hierher ihre Schritte; die freudigsten wie die traurigsten Ereignisse des Lebens finden hier ihren Wiederhall; hier wird der Knabe zum Manne, indem er zur
Tora gerufen wird und aus ihr einen Abschnitt vorließt, hier ertönt das Kaddisch aus
wehmutserfülltem Herzen nach dem Heimgange der geliebten Eltern, hier versammelt sich die Gemeinde zu gemeinsamer, ergreifender Andacht; denn die eigentliche Bestimmung der Synagoge ist das Gebet; sie soll nicht nur sei ein
Bet HaKnesset, ein Haus der Versammlung, sie soll auch ein Bet
HaTefillah, ein Haus des Gebetes sein.
Eine der Säulen, auf denen die sittliche Weltordnung beruht, ist nach der Lehre unserer Weisen
die Awodah, der Gottesdienst. Einst stand uns in Jerusalem ein heiliges Haus, dessen Erbauer Könige, dessen Diener Hohepriester und Propheten waren. Dort wurde der heilige Dienst vollbracht nach der von Gott eingesetzten Weise, dort brachten in Reinheit und Heiligkeit die Priester die von Gott befohlenen Opfer, dort sangen die Leviten die Psalmen Davids im Beisein der Abgesandten Israels. Von allem Dem ist uns nichts geblieben als das Gebet, die
awodah schäbalew, der im Herzen wurzelnde und aus ihm emporsteigende Gottesdienst,
|
und der
awodah schäbalew, dem Gottesdienste des Herzens, ist dieses Haus bestimmt. Hier fühlen wir uns nahe unserem Vater im Himmel, hier erflehen wir seinen mächtigen Beistand, hier danken wir ihm für all das Gute, dass er uns in so reichem
Maße zu Teil werden lässt. In dieses Haus mögen eintreten der Schuldbeladene, seine Vergehen bereuen, und Gott wird die Last hinwegnehmen von seinem Herzen und ihm Gnade und Verzeihung zu
Teil werden lassen; in dieses Haus möge treten der Verzweifelnde, zu ihm sich wenden, dem Helfer und Retter – so wird er neue Kraft gewinnen, den Stürmen des
Lebens zu begegnen; und der Reichgesegnete, er möge an diesem heiligen Orte innewerden der Größe und Allmacht unseres Gottes und
Demut und Bescheidenheit lernen; hierher möge man führen die zarten Kinder und sie gewöhnen, Gott zu fürchten und zu lieben.
Aber noch eine dritte Bestimmung hat das jüdische Gotteshaus: es soll sein ein
Bet HaMidrasch, ein Lehrhaus, eine Schule, und das ist des Hauses eigentliche Weihe,
nach dem Ausspruche unserer Weisen im Midrasch (hebräisch und deutsch): 'Rabbi Saimon sagte: Wann wird der Heilige, gelobt sei Er, gefeiert in seiner Welt? Wann Israel sich in den Synagogen, in den Schulen versammelt, um Belehrung zu vernehmen aus dem Munde seiner Weisen. Dann erscheint Gott in seiner Majestät und Herrlichkeit, wie es heißt:
'In der Menge des Volkes ist die Majestät des Königs.' (Proverbia Cap.
11) Eine Schule soll unser Gotteshaus sein, eine Schule im edelsten Sinne des Wortes. Hier sollen wir die Grundsätze unserer heiligen Religion kennen lernen und die Inbegriffe ihrer Lehre; an dieser heiligen Stätte soll der Lehrende die Herzen seiner
Hörer gewinnen für ein reines, gotterfülltes Leben, hier soll unser heiliges Gotteswort erklärt und dem menschlichen Verständnisse nahe gebracht werden, unsere heilige
Tora, von der es heißt: (hebräisch und deutsch), 'ihren Mund öffnet sie mir Weisheit und eine Lehre der Liebe ist auf ihrer
Zunge.' (hebräisch und deutsch:). 'Rabbi Jose sagte, das bezieht sich auf das erste der fünf Bücher
Moses'. (hebräisch und deutsch:) 'den Mund öffnet sie mit Weisheit' – das ist die Geschichte der Schöpfung durch den allmächtigen Gott, - die höchste Weisheit, wie sie noch kein philosophisches Lehrsystem errungen hat,
(hebräisch und deutsch:) ,und eine Lehre der Liebe auf ihrer Zunge,, indem sie uns lehrt, wie wir, gleich Abraham,
Jizchak, Jakob die Menschheit lieben und, gleich jenen Vätern unseres Volkes,
Tugend und Sittlichkeit zum Inhalte unseres Lebens machen sollen. Und so
heißt es von Abraham: (hebräisch und deutsch:) ,Und er saß am Eingang
seines Zeltes wie die Wärme des Tages, (1. Buch Mose Kapitel 18, Vers 1) Wie die Wärme des Tages, wie die Sonne scheint über Reiche und Arme, über Vornehme und Geringe, über Gute und Böse, über Fromme und Unfromme, über Fremde und Einheimische, so saß Abraham am Eingang seines Zeltes, die müden hungrigen Wanderer erwartend, um sie zu erquicken, zu beherbergen,
ihnen Gutes im reichsten Maße zu erweisen. (hebräisch und deutsch:) ,so
lehrt uns Gottes Wort Liebe üben!,
II. (Hebräisch und deutsch:) , Öffnet die Pforten, dass einziehe ein gerechtes Volk,
das die Treue bewahrt.,
Wir haben nunmehr darzulegen versucht den Zweck, die Bestimmung, die Weihe des Hauses, dessen Pforten sich und geöffnet haben. Suchen wir auch zu erkennen, wie die Gemeinde sein soll, die in ein solches Haus einzuziehen würdig ist.
Es heißt in dem Pirke (Spruch) des Rabbi Elieser: (hebräisch und deutsch)
,Zwei Wege gibt es, deren Vereinigung zum ewige Heile führt, und wenn der Mensch auf diesen beiden Wegen wandelt, so ruft der Prophet elijahu vor ihm aus: Öffnet die Pforten, damit einziehe ein gerechtes Volk,
das die Treue bewahrt.,
(hebräisch und deutsch:) Gerechtigkeit und Liebe für die Menschen einerseits, und Treue für Gott und den Väterglauben andererseits – das sind die zwei Wege, deren Vereinigung zum ewigen Heile führt.
Wie die Gerechtigkeit einer der Grundpfeiler des göttlichen Thrones ist (Gerechtigkeit
und Recht ist der Pfeiler deines Thrones), so ist sie auch die Grundlage des gesamten
Judentums. Das ist schon im Anbeginn ausgesprochen in Bezug auf Abraham und seine Nachkommen.
(hebräisch und deutsch:) ,Und Abraham wird werden zu einem großen, mächtigen Volke und durch ihn werden gesegnet werden alle Völker der erde; denn ich weiß von ihm, dass er befehlen wird seinen Söhnen und seinem Hause nach ihm, dass sie beobachten den Weg des Ewigen, damit der Ewige bringe über Abraham, was er über ihn
verheißen., (1. Buch Mose Kap. 18 Verse 18 und 19). |
Durch die heiligen Grundsätze der Gerechtigkeit, der allgemeinen Menschenliebe, die Abraham und seinen Nachkommen der Welt verkündet haben, sind gesegnet worden alle Völker der Erde. Während den Nationen des
Altertums der Fremde eine Fein, ein barbar war, verkündet schon in grauer Vorzeit Israel die allumfassende Menschenliebe; und so lehren die Weisen im Talmud Jeruschalmi:
(hebräisch und deutsch:)
,Du sollst lieben Deinen Nächsten, wie dich selbst; Rabbi Akiba sagte: Dies ist der größte Grundsatz der Gotteslehre. Rabbi Simon Ben
Asai sagte: es gibt einen noch mehr umfassenden Grundsatz: ,Dies ist das Buch der Geschlechtsfolge des Menschen, am Tage, an dem Gott den Menschen erschuf, im Ebenbilde Gottes erschuf er
ihn., (Nedarim Cap. 9, Halachah 4.) (säh sefer toledot adam) Alle Menschen stammen von einem Elternpaare; alle Menschen, alle sind im Ebenbilde Gottes erschaffen; deshalb sollen wir nicht nur den Freund, den
Stammesgenossen, den Glaubensgenossen lieben – nein, jeder Mensch ist mein Bruder, in jedem Menschen soll ich das Ebenbild meines Gottes achten und
wertschätzen, das ist der größte, der umfassendste Grundsatz des Judentums.
,Öffnet die Pforten, damit einziehe ein gerechtes Volk, das die Treue
bewahrt,. Es ist demnach der eine Weg, der zum Heile führt, die Zedaka, die Gerechtigkeit, die allumfassende Menschenliebe, aber es muss die
Wahrheit, der Glaube an Gott, die Treue für den Väterglauben, eng damit verbunden sein, und die Erhaltung dieses Glaubens, dieser Treue ist in unseren Tagen der
Gegenstand der heißesten Kämpfe geworden. Es ist nicht nur noch ein Kampf um Einzelnes, mehr oder weniger Wesentliches – es ist ein Kampf um die höchsten Güter der Menschheit. Man will der Menschheit ihren Gott rauben und das Vorhandensein der von Gott eingehauchten Seele bestreiten; es soll nichts übrig bleiben als Kraft und Stoff und blinde
Naturnotwendigkeit.
(hebräisch und deutsch:) ,Die da sprechen zu Gott: weiche von uns; die da verneinen,
der Allmächtige können ihnen nichts anhaben., (Hiob Cap. 22, V. 17.)
Um die alte Treue für Gott und Sein heilig Gesetz zu bewahren, um im Kampfe gegen die zerfetzenden Ideen der Neuzeit das
Judentum unverkürzt zu erhalten, hat sich vor einem Viertel-Jahrhundert die israelitischen Religionsgesellschaft
gebildet. Es waren nur wenige Männer, die sich damals eng aneinander schlossen unter den größten,
kaum zu überwindenden Schwierigkeiten. Aber es bewährte sich Gottes Segen
(hebräisch und deutsch:) ,Und ist auch nur klein dein Anfang, so wirst du groß werden gar sehr (Hiob Cap. 8,
V. 7). Und unter Gottes erhabenen Beistand erging an uns der Ruf des
Propheten (hebräisch und deutsch:) ,Erweitere den Ort deines Zeltes und die Teppiche deiner Wohnung mögen sich
ausdehnen, halte nicht zurück; ziehe die Maßschnüre lang und die Grundpfeiler schlage fest
ein., (Jesaja Kap. 54, Vers 2.)
Wohl war die kleine Gemeinde gewachsen, und doch war die Erweiterung in ferner Aussicht, da die baulichen Verhältnisse keinen Umbau gestatteten, sondern einen Neubau erheischten. Aber Gott, dem wir die Treue bewahren, Er bewahrt sie auch uns; Er hat geholfen und unsere schwache Kraft gesegnet, so dass dieser herrliche Tempel entstanden, schöner und prächtiger, als wir selbst es zu hoffen gewagt.
(Hebräisch und deutsch:) ,Öffnet die Pforten, damit einziehe ein gerechtes Volk,
das die Treue bewahrt.,
Das da die Treue bewahrt! Wo gibt es ein Volk auf Erden, das die Treue bewahrt hat gleich Israel? Wo gibt es ein Volk, das so viel gelitten um dieser Treue willen gleich Israel? Gestern, am 3. Siwan, das alte Memorial-Buch der Gemeinde verzeichnet den Tag, waren es 783 Jahre, dass die Straßen dieser Stadt sich
röteten vom unschuldigen Blute unserer Väter!
(hebräisch und deutsch:)
,Gott, meine feste Burg und mein Schild, auf Ihn hat vertraut mein Herz und mir ward
geholfen; jetzt frohlocket mein Herz und mit meinem Liede will ich ihm
danken!, (Psalm 28, V. 6). |
Jubeln wir auf ihm heißen Danke, dass unsere Treue nicht mehr auf so harte Probe gestellt wird, danken wir Gott, dass er unsere Tage gesegnet, dass wir leben inmitten hochgebildeter Völker, unter dem Schutze guter und weiser Gesetze, unter dem Schirme edler, mächtiger Fürsten, als treue Söhne des
heißgeliebten Vaterlandes, in dessen Wohl und Gedeihen wir auch unser Glück und Heil erblicken sollen. Und in diesen Tagen der Freiheit und Sicherheit ist die Mahnung doppelt
notwendig, dass wir die Treue bewahren dem alten Glauben, der Jahrtausende lang
unser höchstes Gut gewesen und es ewig bleiben wird. Nur wenige Tage, ja Stunden noch, und wir begehen das Fest der Offenbarung am Sinai. Was uns
damals geworden, das Gesetz unseres Gottes und seine heilige Lehre, das ist ein Schatz von unermesslichem
Werte.
(Hebräisch und deutsch:), ,mögen Sie niemals deinen Augen entrückt werden, bewahre sie im Innersten Deines Herzens. (Sprüche
Salomos Cap. 4, V. 21.)
(Siehe den Schluss in der ersten Beilage.) |
Die
Einweihung der neuerbauten Synagoge der isr. Religions-Gesellschaft zu Mainz.
(Schluss).
,Öffnet die Pforten, damit einziehe ein gerechtes Volk, das die Treue
bewahrt,.
Doch täuschen wir uns nicht! Sind wir, bist du, meine geliebte Gemeinde, sind wir wirklich ein
(hebräisch und deutsch:) ,ein gerechtes Volk, (hebräisch und
deutsch:) das da die Treue bewahrt? O, dazu fehlt noch viel! Auch wir sind sündige Menschen, voller Fehler und Gebrechen, die nur in Gottes
Langmut und Nachsicht Trost und Rettung erblicken. Aber das Streben haben wir, Gott in Wahrheit zu dienen, und dieses Streben ist die Himmelsleiter für Israels
Zukunft.
(hebräisch und deutsch:) ,An jenem Tage wird gesungen werden dieses Lied im Lande Jehuda: Uns ist eine feste Stadt, Gottes Hilfe wird gründen die Mauern und die
Vormauer., (Jes. Cap. 26, V. 1.)
Dann wird das Heil erblühen vieler Nationen, und verschwinden werden von der Erde der völkermordende Krieg, Krankheit, Noth und Elend und alle Menschen werden sein eine Familie, ein Volk, und eine Stimme wird ertönen vom Himmel, die ganze Welt durchbrausend:
,Öffnet die Pforten, damit einziehe ein gerechtes Volk, das die Treue
bewahrt,. Öffnet die Pforten, auf das einziehe in jene Stadt, deren Mauern und Vormauern das göttliche Heil sind, ein gerechtes Volk, indem die ganze Menschheit Gott und sich die Treue bewahrt.
(hebräisch).
Und uns wird wieder erbaut werden jenes großes Gotteshaus, von wo aus das Licht der Erkenntnis
leuchten wird der einzigen, einigen, großen Völkerfamilie.
Und du, Albarmherziger, wie sollen wir danken für all deine Gnade und Liebe. Du hast gesegnet diesen Bau von Anbeginn an, hast behütet Alle, so daran gearbeitet, dass keiner auch nur die geringste Verletzung davon getragen. Und nun stehen wir in dem vollendeten Hause in heißer Andacht vor Dir, uns Deinen Vater-Segen zu erflehen. Segne, Allgütiger, den hohen Hort des Vaterlandes, unseren erhabenen Kaiser und ein Haus, segne unseren geliebten Landesfürsten und das hohe Großherzogliche Haus, segne unser engeres und weiteres Vaterland, und diese uns geliebte Vaterstadt, die auch in der Geschichte Israels eine hervorragende Stelle einnimmt, segne die geehrten Gäste, die unsre Feier durch ihre Anwesenheit verherrlicht haben, und den genialen Baumeister, der diesen herrlichen Bau in seinem
Geiste hat vorher
entstehen lassen, ehe die fleißigen Hände ihn haben schaffen können, segne Alle, die so opferfreudig dazu beigetragen, und die Vorsteher, deren sorgenvolles Mühe so reiche Früchte gebracht, segne o Gott, diese ganze andächtige Versammlung, und auch derer gedenke, die nicht mehr unter uns weilen, deren Leben und Sterben wir die Existenz
unsrer Religionsgesellschaft verdanken! Gib, o Gott, dass dieses heilige Haus stets sei und bleibe ein Haus der Sammlung, der Andacht, der
Belehrung und dass immerdar in dasselbe einziehe eine Gemeinde, beseelt von edler, gottgefälliger Menschenliebe und ausharrend in der Treue zum Väterglauben, in der Treue zu Dir! Also sei es Dein heiliger Wille, Amen!
Nach der Festpredigt wurde ein im Programme abgedrucktes hebräisches Gebet von jedem Einzelnen der Anwesenden gebetet, dessen deutsche Übersetzung wir hier folgen lassen:
,Unser Vater im Himmel, schau herab vom Deinem heiligen Throne und vernimm die Stimme unseres Flehens. Siehe, wir haben heute am Tage unserer Freude vor dir gebetet und haben vernehmen lassen unsere Stimme, wir und unsre zarten Kinder, die nicht gesündigt haben, und nun wende Du Dich zu unserem Gebet, das wir im Herzen sprechen, wie du dereinst gnädiglich vernommen hast das Gebet der Chana und hast ihr verliehen, was sie verlangte; denn Du, o Gott, schauest und prüfest die Herzen und bist gnädig denen, die geraden Herzens sind. Herr, Gott Israels, niemand ist wie du im Himmel droben und auf der Erde tief unten, Du bewahrst den Bund und die Liebe deinen Kindern, die vor Dir wandeln mit ganzem Herzen. Wir, unser Gott, danken Dir nunmehr und preisen den Namen Deiner Herrlichkeit. Wer sind wir, dass wir Kraft gewonnen hätten, dir solche ein Haus zu bauen? Von Deiner Hand kommt alles |
und von Deiner Hand geben wir Dir's wieder; denn wir sind ja nur Fremdlinge vor Dir, Geduldete, wie unsere Väter alle; wie Schatten fliegen unsere Tage über die Erde, ohne Hoffnung. Herr unser Gott, dieses Haus, das da am heutigen Tage durch uns vollendet wurde, dass da eingerichtet ward den Vorschriften unserer Weisen gemäß, von denen wir weder rechts noch links weichen, wie Du es uns in unserer heiligen Lehre befohlen hast, dieses Haus, das wir, Du weißt es, o Gott, nicht zum Zank und zum Hader sondern einzig und allein zur Heiligung Deines großen Namens gebaut haben, dieses Haus, in dem wir beten, während unser Herz sich hinwendet nach dem zerstörten
Heiligtume im Lande der Väter, dieses Haus ist Dir geweiht, von deiner Hand stammt es, und freudig haben wir Dir es als Spende dargebracht. Herr, Gott
Abrahams, Jizchaks und Israels, unsrer Väter, gedenke uns diese Spende für alle Ewigkeiten, zur Bildung der Gedanken des Herzens Deines Volkes; richte ihr Herz zu Dir empor, führe uns allesamt zurück zu Dir, auf dass zurück wir kehren, damit nicht gespalten sei das Volk, das Du erwählt hast, in zwei Lager, damit nicht betrachtet werde Deine heilige, reine, ganze Lehre, wie der Lehren zwei. Du, unser Vater, der Du liebevoll entgegenstreckst die Hand den Verbrechern, führe auf den geraden Weg die Sünder, damit allesamt das ganze Haus Israels wiederum einen unser Herz zu deinem Dienste. Dann ja, dann wirst auch bald Du schicken Deinen Diener, den lang ersehnten Erlöser, dass er sammle unsre Verstreuten
von allen Enden der Erde.
So möge denn dieses Haus bestehen für die Ewigkeit, zum Ruhm, zum Preis und zum Lobe; uns aber stärke und kräftige und auch unsere Nachkommen nach uns, Dich zu fürchten alle Zeiten. Es seien wohlgefällig
vor Dir, die Worte meinen Mundes und die Gedanken meines Herzen, mein Gott,
mein Schutzfeld und Erlöser. Amen!'
Mit der Absingung von Psalm 30, 'Jigdal'' und Psalm 150, dem Maariw-Gebet endete die erhebenden Feier, woran sich dann noch ein
Sijum HaSchass (= Abschlussfeier des Studiums des Talmud) schloss, nachdem der Talmud-Verein 29 Jahre mit dem Studium des ganzen Talmuds verbracht hatte.
Abends fanden sich die fremden Rabbinen und andere Gäste beim Herausgeber dieser Blätter zu einem einfachen Mahle ein, bei welchem die Herren
Dr. Hirsch, Dr. Salvendi, Leo Leser, Präses des Vorstandes der
israelitischen Religionsgesellschaft zu Mainz, Emanuel Schwarzschild,
Präses des Vorstandes der israelitischen Religionsgesellschaft zu Frankfurt
a. M.,
Dr. Goitein, Dr. Cahn (Fulda) durch gediegene Vorträge und Toaste die Herzen der Anwesenden erfreuten. Da wurde uns noch eine freudige Überraschung zu
Teil: der Gesang-Verein Liederkranz unter der Leitung des Herrn Kapellmeisters Rupp und die Kapelle des 118. Regiments unter der Leitung des Herrn
Kapellmeisters Spreng brachten dem Herausgeber dieser Blätter eine
Serenade. Wir dankten vom Fenster aus und sprachen ungefähr Folgendes:
,Gestatten Sie mir, geehrte Herren, Ihnen meinen herzinnigen Dank auszusprechen, für die große Aufmerksamkeit und die hohe Ehre, die Sie mir erweisen. Die rege
Teilnahme, welche die christliche Bevölkerung unsrer geliebten Vaterstadt bei
unserm heutigen Feste an den Tag gelegt hat, gipfelt in der Ehre, die Sie mir jetzt erweisen. Dass Bekenner anderer Religionen dieses jüdische Gemeindefest zum Anlass nehmen, mir eine Freude zu bereiten, erfüllt mich mit Stolz, Bürger einer Stadt zu sein, in welcher der
konfessionelle Hader in der Bevölkerung keine Stätte findet. Es ist dieser erhebende Moment eine Bürgschaft dafür, dass immer mehr zur Wahrheit wird der Ausspruch des Propheten:
,Haben wir doch Alle einen Vater, hat doch ein Gott uns Alle erschaffen!, So wollen wir uns denn als Brüder lieben immerdar. Die Ehre, die Sie mir erweisen, dem Bekenner und Vertreter einer anderen Religion, ehrt Sie, meine Herren, beweist, dass in unserer geliebten Vaterstadt, unserem goldenen Mainz *), alle seine Bürger in Friede und Eintracht leben. So bitte ich Sie denn mit mir einzustimmen in ein Hoch auf diese uns allen so
teure Stadt. Unsre geliebte Vaterstadt, unser goldenes Mainz, es lebe
hoch!,
Und begeistert stimmte die auf der Straße versammelte, nach Tausenden
zählende Menge mit ein.
Wir hätten noch manches zu berichten, von Vereinen, die uns Deputationen sandten, von zahlreichen Beglückungsschreiben in Versen und in Prosa, von ebenso vielen Telegrammen – unter andern von Herrn
Rabbiner Hirsch in Frankfurt a. M., vom Freiherrn, Herrn Wilhelm von Rothschild in Frankfurt a. M., von Herrn
Rabbiner Dr. Hildesheimer in Berlin, von den Herren Aron Hirsch
und Sohn in Halberstadt, Rabbiner Dr. Auerbach daselbst, Rabbiner Dr.
Plato in Köln. – Wir wollen nur noch hinzufügen, dass unser Vorgänger,
Herr Ahron Cahn, nicht wenig zur Verherrlichung unserer Feier beigetragen hat und sich des allgemeinen Beifalls erfreute, was umso mehr hervorzuhaben, da derselbe, Kaufmann von Beruf, seinen leider durch Unwohlsein verhinderten Bruder, den bei der Religionsgesellschaft angestellten
Kantor, vertritt. So ist denn das sehnsuchtsvolle Ziel erreicht. Möge der allgütige Gott auch ferner Gelingen geben.
*) Im Mittelalter hießen Köln: das eiserne, Straßburg: das silberne, und Mainz: das goldene." |
Über die neue Synagoge der Religionsgesellschaft
(1879)
Artikel
in der Zeitschrift "Der Israelit" vom 18. Juni
1879: "Mainz, den 6. Juni. Über die neuerbaute Synagoge der hiesigen israelitischen Religionsgesellschaft erhalten wir von Fachkundigen die nachstehenden
Notizen:
,Die Lage des Bauplatzes brachte es mit sich, dass die Gesamtordnung in der Weise erfolgen konnte und musste, wie sie bei den meisten Gotteshäusern des Orients von jeher üblich war und heute noch ist, dass nämlich der Hauptbau den Hintergrund einer in der Regel mit Hallen umgebenen Hofanlage bildet. Der Eintritt in das Gebäude führt über eine breite Treppe durch eine Haupt- und zwei
Seitentüren zunächst in die Vorhalle, einen der Länge nach vor der Synagoge liegenden 17 Mtr. langen, 4 Mtr. breiten, 4,50 Mtr. hohen Raum, welcher zugleich zu Versammlungen, zu religiösen
Vorträgen etc. dient. Aus dieser Vorhalle führen wieder drei reich geschmückte Portale in das Innere der Synagoge. Dieses selbst hat eine Länge von 21,50 Mtr. und eine Breite von 13,75 Mtr. und besteht aus dem mittleren Hauptschiff und die durch die Frauenbühne in der Höhe
geteilten, das Hauptschiff von drei Seiten umgebenden Nebenschiffen. Das Mittelschiff hat eine Höhe von ca. 16 Mtr. Der ganze Innenbau wird durch 12 gegossene Säulen getragen, welche die 12 Stämme Israels andeuten; diese Säulen sind unter sich und mit den Umfangswänden durch
Arkaden verbunden. In der Mitte des Hauptschiffes steht der Almemor (aus der alten Synagoge stammend) von welchem aus die feierlichen Handlungen beim Gottesdienste erfolgen; an der Ostseite wird erstes durch die Nische geschlossen, welches das Heiligtum, die
Tora, enthält. Diese Nische ist mit reichem plastischen Schmucke ausgestattet, mit
einem in Palmzweigen ausgehenden Stalaktitengewölbe geschlossen, und mit einem gemalten Rundfenster bekrönt.
(Bildhauer Feyerle und Blees, Glasmaler Bernhard-Grosch). Vor der Nische ist die Kanzel und das Pult des Vorsängers,
zur Zeit noch in provisorischer Ausführung angebracht. Links vor der Nische befindet sich ein abgesonderter Raum für den Sängerchor, rechts ein Aufenthaltszimmer für den Rabbiner. Die Frauengalerie ist durch einen besonderen Aufgabe von der
Margarethengasse aus zugänglich. Dieser führt mittels einer steinernen Treppe durch einen zweistöckigen Seitenflügel des Gebäudes in welchem die
nötigen Nebenräume, wie Erholungszimmer, Frauengarderobe und dergleichen sich befinden. Die
Galerie ist durch ein feines Schmiedeeisengitter (Gebrüder Pfeiffer) gegen das Mittelschiff abgeschlossen. Eine zweite höher gelegene Frauengalerie an der Westseite ist noch nicht in Gebrauch genommen. – Die Mauerarbeiten sind nach Submission von Herrn
Groh von Kastel, die Zimmerarbeit von Herrn Fritz, gleichfalls aus Kastel, zur Ausführung gelangt. Die Tüncherarbeit und das Ansetzen der von den Bildhauern Herren
Blees und Feyerle nach Zeichnung gelieferten Ornamente war den Herren Gebrüder
Krauter ebenfalls auf Submissionswege übertragen worden. Was schließlich die ästhetische Ausbildung des Bauwerks anlangt, so ist das Ganze genau in den Formen des maurischen (arabischen)
Stiles aus dem 12. Jahrhundert gehalten. Das Äußere ist ganz in Hausteinen
mit farbigen Incrustationen von gebrannten Mettlacher Steingutplatten ausgeführt, und zwar besteht der Sockel aus Basaltlava, die
Fassade der Vorhalle und des Seitenbaues aus abwechselnden Schichten von grünlichem Schwäbisch-Haller Sandstein und gelbem Metzer Kalkstein; die beiden Säulen des Hauptportals aus einem schönen
grünen Trachyt des Siebengebirges, die Fassade des Hauptgebäudes aus weißem französischen Kalkstein (Boller u.
Comp., Mannheim). Die Ornamente des Innern sind durchgängig in Gipsstuck ausgeführt; die
stilgemäße Bemalung soll erst in späterer Zeit stattfinden, vorläufig ist das Ganze noch in weißem Tone des Gipsputzes belassen. Der Erbauer der Synagoge ist Herr Stadtbaumeister
Kreißig, der hier ein dauerndes Denkmal seiner architektonischen Meisterschaft geschaffen hat. Als Zeichner und Bauführer
fungierte Herr Fr. Harz, und aushilfsweise Herr Baum. Begonnen wurde der Bau im Frühjahr 1877 und die Einweihung erfolgte am 26. Mai 1879."
|
Gebete für die russischen Juden in der orthodoxen
Synagoge in Mainz (1882)
Artikel in der Zeitschrift "Der Israelit" vom
1. März 1882: "Mainz, 28. Febr. Der ,Frankfurter Zeitung, wird geschrieben:
,Ungeachtet der beruhigenden Versicherungen dauern die Verfolgungen der russischen Juden,
insbesondere in den kleineren Städten und auf dem Lande noch immer fort. Die Geplünderten erhalte kein
Gehör, die Geplünderten gehen frei aus und den Zeitungen ist es aufs Strengste verboten, hiervon Etwas zu berichten. Die israelitische Religionsgesellschaft zu Frankfurt a. M., sowie mehrere jüdische Gemeinden haben sich daher veranlasst gesehen,
in ihrem täglichen Gottesdienst Bittgebete für ihre unglücklichen
Glaubensgenossen in Russland aufzunehmen.,
Auch in der Synagoge der israelitischen Religionsgesellschaft zu Mainz ist diese Anordnung getroffen worden, dass das Gebet
schomer Jisrael täglich, Morgens und Nachmittags, eingeführt wird. Wir ersuchen unsere geehrten Leser, dahin zu wirken, dass in den Synagogen ihrer Wohnplätze ebenfalls für unsere unglücklichen Glaubensgenossen in Russland gebetet werde. Möge sich der allgütige Gott der Hartbedrängten bald
erbarmen." |
Montefiore-Feier in der Synagoge der
Religionsgesellschaft (1884)
Artikel
in der Zeitschrift "Der Israelit" vom 30. Oktober
1884: "Die Montefiore-Feier in der Synagoge der israelitischen Religionsgesellschaft zu Mainz.
Mainz, den 27. Oktober.
Gestern Nachmittags 4 Uhr 30 Minuten hatte sich in dem in der Überschrift genannten Gotteshause ein zahlreiches Publikum eingefunden, darunter auch viele Nichtjuden. Die Feier begann mit Absingung des
ma towu, ausgeführt vom Synagogen-Chor unter Leitung des Herrn Leo Schlessinger und unter der Mitwirkung des
Kantors Herrn Ahron Cahn. Hierauf folgte das Mincha-Gebet und die im Programme vorgeschriebenen Psalmen. Nachdem der Synagogen-Chor nunmehr den 24. Psalm vorgetragen hatte, bestieg Herr Rabbiner Dr. Lehmann die Kanzel. Er hatte den 100. Psalm
mismor letoda zu Texte genommen. Die Feier, so sprach der Redner, die uns heute hier vereint, findet ihren Ausdruck zunächst in dem Gefühle des Dankes, den wir aus tiefsten Herzen dem allgütigen Gotte darbringen dafür, dass er uns diesen Mann gegeben und ihn ein so hohes, ungewöhnliches Alter hat erreichen lassen.
(Hebräisch und deutsch:), ,Jubelt dem Ewigen die ganze Erde.,
Es ist ein erhebendes Gefühl, zu wissen, dass in dieser Stunde sich auf der ganzen
Erde, in den entferntesten und entlegensten Ländern, im Osten und im Westen, im Norden und im Süden sowie jenseits des großen Weltmeeres die Glaubensgenossen versammeln zu Ehren des edlen Mannes, dessen Wirksamkeit sich fast auf den ganzen Erdboden erstreckt hat. Eine solche Feier ist ohne Vorgang in der Geschichte Israels; es hat eben in unserer nach Jahrtausenden zählenden Geschichte noch keinen solchen Mann gegeben. Nicht etwa, dass
Israel nicht schon größere Männer, Männer von zugleich größerer Bedeutung und Wirksamkeit hervorgebracht hätte – nicht also, es ist nur, wenn ich so sagen darf, die geographische Ausdehnung seines Wirkens, die ich hierbei im
Auge habe, und die unsere verehrten Jubilar zu einem Manne einzig seiner Art gestaltet.
(Hebräisch und deutsch:) 'Dienet dem Ewigen mit Freude, kommet vor Ihn mit
Jauchzen.' Der Begriff des Gottesdienstes ist in unserer Zeit vielfach missdeutet worden. Im
Judentume beschränkt sich der Gottesdienst nicht auf das Gotteshaus, er muss vielmehr durch das
gesamte Leben betätigt werden. Gott dienen, heißt, mit ganzem Herzen, mit ganzer Seele und mit all unserem Vermögen alle unsere Stunden und Tage in Erfüllung des göttlichen Willens aufbieten, und das hat unser Moses
(hebräisch und deutsch:) mit Freude, getan.
Hieran reihte der Redner eine kurz gefasste Biographie des Gefeierten, die wir an dieser Stelle nicht wiederholen wollen, da sie bereits in früheren Nummern
mitgeteilt ist worden. Nachdem der Redner die unsterblichen Verdienste des verehrten Jubilars um die Glaubensbrüder im heiligen Lande, bei der
Damaskus-Affäre, in Russland, Italien, Afrika (Marokko), Rumänien, Persien, und in Bezug auf die syrischen Schriften hervorgehoben und seine bevorzugte gesellschaftliche Stellung geschildert hatte, stellte er das Verhältnis des
Gefeierten zum orthodoxen Judentume dar.
|
(Hebräisch
und deutsch:) 'Erkennet, dass der Ewige Gott ist. Er hat uns gemacht, und Sein sind wir, Sein Volk und die Herde Seiner
Weide.' Sir Moses Montifiore hat von Jugend auf sein Heil und sein Glück in treuer Anhänglichkeit für die Lehre unseres Gottes gesucht und gefunden. Als die sogenannte Reformbewegung auch in England hervortrat, ist Sir Moses ihr mit großem Eifer und bedeutendem
Erfolge entgegengetreten, wiewohl Freunde und Verwandte zu den Gründern und Leitern der neuen
Sekte gehörten. Auf seinen weiten Reisen zu Land und zu Wasser, in oft unwirtlichen Gegenden, hat er die Vorschriften des
Judentums auf das Sorgfältigste beobachtet; als Freund und Genosse von königlichen Prinzen und anderen vornehmen Herren ist er nie von den Geboten unseres Gottes gewichen.
'Erkennt, dass der Ewige Gott ist, Er hat uns gemacht und Sein sind wir,
Sein Volk und die Herde Seiner Weide,' das war die Devise seines ganzen Lebens.
Die (hebräische) Schreibweise bietet uns noch einen anderen Sinn in
dem in Rede stehenden Verse dar. (Hebräisch und deutsch:) 'Er hat uns
gemacht und nicht wir.' Gerade in den Ländern englischer Zunge ist neuerdings häufig von
self made man
'einem selbstgemachten Manne', das heißt, von einem solchen die Rede, der Alles nur sich selbst zu verdanken hat. Auch Sir Moses hätte sich so bezeichnen können; aber er hat es nie
getan. Sein ganzes, reines und hingebungsvolles Streben zum Besten der Menschheit ist eine
Betätigung der Worte des Psalmisten 'Er hat uns gemacht und nicht wir,
Sein Volk und die Herde Seiner Weide.'
'Gehet in seine Tore mit Danklied, in seine Höfe mit Lobgesang, dankt
ihm, preiset seinen Namen'. Und deshalb sind heute die Scharen der Andächtigen in fast allen Ländern der Erde in die Synagogen geeilt, um dem allgütigen Gott zu Danken für die Güte und Liebe, die er unserm
teuren Sir Moses erwiesen, dass er ihn ein so ungewöhnlich hohes Lebensalter hat erreichen lassen, dass er ihm des Körpers Kraft und der Geistes Frische erhalten. Und die Anerkennung und Verehrung seiner Mitmenschen ihm hat zu
Teil werden lassen.
(Hebräisch und deutsch:) 'Denn gütig ist der Ewige, ewig währet seine Liebe und von Geschlecht zu Geschlecht seine
Treue.' Gott ist die unendliche Güte. Das erfahren wir nicht nur bei außerordentlichen Vorkommnissen, sondern immer, ewig. – Unsere Weisen lehren, dass wir dadurch Gott nachwandeln, dass wir uns seine erhabene Eigenschaften zum Muster nehmen und ihnen nachstreben.
'Wie Er barmherzig, so sei auch Du barmherzig, wie Er Gnädig, so sei auch
Du gnädig.'
Was ich Euch, meine Brüder und Schwestern von den großen Taten unseres Sir Moses erzählt habe, das sind nur Einzelheiten. Aber seine unendliche Güte, seine unaussprechliche Liebe für alle Menschen und namentlich die Armen und
Unterdrückten, entzieht sich jeder Beschreibung. Davon dringt wenig zu uns in die Ferne, davon wissen nur die Leute zu erzählen, die zu seiner nächsten Umgebung gehören. Wahrlich es ist etwas Himmlisches, etwas
Göttliches, solch ein für alles menschliche Leid teilnahmevolles Herz! Malen wir uns im Geiste eine
Szene aus dem tatenreichen Leben des Jubilars aus. In Damaskus schmachten neun unschuldige Glaubensgenossen in
finsterem Kerker; ihre Gliedmaßen sind durch die Tortur zermartert; in dumpfer Verzweiflung sehen die dem Tode entgegen. Da geht im fernen Westen ein Schiff ab, das ein ihnen unbekannter Mann, eine ihnen fremde Frau besteigen, und den Bemühungen des edlen Ehepaares gelingt es, die Pforten des Kerkers zu öffnen und die Gefangenen der Freiheit, dem Licht und dem Leben wiederzugeben. Ist das nicht etwas Himmlisches, Göttliches?
(Hebräisch und deutsch:) 'Und von Geschlecht zu Geschlecht währt seine
Treue.'
Und auch das ist ein beglückender Moment unserer Feier: das Bewusstsein die Überzeugung, dass Gottes Liebe und Treue uns niemals verlassen und uns bleiben werden bis zu den spätesten Geschlechtern. In jedem Zeitalter hat Er uns Männer erstehen lassen, auf die wir mit gerechtem Stolze und mit freudiger
Genugtuung blicken dürfen, die jedes Zeitalter sich als Musterbilder, wählen darf für das eigene Streben. So wollen denn auch wir, dem erhabenen Beispiele Montefiores folgen, mit aller unserer Kraft einstehen für unsere heilige Gotteslehre, mit aller unserer Kraft und bemühen um das Wohl unserer Mitmenschen!
Der Redner nahm dann die Torarolle aus der heiligen Lade und sprach das im Programm vorgeschriebene Gebet in hebräischer und deutscher
Sprache, worauf der Synagogenchor den 150. Psalm vortrug. Mit dem Maariw-Gebete schloss die erhebende Feier."
|
Gottesdienst für die Genesung des Kronprinzen (1887)
Artikel
in der Zeitschrift "Der Israelit" vom 17. November
1887: "Mainz, 16. Nov. In der Synagoge der israelitischen Religionsgesellschaft
wurde heute Mittag 1 Uhr ein feierlicher Gottesdienst abgehalten, um für die Genesung des
Kronprinzen die göttliche Hilfe zu erflehen. Nach Rezitierung von zu diesem Zwecke ausgewählten Psalmen, sprach
Herr Rabbiner Dr. Lehmann vor geöffneter Bundeslade ein ergreifendes Gebet. Die Gemeindemitglieder hatten sich in großer Zahl eingefunden, und aus den Tiefen der Herzen stiegen die Gebete empor, die der Allgütige
erhören möge." |
Einweihung einer neuen Torarolle für die Synagoge der
Religionsgesellschaft (1894)
Artikel
in der Zeitschrift "Der Israelit" vom 18. Juni
1894: "Mainz. Am Tag nach dem Schawuotfest. Unser Gottesdienst erhielt in den eben verflossenen Festtagen eine besondere Weihe.
Herr D. Levinger hier ließ eine neue prächtige Torarolle schreiben und übergab solche am ersten Tage
Schawuoth unserer Religionsgesellschaft in feierlicher Weise. Vor Beginn des Thoralesens gingen zehn Mitglieder des Vorstandes und
Ausschusses unserer Gesellschaft mit den bereits vorhandenen Sefarim
(Torarollen) der neugeschriebenen Rolle entgegen, welche vom
Vorbeter in Begleitung unseres Herrn Rabbiners unter Chorgesang an ihren heiligen Bestimmungsort getragen wurde. Nach einigen Umzügen um den Almemor, kam es aus dem betreffenden Sefer
(Torarolle) der dem Tage entsprechende Thoraabschnitt zur Verlesung.
Die Thorarolle ist von Herrn Sofer (Toraschreiber) Holzmann auf das sorgfältigste in schönen, großen und deutlichen Buchstaben hergestellt. Der sie umgebende Mantel, welcher mit prachtvoller Goldstickerei versehen, ging aus dem Atelier des Herrn Rotschild in Frankfurt a. M. hervor. Das Silber bietet ein hervorragendes Kunstwerk der
auf diesem Gebiete weltbekannten Firma Lazarus Posen Wwe. in Frankfurt a. M. Zur Erinnerung an dieses freudige
Ereignis stiftete Herr Levinger einen Betrag von 1200 Mark für den hiesigen Hilfsverein. Möge der edle Geber Kinder und Enkel
sehen, die sich mit der Thora beschäftigen." |
Feier für das Großherzogliche Paar in der Synagoge der
Religionsgesellschaft (1894)
Anmerkung: das Großherzogliche Paar war 1894: Großherzog Ernst Ludwig
(geb. 25. November 1868 in Darmstadt, gest. 9. Oktober 1937 in Schloss
Wolfsgarten bei Langen, von 1902 bis 1918 Großherzog von Hessen und bei Rhein),
verheiratet mit (seiner Kousine) Victoria Melita von Sachsen-Coburg und Gotha
(geb. 25. November 1876 in Valletta, Malta, gest. 2. März 1936 in
Amorbach); mit der jüngsten Schwester des Landesfürsten, der Braut des russischen
Kaisers ist Prinzessin Alix von Hessen-Darmstadt gemeint (geb. 6.
Juni 1872 in Darmstadt, spätere Frau von Kaiser Nikolaus II. und damit Kaiserin
von Russland, ermordet mit der ganzen Kaiserfamilie in der Nacht auf den 17.
Juli 1918 in Jekaterinburg). Die im Text genannte Mutter der Prinzessin Alix war
Prinzessin Alice von Großbritannien und Irland (1843-1878), eine Tochter
der britischen Königin Victoria.
Artikel
in der Zeitschrift "Der Israelit" vom 26. November
1894: "Mainz, 25. Nov. In der Synagoge der israelitischen Religionsgesellschaft fand heute in erhebender Weise die Feier des hohen Geburtstags Ihrer königlichen Hoheiten des Großherzoglichen Paares statt. Nach entsprechendem Gesang und
Rezitation einiger Psalmen bestieg Herr Rabbiner Dr. Bondi die Kanzel, um auf Grund der drei Verse 8, 10,
11 des 45. Psalmes den Großherzog, die Großherzogin und die jüngste Schwester des Landesfürsten, die erlauchte Braut des russischen Kaisers zu feiern. Mit den Schlussworten des gestrigen Prophetenabschnitts:
,Es lebe mein Herr der König David ewiglich, begann der Redner, indem er heiße Wünsche für das Wohl des Landesfürsten in diesem biblischen
Huldigungsruf kleidete. In den Worten des Psalmisten
,Du liebstes Gerechtigkeit, hassest Unrecht, darum salbte Dich Gott, Dein
Gott mit dem Öle der Wonne vor deinen Genossen,, fand er eine treffende Schilderung der Regierung unseres Landesvaters, der Gerechtigkeit auf seine Fahne geschrieben, dessen Herze alle
Untertanen gleich nahe stehen und dessen Regierung durch eine Reihe glücklicher Erfolge gesegnet wurde. Besonders die Geschichte des Großherzoglichen Hauses im vergangenen Jahre zeigt uns deutlich den reichen Segen des Himmels. Der Großherzog erkor sich als Gattin eine Fürstentochter aus uraltem glänzendem Geschlechte, eine nahe Verwandte, die, wie sie am gleichen Tage mit ihm sein Wiegenfest feiert, so gleich dem Fürsten mit allen allen edlen Tugenden geschmückt ist.
,Es steht die Gattin an deiner Rechten geschmückt mit kostbarem Golde,. Der herrlichste Schmuck der Fürsten ist die Verehrung und Liebe der
Untertanen. Der zukünftigen Kaiserin von Russland rief der Redner die Schriftworte zu:
,Höre und merk auf Tochter und neige dein Ohr und vergiss dein Volk und deines Vaters
Haus,. Es ist das Schicksal der Fürstentochter, dass sie oft ein neues Vaterland erwählen, um mit dem Gatten, den sie erkoren ein fremdes Land zu beherrschen, und als Herrscherin treu mit allen Fasern des Herzens dem neuen Volke angehören müssen. Je
ungeteilter ihr Herz den neuen Pflichten gehört, um so mehr wird sie gepriesen. Doch bevor sie ihr altes Heim verlässt und hinauszieht aus dem väterlichen Palaste, da soll sie nochmals Umschau halten, aufmerken und ihr Ohr neigen den geheiligten Traditionen ihres Geschlechts und alles Gute und Schöne in ihrem Herzen mit hinwegtragen, damit es zum Segen werde auch dem fremden Volke. Vor Jahrzehnten zog ebenfalls eine hessische Fürstin in die Hauptstadt des großen nordischen Reiches und die Regierung des Kaisers Alexander
II., des Gatten der hessischen Prinzessin Maria gehört zu den lichtvollsten und gesegnetesten der russischen Geschichte. Die Tagesblätter haben schon berichtet, dass die jetzige russische Kaiserbraut ihre Fürsorge besonders den großen Wohltätigkeitsanstalten widmet, welche ihre unvergessliche Verwandte auf dem Kaiserthrone
ins Leben gerufen und reicht bedacht hat. Lange Jahre waren dieselben an höchster Stelle vergessen und der Regellosigkeit und Verwilderung
anheim gefallen. Die heute noch viel betrauerte und erlauchte Mutter unserer
Prinzessin Alix nannte dieses ihr jüngstes Kind in Briefen an die Königin Victoria von England
,Sonnenscheinchen,, weil sie in früher Jugend schon Sonnenschein im elterlichen Hause verbreitet hat. Möge ihr, die von morgen ab den Namen
Kaiserin Alexandra Feodorowna (sc. Александра
Фёдоровна) führt, vergönnt sein, Sonnenschein zu bringen, dem gewaltigen, dunklen Nordreiche. Möge die Wiederkehr des
morgigen Tages stets froh gefeiert werden, in der Erinnerung, dass mit diesem Tage eine Sonne des Glückes und Friedens aufging, für alle russischen Völker ohne Unterschied des Stammes und des Glaubens.
Mit dem Gebete um den Segen für das Großherzogliche Paar, die Großherzogliche Prinzessin und das gesamte Fürstenhaus, schloss die weihevolle Rede." |
Postkarte: "Innere Ansicht der Synagoge der
Israelitischen Religionsgesellschaft" (1900)
Anzeige in der Zeitschrift "Der Israelit" vom 10.
Dezember 1900:
"In unserem Verlage erschien:
Innere Ansicht der Synagoge der Israelitischen Religionsgesellschaft zu
Mainz.
Postkarte, vielfarbig und künstlerisch,
von Professor Conrad Sutter ausgeführt. Preis per Stück 5
Pfennig.
Joh. Wirth,sche Hofbuchdruckerei A.-G., Mainz." |
50-Jahr-Feier der Synagoge der Religionsgesellschaft
(1929)
Artikel
in der Zeitschrift "Der Israelit" vom 20. Juni
1929: "Mainz, 16. Juni. Am 3. Siwan 5639 wurde der Synagogen-Neubau der Israelitischen Religionsgesellschaft Mainz
mit großen Feierlichkeiten seiner Bestimmung übergeben. Es war beabsichtigt, die 50. Wiederkehr dieses Tages feierlich zu begehen, aber durch den leider vor kurzem erfolgten Heimgang unsere Raw Dr. Bondi
- das Gedenken an den Gerechten ist zum Segen - musste davon Abstand genommen werden. Um jedoch der Erinnerung an die denkwürdige Begebenheit gerecht zu werden, fand beim Schachris-Gebete (Abendgebet) eine schlichte, einfache aber würdige Feier statt, der ein größerer Teil der Gemeinde in Ergriffenheit beiwohnte. Der zufällig hier anwesende
Würzburger Oberkantor, Herr Eschwege, hatte sich in liebenswürdiger Weise bereit erklärt, für unseren durch dir Trauer um seinen jüngst heimgegangenen Sohn leider verhinderten
Oberkantor, Herrn Abraham Oppenheimer, einzutreten und er fand mit seinem Chasonus
(Kantorendienst) dankbare Bewunderung. Nach Schluss des täglichen Gebetes, von welchem einige Teile besonders gesungen wurden, rezitierte die Gemeinde nach einem Solovortrag des Herrn
Eschwege einige Mismaurim (Psalmen), die auch vor 50 Jahren bei der Einweihung gesprochen wurden. Danach sprach Herr
J. Tschorniki ein besonders für die Bedeutung des Tages verfasstes Gebet, worin auch der heimgegangenen Führer Dr. Lehmann und Dr. Bondi
- das Gedenken an den Gerechten ist zum Segen - Erwähnung geschah." |
Die polnisch-orthodoxe Synagoge
1908 gründeten polnisch sprechende jüdische Zuwanderer den
"Israelitischen Humanitätsverein". Man traf sich zu Gottesdiensten
nach orthodoxem polnischem Ritus in einem Betsaal in der Margarethenstraße 13.
Dieser Betsaal wurde beim Novemberpogrom 1938 geplündert und verwüstet.
Die
1911/12 erbaute Hauptsynagoge der "Israelitischen Religionsgemeinde"
Die 1853 eingeweihte Hauptsynagoge war um 1900 zu klein
geworden. Ein Neubau sollte in zentraler Lage in der Mainzer Neustadt entstehen.
Beim Architektenwettbewerb 1910 gingen 131 Bewerbungen ein. Der Stuttgarter
Architekt Willy Graf bekam den Auftrag. Die Grundsteinlegung war am 4. August
1911; bereits ein gutes Jahr später konnte am 3. September 1912 die
Einweihung gefeiert werden. Es handelte sich um einen monumentalen Zentralbau
mit niedrigeren Seitenflügeln. Der zentrale Kuppelraum hatte einen Durchmesser
von 27 m und war 25 m hoch. Es wären 580 Sitzplätze für Männer, 482 für
Frauen vorhanden. Über dem Toraschrein befand sich eine von Orgelbauer Wilhelm
Sauer aus Frankfurt an der Oder konzipierte Orgel.
Beim Novemberpogrom 1938 wurde die Synagoge am frühen Morgen des 10 November
von SS-Trupps geschändet. Mit Brandsätzen wurde Feuer gelegt. Durch
Sprengungen sollte das Gebäude zerstört werden, was jedoch nur teilweise
gelang, da sonst die Nachbarhäuser in Mitleidenschaft gezogen worden wären.
1939/40 musste die jüdische Gemeinde auf Polizeibefehl für den Abbruch und das
Abräumen der Trümmer sorgen. Nach 1945 wurde auf dem Grundstück das
Hauptzollamt erbaut. 1988 fand man Reste der Säulenhalle wieder, die man als
Mahnmal von vier Säulen mit Architrav aufstellen konnte.
Der Architekten-Wettbewerb zur Synagoge 1911
Anmerkung: Das Ergebnis des Architekten-Wettbewerb wurde publiziert in
"Deutsche Konkurrenzen vereinigt mit Architektur-Konkurrenzen" (Ernst
Wasmuth A.-G. Berlin). Hrsg.: Prof. A. Neumeister Karlsruhe. Band XXVI Heft 3.
Nr. 303 Synagoge in Main. Verlag von Seemann & Co. Leipzig 1911.
Die Seiten mit den großformatigen Abbildungen der Entwürfe wurden für die
Darstellung in der Website um 90° gedreht.
 |
 |
 |
 |
 |
Titelblatt der
Publikation |
Inhaltsverzeichnis
und Lageplan |
Text
der Ausschreibung zu a) Der eigentliche Synagogenbau,
b) Das Gemeindehaus, c) Besondere Bedingungen
für den Synagogenbau |
Aus dem Gutachten
des Preisgerichts |
| |
|
|
| |
|
|
|
|
 |
 |
 |
 |
 |
| Forts. |
Die Pläne und
Entwürfe der mit dem 1. Preis ausgezeichneten Arbeit von Willy Graf,
Architekt in Stuttgart |
| |
|
|
|
|
 |
 |
 |
 |
 |
Die Pläne und
Entwürfe der gleichfalls mit einem 1. Preis ausgezeichneten
Arbeit von O. Menzel, Architekt B.D.A. in Dresden |
Die
Pläne und Entwürfe der mit dem 3. Preis
ausgezeichneten Arbeit von Fritz Fuß & Willy Dietsch,
Architekten in Düsseldorf |
| |
| |
|
|
|
|
 |
 |
 |
 |
 |
Forts. 3. Preis
|
Die Pläne und
Entwürfe der Arbeit von
E. Fahrenkamp & Kühnen, Architekten in Düsseldorf |
Die Arbeit von P.
Gracher
und K. Rüschoff,
Architekten in Düsseldorf |
| |
|
| |
|
|
|
|
 |
 |
 |
 |
 |
| Forts. |
Entwurf von Hummel
& Rothe, Architekten in Karlsruhe |
Entwurf von K.
Leubert, Architekt in Karlsruhe |
| |
|
|
|
|
 |
 |
 |
 |
|
Entwurf von Franz
Roeckle,
Architekt in Frankfurt am Main |
Entwurf von
Philipp Hettinger,
Architekt in Heidelberg |
|
| |
|
|
|
|
 |
 |
 |
 |
|
Entwurf von Paul
Müller - Mylau - Düsseldorf;
Mitarbeiter Werner Hagenbruch Düsseldorf |
Entwurf von
Heinrich Stumpf,
Architekt in Darmstadt |
|
Texte zur
Geschichte der 1911/12 erbauten Hauptsynagoge aus jüdischen Periodika
Städtischer Zuschuss zum Neubau der Synagoge
(1910)
Artikel im "Frankfurter Israelitischen Familienblatt"
vom 1. Juli 1910: "Mainz. Die Stadtverordneten
bewilligten zum Neubau einer Synagoge 50.000 Mark an Stelle eines
Bauplatzes. Die jüdische Gemeinde beabsichtigt, das Humannsche Terrain
auf dem Karmelitenplatz zu erwerben". |
| |
Artikel in der "Allgemeinen Zeitung des Judentums"
vom 8. Juli 1910: "Die Stadtverordneten in Mainz bewilligten zum
Neubau einer Synagoge 50.000 Mark an Stelle eines Bauplatzes. Die
jüdische Gemeinde beabsichtigt, das Humannsche Terrain auf dem Karmelitenplatz zu erwerben." |
Beschluss zum Bau einer neuen Synagoge in der Neustadt
(1910)
Artikel im "Frankfurter Israelitischen Familienblatt"
vom 5. August 1910: "Mainz. Die neue Synagoge wird
in der Neustadt gebaut. Das Terrain ist noch
unbestimmt." |
Ein Grundstück zum Bau einer neuen Synagoge wurde erworben
(1910)
Artikel im "Frankfurter Israelitischen Familienblatt"
vom 16. September 1910: "Mainz. Die israelitische
Gemeinde erwarb auf dem Gelände der ehemaligen Lederwerke in der
Neustadt ein Terrain für 130.000 Mark zum Bau einer neuen
Synagoge." |
Entscheidung
des Architektenwettbewerbs (1911)
Artikel
in der "Allgemeinen Zeitung des Judentums" vom 17. Februar
1911: "Bei dem Wettbewerbe eines Planes zur Erbauung einer
Synagoge der israelitischen Religionsgemeinde in Mainz ist das
Preisgericht am 24. Januar mit seiner Prämiierung fertig geworden. Es
waren 133 Projekte eingelaufen. Der erste und zweite Preis in Höhe von
3000 und 2000 Mark wurden zusammengelegt und mit je 2500 Mark die Projekte
der Architekten Willi Graf - Stuttgart und Mensel - Dresden prämiiert.
Den dritten Preis von 1000 Mark erhielt das Projekt der Architekten Fuß
und Ditsch - Düsseldorf". |
Der Bauunternehmer beim Bau der Synagoge hält sich
nicht an die Vereinbarung der Sabbatruhe (1911)
Artikel in der Zeitschrift "Der Israelit" vom 6.
Juli 1911: "Mainz, 30. Juni (1911). Am 26. dieses Monats
nahmen die Arbeiter an dem Neubau der Synagoge der Hauptgemeinde die
Arbeit nicht auf. Der Neubau liegt an einem Platze der Neustadt und wird
von dem nichtjüdischen Bauunternehmer Schreyer ausgeführt. Es
kommen 30 Maurer und 55 Hilfsarbeiter in Frage. Der Grund der
Arbeitsniederlegung ist folgender: Die israelitische Religionsgemeinde hat
den Unternehmer Schreyer bei Ausführung des Baues zur Bedingung gemacht,
dass aus religiösen Gründen am Samstag nicht gearbeitet werden darf. Die
Vertreter der Arbeiter haben nun bei dem Vorstand der israelitischen
Gemeinde, sowie bei dem Unternehmer Schreyer vorgesprochen, damit den
Arbeitern, die den Sabbat feiern müssen, eine Entschädigung gewährt
werde. Der israelitische Gemeindevorstand erklärte, das sei Sache des
Unternehmers, der die Arbeit mit der Bedingung übernommen hätte, dass an
den israelitischen Feiertagen an dem Bau nicht gearbeitet werde und
Schreyer müsste für Entschädigung der feiernden Arbeiter aufkommen.
Unternehmer Schreyer hat abgelehnt, irgendwelche Entschädigung zu
zahlen". |
Die Arbeiten beim Synagogenbau können nach einer
Einigung mit der Firma weitergehen
(1911)
Artikel in der Zeitschrift "Der Israelit" vom 13.
Juli 1911: "Mainz, 7. Juli (1911). Mit der Sperre des von
der Firma Schreyer ausgeführten Synagogen-Neubaues beschäftigte sich
gestern eine Versammlung der aufständischen Arbeiter. Wie schon früher
hier berichtet wurde, ist die Arbeitseinstellung verursacht durch das
Ruhen an den Samstagen, ohne dass den Arbeitern hierfür eine
Entschädigung von dem nichtjüdischen Unternehmer gewährt wurde. In
einer Schlichtungskommissionssitzung vom 4. dieses Monats wurde ein
Vorschlag dahingehend gemacht, den Arbeitern zu empfehlen, unter folgenden
Bedingungen die Arbeit aufzunehmen. Es sollen in der Woche von Monat bis
Freitag inklusive 5 Überstunden gearbeitet werden. Für diese
Überstunden soll ein Zuschlag von 20 Pfennig pro Stunde gewährt werden.
Diejenigen Arbeiter, welche am Synagogenbau Überstunden arbeiten, dürfen
an den Samstagen nicht beschäftigt werden. Nach lebhafter Debatte hat die
Versammlung beschlossen, den Vorschlägen ihre Zustimmung zu geben. Die
Arbeit wurde somit heute früh wieder aufgenommen". |
Grundsteinlegung für die neue Synagoge
(1911)
Artikel im "Frankfurter Israelitischen Familienblatt"
vom 25. August 1911: "Mainz. In feierlicher Weise wurde
die Grundsteinlegung der neuen Synagoge vorgenommen.
Stadtverordneter Kommerzienrat Bernhard Mayer begrüßte die
Erschienenen. Rabbiner Dr. Salfeld gab sodann einen geschichtlichen
Überblick über die Mainzer Synagogen. Wir erfuhren u.a. daraus, dass die
erste urkundliche Erwähnung einer Synagoge in Mainz aus dem Jahre 1093
stammt, und dass die jetzige Synagoge 1844 erbaut wurde. Nach der Rede Dr.
Salfelds wurde in den Grundstein eine Kapsel mit Werken über die
Geschichte der Gemeinde, mit Abbildungen der Synagoge und mit einer von
Rabbiner Dr. Salfeld verfassten hebräischen und deutschen Urkunde
eingefügt." |
| |
Artikel
in der "Allgemeinen Zeitung des Judentums" vom 1. September
1911:
derselbe Artikel wie im "Frankfurter Israelitischen
Familienblatt" s.o. |
| |
Artikel
im "Israelitischen Familienblatt" vom 24. August 1911 mit
Rückblick auf die Geschichte der
alten Synagogen in Mainz von Rabbiner Dr. Salfeld: "Mainz.
(Die Grundsteinlegung der neuen Synagoge.) Zu der Grundsteinlegung auf
dem Gebiete der Bonifaziustraße hatten sich der Vorstand der Israelitischen
Religionsgemeinde, die Mitglieder des Finanz- und Bauausschusses, der
bauführende Architekt und Baumeister, Vertreter der Bürgermeisterei,
sonstige Interessenten usw. eingefunden. Eingeleitet wurde die Feier durch
Vorträge der Psalmen 127, 123, 121. Darauf erfolgte die Begrüßung der Gäste
durch eine inhaltsreiche Rede des ersten Vorsitzenden der Gemeinde, Herrn
Stadtverordneten Kommerzienrat Bernhard Mayer. Herr Rabbiner Dr. Salfeld gab
nun einen geschichtlichen Überblick über die Synagogen der Mainzer
Gemeinden. Selbstverständlich sei, so führte er aus, dass schon im Beginn
des Gemeindelebens für ein würdiges Bethaus gesorgt war, doch datierte die
erste urkundliche Erwähnung einer Gemeinde-Synagoge erst aus dem Jahre 1093.
Drei Jahre später, am 29. Mai 1096, ging das Gotteshaus in Flammen auf.
Der bei der Verfolgung gewaltsam getaufte Vorsteher Mar Isak hatte es
angezündet, um die Umwandlung in eine Kirche zu verhüten. Er starb mit den
Seinigen in dem Feuer. Neben der Hauptsynagoge scheint noch eine andere
bestanden zu haben, denn der Dichter Kalonymos ben Jehuda, der in seiner
Elegie: 'O wär mein Haupt ein Tränenquell' das Unglück der Gemeinden Speyer,
Worms und Mainz beklagt, erwähnt bei der letzteren, 'dass ihre Tempel und
Lehrhäuser zerstört worden seien.' Ein zweites Gotteshaus erwähnt der aus
Mainz stammende, in Worms lehrende Eleasar ben Jehuda im Jahre 1188, Februar
13., an welchem Tage der Mainzer Rabbiner Juda ben Kalonymos nach der
Thoravorlesung am Sabbatnachmittag die Kanzel bestieg und seine Gemeinde in
den Zeiten drohender Gefahr aufrichtete und ermahnte. Dem Machtspruche
Friedrich Barbarossas gelang es damals, die Gemeinde vor den Kreuzfahrern zu
schützen und ihre Synagoge zu retten. Im Jahre 1271 ward eine neue Synagoge
eingeweiht, wie dies das Bruchstück eines jüngst aufgefundenen Steines
beweist, bei einem Aufstand ward sie eingeäschert, der Rabbiner erschlagen
und die Torarollen zerrissen. Diese Synagoge stand an der Stelle, wo sich
heute das Haus Schusterstraße 43 befindet. Achtundsechzig Jahre später, in
den Schreckenstagen der Judenbrände, 24. August 1349, ist alles
Grundeigentum der damaligen Großgemeinde Mainz, mithin auch die Synagoge in
Asche gelegt worden. In alten Chroniken und Stadtrechnungen werden noch
Synagogen erwähnt in den Jahren 1433 und 1442 in der Nähe der heutigen
Stadionerhofstraße. Im 16. Jahrhundert war in Mainz keine Synagoge. In dem
Nachruf auf den 1623 verstorbenen Joseph Cannstatt, dessen Nachfahre, Herr
S. Cahn noch heute Vorsteher der Mainzer jüdischen Gemeinde ist, wird
hervorgehoben, dass er in seinem Hause aus eigenen Mitteln eine Synagoge
erbaut habe. Erst 1639 baute die Gemeinde ein neues Gotteshaus. Kurfürst
Johann Philipp bestimmte 1662, dass beim Einzug der Juden in das
neueröffnete Ghetto die Synagoge wieder 'in bürgerliche' Hände verkauft
werde. 1672 erstand inmitten der Judengassen ein neuer Gotteshaus an
derselben Stelle, an der sich jetzt die Hauptsynagoge befindet. Der Neubau
der jetzigen Synagoge ist 1844 nach dem Plane des Regierungsbaumeisters
Opfermann ausgeführt worden. Die jetzt zu erbauende neue Synagoge solle ein
monumentales Denkmal werden, das in stummer und doch beredter Weise
verkünde, dass der Israelit kein Ghettojude mehr, sondern ein
vollberechtigter, gleichwertiger Bürger des deutschen Staates sei. — Nunmehr
wurde in den Grundstein eine Kapsel mit Werken über die Geschichte der
Gemeinde, mit Abbildungen der Synagoge und mit einer von Herrn Rabbiner Dr.
S. Salfeld verfassten hebräischen und deutschen Urkunde eingefügt, die einen
kurzen Abriss der Geschichte der hiesigen Religionsgemeinde enthält. Die
Urkunde enthält ferner die Namen des derzeitigen Vorstandes, des
Bürgermeisters, der Beamten der Gemeinde, des Vorstandes der Isr.
Religionsgesellschaft, der jüdischen Wohltätigkeits- und anderer jüdischer
Vereine etc. Zum Schlusse heißt es: Die Bauleitung der neuen Synagoge lag in
den Händen des Architekten Herrn Willy Graf - Stuttgart. Ihm standen zur
Seite: Herr Bauführer Ferdinand Sigloch und der technische Beirat des
Gemeindevorstandes Herr Architekt Reinhold Weiße. In den Grundstein wurde
noch eingefügt ein hebräisches Gebet, das Wünsche für den glücklichen
Fortgang des Baues, auf die Erhaltung des Friedens und des Wohlergehens der
Gemeinde und der Bürger der Stadt enthält." |
Einweihung der neuen Synagoge
(1912)
Artikel im "Frankfurter Israelitischen Familienblatt"
vom 6. September 1912: "Mainz. In Gegenwart der Staats- und
Stadtbehörden - Eisenbahnpräsident Laury, Geheimrat Dr. Breidert,
Bürgermeister Dr. Göttelmann - fand die Einweihung der neuen Synagoge
statt. Kommerzienrat Bernhard Mayer, der erste Vorsteher, hielt
eine kurze Ansprache. Rabbiner Dr. Salfeld hielt die Festrede.
Kommerzienrat Mayer erhielt den Philippsorden 1. Klasse,
Rabbiner Dr. Salfeld den Titel
Professor." |
| |
Artikel in der "Allgemeinen Zeitung des Judentums"
vom 11. September 1912: "Mainz, 3. September (1912).
Heute Vormittag 11 1/4 Uhr hatte sich zahlreiches Publikum, darunter die
Spitzen der staatlichen und städtischen Behörden, in der Neuen Synagoge
in der Bonifaziusstraße eingefunden, um der feierlichen Einweihung
derselben beizuwohnen. Die Feier wurde eingeleitet durch einen Choral von
Gluck (Psalm 24,7 bis 10), gesungen vom Synagogenchor und verstärkt durch
sangeskundige Damen und Herren der Gemeinde. Diesem Choral folgte
nachstehende Ansprache des ersten Vorstehers, Herrn Stadtverordneten
Kommerzienrat Bernhard Mayer: ,Im Namen des Vorstandes der Israelitischen
Gemeinde begrüße ich die Vertreter der hohen Behörden, die Ehrengäste
sowie die Mitglieder unserer Gemeinde und danke ich Ihnen aufs Wärmste
für Ihr uns ehrendes Erscheinen. Es gereicht mir zur besonderen Freude,
Ihnen zur heutigen Feier einen kurzen Rückblick auf die Baugeschichte
unseres neuen Gotteshauses geben zu dürfen. Unsere alte Synagoge
entsprach nicht mehr den baupolizeilichen Bestimmungen, die heutzutage an
ein öffentliches Gebäude gestellt werden wegen der Sicherheit der
Besucher. Da ein Umbau des alten Gebäudes mit unverhältnismäßig
großen Kosten verknüpft gewesen wäre und trotzdem nicht Abhilfe aller
Mängel gewährleistet hätte, entschied sich die am 10. Juli 1919
einberufene Gemeindeversammlung mit großer Mehrheit für den Neubau einer
Synagoge. |
Ein allgemeiner Wettbewerb unter den deutschen Architekten wurde zur Erlangung
eines Bebauungsplanes ausgeschrieben, und ging aus diesem Wettbewerb unter 131 Bewerbern Herr
Architekt Willy Graf in Stuttgart mit dem ersten Preis hervor. Ihm wurde vom Vorstande und der von demselben zugezogenen Baukommission der Auftrag zur Erbauung dieses Gotteshauses gegeben, und am 5. Mai 1911 begonnen, können wir heute, nach kaum sechzehnmonatlicher Bauzeit, die Einweihung unserer neuen Synagoge begehen. Für die geniale und rasche Ausführung des Baues gebührt Herrn Architekt Graf unser aller Dank, wie wir ihn auch seinem unermüdlichen Bauwerkmeister Herrn Architekt Siegloch aussprechen. Gleichzeitig danken wir allen den Meistern und Handwerkern, die an unserem
Gotteshause mitgearbeitet haben und ihr Bestes für dasselbe einsetzten. Unser Dank gebührt aber auch den Herren der Bau- und Finanzkommission, die unter dem Vorsitz des Herrn
Beigeordneten Martin Moritz Mayer den Vorstand in seinen Bemühungen, ebenso wie unser hochverehrter Herr Rabbiner, unterstützten, und endlich den Stiftern und Stifterinnen, die zur Ausschmückung dieses Gotteshauses beigetragen haben. Ich gedenke noch der beiden, uns durch den Tod entrissenen früheren Vorstandsmitglieder, des Herren
Martin Meyer-Ganz und Herrn Justizrat Dr. Loeb; sie beide haben unentwegt für diesen Neubau gewirkt, sie beide sollten diesen Tag leider nicht mehr erleben. So entstand dieses Haus, das wir aufrichten zur Ehre des allmächtigen einzigen Gottes, zur Stärkung unserer Gemeinde, und das eine Zierde unserer geliebten Vaterstadt sein möge, in deren Schutz wir unsere Synagoge stellen. In enger finsterer Gasse stand unser früheres Gotteshaus, durch seine Lage stets an schwere Zeiten erinnernd. Vieles hat sich in der Gegenwart geändert, und wenn auch die Lage unseres neuen Gotteshauses nicht mehr an alte Zeiten erinnert, sondern der Neuzeit entspricht, so wollen wir doch immer und stets fest an unserem Glauben halten, für den unsere Vorfahren so schwer gelitten haben. Wir wollen aber auch zeigen, dass bei diesem Festhalten an unserem Glauben wir deutsche Staatsbürger sind, die in Treue an ihrem geliebten Vaterland hängen und, unseren Mitbürgern gleich, Gut und Blut zu opfern jederzeit bereit sind, sowie uns auch der erste Grundsatz unserer Religion, der uns Toleranz gebietet, heilig ist. In Friedenszeiten erbaut, möge dieses Gotteshaus nie andere Zeiten schauen, und möge
jeder hier Frieden und Erbauung finden. Und so übergeben wir diesen Tempel seiner Bestimmung, auf dass einziehe die Lehre,
die einst Gott uns durch Moses auf dem Sinai gegeben – zum Segen der
gesamten Menschheit!, Hierauf erfolgte der feierliche Einzug mit den
Torarollen unter dem Sologesang des ersten Kantors,
Herrn Bernhard Nussbaum. Anschließend fand der Segensspruch des Herrn Rabbiner Dr.
Salfeld statt. Es folgten dann Chor und Terzett aus der Haydnischen ,Schöpfung,. Die Solis wurden von
Frau Lena Simon und den Herren Adolf Trimborn und Rob. Wolfskehl
prächtig zu Gehör gebracht. Beim Anzünden des ewigen Lichtes ertönte der Huldigungsgesang der Gemeinde mit dem herrlichen Solo des Kantors Nussbaum, was einen mächtigen Eindruck machte. Herr
Rabbiner Dr. Salfeld hielt die äußerst wirkungsvolle Festpredigt, worauf sich Weihegebete und Segen sowie das Gebet für Kaiser und Großherzog anschlossen. Die eindrucksvolle Feier endete mit dem Schlussgesang
,Halleluja, (Psalm 150). Zum Schluss sei noch mitgeteilt, dass aus Anlass der Einweihungsfeier Herr Rabbiner Dr.
Salfeld vom Großherzog der Charakter als Professor verliehen wurde. Der erste Vorsteher der Gemeinde, Herr
Kommerzienrat Bernhard Albert Mayer, erhielt das Ritterkreuz erster Klasse des Verdienstordens Philipps des Großmütigen. Zur Feier war eine große Menge von Begrüßungstelegrammen eingelaufen, unter diesen Gratulanten befand sich auch der Herr Minister Dr. Braun."
|
Zur
Einweihung der neuen Synagoge in Mainz (1912)
Anmerkung: der Beitrag ist geschrieben von Rabbiner Dr. Martin Salomonski
(geb. 1881 in Berlin, verschollen 1944 im KZ Auschwitz): 1910 bis 1924 Rabbiner
in Frankfurt an der Oder; 1928 Gemeinderabbiner der Synagoge Schönhauser Allee
in Berlin, ab 1935 Vorsitzender des Kollegiums der Berliner Gemeinderabbiner; am
16. Oktober 1944 nach Auschwitz deportiert.
Artikel
in der "Allgemeinen Zeitung des Judentums" vom 25. September
1912: "Ein Jubeltag im goldenen Mainz.
Aus Frankfurt a. M., das uns liberale Rabbiner am Gedenktage zu wichtiger und erfolgreicher Beratung vereinigt hatte, kam ich
ins nahe Mainz. Meiner Vorfreude, dort am Weihefeste des neuen Gotteshauses der israelitischen Religionsgemeinde teilzunehmen, bot die schöne Stadt schönstes Erleben.
Wetteifernd mit dem Schmuck ihrer Ströme grüßten festfrohe Straßen, grüßten Bürger und Behörden in friedlichem Verein den Ehrentag der Israeliten. Doch machtvollere Empfindungen löste der Bau, zu Ehren des
Ewigen geschaffen auf geschichtlich geheiligtem Boden. Ein Haus Gottes in der Geburtsstadt der deutschen Juden, ein Tempel auf jenem Grunde, da unsere Brüder schon länger beten und leben als einst in Jerusalem, das schuf eine bedeutende Stunde! Hier ist der Ort, da das von Römerhand verwundete Volk Genesung und Kraft zu neuem Ertragen fand, hier ist die Stätte, da das Genie der großen Meister Geistesschätze gebar, der Ewigkeit erhalten durch den Mainzer Gutenberg. Würdig dieser Erinnerungen ist das neue Heiligtum, das den Himmel auf die Erde niederzwingt und den Sohn der Tiefe emporhebt, ein Zeugnis auch dafür, dass Gott erfüllte mit dem Geist der
,Kunst und Einsicht, die Bauleute, mit willigem Herzen die frommen Spender. Doch nicht allein wirkt hier der Kuppel Macht und Höhe, der Farbentöne sanfte Pracht, tausendfältiger Glanz und Schimmer, frommer Klänge Zauberwort.
Mehr noch als Auge und Ohr ernteten Geist und Gemüt. Kurz an Sätzen, reich an Gedanken war die Begrüßung des ersten Vorstehers, Kommerzienrats Mayer, der den Bau seiner Bestimmung übergab. Und dann die Weihepredigt des aus Anlass der Feier zum Professor ernennten Rabbiners Dr. Salfeld! Die Geschichte seiner Gemeinde, die Bedeutung des Gotteshauses verflocht der Meister der Wissenschaft und der Rede zu tief ergreifender Gestaltung; allen, die seinen Lippen lauschten, selbst Abbild und
Verkörperung der Gemeinde, als treuer Führer und Hüter seit Jahrzehnten, voranleuchtend in Würde, vorwärtsschauend mit Aufrichtigkeit, emporführend mit nimmermüder Kraft.
Die Feier des Hauses ist auch die seine geworden. Das bleibt des denkwürdigen Tages kostbares Dokument. Umhegt von seiner Lebensgefährtin, den Kindern und Enkeln, innig verbunden mit seiner Gemeinde, geehrt vom Herrn des Landes, geliebt von seinen hessischen Amtsgenossen, deren keiner fehlte, hat er des Lebens Höhe erklommen. Mag der schönen Stunden Sonnenschein nicht schwinden ihm und seinen Getreuen, mag der Jubeltag in Mainz auch anderer Orten gleichen Opfersinn und begeisternden Nachhall wecken!
Salomonski". |
Foto der neuen
Synagoge (1912)
Foto
in der "Allgemeinen Zeitung des Judentums" vom 2. Oktober 1912:
"Die Mainzer neue Synagoge". |
Feierliche Enthüllung der Ehrentafeln für die im
Ersten Weltkrieg aus der Gemeinde gefallenen Soldaten
(1921)
Artikel in der "Allgemeinen Zeitung des Judentums"
vom 9. Dezember 1921: "Mainz, 2. Dezember (1921). Unter
lebhafter Anteilnahme der staatlichen und städtischen Behörden, der
Schuldirektoren, des Eisenbahn- und Landgerichtspräsidenten, des
Vorsitzenden der Handelskammer und anderen mehr sowie eines großen Teils
der Mainzer jüdischen Bevölkerung fand in der hiesigen Hauptsynagoge die
feierliche Enthüllung der Ehrentafeln zum Gedächtnis an die im
Kriege gefallenen 66 Gemeindemitglieder, gleich 2,02 Prozent der hier
wohnenden Israeliten statt. Im Vorort Bretzenheim
fielen fünf Söhne aus zehn jüdischen Familien. Die Abnahme der Verhüllung
erfolgte durch zwei jüdische Frontkämpfer, Inhaber des Eisernen Kreuzes
1. Klasse. Die Namen der Gefallenen sind alphabetisch geordnet. Aus
mehreren Familien sind zwei Söhne gefallen, aus mancher Familie der
einzige Sohn beziehungsweise Kind, viele der Eltern sind ihren Söhnen
bereits in die Gruft nachgefolgt. In seiner überaus eindrucksvollen
Weiherede hob Herr Rabbiner Dr. Levi hervor, dass der Vorwurf, die
Juden seien schuld am Kriege, ebenso unbegründet sei wie derjenige, dass
die Juden revolutionären und destruktiven Tendenzen hauptsächlich huldigten.
Kein gläubiger Jude wird auch nur einen einzigen Stein vol Bau des
Vaterlandes reißen. Die, die uns als Schädlinge angeheftet werden, waren
unserem Bekenntnisse schon untreu, ehe sie an der Sache des Vaterlandes
rüttelten. Die Tafeln sind künstlerisch ausgeführt und mit
entsprechenden hebräischen Sprüchen verziert. Stimmungsvoll wurde die
Feier eingeleitet durch ein freies Vorspiel für Orgel nach dem Motiv: ,In
der Heimat, in der Heimat, da gibt,s ein Wiedersehen,. Es folgten das
Solo: ,Ruht in Frieden, alle Seelen, von Schubert, der Chor ,Enosch
k,chozir jomow, von Lewandowski, dann nach der Weiherede (Psalm 61,5) der
Chor: ,Seele, was betrübst du dich?, von Staab. Von gleich gehobener
Stimmung war der Schlusschor: ,Ich hat einen Kameraden,, der zumal auf die
anwesenden Nichtisraeliten eine äußerst starke Wirkung hervorrief. -
Unser Herr Rabbiner Dr. Levi betätigte sich in jüngster Zeit mit großem
Erfolge in Wort und Schrift in der Abwehr antisemitischer Angriffe, an
denen es auch hier nicht fehlt." |
| |
Artikel in der Zeitschrift "Der Israelit" vom
8. Dezember 1921: Derselbe Bericht wie oben.
|
Der Betsaal 1938/40
Nach der Zerstörung der Hauptsynagoge konnte die jüdische
Gemeinde ihre Versammlungsräume noch im Haus Forsterstr. 2 (damals
"Horst-Wessel-Straße") einrichten. Bis zu den Deportationen der
Mainzer Juden traf man sich hier zu Gottesdiensten. Das Gebäude wurde im Krieg
teilweise ausgebombt. Eine Gedenktafel ist am Nachfolgebau (seit 1952 jüdisches
Gemeindezentrum) angebracht.
Die Synagogen nach 1945
Nach Kriegsende 1945 kamen zunächst nur wenige Juden nach Mainz zurück. Als
erster Betsaal diente die Trauerhalle auf dem neuen
jüdischen Friedhof. 1947 konnte vorübergehend eine Synagoge in einer früheren
Turnhalle der Feldbergschule am Feldbergplatz eingerichtet werden. 1952
wurde ein neues Gemeindezentrum mit Betsaal auf dem Anwesen Forsterstraße 2
erbaut, wo sich das frühere jüdische Gemeindezentrum befand. 1966 wurde der
Betsaal erweitert.
Die Einweihung der neuen Synagoge (1947)
Artikel
im "Jüdischen Gemeindeblatt" vom 24. September
1947: "Mainz und Rheinhessen. Als man am frühen Nachmittag
des 10. September durch Mainz ging, waren an den Straßenkreuzungen mehr
deutsche Polizei und mehr französische Gendarmerie als gewöhnlich
bemerkbar: Sollte das etwa mit der an diesem Tage stattfindenden
Einweihung der Mainzer Synagoge zusammenhängen? Tatsächlich war dies der
Fall. Hohe Offiziere der französischen Besatzungsmacht und der
französischen Zivilverwaltung, der die jüdische Gemeinde die Initiative
zur Errichtung ihres neuen Gotteshauses verdankt, waren zu der feierlichen
Handlung erschienen. Gleichzeitig hatten sich neben den Vertretern der
maßgebenden deutschen Behörden und des Mainzer Bischofs überaus
zahlreiche Mitglieder der Mainzer und anderer jüdischer Gemeinden Hessens
eingefunden, um diesem seltenen Akt beizuwohnen.
Der Gemeindevorsitzende, Max Gruenfeld, begrüßte insbesondere die
Ehrengäste, dankte allen, die das nunmehr vollendete Werk schaf- |
fen
halten, und gedachte der dahingegangenen führen Persönlichkeiten der
einstmals blühenden Kehilla. Die Reihe der Ansprachen, später vom Radio
Koblenz übertragen, eröffnete Addi Bernd (Koblenz), der Präsident des
Landesverbandes der jüdischen Gemeinden von Rheinland-Pfalz. Ihm folgte
Dr. C. Epstein (Wiesbaden), der in seiner Eigenschaft als Staatskommissar
für de rassisch, religiös und politische Verfolgten die Grüße und
Wünsche des Hessischen Staatsministeriums überbrachte. Regierungspräsident
Dr. Rückert (Mainz) sprach im Namen des Ministerpräsidenten des Landes
Rheinland-Pfalz, Altmeyer, und zugleich als Vertreter der Regierung von
Rheinhessen. Oberbürgermeister Dr. Klaus (Mainz) erinnerte u.a. an die
schändlichen Novembertage des Jahres 1938, denen auch die alte stolze
Synagoge der Stadt zum Opfer gefallen war. Der Vertreter der Jewish Relief
Unit und des Jewish Committee for Relief Abroad, London, Dr. E.G.
Lowenthal (Düsseldorf) ging auf die Bedeutung der Errichtung einer
Synagoge in dieser Zeit der Trostlosigkeit jüdischen Lebens ein. Der am
Erscheinen verhinderte amerikanische Armeerabbiner William Z. Dalin war
durch J. Matzner (Wiesbaden) vertreten. Von den französischen Militärs
sprachen Armeerabbiner Kalifa, General Jacobsen (Mainz), Gouverneur der
Provinz Rheinhessen, und Col. Julit (Koblenz), der im Auftrage des
Generalgouverneurs von Rheinland-Pfalz, General Hettier de Boislambert,
erschienen war.
Die Feier, die mit der Einbringung der Tora-Rollen, dem Gebet für die
französische Republik und dem wirkungsvoll vorgetragenen El Mole
Raschamim beendet wurde, war durch religiöse Gesänge des Jüdischen
Chors Wiesbaden (Leitung: Josef Brandsdorfer) und Kapellmeister Hohner (am
Harmonium) umrahmt. Die Synagoge, auf Kosten der Stadt Mainz in der
früheren Turnhalle der Feldbergschule errichtet, ist würdig, schlicht
und geschmackvoll gestaltet, wobei Überkommenes in zeitgemäßer Form
Ausdruck findet. Eine kleine Festschrift enthält einen Abriss der
Geschichte der Juden in Mainz aus der Feder von Regierungsrat Michel
Oppenheim. Im Anschluss an die Synagogenweihe wurde die aus über 2000
Bänden bestehende Gemeindebibliothek besichtigt, die seit dem
berüchtigten Synagogenbrand von der Mainzer Stadtbibliothek in Verwahr
gehalten wurden war, eine teilweise sehr bemerkenswerte Sammlung, die eine
Seltenheit im jüdischen leben Deutschlands bleiben wird, solange das
Schicksal ähnlicher jüdischer Büchereien ungewiss ist.
th." |
Zwei Gedenktafeln wurden in der Synagoge enthüllt
(1947)
Artikel
im "Jüdischen Gemeindeblatt" vom 31. Dezember 1947: "Wie
in der vorigen Nummer des ,Gemeindeblattes, kurz mitgeteilt, wurden im
Gebäude der vor einigen Monaten feierlich eingeweihten Synagoge zwei
Gedenktafeln enthüllt, Die Eine, die innerhalb des Gotteshauses
angebracht ist, erinnert an die Zerstörung der beiden Mainzer Synagogen
in Jahre 1938, die andere, größere, im Synagogenvorraum errichtet, ist
ein Mahnmal an die vielen Juden, die ein Opfer des Nazi-Terrors
wurden.
An den Enthüllungsfeierlichkeiten nahmen u.a. teil der Gouverneur der Franzischen
Militärregierung von Rheinhessen, Guérin, der Innenminister Steffan, der
Leiter der örtlichen Betreuungsstelle, Baumann, der Vorsitzende der
Jüdischen Gemeinde Mainz, Max Grünfeld. Ihre Worte waren dem Sinn der
Gedenkstunde angepasst. Regierungsrat M. Oppenheim, der Kulturdezernent von
Mainz nahm die Tafeln in die Obhut der Stadt. th" |
Seit 1996 (erstmals bereits Anfang der 1960er-Jahre, jedoch nicht
ausgeführt) gab es Pläne für ein neues jüdisches Gemeindezentrum.
Den Architektenwettbewerb gewann
1999 Manuel Herz, Köln. Der Neubau wurde 2008-2010 auf dem alten
Synagogengrundstück Hindenburgstraße 44 (bzw. neue Adresse des
Gemeindezentrums: Synagogenplatz) ausgeführt. Die Synagoge wurde am 3.
September 2010 eingeweiht - siehe Berichte
und Fotos auf einer weiteren Seite.
Fotos
Historische Fotos/Abbildungen:
| Die Synagogen des 17./19. Jahrhunderts |
|
|
 |
 |
 |
Alte Synagoge in der Unteren
Judengasse
(später Synagogenstraße 12): Aufriss der
Vorderansicht vor
dem Abbruch 1846. |
Die 1853 eingeweihte
Hauptsynagoge
(Quelle links: "Der israelitische Volkslehrer":
Heft März 1853. |
| |
| |
|
Aufnahmen der orthodoxen Synagoge
in der Flachsmarktstraße |
 |
 |
| |
vgl. Artikel von
Leo Trepp auf Seite der Jüdischen Gemeinde Mainz: hier
anklicken |
| |
|
| Die 1911/12 eingeweihte Hauptsynagoge |
|
 |
 |
 |
| Historische
Ansichtskarten der neuen Synagoge |
| |
 |
 |
 |
| Weitere Ansichten
der neuen Synagoge |
(Quelle:
United States Holocaust
Memorial Museum) |
| |
|
 |
|
|
Abbrucharbeiten 1939/40 |
|
Fotos nach 1945:
Denkmal für das
Judenviertel und die alte,
bis 1912 verwendete
Synagoge
(Quelle: Website
des VVN-BdA Mainz) |
 |
 |
| Inschrift der
Tafel: "Auf diesem Gelände der Landes-Bausparkasse wurde 1671 das
Judenviertel den Mainzer Juden als Wohngebiet zugewiesen. Es wurde 1798
von der Stadt aufgelassen (das Viertel zählte damals rund 850 Seelen) und
im Zweiten Weltkrieg durch Bomben zerstört. In der 1855 auf den
Fundamenten der 1684 errichteten, 1717 erweiterten Synagoge
(Synagogenstraße 10/12) der Israelitischen Religionsgemeinde wurde bis
1912 Gottesdienst gehalten. Bei den sichtbaren Mauerresten handelte es
sich um Teile der nördlichen Umfassungsmauer der Synagoge. Die in dieser
Mauer befindliche Synagogentür ist hier in Originalgröße
wiedergegeben." |
| |
|
|
 |
 |
 |
| Die Reste der
Säulenhalle der Synagoge in der Hindenburgstraße; 1988 als Denkmal
aufgestellt |
| |
 |
 |
|
| |
Gedenkstein mit Darstellung
der Synagoge |
|
| |
|
|
| |
|
|
Pläne für die neue Synagoge
(1999, eingeweiht im September 2010) |
 |
 |
| |
|
|
| |
Link:
zur Seite über die neue Synagoge in
Mainz |
Erinnerungsarbeit vor Ort - einzelne Berichte
| Juli 2012:
Gedenken an den Großvater - über einen
"Stolperstein" in Mainz |
| Gedenken an den Großvater (Allgemeine Zeitung, 28.07.2012). |
| |
| Februar 2015:
Nach der Verlegung von weiteren 19
"Stolpersteinen" gibt es nun 115 "Stolpersteine" in
Mainz |
| - Bericht mit Video: siehe Website des SWR:
http://www.swr.de/landesschau-aktuell/rp/mainz/stolpersteine-mainz-demnig-naziopfer/-/id=1662/nid=1662/did=15006226/o0z2il/ |
| |
Mai 2018:
Über 200 "Stolpersteine" gibt es nun
in Mainz
Anmerkung: am 8. Mai 2018 wurden weitere 19 "Stolpersteine"
in Mainz verlegt, in der Welschnonnengasse 7, in der Kaiserstraße 12, in
der Neubrunnenstraße 23, in der Kaiserstraße 32, in der Colmarstraße
12. |
Artikel von Ralph Keim in der "Lokalen
Zeitung" (Mainz) vom 9. Mai 2018: "Dürfen nicht in
Vergessenheit geraten..."
Link
zum Artikel |
| |
Link zum Wikipedia-Artikel "Liste der
Stolpersteine in Mainz": https://de.wikipedia.org/wiki/Liste_der_Stolpersteine_in_Mainz
Weitere Übersichten: http://www.mainz1933-1945.de/stolpersteine.html
und https://www.mainz.de/kultur-und-wissenschaft/stadtgeschichte/magenza/stolpersteine.php |
| |
|
Oktober 2019:
Weitere
"Stolpersteine" wurden verlegt
|
Artikel von Ralph Keim in der "Lokalen
Zeitung" (Mainz) vom Oktober 2019: "Weitere Stolpersteine verlegt.
MAINZ – In der Innenstadt sind weitere Stolpersteine verlegt worden.
Auch sie erinnern direkt vor den betreffenden Häusern an die früheren
Bewohner, die Opfer des nationalsozialistischen Terrors waren. Sie verfolgt,
entrechtet, deportiert und in vielen Fällen ermordet. Gunter Demnig, Kölner
Bildhauer und Ideengeber des Projektes ,Stolpersteine,, verlegte die
Stolpersteine persönlich. Im Bereich Umbach 4 erinnern die beiden
Stolpersteine an Markus Mattes und an Anna Mattes, geb. Reis. Sie wurde 1882
geboren und im Alter von 60 Jahren nach Plaski deportiert, wo sie ermordet
wurde. Dasselbe Schicksal ereilte ihren 1883 geborenen Ehemann Markus.
An der Stelle, wo Markus und Anna Mattes einst lebten, fand die Gedenkfeier
statt, zu der eigens Nachkommen der beiden Opfer nationalsozialistischen
Terrors nach Mainz gereist. , Sie leben heute in Israel und in den USA. In
ihrer Rede betonte die ebenfalls anwesende Kulturdezernentin Marianne
Grosse, dass es niemals einen Schlussstrich geben dürfe, was die deutsche
Geschichte während der Nazi-Diktatur angehe. Sie lobte die Idee der
Stolpersteine als Projekt gegen das Vergessen. Gegen das Vergessen von
Verbrechen, die es auch in Mainz gegeben hat.
Insgesamt wurden an diesem Tag 15 Stolpersteine an acht Stellen verlegt:
Welschnonnengasse 24 (Elise Kahn, geb. Kahn), Klarastraße 29 (Berta Abt,
geb. Kahn-Hut und Meta Abt), Schusterstraße 44-46 (Louis Frank, Irma Frank,
geb. Lesem, Lotte Frank, Günther Frank und Emma Lesem, geb. Ackermann),
Christophsstraße 2 (Moritz Fried und Gerda Fried, geb. Löwenstein),
Taunusstraße 23 (Johanna Wasserburg, geb. Kern), Taunusstraße 31 (Martha
Horch) und Jakob-Dieterich-Straße 5 (David Julius) sowie Umbach 4 (Markus
Mattes und Anna Mattes, geb. Reis).
Damit sind in Mainz inzwischen mehr als 200 Stolpersteine verlegt worden.
Sie wurden von verschiedenen Vereinen, Institutionen und Privatpersonen
gestiftet. Die ersten Stolpersteine wurden im Juni 2007 verlegt."
Link zum Artikel |
| |
|
Januar 2020:
Bewerbung der Schum-Städte Speyer,
Worms und Mainz als Unesco-Weltkulturerbe wird eingereicht
|
Artikel
von Dagmar Gilcher in der "Rhein-Pfalz" vom 14. Januar 2020: "Auf der
Zielgeraden.
Am 23. Januar ist es so weit: Der Welterbe-Anfrag "SchUM-Stätten Speyer,
Worms und Mainz" wird bei der Unesco in Paris eingereicht. Fristgerecht.
Gestern hat ihn die rheinland-pfälzische Ministerpräsidentin Malu Dreyer
unterzeichnet. Es sind über 1000 Seiten, die dem Erbe des jüdischen
Mittelalters am Oberrhein im Sommer 2021 die begehrte Auszeichnung bringen
sollen...".
Zum Lesen bitte Textabbildung anklicken. |
| |
|
Juli 2020:
Zur jüdischen Geschichte in Mainz
gibt es eine APP für das Smartphone |
Artikel von J. König in den "Rheinhessen-News"
vom 30. Juli 2020: "Die MAINZ-App auf den Spuren der jüdischen
Geschichte / Neues Virtual Reality-Modul ,Judengasse Mainz, ermöglicht das
virtuelle Erlebnis des Judenviertels & der alten Synagoge
Mainz - Die MAINZ-App bietet sowohl interessante Informationen und
Services für Tourist*innen und Bürger*innen als auch anschauliche
3D-Rekonstruktionen. So wurden bereits das ,Römische Bühnentheater, und das
mittelalterliche ,Alte Kaufhaus am Brand, in Virtual Reality nachgebaut und
virtuell erlebbar gemacht, eine ,virtuelle Gutenberg-Tour, lässt den Nutzer
per Augmented Reality in das ,historische Mainz, eintauchen. Neben dem
,Römischen Mainz, und dem ,Mainz zu Zeiten Gutenbergs, wurde nun ein
weiteres, für Mainz be-deutendes Thema in die MAINZ-App integriert:
Gemeinsam mit der Jüdischen Gemeinde Mainz und ,Geographie für Alle e.V.,
wurde das ehemalige Juden-viertel rund um die heutige Klarastraße
rekonstruiert und virtuell erlebbar gemacht. Per Virtual Reality können die
App-Nutzer*innen die alte Synagoge und das umgebende Viertel digital
erkunden. Die offizielle MAINZ-App, die von der Landeshauptstadt Mainz,
mainzplus CITYMARKETING und dem Tourismusfonds Mainz e.V. entwickelt wurde,
ist kostenlos in den App-Stores erhältlich.
Gerade in Zeiten von Kontaktverbot und Reisebeschränkungen werden virtuelle
Anwendungen immer wichtiger, um Destinationen erlebbar zu machen. Die vor
zwei Jahren veröffentlichte, offizielle MAINZ-App dient hierbei als
,digitales Schaufenster, und Reiseführer für die touristischen Angebote und
Sehenswürdigkeiten der rhein-land-pfälzischen Landeshauptstadt – und dies
auch unter Nutzung moderner Tech-nologien wie Virtual und Augmented Reality.
Ergänzend zu den bereits umgesetzten Modulen ,Römisches Mainz, und ,Mainz zu
Gutenbergs Zeiten, wurde nun ein weiteres, für die Stadt Mainz prägendes
Thema integriert: Das ,Jüdische Mainz, – in der MAINZ-App repräsentiert
durch mehrere 3D-Rekonstruktionen des ehemaligen Mainzer Judenviertels und
der alten Synagoge rund um die heutige Klarastraße.
Im Rahmen der Umsetzung des neuen Virtual Reality-Moduls ,Judengasse
Mainz, haben die Initiator*innen der MAINZ-App – die Landeshauptstadt
Mainz, mainzplus CITYMARKETING und der Tourismusfonds Mainz e.V. –
zahlreiche relevante Akteur*innen zum Thema an einen Tisch gebracht, um
gemeinsam ein virtuelles Erlebnis der jüdischen Geschichte in Mainz zu
schaffen. So haben die Jüdische Gemeinde Mainz, das Stadtarchiv Mainz und
der Verein ,Geographie für Alle e.V., an der historischen Aufarbeitung des
Virtual Reality-Moduls mitgewirkt. Die 3D-Rekonstruktion erfolgte durch die
Firma monoklexplore the invisible, die technische Integration übernahm das
Mainzer Unternehmen VRM Corporate Solutions.
Das neue Modul ,Judengasse Mainz, gibt Einblicke in das damalige Wohngebiet
der jüdischen Bevölkerung in Mainz – im Zeitraum vom 17. Jahrhundert bis in
die 1920er Jahre. Zu sehen sind die engen Straßenzüge der geschlossenen
Judengasse, die 1662 auf Anordnung des Kurfürsten entstand. Außerdem können
die App- Nutzer*innen die typischen Wohnhäuser in der offenen Judengasse und
die Juden-wache erkunden. Ein besonderes Highlight ist die liberale Synagoge
von 1853 in der Vorderen Synagogenstraße, die sowohl von außen als auch von
innen digital rekonstruiert wurde und zu einem virtuellen Besuch einlädt. In
mehreren Teilabschnitten tauchen die App-Nutzer*innen am Smartphone oder
Tablet per Virtual Reality in das ,Jüdische Mainz, ein und erhalten
innerhalb der Anwendung Informationen zur jeweiligen Ansicht. Für die
Nutzung der MAINZ-App und des Moduls ,Judengasse Mainz, werden keinerlei
sonstige technische Hilfsmittel benötigt. Wer möchte, kann das Virtual
Reality-Erlebnis durch eine VR-Brille verstärken – entsprechende ,Cardboards,
sind für 6 Euro im Tourist Service Center Mainz im Brückenturm erhältlich.
Der Download und die Nutzung der MAINZ-App inkl. aller Module sind
kostenlos. ,Wir freuen uns, dass das ehemalige Judenviertel, das einen
wichtigen Bestandteil der jüdischen Geschichte in Mainz ausmacht, nun
virtuell aufgearbeitet und somit erlebbar gemacht wurde. Für uns ist dies
ein weiterer Baustein unseres Auftrags, das jüdische Erbe zu konservieren,
indem wir es für eine breite Öffentlichkeit zugänglich machen,, so Anna
Kischner, Vorsitzende der Jüdischen Gemeinde Mainz. ,Das jüdische Erbe
gehört so eng zu Mainz wie beispielsweise auch die römische Geschichte, das
Mittelalter, Gutenberg und das barocke Mainz. Die Konservierung dieses
wichtigen Kulturguts sowie das stetige Erinnern an die positiven wie
negativen Entwicklungen und auch ‚dunklen Seiten‘ in der Mainzer Geschichte
sind ein wichtiger Auftrag unseres täglichen Handelns. Ich bin froh, dass
mit der MAINZ-App eine Plattform geschaffen wurde, die einen tiefen,
virtuellen Einblick in unsere Historie ermöglicht,, so Michael Ebling,
Oberbürgermeister der Landeshauptstadt Mainz. Alle Informationen zur
MAINZ-App gibt es unter www.mainz-app.de.
Der kostenlose Download erfolgt über den App Store (Apple / iOS) bzw. Google
Play (Android). Nutzer*innen, die die MAINZ-App bereits installiert haben
und zukünftig auf das neue Modul ,Judengasse Mainz, zugreifen möchten,
können die MAINZ-App am eigenen Endgerät unter ,Einstellungen, bzw. direkt
im App-Store aktualisieren."
Link zum Artikel |
Links und Literatur
Links:
Literatur:
 | siehe die Zusammenstellung:
Literatur zur Geschichte der Juden in Mainz, Rheinhessen und Rheinland-Pfalz
(Stand: 27.3.2012,
auch intern als pdf-Datei eingestellt) |
 | Siegmund Salfeld: Bilder aus der Vergangenheit der
jüdischen Gemeinde Mainz. Festgabe zur Erinnerung an die 50jährige
Wiederkehr des Einweihungstages (11. März 1853) der Hauptsynagoge. Mainz
1903. Eingestellt
als pdf-Datei. |
 | Germania Judaica I,174-228; II,2 512-521; III,2 786-831 (jeweils
mit Lit.). |
 | Paul Arnsberg: Die jüdischen Gemeinden in Hessen.
1971 Bd. II,7-46 (Lit.). |
 | Rolf Dörrlamm: Magenza. Die Geschichte des jüdischen Mainz,
Festschrift zur Einweihung des neuen Verwaltungsgebäudes der
Landes-Bausparkasse Rheinland-Pfalz. Mainz 1995. |
 | Tatjana Böttcher / Christina Ochs: Denkmal -
denk mal. Der alte jüdische Friedhof in Magenza / Die "Neue
Synagoge". In: SACHOR. Beiträge zur Jüdischen Geschichte und zur Gedenkstättenarbeit
in Rheinland-Pfalz. Hrsg. von Matthias Molitor
und Hans-Eberhard Berkemann in Zusammenarbeit mit der Landeszentrale für
politische Bildung Rheinland-Pfalz. Erschienen im Verlag Matthias Ess in Bad
Kreuznach. 5. Jahrgang, Ausgabe 2/95 S. 48-56. Beitrag
online zugänglich (pdf-Datei). |
 | Franz Dumont/Ferdinand Scherf, Friedrich Schütz
(Hrsg.): Mainz. Die Geschichte der Stadt. Mainz 1999. |
 | Juden in Mainz, Katalog zur Ausstellung der Stadt Mainz im
Rathaus-Foyer im November 1978, bearbeitet von Friedrich Schütz. Mainz 1978.
(Lit.). Publikation
online zugänglich (pdf-Datei). |
 | Friedrich Schütz: Skizzen zur Geschichte der jüdischen Gemeinde
in Weisenau bei Mainz. Mit einer besonderen Würdigung der Familie Bernays,
in: Mainzer Zeitschrift. Mittelrheinisches Jahrbuch für Archäologie, Kunst
und Geschichte, Jg. 92, 1987, Mainz 1987, S. 151-179. |
 | Bernd A. Vest: Der alte jüdische Friedhof in Mainz. Mainz 2000. |
 | Als die letzten Hoffnungen verbrannten, 9./10. November 1938, Mainzer
Juden zwischen Integration und Vernichtung, herausgegeben von Dr. Anton
Maria Keim und dem Verein für Sozialgeschichte Mainz e.V.,
Hermann Schmidt Verlag Mainz. 1988. |
 | Sonderheft der Mainzer Geschichtsblätter: Die Mainzer Synagogen.
Ein Überblick über die Mainzer Synagogenbauwerke, mit ergänzenden Beiträgen über bedeutende Mainzer Rabbiner, das alte Judenviertel und die
Bibliotheken der jüdischen Gemeinden.
Mit Beiträgen von Dieter Krienke, Andreas Lehnardt, Leo
Trepp, Ingrid Westerhoff und Gabriele Ziethen, hrsg. von Hedwig
Brüchert im Auftrag des Vereins für Sozialgeschichte Mainz e.V.
Mainz 2008, ISSN 1435-8026, 186 Seiten, zahlreiche Abbildungen, Hardcover, Preis: 12,00 €.
Kurzbeschreibung: Dieses Buch will die aus dem Mainzer Stadtbild verschwundenen Synagogen und damit einen wichtigen Teil der Geschichte der traditionsreichen Mainzer jüdischen Gemeinde dokumentieren. Gleichzeitig wird an wichtige Rabbiner, die in vergangenen Jahrhunderten in dieser Stadt wirkten, und an die bedeutenden jüdischen Bibliotheken in Mainz erinnert.
Unter den Baumeistern der prächtigen Mainzer Synagogen des 19. und frühen 20. Jahrhunderts finden sich bekannte Namen, wie Ignaz Opfermann, Eduard Kreyßig und Willy Graf. Die meisten dieser Gotteshäuser wurden im November 1938 geschändet und zerstört; die niedergehenden Bomben im Krieg machten dann auch noch die Reste der Bauwerke dem Erdboden gleich. Abgesehen von der restaurierten kleinen Weisenauer Synagoge künden heute nur noch einige Gedenktafeln von den früheren Gebetsstätten und Lehrhäusern der Mainzer Juden.
Doch der Band ruft nicht nur Verlorenes in Erinnerung, sondern bietet auch einen hoffnungsvollen Blick in die Zukunft. Vorgestellt wird der Entwurf des Architekten Manuel Herz für ein neues jüdisches Gemeindezentrum mit Synagoge, das schon bald am Standort der früheren Hauptsynagoge in der Hindenburgstraße entstehen wird.
|
 | Magenza - Mainz. 100 Jahre jüdisches Leben am Rhein.
Hrsg. von der Landeshauptstadt Mainz 2013. Publikation
online zugänglich (pdf-Datei). |
 | Michael Stowell Phillips: Jews of Kaiserstrasse.
Published by JewishGen, Inc. New York 2020. Online zugänglich:
https://www.jewishgen.org/yizkor/Mainz/files/Mainz.pdf
|
vorherige Synagoge zur ersten Synagoge nächste Synagoge
|