|
Eingangsseite
Aktuelle Informationen
Jahrestagungen von Alemannia Judaica
Die Mitglieder der
Arbeitsgemeinschaft
Jüdische Friedhöfe
(Frühere und bestehende) Synagogen
Übersicht: Jüdische Kulturdenkmale
in der Region
Bestehende jüdische Gemeinden
in der Region
Jüdische Museen
FORSCHUNGS-
PROJEKTE
Literatur und Presseartikel
Adressliste
Digitale Postkarten
Links
| |
zurück zur Übersicht "Synagogen in der Region"
zurück zur Übersicht "Synagogen in Hessen"
Zur Übersicht
"Synagogen im Main-Kinzig-Kreis"
Vollmerz (Stadt
Schlüchtern, Main-Kinzig-Kreis)
Jüdische Geschichte / Synagoge
Übersicht:
Zur Geschichte der jüdischen Gemeinde (english
version)
In Vollmerz bestand eine jüdische
Gemeinde bis nach 1933. Ihre Entstehung geht in die Zeit des 17./18.
Jahrhunderts zurück. 1587 werden erstmals Juden am Ort genannt. 1687
gab es drei jüdische Familien in Vollmerz.
Im 18. Jahrhundert nahm die Zahl der jüdischen Familien weiter zu (1751
sieben Familien, 1769 12 Familien).
Im 19. Jahrhundert entwickelte sich die Zahl der jüdischen Einwohner
wie
folgt: 1835 105 jüdische Einwohner, 1861 103 (22,7 % von insgesamt 454
Einwohnern), 1871 78 (9,7 % von 804), 1885 52 (6,5 % von 803), 1892 45 (in 11
Familien), 1897 48 (in elf Familien), 1903 30 (in sieben Haushaltungen), 1905 34 (4,8 %
von 711 Einwohnern).
An Einrichtungen bestanden eine Synagoge (s.u.), eine jüdische Schule
(Religionsschule), ein rituelles Bad (im Synagogengebäude) und einen Friedhof. Zur Besorgung
religiöser Aufgaben der Gemeinde war im 19. Jahrhundert zeitweise ein
jüdischer Lehrer angestellt, der teilweise auch als Vorbeter und Schochet tätig war.
Unter den Lehrern in der ersten Hälfte des 19. Jahrhunderts in Vollmerz ist
bekannt: Heym Neumark, Vater des Lehrers (in Hochstadt)
Salomon Neumark (1824-1864). Seit Ende der 1870er-Jahre hatte die jüdische
Gemeinde keinen eigenen Religionslehrer mehr. Nun besuchten die jüdischen Kinder der
Gemeinde die israelitische Elementarschule in Sterbfritz
bzw. der jüdische Lehrer aus Sterbfritz kam zum Religionsunterricht nach Volmerz.
Um 1887/1901 erteilte Lehrer M. Luß aus
Sterbfritz den Religionsunterricht in Vollmerz, ab 1903 Lehrer S. Neuhaus
aus Sterbfritz. 1892 und 1895 waren neun, 1897 sechs, 1898 fünf, 1901 drei, 1903
vier, 1933 noch drei schulpflichtige Kinder am Ort. Um 1897/1903 war in Vollmerz
J. Grünebaum als Schochet und Kantor tätig.
Die Gemeinde gehörte zum
Rabbinatsbezirk Hanau.
Nach einem Bericht von 1865 gab es damals einen Sofer
(Toraschreiber) in Vollmerz (siehe Artikel aus der Zeitschrift "Der
Israelit" bei Ungedanken):
"Auch in unserer Gegend hat sich seit einiger Zeit ein Sofer etabliert,
Herr Wolf Grünebaum in Vollmerz, der bis jetzt sehr schöne Arbeiten
geliefert hat, und recht tüchtig in seinem Fache zu sein
scheint." Dieser Sofer Wolf Grünebaum war wenige Jahre später im
deutsch-französischen Krieg 1870/71 eingesetzt, aus dem er mit hohen
Auszeichnungen zurückgekommen ist. Er verzog später nach Fulda, wo er im Juni
1906 verstorben ist (Berichte zu ihm siehe unten).
Von den Gemeindevorstehern werden genannt: um 1866 Jakob Oppenheimer, um
1889/95 David Loebenberg, um 1897/1901 David Loebenberg und L. Levi. 1903 A. Löb.
Von den jüdischen Vereinen wird 1897 ein Israelitischer
Wohltätigkeitsverein genannt (längere Zeit unter dem Vorstand des 1898
gestorbenen Simon Levi s.u.; 1897 unter Leitung von Abraham Loeb und L. Levi,
1898/1905 Abraham Loeb und A. Nußbaum I).
Im Ersten Weltkrieg fiel aus der jüdischen Gemeinde Unteroffizier
Theodor Nußbaum (geb. 26.11.1891 in Vollmerz, Sohn von Arnold Nußbaum; vermisst seit 21.3.1916).
Theodor Nußbaum war für seinen Kriegseinsatz im Frühjahr 1915 mit dem Eisernen
Kreuz II ausgezeichnet worden ("Israelitisches Familienblatt" vom 26. August
1915 S. 3 und "Dr. Blochs österreichische Wochenschrift" vom 10. September 1915
S. 683).
Um 1924, als zur Gemeinde noch 23 Personen gehörten (2,7 % von insgesamt
838 Einwohnern), waren die Gemeindevorsteher Arnold Nußbaum und Jakob
Grünebaum. Als Kantor und Schochet wird Jacob Grünebaum genannt. Damals gab es
noch zwei schulpflichtige jüdische Kinder am Ort, die ihren Religionsunterricht in
Schlüchtern erhielten. An jüdischen Vereinen gab es einen Wohltätigkeitsverein
(1924 unter Leitung von Arnold Nußbaum mit sechs Mitgliedern). 1932 waren die
Gemeindevorsteher weiterhin Arnold Nußbaum (1. Vors.) und Jakob Grünebaum
(Schriftführer). Im Schuljahr 1931/32 erhielten drei Kinder der Gemeinde
Religionsunterricht.
1933 wurden noch 22 jüdische Einwohner in Vollmerz gezählt. In
den folgenden Jahren ist ein Teil der
jüdischen Gemeindeglieder auf Grund der Folgen des wirtschaftlichen Boykotts,
der zunehmenden Entrechtung und der
Repressalien weggezogen beziehungsweise ausgewandert.
Von den in Vollmerz geborenen und/oder längere Zeit am Ort
wohnhaften jüdischen Personen sind in der NS-Zeit
umgekommen (Angaben nach den Listen von Yad
Vashem, Jerusalem und den Angaben des "Gedenkbuches
- Opfer der Verfolgung der Juden unter der nationalsozialistischen
Gewaltherrschaft in Deutschland 1933-1945"): Ida Baum geb. Nussbaum
(1899), Rebekka Friedmann geb. Levi (1887), Margot Grünfeld (1928), Rosa
Grünfeld geb. Hecht (1896), Rose Grünfeld geb. Hecht (1868), Johanna Heymann
geb. Nussbaum (1871), Jenny Katz geb. Grünebaum (1892), Fanni Kaufmann geb.
Grünebaum (1878), Emanuel Levi (1864, siehe unten, Stolperstein in Lübeck), Israel Nussbaum (1869, siehe Bericht
unten), Käthe van der
Walde geb. Nussbaum (1907).
Berichte aus der Geschichte der jüdischen Gemeinde
Aus dem jüdischen Gemeindeleben
Ergebnisse von Spendensammlungen in
der Gemeinde (1866 / 1889)
Anmerkung: in jüdischen Gemeinden wurden regelmäßig für bestimmte Zwecke
Spenden gesammelt und die Ergebnisse immer wieder in jüdischen Periodika
veröffentlicht.
Mitteilung
in der Zeitschrift "Der Israelit" vom 3. Januar 1866 - Sammlung
"zur Linderung der Hungersnot in Palästina": "Durch Jakob
Oppenheimer, Synagogengemeinde-Ältester in Vollmerz, gesammelt: Markus
Nußbaum 1 fl., Moses Hecht 15 kr., Viktor Birk 12 kr., Simon und J. Schiff 1
fl., N. Katzmann 9 kr., Witwe Sontheimer 1 fl. 45 kr., Wolf Grünebaum 18 kr.,
J. H. Sontheimer 48 kr., D. Grünebaum 12 kr., A. Grünebaum 24 kr., S. Levi
18 kr., Oppenheimer 1 fl. 9 kr., Betty O. 1 fl., Ungenannt 21 kr., Aus
der Zedeka-Büchse 1 fl. 9 kr., zusammen 10 fl."
|
| |
Mitteilung
im "Spenden-Verzeichnis für alle Zweige jüdischer Wohltätigkeit" 14.
Jahrgang = 5650 vom 3. Dezember 1889: "Vollmerz. Durch D.
Löbenberg: M. Nußbaum 2, S. Levi 1, D. Löbenberg 1, Challah-Geld von
seiner Frau 3, zusammen 7 Mark, wovon je 2 Mark für die Armen im Heiligen
Land." |
Rittmeister Stumm macht in seiner Wohltätigkeit keinen
Unterschied zwischen den Konfessionen (1885)
Artikel
in der Zeitschrift "Der Israelit" vom 5. Januar 1885: "Schlüchtern.
Die ehemalige Grafschaft Degenfeld, zu welcher die Gemeinden Vollmerz,
Ramholz und Hinkelhof gehören, ist im vorigen Jahre in den Besitz des
Herrn Rittmeisters Stumm vom 1. Hessischen Husaren-Regiment Nr. 13
käuflich übergegangen. Der neue Besitzer dieser Herrschaft hat sich in
der kuren Zeit schon die ehrende Anerkennung aller Edeldenkenden durch
seine Wohltätigkeit gewonnen. Vor einigen Tagen hat er alle
Hilfsbedürftigen in den genannten Ortschaften seiner Besitzung in
reichlichem Maße durch Gaben in barem Gelde, Viktualien und Stoffen zu
Kleidungsstücken bedacht. Bei einer früheren, derartigen Gelegenheit war
es übersehen worden, die armen, israelitischen Einwohner der Gemeinde Vollmerz
in Vorschlag für diese Unterstützungen zu bringen. Auf eine Anfrage des
Gemeindeältesten, Herrn David Löwenberg zu Vollmerz, bei dem ebenso
leutseligen als edeldenkenden Gutsherrn, ob nicht auch die israelitischen
Ortsarmen auf gleiche Berücksichtigung wie die christlichen Armen hoffen
dürften, erwiderte der Herr Rittmeister, dass er keinen Unterschied der
Konfession bei Akten der Menschenliebe kenne. Bei der jüngsten
allgemeinen Verteilung wurden daher auf Vorschlag des Herrn Löwenberg
auch die armen Israeliten zu Vollmerz ebenso wie die übrigen
Ortsarmen in höchst liebevoller und freundlicher Weise beschenkt.
Ehre dem edlen Philanthropen und seiner hochherzigen Frau Gemahlin, welche
den erhabenen Grundsatz, dass man bei Akten der Wohltätigkeit die
Angehörigen anderer Konfessionen mit den eigenen Glaubensgenossen zu
unterstützen habe, in so schöner Weise zu betätigen verstehen. H.G." |
Bei einer deutsch-völkischen Wahlversammlung wehrt sich ein jüdischer
Viehhändler in humorvoller Weise gegen den Redner (1924)
Artikel
in der Zeitschrift "Der Israelit" vom 15. Mai 1924: "(Humor in der
Wahlversammlung.) Aus Vollmerz bei Schlüchtern wird uns folgendes
berichtet:
Am Vorabend der Reichstagswahlen fand in Vollmerz eine große
deutschvölkische Wahlversammlung statt, zu der auch die Umgebung eingeladen
war. Der Redner, eine völkische Lokalgröße, erläuterte mit großem Pathos:
'Sehen Sie, meine Herren, wir sind zu allernächst Deutsche, dann erst
in zweiter Reihe Katholiken oder Protestanten. Die Juden aber sind zuerst
Juden, dann angeblich auch Deutsche.'
Da schreit ein anwesender jüdischer Viehhändler aus
Sterbfritz dazwischen: 'Stimmt nicht,
Herr Doktor, Sie sind schon einen Tag nach Ihrer Geburt katholisch getauft
worden, ich aber war sieben Tage nur Deutscher und bin erst am
achten Tage jüdisch geworden.'
Es setzte ein Hallo ein, dass der Redner des Abends, wie uns erzählt wird,
nicht mehr weiter konnte. In den sich immer wiederholenden Lachsalven gingen
seine weiteren Ausführungen gänzlich verloren. Er war geschlagen." |
Berichte zu einzelnen
Personen aus der Gemeinde
Auseinandersetzung zwischen dem
Toraschreiber (Sopher, Sofer) Wolf Grünebaum aus Vollmerz und dem Toraschreiber Mosche Mai in Raboldshausen (1866)
Anmerkung: zu Tefilin siehe
https://de.wikipedia.org/wiki/Tefillin
Wolf Grünebaum ist in Vollmerz geboren. Er war als Sofer
(Toraschreiber) tätig. Im deutsch-französischen Krieg 1870/71 erhielt er mehrere
Auszeichnungen auf Grund seiner engagierten Kriegseinsatzes. Wolf Grünebaum war
verheiratet mit Sophie geb. Plaut, die am 18. April 1849 in
Willingshausen geboren ist. Er verzog um 1880 nach Fulda, wo er als
Toraschreiber und Weinhändler tätig und auf Grund seines hohen Ansehens alsbald
Mitglied des Vorsteheramtes der jüdischen Gemeinde wurde. Wolf und Sophie
Grünebaum hatten mehrere Kinder - die Geburtsregister der jüdischen Gemeinde
Fulda verzeichnen: Henry (?), Leo (?), Joseph (verh. mit Caroline geb.
Grünebaum, ermordet im Vernichtungslager Auschwitz), Benno (?), Abraham (geb.
13. Oktober 1883 in Fulda), Miriam (geb. 14. November 1884 in Fulda, verheiratet
mit Jacob Goldschmidt, gest. 1967 in Haifa), Aron (geb. 18. März 1888 in Fulda,
gest. 2. September 1893 in Fulda), Friedrich (geb. 24. April 1889 in Fulda), und
Friedericke (geb. 20. März 1893 in Fulda, gest. 23. Juli 1893 in Fulda). Wolf
Grünebaum starb am 18. Juni 1906 in Fulda. Seine Frau Sophie verstarb am 18.
März 1929 ebd.
Artikel in der Zeitschrift "Der Israelit" vom 25. April 1866: "Mainz,
den 15. April. Der Sopher (= Toraschreiber), Herr Assor Mai
aus Raboldshausen im
Kurfürstentum Hessen, hat uns vor circa 6 Wochen 5 Zeugnisse übersandt und
zwar 2 vom Herrn Landrabbiner Dr. Adler zu Kassel, eins von
dem ehemaligen Provinzial-Rabbiner Gosen zu Marburg, ein
solches von Dr. Levy in Gießen und eins von einem anderen
Sopher, die da dessen Befähigung als Sopher Sefarim Tefilin Mesusot =
Toraschreiber von Torarollen, Tefillin und Mesusot bekunden sollen;
hervorgerufen wurde diese Zusendung durch einen Artikel in Nr. 17 vorigen
Jahres, in welchem ein Herr Heoref die gewissenhafte und regelrechte
Tätigkeit des Herrn Mai angegriffen hat. Herr Mai sandte uns zugleich eine
Entgegnung, in der er behauptete, Heoref sei der an unserer
Unterrichtsanstalt fungierende Lehrer Herr Grünebaum aus Vollmerz
in Kurhessen. Herr Mai greift in dieser Entgegnung die Ehre des Herrn
Grünebaum an, beschuldigt ihn der Unwahrheit und eigennütziger Absichten, da
ein Bruder desselben ebenfalls Sopher sei (Anmerkung:
Raboldshausen ist übrigens
wenigstens 20 Stunden von Vollmerz entfernt, was bei den mangelhaften
Verkehrswegen in jener Gegend Kurhessens um noch viel weiter erscheinen
muss, so dass also von Konkurrenzneid hier gar nicht die Rede sein kann).
Da jedoch Zeugnisse nur die Befähigung, nicht aber die gewissenhafte Arbeit
eines Sopher bekunden können, so ließen wir uns durch Vermittelung
eines Dritten ein Paar Tefilin von Herrn Mai kommen; dieselben trafen
vorigen Freitag bei uns ein, und war das Paket mit dem Siegel des Herrn Mai
gesiegelt und von einem Briefe desselben begleitet, so dass unmöglich ein
Zweifel darüber obwalten kann, dass diese Tefilin auch wirklich von
Herrn Mai verkauft worden sind.
Wir haben diese Tefilin geöffnet und zu unserm Bedauern gefunden,
dass dieselben pesulim (nicht korrekt) sind, und zwar aus
folgenden Gründen:
1) Die Schrift in denselben hat nicht die gesetzmäßige Gestalt der
Buchstaben; das Schluss-K hat die Gestalt eines W; das
W gleicht dem J; andere sehen gar keinen Buchstaben ähnlich.
2) Die Zwischenräume zwischen den einzelnen Worten fehlen häufig, sodass
vielfach zwei Worte wie eines erscheinen;
3) ist in den Tefilin schäl jad (die am Arm getragenen Tefilin) in
der Paraschah - Zitat 2. Mose 13, 5.11 - im Gottesnamen beim
zweiten H eine Berührung (sc. der Striche des Buchstabens
H), sodass dasselbe einem T gleicht.
Die Tefilin erscheinen als so leichtfertig geschrieben, dass eine
sorgfältigere Prüfung sicher noch mehr Fehler ergeben würde; dieselben
stehen Jedermann bei uns zur Einsicht offen.
Dass durch dieses Ergebnis das Verfahren des Herrn Grünebaum vollkommen
gerechtfertigt ist, bedarf wohl weiter keiner Auseinandersetzung. Seitdem
Herr Grünebaum die Arbeit des Herrn Mai öffentlich gerügt hat, ist fast ein
Jahr verflossen; Herr Mai ist leider seitdem in seiner Arbeit nicht
gewissenhafter, nicht sorgfältiger geworden.
Möge der Rabbiner, dem er untersteht und der ihn durch sein Zeugnis
installiert oder bestätigt hat, seine Pflicht tun; es handelt sich hier um
die heiligsten Angelegenheiten des Judentums, um eine der wichtigsten
Obliegenheiten eines Rabbiners." |
Über den im deutsch-französischen
Krieg auf Grund seines Kriegseinsatzes hochdekorierten jüdischen Soldaten (den
o.g. Sofer) Wolf Grünebaum aus Vollmerz (Artikel von 1894)
Artikel
in "Dr. Bloch's österreichischer Wochenschrift" vom 26. Oktober 1894: "Wolf
Grünebaum, ein jüdischer Soldat. Von M. Plaut.
Die Antisemiten haben in ihrem frevelhaften Beginnen, Alles, was jüdisch
heißt, zu verunglimpfen und in Verruf zu bringen, auch vor den Leistungen
der jüdischen Krieger nicht Halt gemacht. Diesem nichtswürdigen Treiben
gegenüber haben die jüdischen Blätter und die 'Mitteilungen aus dem Verein
zur Abwehr des Antisemitismus' es als ihre Pflicht erachtet, Alles
aufzuzeichnen, was ihnen über das Verhalten der jüdischen Soldaten im Kriege
bekannt wurde. Heute soll der verehrte Leser einen jüdischen Soldaten kennen
lernen, der an Tapferkeit keinem der christlichen Soldaten seines Regimentes
nachgestanden hat.
Der Name dieses Helden ist Wolf Grünebaum, aus Vollmerz bei Schlüchtern
stammend. Von Jugend auf für Reiten und Schießen eingenommen, war er
bald der keckste Reiter seines Regiments, des I. hessischen Husarenregiments
Nr. 13. Da erscholl der Kriegsruf über den Rhein und sein Regiment rückte
alsbald dem Feinde entgegen. Lass Dir nun, lieber Leser, einige der von ihm
ausgeführten Reiterstückchen von ihm selbst erzählen: 'Nachdem ich das
Gefecht bei Weißenburg, die Schlacht bei Wörth mit unserer
Attacke auf französische Kürassiere und Uhlanen und die Attacke unserer zwei
Escadronen auf drei französische Kürassierescadronen in der Schlacht bei
Sedan mitgemacht hatte, wurde ich vor Paris als Ordonnanz zum
Thüringischen Infanterie-Regiment Nr. 94 abkommandiert.
General von der Tann hatte vor der großen Übermacht des Feindes aus
Orleans weichen müssen, und uns — der 17. und 22. Division — wurde die
Aufgabe, mit General von der Tann die aufgegebene Position und die Stadt
Orleans um jeden Preis wieder zu erringen. Das Regiment, dem ich
attachiert war, hatte in früheren Schlachten seinen Kommandeur verloren und
inzwischen als Führer den von seinen bei Wörth erhaltenen Wunden kaum
geheilten ältesten Major v. Nechar erhalten. Am 1. Dezember erhielt das
Regiment in dem Obersten v. Palmenstein einen neuen Kommandeur. In
aller Frühe des 2. Dezember rückte das Regiment mit den übrigen
Truppenteilen der Division bei Arteny dem Feinde entgegen. Wie es schien,
hatten wir in demselben im Laufe des Vormittags empfindliche Lücken
gerissen. Er ging zurück, von uns verfolgt bis in die Waldungen hinter
Arteny, wo wir uns plötzlich einer fast sechsfachen Übermacht in einer
für uns sehr ungünstigen Stellung gegenüber sahen. Von fast drei Seiten warf
der Feind das mörderischste Feuer auf uns, dazu ging unsere Munition auf die
Neige. Da fiel an meiner Seite Oberst v. P., von zwei Kugeln schwer
verwundet, vom Pferde. Ich sprang sogleich aus dem Sattel, um den braven
tapferen Offizier, der erst Tags zuvor aus seiner Garnisonsstadt in
Frankreich eingetroffen war, aus dem Kugelregen zu tragen. Er wehrte mir
dies aber mit den Worten ab: 'Lassen Sie es, mit mir ist es doch vorbei;
überbringen Sie eiligst das Kommando dem Major v. Nechar!' Ich musste
gehorchen. Als ich zurückkam, hatte man den braven Obersten in eine nahe
Mühle getragen, wo er kurze Zeit darauf verschied. Nachmittags mussten wir
vor der erdrückenden Übermacht und wegen Mangels an Munition zurückgehen.
Ich stieß auf den Divisionsgeneral von Wittich, dem im Verlauf einer
halben Stunde drei Pferde unter dem Leibe weggeschossen worden waren, und
wollte ihm schnell ein anderes Pferd besorgen. Da rief er einem Adjutanten
den Befehl zu, die Compagnie des 94. Regiments, die zwei Gehöfte an der
Waldlisiére besetzt hielt, herauszuholen, da sie sonst vom Feinde umringt
würde. Kaum hatte der Adjutant den Befehl erhalten, als er verwundet wurde.
Deshalb bat ich um die Erlaubnis, den Befehl überbringen zu dürfen. Es war
ein Weg von etwa dreiviertel Stunden, den ich zurückzulegen hatte. Ich
erhielt die Weisung, recht vorsichtig zu sein, da das zu passierende Dorf
möglicherweise von Feinden besetzt sein könnte. Vor diesem Dorf begegnete
mir Herr Major v. Schauroth, der mir auf meine Frage antwortete, noch sei
das Dorf von Feinden nicht besetzt. Ich sprengte also durch dasselbe,
überbrachte den Befehl und ritt dann wieder zurück. Es war inzwischen etwas
dunkel geworden, und deshalb gewahrte ich erst, als ich nur noch 300
Schritte vom Dorfe entfernt war, dass hinter der Gartenmauer des ersten
Hauses eine feindliche Kavallerie-Patrouille (Spahis), die abgesessen war,
durch die Sättel ihrer Pferde ihre Gewehre auf mich in Anschlag gebracht
hatte. Blitzschnell warf ich mein Pferd herum, und in demselben Augenblicke
schon pfiffen mir die Kugeln die sehr bekannte Melodie um die Ohren. Die
Kerls schossen gar nicht übel. Eine Kugel jagten sie mir durch meine
Pelzmütze auf dem Kopfe, eine zweite durchlöcherte den Mantel, die dritte
riss mir den Absatz vom Stiefel, und eine vierte durchschoss kurz vor meiner
Hand die Kandarenzügel meines Pferdes, so dass ich dasselbe nur noch mit der
Trense leiten konnte. Dem Tiere die Sporen eindrückend, jagte ich
querfeldein der Richtung zu, wo ich unsere Truppen vermutete. Bald zeigte
sich ein Laufgraben vor mir. Als ich demselben auf 4—5 Schritte nahegekommen
war, schlug eine Granate in denselben und durch das Krepiren derselben und
die hierdurch hoch aufgeschleuderte Erde, die mein Pferd überschüttete,
wurde dieses stutzig und war nicht über den Graben zu bringen. Wären meine
Zügel intakt gewesen, so wäre ich doch hinübergekommen, und mein schnelles
Pferd — ein bei Sedan erbeutetes und dem Großherzog von Sachsen-Weimar
gehöriges edles Tier — wäre von den arabischen Hengsten der Spahis nicht
eingeholt worden. So aber erreichten mich zwei Mann der französischen
Patrouille vor dem Graben. Ergeben durfte ich mich nicht. Es galt zu kämpfen
und es galt das Leben. Immer meine rechte Seite dem Feinde zuwendend, fing
ich den ersten, auf meinen Kopf gerichteten Hieb auf, schwang meinen Säbel
mit aller Kraft und spaltete meinem ersten Gegner mit einem gewaltigen Hiebe
die Schulter, dass er lautlos vom Pferde sank. Zur Rechten sah man wie zur
Linken einen halben Spahi heruntersinken. Sodann machte ich den zweiten, der
mich auch mit seinem Säbel bedrohte, durch einen Stich in den Unterleib
kampfunfähig. Kaum dachte ich, nun in Ruhe zu sein, als zwei andere dieser
weißgekleideten Wüstensöhne, der Rest der Patrouille, ihr Mütchen an mir zu
kühlen gedachten und mir an den Graben noch den Weg verstellten. Der zuerst
Herangerittene suchte mich von hinten über den Kopf zu hauen. Um mich zu
decken, musste ich den Hieb, von vorn anziehend, auffangen. Dabei kam ich
mit meinem Säbel zu tief und hieb meinem Pferde die Spitze des linken Ohres
ab.
Dies bewirkte, daß das Thier mit einem Satze den Graben übersprang. Die zwei
Feinde folgten mir in der Richtung zu meinen Truppen. Als ich noch einige
100 Schritte vom Walde entfernt war, knallten aus demselben einige Schüsse,
und erst, als ich mich nicht mehr verfolgt sah, gewahrte ich, wem der Gruß
gegolten hatte. Meine zwei afrikanischen Freunde, deren helle Uniformen auch
im Dunkeln unserer Infanterie eine gute Zielscheibe abgegeben hatten, lagen
erschossen hinter mir, und ich — war gerettet.
Bald darauf erhielt ich die silberne Verdienstmedaille mit Schwertern.
Es war in den letzten Decembertagen. Wir lagen in einem kleinen Orte,
ungefähr vier Stunden von Maintenon. Eine pechrabenschwarze Nacht hatte
sich über die Erde gelegt, und Schnee- und Regenstürme verleideten Einem
jeden Schritt im Freien. Gegen 9 Uhr Abends erhielt ich durch den Adjutanten
des 94. Infanterieregiments, den Lieutenant v. Trotha, den Befehl, |
mein
Pferd zu satteln, um nach dem 3—4 Stunden entfernten Quartier des Generals
v. Wittich zu reiten und Meldung zu überbringen und Befehl zu holen. Nach
meiner Karte und der mir gewordenen Instruktion hatte ich in der Entfernung
von einer Stunde ein Dorf zu passieren. Nach dem Verlassen desselben sollte
ich von den in dasselbe einmündenden drei Wegen den mittleren einschlagen.
Sodann müsste ich die rechts von dem eineinhalb Stunden durch Wald führenden
Weg liegende Mühle passieren, bei der vor einigen Tagen eine Ordonnanz
erschossen worden, die aber vermutlich jetzt frei von Franktireurs sei. Auf
keinem Fall dürfte ich den linken Weg wählen, da auf demselben sich
Franktireurs umhertrieben. Als ich das Dorf hinter mir hatte, machten die
Dunkelheit und der Sturm es mir unmöglich, den rechten Weg herauszufinden.
Ich ritt zu dem ersten Haus des Dorfes zurück und klopfte ans Fenster. Als
dasselbe geöffnet wurde, begehrte ich unter Vorhalten des Karabiners Licht.
Es erschien darauf ein Bauer mit einem Licht, der auf meine Aufforderung,
mir den Weg nach Maintenon zu zeigen, sich hierzu bereit erklärte. An dem
Punkte, wo die Wege sich trennten, wollte er mich durchaus auf den linken
Weg führen. Als ich ihm unter der Drohung, ihn zu erschießen, zu verstehen
gab, dass dies der richtige Weg nicht sei. sprang er plötzlich über den
Straßengraben hinüber in den Wald. Ich setze ihm nach und da inzwischen
etwas Schnee gefallen war und die Bäume nicht dicht standen, so hatte ich
ihn sofort wieder eingeholt. Meine Schusswaffe gegen ihn zu gebrauchen,
schien mir nicht rätlich, da der Schuss sicherlich Franktireurs angelockt
hätte. Deshalb bearbeitete ich den Rücken des Bäuerleins gehörig mit der
flachen Klinge. Laufen lassen durfte ich den Kerl auch nicht, dazu erschien
er mir nicht harmlos genug, und er hätte mir wohl noch einen bösen Streich
spielen können, zumal ich die berüchtigte Mühle noch vor mir hatte. So blieb
mir nichts übrig, als ihn bei mir zu behalten. Schnell warf ich ihm meine
Fouragierleine um den Hals und drohte ihn zu erwürgen, wenn er noch einmal
Miene zum Fortlaufen machte. Schließlich dauerte mich doch seine Situation
und ich zog ihm die Schlinge vom Hals. Um ihn aber am Davonlaufen zu
hindern, ließ ich mir seinen Gürtel geben, der ihm die Hosen festhielt,
sodass er diese mit seinen Händen halten musste, wodurch er am Laufen
gehindert war. Als wir die gefürchtete Mühle hinter uns hatten, gab ich
meinem unfreiwilligen Begleiter seinen Gürtel und ließ ihn laufen. Mein
Pferd aber musste nun die über den Franzosen versäumte Zeit einholen;
rechtzeitig kam ich nach M., und gegen Morgen war ich bereits wieder bei den
Meinen. — Solche nächtliche Ordonnanzritte, die stets allein ausgeführt
werden müssen, habe ich viele gemacht.
Nach Beendigung des Feldzuges kehrte Grünebaum mit drei Orden geschmückt
in seine Garnison zurück. Der Großherzog von Sachsen-Weimar wollte ihm
unter seinen Hofbeamten eine Stelle geben, doch lehnte Grünebaum das
Anerbieten ab. Lange Zeit nach der gesetzlichen Frist zur
Invaliditätsmeldung stellten sich bei ihm die Folgen der großen Strapazen
ein. Der eine Unterschenkel starb ab und Grünebaum musste gefahren und
getragen werden, Trotzdem konnte ihm nach dem Gesetz keine Invalidenpension
bewilligt werden. Erst durch die dem Kaiser zur Verfügung gestellten Fonds
wurde es möglich, ihm eine solche zuzuerkennen. Nach langjährigem Besuch
verschiedener Heilquellen ist Grünebaum jetzt im Stande, sich mit
Hilfe zweier Stöcke gehend zu bewegen und das in einer vom hochseligen
Kaiser ihm geschenkten Maschine liegende Bein nachzuziehen.
Grünebaum lebt in Fulda, angesehen und
beliebt bei den staatlichen und städtischen Behörden."
|
Zum
Tod des Kriegsveteranen, Toraschreiber und Mitglied des Vorsteheramtes Wolf
Grünebaum (1906)
Artikel
im "Frankfurter Israelitischen Familienblatt" vom 22. Juni 1906:
"Fulda, 20. Juni (1906). Sterbefall. Ein imposanter
Leichenzug, wie einen ähnlichen man lange nicht gesehen. Galt es doch,
einen wackeren Jehudi und geachteten Bürger die letzte Ehre zu erweisen.
Der über die Grenzen des engen Vaterlandes weit hinaus bekannte und
berühmte Fuldaer Sofer, Herr Wolf Grünebaum, ist nicht mehr;
Montag hauchte er seine reine Seele aus. Sein Scheiden rief allgemeine
Teilnahme hervor. War er auch Wochenlang an das Schmerzenlager gebannt, so
hoffte man doch, dass die unabwendbar gewordene Operation den ersehnten Erfolg
haben würde. Es hat anders kommen sollen. Eine plötzlich eingetretene
Herzschwäche hat allzu schnell den Tod herbeigeführt.
Wolf Grünebaum, eine imponierende Erscheinung, konnte sich nur, auf
Stäbe gestützt, mühsam fortbewegen. Infolge der Strapazen des Krieges
von 1870/71, in dem er sich durch Mut und Tapferkeit auszeichnete und
einen hohen Orden erhielt, hatte sich ein Leiden eingestellt, das der
Ärzte Kunst nicht zu heilen vermöchte. Er war vollständig gelähmt.
Nichtsdestoweniger bewahrte er die Heiterkeit des Gemüts und
Lebensfreude, wie sie nur ein unerschütterliches Gottvertrauen zu
erzeugen vermag. Erzählte er von seinen Kriegserlebnissen - und er konnte
interessant erzählen - so lauschte jeder gespannt seinen Worten. Wie als
Soldat, so war er nicht minder pflichtgetreu als Jude. Als Sohn
unbemittelter Eltern, diente er als Husar in Hofgeismar. Ein Zug seines
tiefsinnigen religiösen Empfindens dürfte auch für weitere Kreise nicht
uninteressant sein und verdient, bekannt gegeben zu werden. Grünebaum
ließ jeden Samstag, um nicht den Sabbat zu entweihen, sein Pferd putzen
und zahlte dafür 50 Pfennig. Um nun diese Ausgabe zu decken, übernahm er
Sonntags freiwillig Stallwache. Der Zufall fügte es, dass sein
Rittmeister ihn drei aufeinander folgende Sonntage im Stalle fand. Auf die
Frage nach dem Grunde, zögerte Grünebaum mit der Antwort. Doch der
Rittmeister forderte diese, und Grünebaum erteilte sie mit tränendem
Auge. Gerührt wandte sich der Offizier ab. Dienstag Morgen wurde beim
Appell bekannt gegeben, dass der Husar Grünebaum vom Pferdeputzen am
Samstage dispensiert sei. Dabei wurde ihm wegen seiner Glaubenstreue
volles Lob gespendet. Auch während des Feldzuges hatte der wackere Jude
seine religiöse Pflicht in seltener Weise erfüllt.
Wie sehr man die Vorzüge und Charaktereigenschaften des Heimgegangenen zu
schützen wusste, erhellt daraus, dass ihn der Kriegerverein, der ihm
unter Führung zweier Offiziere das Geleit zu seiner letzten Ruhestätte
gab und am Grabe drei Salven abfeuerte, in den Vorstand wählte. Tief
ergriffen entrollte Herr Provinzial-Rabbiner Dr. Cahn am Grabe des
Verblichenen ein Lebensbild des Entschlafenen. Die Rede machte einen
tiefen Eindruck auf die zahlreichen Hörer, unter denen man auch den Herrn
Landrat erblicken konnte. Grünebaum war auch Mitglied des Vorsteheramts
der Israeliten hier und im Kollegium wegen seines Biedersinnes und seiner
Einsicht hochgeschätzt. Möge dem teueren Verblichenen die Erde leicht
sein!" |
Zum Tod von Viktor Birk I. in Vollmerz (1868)
sowie über Viktor Stern in Schlüchtern und Salomon Schwarzenberg in Hitzkirchen
Anmerkung: zu Wimpeln - Mapot siehe
https://de.wikipedia.org/wiki/Torawimpel;
zu Jom Kippur katan siehe
https://www.talmud.de/tlmd/jom-kippur-katan/
Artikel
in der Zeitschrift "Der Israelit" vom 5. August 1868: "Schlüchtern.
Dieser Tage starb in dem benachbarten Vollmerz Viktor Birk I.
im Alter von etwa 96 Jahren. Der Verstorbene hinterlässt noch vier lebende
Geschwister, von denen der älteste, Namens Hirsch (ein Cousin und
Namensbruder meines sel. Großvaters er ruhe in Frieden) das
hundertste Lebensjahr bereits überschritten haben soll. Genau lässt sich
nämlich das Alter dieser Leute nicht ermitteln; sie selbst wissen dasselbe
nur durch Vergleichungen mit längst verstorbenen Altersgenossen anzugeben.
In damaliger Zeit führte man keine Geburtsregister, nur die sogenannten
'Wimpeln' (Mapot) in der Synagoge bieten einigen Inhalt. In
vorliegendem Falle sind auch diese nicht mehr aufzufinden.
Kräftige Naturen sind diese alten Leute, die noch heute ihr kümmerliches
Stückchen trockenen Brotes so kräftig erhält, dass sie mancher junge Mann
unserer Zeit um solche Gesundheit beneiden dürfte. So hat eben mein
Namensvetter, der hundertjährige Hirsch Birk, noch heute eine Kraft
und Sicherheit in den Armen, die mancher Dreißigjährige entbehrt. Derselbe
ist Metzger seines Geschäftes und lässt es sich noch immer nicht nehmen,
wenn sein Sohn ein Stück Vieh schlachtet, die Haut des geschlachteten Tieres
abzuziehen, die Eingeweide auszunehmen und das Fleisch auszuhacken, und das
tut er mit einer Gewandtheit, die jeder Zunftmeister für tadellos erklären
muss. Wenn man im Sommer am Hause dieser alten Leute vorübergeht, so sieht
man den alten Hundertjährigen auf einem Stühlchen sitzen, und da hackt er
sein ganzes Reisholz, das ihn während des Winters erwärmen soll, mit eigener
Hand. Jeden Jom Kippur katan fastet noch dieser alte Mann und er ist
keiner der letzten, der an solchen Tagen mit den am Kopfe und Arme von
seinem Berge herab zur Synagoge kommt, um mit den Enkeln und Urenkeln seiner
Jugendgenossen gemeinsam zu beten. — Der jüngste Bruder, auch ein tüchtiger
Achtziger, geht noch jeden Tag über Land und die Bauern handeln gern mit dem
ehrlichen Alten, der schon ihren Urgroßvätern das Vieh abkaufte. Zur Zeit
der Obsternte sieht man ihn alltäglich mit dem schwer beladenen Quersacke
nach Hause kommen, den ihm die Bauern füllen, und das wird er gar nicht
müde, denn es ist für die lieben Brüder und das achtzigjährige
Schwesterlein, die nicht mehr fortgehen können. — Auch hier in
Schlüchtern lebt ein alter Mann,
namens Viktor Stern, der wenigstens 106 Lebensjahre zählt, da er hier
noch einen lebenden Schwiegersohn hat, der bereits ein tiefer Achtziger ist.
Schließlich will ich den Lesern des 'Israelit' noch von einem interessanten
Veteranen erzählen, der in
Hitzkirchen im Vogelsgebirge lebt. Salomon Schwarzenberg
diente in seiner Jugend als Ysenburg - Büdinger Tambour bei der
Rheinbundarmee. Als Bundesgenosse der Franzosen machte seine Truppe den
Feldzug in Spanien mit. Eines Tages führte das launige Schlachtenglück das
Bataillon unseres Salomon in ein Gehölz, das von englischen Truppen in
großer Übermacht umzingelt war. Englische Parlamentäre forderten die
Ysenburger zur Übergabe auf. Der tapfere Kommandant des unglücklichen
Bataillons wollte jedoch den Heldentod auf dem Felde der Ehre einer
Gefangenschaft unter spanischen Händen vorziehen und ließ das Feuern nicht
einstellen. Wie Hagelkörner schlugen die Kugeln der Hochschotten unter dem
Häuflein Ysenburger von allen Seiten ein und es dauerte wohl nicht lange, so
hätten die armen Söhne des Vogelsgebirges sämtlich ihr Grab unter den
Korkeichen Iberiens gefunden. Doch, da wird gegen alle Erwartung das
feindliche Feuer immer schwächer, die Engländer machen kehrt, denn das
Trommelfell hatte Ordre zum Rückzug gegeben. Freund und Feind hatten keinen
solchen Ausgang des Gefechtes erwartet, beide waren gleich verblüfft und
dennoch rasselte das unerforschliche Kalbfell fortwährend Return! return!
Nur die nächsten Kameraden neben unserem Salomon aus Hitzkirchen bemerkten
zuerst die Ursache ihres unerwarteten Glückes. Salomon hatte nämlich von
früheren Rencontres her, die Signale der englischen Kollegen abgelauscht und
seine Wirbel beorderten die Engländer zurück. So war es dem Ysenburger
Bataillon möglich aus dieser Falle zu entkommen; dem kaltblütigen Helden aus
Hitzkirchen verdankt der Fürst von Büdingen die Rettung seines Bataillons.
Hirsch Grünbaum." |
50-jähriges Dienstjubiläum von Lehrer Samuel Neumark (geb.
um 1808 in Vollmerz, gest. 1880 in Windecken)
Artikel
in der Zeitschrift "Der Israelit" vom 16. April 1879: "Windecken,
26. März (1879). Gestern feierte der Lehrer der hiesigen israelitischen
Gemeinde, Herr Samuel Neumark, sein 50-jähriges Dienstjubiläum. Eine
große Anzahl seiner während dieser langjährigen Dienstzeit gewesenen Schüler
und Schülerinnen sowie die Mitglieder der hiesigen israelitischen
Gemeinde, die Führer der hiesigen städtischen Schulen, die Lehrer der
umliegenden Gemeinden, endlich das Vorsteheramt in Hanau erfreuten mit
Glückwünschen und passenden Geschenken den wackeren Lehrer. Abends war
gesellige Vereinigung im Gasthause 'Zur Hochmühle', wo sowohl die
städtischen Behörden, die Kollegen des Jubilars von Windecken und
Umgegend und sonstige Gäste anwesend waren." |
Zum Tod von Simon Levi (1898)
Artikel
in der Zeitschrift "Der Israelit" vom 25. April 1898: "Vollmerz,
Kreis Schlüchtern. Am Heiligen Schabbat - Halbfeiertag (zu
Pessach) (= 9. April 1898) verschied in Vollmerz nach
mehrwöchentlichem Leiden Herr Simon Levi, im hohen Alter von 82 Jahren.
Gestern wurde der Verlebte unter sehr starker Beteiligung, auch von
Auswärts, zur letzten Ruhe bestattet. Herr Simon Levi stand, nachdem die
Gemeinde schon 20 Jahre ohne Lehrer war, nicht nur der Gemeinde, sondern
ganz besonders der dortigen Chewra (Wohltätigkeitsverein) insofern
zu Diensten, dass er den Erfolg seines Torastudiums, dem er trotz seiner
steten, erwerblichen, angestrengten Tätigkeit mit Fleiß oblag, zum
Besten gab. Die Gemeinde und Chewra hat dadurch wirklich ihre Krone
verloren. M.M.R." |
Zum Tod von Esther Loeb (1915)
Artikel
in der Zeitschrift "Der Israelit" vom 27. Mai 1915: "Schlüchtern,
23. Mai (1915). Am 2. Tag von Schawuoth (Wochenfest) wurde eine
wahre wackere Frau zur letzten Ruhe bestattet, deren wirklich
musterhaft frommes Wesen es verdient, hier gewürdigt zu werden. Frau
Esther Loeb aus Vollmerz, die von frühester Jugend schwer um ihr
tägliches Brot kämpfen musste und deren Haus danach einem Heiligtum
glich, in dem Arme stets offenen Eingang hatten; jeder Betrübte ging froh
von ihr; das Letzte, was die Verblichene besaß, konnte sie entbehren und
dem Betrübten reichen; machte sie doch die schwersten Fußwege, um für
andere zu sorgen und sie zu erfreuen. Ihr Andenken wird uns erhalten
bleiben. Ihre Seele sei eingebunden in den Bund des
Lebens." |
Über den Lehrer Emanuel Levi (geb. 1864 in Vollmerz, nach
Deportation ermordet 1942)
Anmerkung: Emanuel Levi ist am
10. März 1864 in Vollmerz geboren als Sohn des Handelsmannes Simon Levi
und seiner Frau Betti (Bettchen) geb. Coburger. Er ließ sich am
Israelitischen Lehrerseminar in Würzburg zum
Lehrer ausbilden und war als solcher spätestens ab 1886 (vermutlich bereits ab
1883; erste Nennung 1886 bei einer Spendensammlung in Unterriedenberg in "Der Israelit" vom
20.8.1886) in Unterriedenberg tätig.
Anschließend war er von
1901 bis 1912 Lehrer in Willmars, danach von
1912 bis 1929 in Burgpreppach. 1908
konnte er in Willmars sein
silbernes Lehrerjubiläum feiern. Er war seit 1893 verheiratet mit
Jettchen geb. Birkenruth (geb. 13. Mai 1868 in
Wehrda), mit der er drei Kinder hatte: Betty (geb. 3. September 1896
in Unterriedenberg), Simon
(geb. 25. Dezember 1901 in Willmars) und Frieda (geb. 28.
Februar 1907 in Willmars). Während des Ersten Weltkrieges wurde
Emanuel Levi beauftragt,
auch die Leitung der beiden protestantischen Schulen sowie der
Fortbildungsschule in Burgpreppach zu übernehmen. Damals war er für bis zu 168
Kinder zuständig. 1929 wurde er völlig grundlos mit anderen jüdischen Männern
des Ritualmordes an einem Kind bezichtigt (vgl.
Seite zu Hofheim). Am 1. Mai 1929 wurde er in
den Ruhestand versetzt. Am 12. November 1935 wurde er durch das Amtsgericht
Hofheim zu drei Wochen Gefängnis verurteilt;
auch von April
bis Ende 1937 war er in Haft. 1938 suchte die Familie Zuflucht in Lübeck und
lebte dort in der Fleischhauerstraße 49, dann in der Fleischhauerstraße 1. Sohn
Simon (verheiratet mit Irma, geb. 17. November 1907) lebte in
Burgpreppach, im Mai 1939 in
Bremerhaven, von wo er über Hamburg nach New York emigrieren konnte. Die Tochter Betty wurde mit ihrem
Mann Siegfried Frank von Hamburg aus 1942 nach Theresienstadt und später nach
Auschwitz deportiert, wo sie im Oktober 1944 ermordet wurden. Emanuel Levi,
seine Frau Jettchen und die Tochter Frieda wurden am 6. Dezember 1941 von
Lübeck aus über Bad Oldesloe und Hamburg in das Außenlager des Ghettos Riga
(Riga-Jungfernhof) deportiert und dort im März 1942 ermordet Vgl.
https://www.stolpersteine-luebeck.de/stolperstein/emanuel-levi sowie
www.hagalil.com.archiv/99/05/manau.htm und https://www.juf-gedenken.de/juedische-orte/jg-burgpreppach/
Für Emanuel Levi, seine Frau Jettchen geb. Birkenruth und die Tochter
Frieda liegen
seit dem 20. April 2010 in Lübeck "Stolpersteine" vor dem Haus
Fleischhauerstraße 1: https://www.luebeck.de/de/presse/pressemeldungen/view/125349.
Für Tochter Betty und ihren Mann Siegfried Frank liegen
Stolpersteine in Hamburg, Rissener Landstraße 127 (ausführlich zur
Familiengeschichte
https://www.stolpersteine-hamburg.de/?MAIN_ID=7&BIO_ID=3670).
Die Gräber von Simon Levi (gest. 8. September 1983) und seiner Frau Irma
(gest. 10. Februar 2005) sind im Beth-El-Cemetery, Paramus, Bergen County NJ/USA
https://de.findagrave.com/memorial/254278152/simon-levi
https://www.geni.com/people/Simon-Levi/6000000008659635005 (hier
weitere genealogische Informationen zur Familie).
Hinweis: Texte aus jüdischen Periodika zu Lehrer Emanuel Levi siehe in den
Seiten zu Unterriedenberg,
Willmars und
Burgpreppach.
Über Israel Nussbaum (1869-1942)
Israel Nussbaum
ist 1869
in Vollmerz in einer orthodoxen Landjudenfamilie geboren. Sein Vater war
Viehhändler. Felix Nussbaum konnte sich in Köln zum Lehrer ausbilden
lassen und wandte sich dem liberalen Judentum zu. In seinem Buch "'Gut
Schabbes!' Jüdisches Leben auf dem Lande. Aufzeichnungen eines Lehrers
(1869-1942). Berlin 2002" setzte er sich mit der Orthodoxie und
manchen Gebräuchen jüdischer Landgemeinden auseinander. Dabei wird
vielfach das jüdische Gemeindeleben in Vollmerz beschrieben. Felix Nussbaum
war von 1897 bis 1932 Lehrer und Kantor in Viersen. Im Juli 1942 wurde er
über Düsseldorf nach
Theresienstadt deportiert, wo er Anfang Dezember 1942 umgekommen ist.
Links: Gedenkmedaille des Kreises Viersen aus dem Jahr 2004 für Israel
Nussbaum. |
Über Theodore Levitt (1925-2006)
Kleine Mitteilungen in jüdischen Periodika:
- Bevorstehende Hochzeit am 31. August 1930 von Max Nußbaum
(Vollmerz) mit Bella Goldschmidt (Sterbfritz)
(in: "Israelitisches Familienblatt" vom 28. August 1930 S.6)
- 70. Geburtstag von David Nußbaum (Vollmerz) am 19. Mai 1937
(in "Israelitischen Familienblatt" vom 13. Mai 1937 S. 16)
Anzeigen
jüdischer Gewerbebetriebe und Privatpersonen
Verlobungsanzeige von Ida Nußbaum und Julius Baum (1923)
Anmerkung: Ida Baum geb. Nußbaum ist am 9. Februar 1899 in Vollmerz geboren.
Julius Baum ist am 1. März 1892 in Ziegenhain geboren. Nach ihrer Heirat lebten
beide in Ziegenhain, zuletzt in Frankfurt. Beide wurden am 15. September 1942
von Frankfurt in das Ghetto Theresienstadt deportiert, von hier aus am 29.
September 1944 (Julius) bzw. am 4. Oktober 1944 (Ida) in das Konzentrations- und
Vernichtungslager Auschwitz. Beide wurden ermordet.
Anzeige im "Israelitischen Familienblatt" vom 11. Oktober 1923: "Ida
Nußbaum - Julius Baum
Verlobte
Vollmerz 25. September 1923
Ziegenhain". |
Nachkommen von Meier Levi aus
Vollmerz in Nordamerika gesucht (1938)
Anmerkung: solche Suchanzeigen gab es nach 1933 häufig in der Hoffnung auf
Erlangung eines "Affidavit"
https://de.wikipedia.org/wiki/Affidavit: Familienangehörige, Freunde und
qualifizierte Organisationen in Staaten außerhalb Deutschlands konnten mit einer
beglaubigten Bürgschaftserklärung Verfolgten die Einreise in die USA (und andere
Länder) ermöglichen. Auf diese Weise war eine Emigration möglich.
Emanuel Levi, der die Suchanzeige unterschrieb, ist am 10. März 1864 in
Vollmerz geboren, lebte später in
Riedenberg und in Burgpreppach und
schließlich in Lübeck. Er wurde am 6. Dezember 1941 ab Hamburg in das Außenlager
des Ghettos Riga (Riga-Jungfernhof) deportiert und ermordet.
Suchanzeige
in der "Jüdischen Rundschau" vom 5. August 1938: "Nr. 736.
Meier Levi, aus Vollmerz, Kreis Schlüchtern, 1878 nach Baltimore
ausgewandert, wird gesucht von Emanuel Levi, Lübeck, Fleischhauerstr.
49/III." |
Todesanzeige für Arnold Nussbaum (1938)
(Anmerkung: die Anzeige erschien in der letzten Ausgabe der
"Jüdischen Rundschau" vor dem Novemberpogrom 1938; Arnold Nussbaum ist am
15. August 1864 in Vollmerz geboren als Sohn von Markus Nussbaum und der Jetta
(Jette) geb. Hamburger. Er starb am 30. Oktober 1938 in Fulda. Arnold Nussbaum
war verheiratet mit Jenny geb. Stern, die am 3. September 1890 in
Züntersbach geboren ist als Tochter von
Daniel Gedalia Stern und der Hanchen geb. Lion. Jenny starb am 24. März 1955 in
New York NY/USA (Grab siehe unten). Arnold und Jenny hatten eine Tochter Ilse,
geb. 21. Dezember 1919 in Vollmerz, später mit Ernst Hall verheiratet und
am 30. Januar 2003 in Plainview NY/USA gestorben. Arnold Nussbaum wurde
vermutlich in Vollmerz beigesetzt. Er ist zwar im Sterberegister Fulda
eingetragen, doch dort ohne Hinweis auf Tag und Ort der Beerdigung. Link:
Eintragung im Sterberegister Fulda
Genealogische Angaben nach
https://www.geni.com/people/Arnold-Nussbaum/6000000001576334584
Anzeige
in der "Jüdischen Rundschau" vom 4. November 1938: "Unerwartet rasch
entschlief mein innigstgeliebter guter Mann, mein herzensguter Vater,
Schwiegersohn, Bruder, Schwager und Onkel
Arnold Nussbaum
aus Vollmerz
Im Namen der Hinterbliebenen:
Frau Jenny Nussbaum geb. Stern
Fulda, Sturmiusstraße 5, den 30. Oktober 1938." |
| |
Rechts: Grab/Grabstein
für
Jenny Nussbaum (1890 Züntersbach
- 1955 New York)
im Cedar Park Cemetery, Paramus, Bergen County NJ/USA
https://de.findagrave.com/memorial/208985366/jenny-nussbaum |
 |
|
|
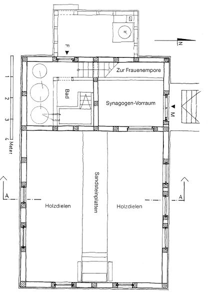
Zur Geschichte der Synagoge
Zunächst war vermutlich
ein Betraum in einem der jüdischen Häuser vorhanden.
Eine Synagoge wurde 1811 erbaut. Erstellt wurde ein einfacher Fachwerkbau
mit steilem, geschweiftem Satteldach, beidseitig mit Krüppelwalmen. Das Gebäude
hatte einen Grundriss von 7 mal 11 Metern. Es umfasste den Betsaal mit einer
einseitigen Frauenempore, einem gesonderten Raum in einem Anbau (ursprünglich
Schulraum?) sowie ein rituelles Bad.
Wie lange in dem Gebäude Gottesdienste abgehalten wurden, ist nicht bekannt.
Nach 1933 war die Gemeinde bereits zu klein für regelmäßigen Gottesdienst.
Das Synagogengebäude wurde bereits vor dem Novemberpogrom 1938 verkauft.
Beim Novemberpogrom 1938 wurden, obwohl das Gebäude bereits verkauft
war, dennoch der Innenraum und die Fensterscheiben durch SA-Leute zerstört.
Danach wurde das Gebäude als Spenglerei und Pferdestall verwendet. 1976
wurde das Gebäude nach jahrelangem Leerstand durch einen neuen Besitzer
abgebrochen. Das noch teilweise gut erhaltene Gebälk wurde zum Bau eines
Wohnhauses in Stork bei Flieden (Kreis Fulda) verwendet. Zwei beim Abbruch
vorgefundenen Gedenksteine von 1813, Gebotstafeln aus Holz unter einem
Magen David (vermutlich vom Vollmerzer Toraschrein) sowie Gebetbuchfragmente
(mit Brandspuren) wurden dem Bergwinkelmuseum im Lauterschen Schlösschen
in Schlüchtern übergeben, wo sie in der Abteilung Judaica ausgestellt sind.
Zum Bau des Wohnhauses in Stork wurde nicht nur das Bauholz der ehemaligen
Synagoge, sondern auch von zwei Bauernhäusern und einer Scheune verwendet. Der
ehemaligen Fachwerksynagoge entstammen beide Traufseiten und ein Giebel. Die
gebogenen Dreiviertelstreben, Sporne und Gegenstreben entstammen anderen Gebäuden
oder wurden neu angefertigt. Die Ritualbad-Anlage wurde beim Abbau und Versetzen
der ehemaligen Synagoge zerstört und entfernt.
1987 wurde das Synagogengrundstück mit einem neuen Wohnhaus überbaut.
Adresse/Standort der Synagoge: an
Stelle des heutigen Gebäudes Hinkelhofer Straße 6A
Fotos / Abbildungen
(Quelle: Altaras 1988 S. 25; 2007² S. 346-347)
| Plan / Schnitt /
Isometrie der Synagoge |
|
 |
 |
 |
Plan des Erdgeschosses
der
ehemaligen Synagoge |
Senkrechter Schnitt
durch das
Synagogengebäude |
Isometrie des Fachwerks und
des
Holzgefüges der ehemaligen Synagoge |
| |
|
|
| |
|
|
Foto der ehemaligen
Synagoge
(Quelle: Stadtarchiv Schlüchtern;
vermittelt durch Horst Möwes) |
 |
Foto
links
in höherer Auflösung (318 kb) |
| |
Blick auf das 1811 erbaute
Gebäude mit
einem bei Landsynagogen häufigen
Krüppelwalmdach; das
kleine Fenster über
dem Haupteingang gehört zur Frauenempore. |
|
| |
|
|
| |
|
|
Privatwohnhaus im Storker
Hof, erbaut
mit dem Bauholz der ehemaligen Synagoge |
 |
|
| |
Aufnahme April 1987 |
|
| |
|
|
Synagogengrundstück
(Foto: Hahn, Aufnahmedatum 9.4.2015) |
 |
|
| |
Blick auf das Grundstück der
ehemaligen Synagoge mit Neubebauung |
|
| |
|
|
Links und Literatur
Links:
Literatur:
 | Paul Arnsberg: Die jüdischen Gemeinden in Hessen. Anfang -
Untergang - Neubeginn. 1971. Bd. II S. 331. |
 | Thea Altaras: Synagogen in Hessen. Was geschah seit
1945? 1988 S. 25. |
 | dies.: Das jüdische Rituelle Tauchbad und: Synagogen in
Hessen. Was geschah seit 1945 Teil II. 1994. S. 138 (keine weiteren
Informationen). |
 | dies.: Neubearbeitung der beiden Bände. 2007² S.
346-347. |
 | Studienkreis Deutscher Widerstand (Hg.):
Heimatgeschichtlicher Wegweiser zu Stätten des Widerstandes und der
Verfolgung 1933-1945. Hessen I Regierungsbezirk Darmstadt. 1995 S.
223. |
 | Pinkas Hakehillot: Encyclopedia of Jewish
Communities from their foundation till after the Holocaust. Germany Volume
III: Hesse - Hesse-Nassau - Frankfurt. Hg. von Yad Vashem 1992
(hebräisch) S. 535. |
 | Jens Hoppe: Jüdische Geschichte und Kultur in
Museen. Zur nichtjüdischen Museologie des Jüdischen in Deutschland. New
York / München / Berlin. Waxmann-Verlag. 2002. S. 142-143. |

Article from "The Encyclopedia of Jewish life Before and During the
Holocaust".
First published in 2001 by NEW
YORK UNIVERSITY PRESS; Copyright © 2001 by Yad
Vashem Jerusalem, Israel.
Vollmerz (now
part of Schluechtern) Hesse-Nassau. Dating from the 18th century, this Jewish
community numbered 103 (23 % of the population) in 1861 and 22 in 1933. Its
wooden synagogue had an interior design and Hebrew inscriptions executed by a
Christian artist in 1812. The interior was destroyed on Kristallnacht
(9-10 November 1938) and by 1941 all the remaining Jews had left.

vorherige Synagoge zur ersten Synagoge nächste Synagoge
|