|
Eingangsseite
Aktuelle Informationen
Jahrestagungen von Alemannia Judaica
Die Mitglieder der
Arbeitsgemeinschaft
Jüdische Friedhöfe
(Frühere und bestehende) Synagogen
Übersicht: Jüdische Kulturdenkmale
in der Region
Bestehende jüdische Gemeinden
in der Region
Jüdische Museen
FORSCHUNGS-
PROJEKTE
Literatur und Presseartikel
Adressliste
Digitale Postkarten
Links
| |
zurück zur Übersicht "Synagogen in der Region"
zurück zur Übersicht "Synagogen in Hessen"
Zur Übersicht
"Synagogen im Vogelsbergkreis"
Romrod mit
Oberbreidenbach (Stadt Romrod, Vogelsbergkreis)
Jüdische Geschichte / Synagoge
Übersicht:
Zur Geschichte der jüdischen Gemeinde (english
version)
In Romrod bestand eine jüdische Gemeinde bis Ende 1935. Ihre Entstehung
geht in die Zeit des 17./18. Jahrhunderts zurück. Die Anwesenheit mindestens
einer jüdischen Familie am Ort ist für 1650 nachgewiesen. Im "Beitrag zur
Geschichte der Juden in Oberhessen von ihrer frühesten Erwähnung bis zur
Emanzipation" von Rosy Oppenheimer 1931 Heft 4 S. 257 wird von einer
Erwähnung jüdischer Personen in Romrod aus der Zeit "um 1600" gesprochen
(mit damaligem Quellenhinweis: Hessisches Staatsarchiv XI 2 Konv. 4 fol. 4).
Seit 1798
bestand in Romrod eine selbständige jüdische Gemeinde.
Im 19. Jahrhundert entwickelte sich die Zahl der jüdischen Einwohner
wie folgt: 1814 28 jüdische Familien, 1830 47 jüdische Einwohner, 1871
74, 1880 41 (4,6 % von insgesamt 876 Einwohner), 1895 38, 1893 43 (in 10
Familien), 1897 40 (in 9 Familien), 1898/99 44 (in 11 Haushaltungen), 1900-1905: 33/30 (in
9 Haushaltungen, 4,0 %
von 816), 1905 26, 1910 16 (2,0 % von 793). Zur Gemeinde gehörten auch die im
Ort Zell bei Alsfeld lebenden jüdischen Familien (um 1900 zwei Familien).
An Einrichtungen bestanden eine Synagoge (s.u.), eine
Religionsschule und ein rituelles Bad (alle Einrichtungen im Synagogengebäude
s.u.). Die Toten der Gemeinde wurden im jüdischen Friedhof
in Angenrod beigesetzt. Zur Besorgung religiöser Aufgaben der Gemeinde war
- zumindest zeitweise - ein Religionslehrer angestellt, der zugleich als
Vorbeter und Schochet tätig war (vgl. Ausschreibungen der Stelle unten von 1877
und 1884). Genannt werden: um 1859 Lehrer Steinberger (vgl. AZJ
vom 18.7.1859 S. 429), um 1863 Lehrer Plaut (genannt als Teilnehmer
bei der zweiten Konferenz israelitischer Lehrer Oberhessens in
Kirchhain am 24.9.1863; in "Der
israelitische Lehrer" vom 22.10.1863 S. 170), um 1885/93 Lehrer L.
Aberbach (unterrichtete 1891 - gegen ein Entgelt von 50 Pfg. pro Kind - auch
10 Kinder in Lauterbach und Maar, 1903 8 Kinder in Romrod; Jahrbuch der Jüd.-Literarischen
Gesellschaft 1927 S. 86). 1899 erteilte Lehrer Werthan aus
Ober-Gleen den Religionsunterricht in
Romrod (1893 noch 3, 1897 noch 6, 1899 9 Kinder in der Gemeinde).
Die Gemeinde gehörte zum liberalen Provinzialrabbinat
Oberhessen mit Sitz in Gießen.
Von den Gemeindevorstehern werden genannt: um 1878/84 Isaak Flörsheim; um
1889 Isaak Flörsheim, M. Stein und L. Aberbach; um 1894 Isaak Flörsheim, M.
Stern und Baruch Flörsheim; um 1899 Baruch Flörsheim und Isaak Flörsheim;
um 1901/03 Baruch Flörsheim, Isaak Flörsheim, F. Ullmann.
Im Ersten Weltkrieg sind von den jüdischen Kriegsteilnehmern aus Romrod
gefallen: Lehrer (in Ulrichstein)
Simon Rothschild (geb. 11. September 1895 in Romrod als Sohn von Abraham
Rothschild, gef. 24. April 1918, siehe Artikel unten), Kaufmann Adolf Stern (geb. 1894 in Romrod, gef. 1. Oktober
1918), Leopold Ullmann (geb. 1885 in Romrod, gef. 31. Mai 1915). Simon
Rothschild wurde für seinen Kriegseinsatz mit dem Eisernen Kreuz II und der
Hessischen Tapferkeitsmedaille ausgezeichnet sowie zum Unteroffizier ernannt ("Israelitisches
Familienblatt" vom 4.10.1917 und Artikel unten). Auch Musketier Isidor
Lorsch (Sohn des David Lorsch in Romrod) erhielt sowohl die Hessische
Tapferkeitsmedaille wie auch das Eiserne Kreuz II ("Israelitisches
Familienblatt" vom 28.12.1917 und 5.4.1918 S.14). Der Kriegsfreiwillige
Bernhard Lorsch (Sohn des David Lorsch; im Landwehr-Infanterie-Regiment Nr.
116) erhielt das Eiserne Kreuz II ("Israelitisches Familienblatt" vom 18. Mai
1916 S. 2, "Dr. Bloch's Österreichische Wochenschrift" vom 2.6.1916).
Sally Rothschild (Sohn des Abraham Rotschild; im bayerischen
Reserve-Infanterieregiment Nr. 13) wurde gleichfalls mit dem Eisernen Kreuz II
ausgezeichnet ("Israelitisches Familienblatt" vom 30.7.1915 S.3, "Dr. Bloch's
österreichische Wochenschrift" vom 23. Juli 1915 S. 557).
Um 1924, als noch 15 Personen zur jüdischen Gemeinde gehörten (1,7 %
von insgesamt etwa 850 Einwohnern), waren die Gemeindevorsteher David Lorsch,
Leopold Fischer und Adolf Stern. Zur Gemeinde Romrod gehörten auch die vier
damals in Oberbreidenbach lebenden jüdischen
Personen. 1932 waren als Vorsteher dieselben Personen wie sieben Jahre zuvor
eingetragen: David Lorsch (1. Vors.), Adolf Stern (2. Vors.) und Leopold Fischer
(3. Vors.).
1933 lebten noch 13 jüdische Personen am Ort (1,5 % von 859). In
den folgenden Jahren sind alle jüdischen Gemeindeglieder auf Grund der
zunehmenden Entrechtung und der Repressalien weggezogen beziehungsweise
ausgewandert. Ende Oktober 1935 wurde die Gemeinde mit Genehmigung des
Provinzialrabbiners Dr. Sander aufgelöst. Drei der jüdischen Einwohner
von 1933 konnten in die USA emigrieren, die übrigen sind innerhalb von
Deutschland verzogen. 1939 waren keine jüdischen Personen mehr in Romrod
wohnhaft.
Von den in Romrod geborenen und/oder längere Zeit am Ort wohnhaften jüdischen
Personen sind in der NS-Zeit umgekommen (Angaben nach den Listen von Yad
Vashem, Jerusalem und den Angaben des "Gedenkbuches
- Opfer der Verfolgung der Juden unter der nationalsozialistischen
Gewaltherrschaft in Deutschland 1933-1945"): Salomon Flörsheim
(1864), Jenny Jacobsohn geb. Flörsheim (1894), Emmy (Jenny) Lindemann geb.
Rothschild (1892), Grete Schwarz geb. Rothschild (1885).
Von den in Oberbreidenbach geborenen und/oder längere Zeit am Ort
wohnhaften jüdischen Personen sind in der NS-Zeit umgekommen (Angaben
nach den Listen von Yad Vashem, Jerusalem
und den Angaben des "Gedenkbuches
- Opfer der Verfolgung der Juden unter der nationalsozialistischen
Gewaltherrschaft in Deutschland 1933-1945"): Rosa Goldschmidt geb.
Stern (1888), Klara Katz geb. Stern (1901), Selma Levy geb. Stern (1899), Adolf
Stern (1891), Marim Stern (1897), Moritz Stern (1900, Gedenkbuch
Karlsruhe).
Aus der Geschichte der jüdischen Gemeinde
Aus der Geschichte der jüdischen Lehrer
Ausschreibungen der Stelle des Religionslehrers / Vorbeters / Schochet 1877 /
1878 / 1884 / 1896 sowie Ausschreibung von Angenrod aus 1910
Anzeige
in der Zeitschrift "Der Israelit" vom 7. März 1877: "Die
hiesige israelitische Religionslehrer- und Vorbeterstelle ist vakant und
wäre durch eine ledige Person zu besetzen. Reflektanten belieben sich
unter Beischluss ihrer Zeugnisse und Offerten an den Vorstand zu wenden.
Romrod. Der Vorstand Isaac Flörsheim." |
| |
Anzeige
in der Zeitschrift "Der Israelit" vom 15. August 1877: "Die
hiesige Religionslehrer- und Vorbeter-Stelle ist vakant. Der Gehalt
besteht in 514 Mark, freie Wohnung und Holz. Es wird reflektiert auf eine
ledige Person. Bewerber wollen sich brieflich mit Zeugnissen an uns
wenden.
Romrod, den 12. August 1877. Der israelitische Vorstand." |
| |
Anzeige
in der Zeitschrift "Der Israelit" vom 10. April 1878: "In hiesiger
israelitischen Gemeinde ist die Stelle eines Religionslehrers und Vorbeters
vakant mit einem Gehalt von 514 Mk. 29 Pf. nebst freier Wohnung und Holz.
Reflektiert wird auf eine unverheiratete Person.
Romrod (Oberhessen), 7. April 1878.
Der israelitische Vorstand: I. Flörsheim." |
| Anmerkung: Die Stelle in Romrod war
damals offenbar nicht leicht zu besetzen. Eine weitere Ausschreibung
erfolgte in "Der Israelit" am 30. Oktober 1878.
|
| |
Anzeige
in der Zeitschrift "Der Israelit" vom 7. Januar 1884: "In
der hiesigen israelitischen Gemeinde ist die Stelle eines Religionslehrers
und Vorbeters vakant, mit einem jährlichen Gehalt von 514 Mark, 29
Pfennig nebst freier Wohnung und Holz. Reflektiert wird auf eine
unverheiratete Person, welche sich durch Einsendung ihrer Zeugnisse an den
Unterzeichneten wenden wolle.
Romrod (Oberhessen), am 1. Januar 1884. Der israelitische Vorstand Isaac
Flörsheim." |
| |
Anzeige
in der Zeitschrift "Der Israelit" vom 14. Juli 1892:"Die hiesige
Religionslehrer- (8 Schüler) & und Vorbeterstelle ist vakant mit einem
Gehalt von 514 M. 29 Pfg., freier Wohnung und Heizung. Nur unverheiratete
junge Reflektanten wollen sich durch Beifügung ihrer Zeugnisse an den
Unterzeichneten wenden.
Romrod (Oberhessen), 10. Juli 1892.
Der Vorstand: B. Flörsheim." |
| |
Anzeige
in der Zeitschrift "Der Israelit" vom 12. November 1896: "Die hiesige
Religions- und Vorbeterstelle ist zu besetzen. Gehalt 514 Mk. nebst freier
Wohnung und Heizung und sonstigen Nebeneinkünften. Unverheiratete
reichsangehörige Bewerber wollen sich unter Beifügung ihrer Zeugnisse an den
Unterzeichneten wenden.
Romrod, 8. November 1896.
Der Vorstand der israelitischen Gemeinde: Baruch Flörsheim."
|
| |
| 1910 wurde die Stelle in
Angenrod ausgeschrieben und dabei darauf
hingewiesen, dass der künftige Lehrer auch Stellen in
Kirtorf,
Ober-Gleen und Romrod
übernehmen könne. |
Anzeige
im "Israelitischen Familienblatt" vom 14. April 1910: "Vakanz
In unserer Gemeinde ist die Stelle als
Religionslehrer, Vorbeter und Schächter
zu besetzen. Garantiertes Einkommen 1200 Mark p. a. nebst freier Wohnung
und Heizungs-Vergütung, großen Garten. Auch kann die Religionslehrerstelle
in Kirtorf,
Obergleen und Romrod mit 800
Mark Einkommen mit übernommen werden.
Bewerber, die ihr Staats-Examen abgelegt haben, wird ihre staatliche
Anstellung bei Engagement schriftlich von uns garantiert.
Angenrod (Oberhessen). Der
Vorstand
Rotschild." |
Nennung von Lehrer Plaut bei einer Lehrerkonferenzen (1863 / 1864)
Aus
einem Artikel in der Zeitschrift "Der israelitische Lehrer" vom 22. Oktober
1863: "Bericht über die zweite Konferenz israelitischer Lehrer
Oberhessens abgehalten zu Kirchhain am 24. September dieses Jahres.
Auf den 24. September war eine Versammlung der Lehrer Oberhessens bestimmt
und durfte man, da Zeit und Ort passend gewählt, auch die Witterung überaus
günstig war, eine zahlreiche Betheilung, erwarten. Aber wie bitter war die
Enttäuschung. Nur elf Lehrer fanden sich ein. Mancher, mag allerdings
zu entschuldigen sein; aber im Allgemeinen ist Lauheit und Gleichgültigkeit
Ursache des Nichterscheinens. 'Wir bezwecken doch nichts' sagt man, um der
Arbeit überhoben zu sein; man bedenkt aber nicht, dass nur Tätigkeit zum
Ziele führt und Lauheit der guten Sache schadet. — Unsere Versammlung
bestand aus den Herren Hause aus
Neukirchen, Rothschild aus Treysa,
Marcus aus Gilserberg, Lissard aus
Amöneburg, Hahn aus
Rauischholzhausen, Luß aus
Schweinsberg, Stern aus
Erksdorf, Spier aus Gemünden,
Spie aus Sterzhausen, Plaut aus
Nordeck und Plaut aus Romrod
(Hessen-Darmstadt.).
Herr Haas aus Ziegenhain hatte
sein Nichterscheinen genügend entschuldigt und wurde an dessen Stelle der
Unterzeichnete zum Schriftführer erwählt.
Gegenstand der Beratung war: Gründung eines Pensionsvereins für die
israelitischen Lehrer Kurhessens..." |
Nach Lehrer L. Röthler, ehemals in
Romrod wird gesucht (1882)
Anmerkung: es ist unklar, wann L. Röthler in
Romrod und Wetter (nicht: Wettern) als Lehrer tätig war und wieso er von Kantor
A. Baer gesucht wurde.
Ein Lehrer Leopold Röthler (geb. 13. Oktober 1861, zu jung für Anfrage
1882?; eventuell gab es noch einen anderen jüdischen Lehrer L. Röthler, aber der
Familienname ist selten) begegnet 1892 in der Gemeinde
Münchweiler, 1894 in
Ortenberg, 1896 in
Hottenbach, 1898/99 in
Meudt, 1924 in
Geinsheim (bei Neustadt a.d.W.). Weiteres zu seiner Familiengeschichte siehe
in der Seite zu Geinsheim
Anzeige
in der "Österreichisch-ungarischen Kantorenzeitung" vom 25. Januar 1885: "Bitte
zu beachten.
Herr L. Röthler, früher Lehrer in Romrod und Wettern wird dringend
ersucht, seinen jetzigen Aufenthalt dem Unterzeichneten mitzuteilen.
Cantor A. Baer." |
Aus dem jüdischen Gemeindeleben
In der Synagoge in Romrod wird eine jüdische Konfirmation
gefeiert (1840)
Anmerkung: Im Zuge von liberalen Reformen in jüdischen Gemeinden
Mitte des 19. Jahrhunderts haben viele Gemeinden statt der traditionell
individuellen Bar Mizwa-Feier die gemeinsame
"Konfirmationsfeier" eines Jahrganges im Synagogengottesdienst
eingeführt.
Artikel in der Zeitschrift "Der Israelit des 19. Jahrhunderts"
vom 11. Oktober 1840: "Desgleichen wird aus einer anderen kleinen
Gemeinde, Romrod, im Großherzogtum Hessen, der Akt einer Konfirmation
gerühmt, welchen der Lehrer A. Cahn als Alsfeld zur allgemeinen Erbauung
der israelitischen und christlichen Zuhörer in der dortigen Synagoge
gehalten." |
Berichte
zu einzelnen Personen aus der jüdischen Gemeinde
Zum Tod von M. Stern (1894)
Artikel in der Zeitschrift "Der Israelit" vom 19. März 1894: "Romrod,
(Oberhessen.) Am 25. vorigen Monats starb eines unserer bewährtesten
Gemeindemitglieder, Herr M. Stern, nach kurzem Krankenlager im 67.
Lebensjahre. Derselbe war weit und breit als ein mustergültiger Wohltäter in
des Wortes edelster und schönster Bedeutung bekannt Er verpflegte Arme,
spendete viel und gern, Hungrige nahm er gastfreundlich in sein Haus auf,
speiste sie nach Hülle und Fülle, da Wohltätigkeit ihm ein teures Gut
war. Aber auch seine Frömmigkeit stand ihm um nichts nach, aus vollkommener
Gottesüberzeugung, aus dem tiefsten Grunde seines Innern diente er Gott sein
ganzes Leben lang mit ganzem Herzen und mit ganzer Seele." |
Lehrer Simon Rothschild (geb. 1895
oder 1896 in Romrod) ist im Krieg gefallen (1918)
Artikel
im "Israelitischen Familienblatt" vom 13. Juni 1918: "Auf den
Schlachtfeldern des Westens fand am 24. April der Kollege Rothschild -
Ulrichstein den Heldentod
fürs Vaterland
Rothschild war 1896 in Romrod (Oberhessen) geboren. Er war der
Jüngste seiner Familie, der Liebling seiner Eltern und Geschwister. Er
besuchte die Volksschule seines Geburtsortes und zeichnete sich frühzeitig
durch außergewöhnliche Intelligenz und hervorragendes Streben aus. Seine
Lehrer und besonders der Schulinspektor drängten die Eltern, den hoch
begabten Knaben, wie es seinem eigenen Wunsche entsprach, dem Lehrerberufe
zuzuführen. Er besuchte die
Präparandenschule zu Höchberg und sodann das Lehrerseminar zu Köln.
Nachdem er kaum ein Jahr in Ulrichstein
als Lehrer amtiert und in der kurzen Zeit sich die Liebe und Zuneigung
seiner Gemeinde und seiner Schüler erworben, brach der Weltkrieg aus, und
auch er wurde zu den Waffen gerufen. Bei dem Garde-Grenadierregiment Nr. 5
in Berlin erhielt er seine Ausbildung, kam ins Feld, und mehr als drei Jahre
hat er die Strapazen des furchtbaren Weltkrieges ertragen. Er wurde zum
Unteroffizier befördert, erhielt das Eiserne Kreuz und die hessische
Tapferkeitsmedaille.
In ihm verlieren seine tiefgebeugten Eltern einen gar wackeren Sohn, der
ihnen die Stütze ihres Alters werden sollte, und nicht minder die
Lehrerschaft ein aufstrebendes Mitglied, das durch natürliche Anlage und
edle Charaktereigenschaften berufen schien, einmal eine Zierde seines
Standes zu werden.
Er ruhe sanft in Frieden; der Allgütige tröste die trauernden Seinen!
M. St." |
Anzeigen
jüdischer Gewerbebetriebe und Privatpersonen
Anzeige der Landesproduktenhandlung Siegmund Flörsheim (1899)
Anmerkung: bereits aus den Jahren vor 1899 liegen etliche Anzeigen von Siegmund
Flörsheim in jüdischen Periodika vor.
Anzeige
in der Zeitschrift "Der Israelit" vom 24. Juli 1899: "Suche für mein
Frucht-, Mehl- und Futter-Artikel-Geschäft einen angehenden Commis.
Kost und Logis im Hause. Samstags geschlossen.
Siegmund Flörsheim,
Romrod, Oberhessen." |
Anzeige von A. Flörsheim (Suche nach
einer Haushälterin, 1908)
Anzeige
in der "Neuen jüdischen Presse" ("Frankfurter Israelitisches Familienblatt")
vom 21. August 1908: "Suche
für längere Zeit in meinem ländlichen kleinen Haushalt (2 Kinder, 11 und 8
Jahre alt) eine selbständige
Haushälterin,
Dienstmädchen vorhanden.
A. Flörsheim, Romrod, Oberhessen." |
Anzeige von David Lorsch (Stellensuche
für seinen Sohn, 1916)
Anmerkung: unklar, für welchen Sohn er die Stelle sucht: David Lorsch hatte
mindestens zwei Söhne, die im Ersten Weltkrieg im Kriegseinsatz waren: Bernhard
und Isidor.
Anzeige
im "Israelitischen Familienblatt" vom 13. April 1916:
"Suche für meinen Sohn, welcher die Lehre als Bäcker und Konditor
beendet hat,
sofort Stelle.
David Lorsch Romrod (Hessen)." |
Anzeigen von M. Lorsch (1919)
Anmerkung: die Anzeigen dürften von
Moritz = Morris Lorsch stammen (damals 20 Jahre alt, siehe unten)
Anzeige
im "Israelitischen Familienblatt" vom 13. November 1919: "Suche Stelle
als Bäcker und Konditorgehilfe,
wo es mir möglich ist, mich in der Konditorei weiter auszubilden. Habe schon
in der Bäckerei selbständig gearbeitet, Zuschriften erbeten an
Moritz Lorsch, Romrod bei Alsfeld." |
| |
Anzeige
in der "Neuen Jüdischen Presse" ("Frankfurter Israelitisches Familienblatt")
vom 19. Dezember 1919: "Bäcker und Konditorgehilfe
sucht Stellung in einer Bäckerei gegen geringen Lohn,
Angebote an M. Lorsch, Romrod, Oberhessen." |
Verlobungsanzeige von Rose Mayer und Moritz Lorsch
(1923)
In der Anzeige steht Rose Meyer, spätere Schreibweise Mayer
Anzeige
in der Zeitschrift "Der Israelit" vom 7. Juni 1923: "Rose
Mayer - Moritz Lorsch.
Verlobte.
Seeheim an der Bergstraße - Romrod
in Oberhessen - Frankfurt a. Main, Rechneigrabenstraße 12b. Juni
1923." |
Geburtsanzeige von Frederic Zadok
Lorsch (1928)
Anmerkung: Frederic Z. Lorsch ist nach
https://de.findagrave.com/memorial/211917898/frederic-z-lorsch am 15.
November 1926 in den USA (Illinois) geboren. Er war als "Accountant" tätig und
starb am 14.März 1968 in Lincolnwood, Cook County, Ill. Er wurde im
Westlawn Cemetery in Norridge, Cook County, Ill. beigesetzt.
Die Gräber von Rose Lorsch (1900-1962)
https://de.findagrave.com/memorial/131363560/rose-lorsch und Morris Lorsch
(1899-1953)
https://de.findagrave.com/memorial/131363559/morris-lorsch im Zion Gardens
in Chicago, Cook County Ill. mit Fotos der Grabsteine.
Anzeige
im "Israelitischen Familienblatt" vom 13. Januar 1928: "Fred Zadok.
Die Geburt eines kräftigen Jungen zeigen hocherfreut an
Morris Lorsch und Frau Rose geb. Mayer
Romrod (Oberhessen) - Chicago Ill.
Seeheim a.d. Bergstraße". |
Zur Geschichte der Synagoge
Zunächst wurden die Gottesdienste in Angenrod
beziehungsweise in Alsfeld besucht; vermutlich war auch bereits ein Betraum in einem der
jüdischen Wohnhäuser vorhanden.
1837 kaufte die israelitische Gemeinde ein 1722 als bäuerliches Wohn- und
Wirtschaftsgebäude erbautes Haus ("Vogelsberger Einhaus am Ocherbach")
und baute es in den folgenden Jahren zu einer Synagoge mit Schulraum,
Lehrerwohnung und rituellem Bad um. In der bisherigen Scheune wurde der
Synagogensaal mit einer Frauenempore im Obergeschoss eingebaut. Das rituelle Bad
wurde in einer nordöstlich davon befindlichen Kammer eingerichtet. Der Umbau
wurde vom damaligen Kreisbaumeister Sonnemann betreut, der auch die
klassizistische Synagogeneinrichtung entworfen hatte. Am 16. September 1843 konnte
die Synagoge eingeweiht werden. 1857 wird von der feierlichen
Einweihung einer neuen Torarolle berichtet. Dabei wirkten auch christliche
Schulkinder mit.
Einweihung einer neuen Torarolle
(1857)
Mitteilung
in der "Allgemeinen Zeitung des Judentums" vom 7. September 1857: "Ich
erlaube mir noch einige Notizen von auswärts anzuführen. In dem
großherzoglich hessischen Orte Romrod wurde im Laufe dieses Sommers
eine von einem Privaten gewidmete Torarolle mit großem Pompe eingeweiht. In
der Synagoge unterstützten die christlichen Ortsschüler die nur geringe Zahl
der jüdischen Kinder beim Singen einiger Lieder aus dem Philippson'schen
Gesangbuche." |
Fast 100 Jahre war die Synagoge Mittelpunkt des jüdischen Lebens in Romrod.
Auf Grund der stark zurückgegangenen Zahl der jüdischen Einwohner konnte Mitte
der 1930er-Jahre kein Gottesdienst mehr abgehalten werden. Die vier letzten
Gemeindemitglieder verkauften das Grundstück mit dem Gebäude im Oktober 1935 an einen
nichtjüdischen Landwirt für 5.000 RM. In den folgenden Jahren wurde die
ehemalige Synagoge als Scheune und Lager verwendet.
In den 1980er-Jahren befand sich das Gebäude inzwischen in baufälligem Zustand
- der Abbruch drohte. Nach einem erneuten Besitzerwechsel 1988 und einem Übergang in den Besitz der Stadt Romrod
im April 1992 kamen Überlegungen auf,
die ehemalige Synagoge als Kulturdenkmal von besonderer Bedeutung für die
Zukunft zu erhalten.
In enger Zusammenarbeit zwischen der Stadt Romrod, dem Landesamt für
Denkmalschutz und einem Architekturbüro wurde die ehemalige Synagoge in den
Jahren 2001 bis 2006 denkmalgerecht saniert. Die Kosten in Höhe von etwa 750.000 € teilten sich
die Deutsche Stiftung Denkmalschutz und die Stadt Romrod; außerdem wurden
Mittel aus dem Dorferneuerungsprogramm zur Verfügung gestellt. Am 16. Juni 2006
wurde die restaurierte Synagoge als "Kulturhaus ehemalige Synagoge"
eröffnet und wird seitdem für kulturelle Veranstaltungen (Konzerte, Lesungen,
Theater, standesamtliche Trauungen usw.) genutzt. Erhalten und restauriert
werden konnte die Innenausstattung der Synagoge einschließlich der
Unterkonstruktion des Toraschreines und der Emporenanlage.
Adresse/Standort der Synagoge: Schlossallee
Fotos
Die ehemalige Synagoge vor
der
Restaurierung (Quelle: Außenaufnahmen
aus Altaras 1988 S. 112;
Innenaufnahmen
aus einer Seite von
www.juedisches-museum-vogelsberg.de) |
 |
 |
| |
Blick von Westen auf das
Gebäude |
Blick von Osten auf das
Gebäude |
| |
|
|
 |
 |
 |
| Blick zur ehemaligen
Frauenempore |
Auf der
ehemaligen Frauenempore |
|
| |
|
|
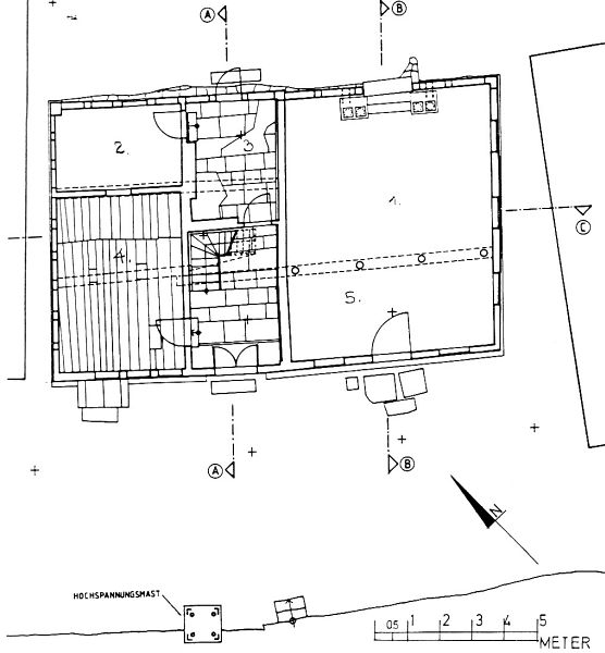
Baubestandspläne
(gezeichnet
durch TH Darmstadt;
Quelle: Altaras 1994 S. 102.104) |
 |
 |
| |
1 = Synagoge, 2 = rituelles
Bad,
3 = Küche und Feuerung, 4 = Stube,
5 = Empore im Obergeschoss |
Lage und Versorgung
des
Ritualbades |
| |
| |
|
|
Die ehemalige Synagoge
während der Restaurierung 2002 (Quelle für Foto links:
Karl-Eberhard Feussner,
Alsfeld bei
www.synagogen.info mit
Hinweis auf Bildrecht
bei der Denkmalakademie e.V.) |
 |
 |
| |
Blick von Westen |
Im
Inneren während der Restaurierungsarbeiten
(Foto erhalten von Bernd Rausch,
Heimat- und Kulturverein Romrod) |
| |
| |
| |
|
|
| |
|
|
Die restaurierte
ehemalige Synagoge
im März 2008
(Fotos: Hahn, Aufnahmedatum 26.3.2008) |
|
|
 |
 |
 |
| Rückwärtige
Ansicht des Synagogengebäudes (von Osten) |
Vorbau des ehemaligen
Toraschreines |
| |
|
Weitere Außen-
und Innenansichten des Synagogengebäudes,
(erhalten von Bernd Rausch, Heimat- und Kulturverein Romrod im Februar
2011) |
|
 |
 |
 |
| Blick auf die
ehemalige Synagoge (von Nordwesten) |
Blick auf dem
Synagogengebäude |
| |
|
|
 |
 |
 |
| Rückwärtige
Ansicht des Synagogengebäudes (von Osten) |
Blick von der
Schlossmauer des Schlosses
Romrod auf die ehemalige Synagoge (Mitte) |
| |
| |
|
|
 |
 |
 |
Blick von der ehemaligen
Frauenempore in den Betraum |
Blick nach Osten -
zum Standort des
ehemaligen Toraschreines |
Halbrundfenster über dem
Standort
des ehemaligen Toraschreines
mit Blick zum Schloss Romrod |
| |
| |
|
|
 |
 |
 |
Westliche Seite des Betsaales,
rechts ist
über den Säulen die Frauenempore erkennbar |
Säulenkapitelle unter
der Frauenempore |
Hinweistafel
"Hessischer Denkmalschutzpreis 2007" |
| |
|
|
 |
 |
 |
| Treppenaufgang zur
ehemaligen Frauenempore |
Blick von
der Frauenempore
in den Betraum |
| |
| |
|
|
 |
 |
|
| Informationstafeln;
die linke Tafel auch
in hoher Auflösung (bitte anklicken) |
Im Raum der
ehemaligen Mikwe |
| |
|
| |
 |
|
| |
Innenansicht des ehemaligen
Raumes der
jüdischen Schule (heute Domizil des
Männergesangvereins 1858 Romrod) |
|
| |
|
|
Erinnerung am ehemaligen
jüdischen
Wohnhaus Alsfelder Straße 6
(Fotos erhalten von Bernd Rausch) |
 |
 |
| |
Am Wohnhaus
Alsfelder Straße 6 erinnert eine Hinweistafel an frühere jüdische
Hauseigentümer (Familien Flörsheim und Lorsch). Zwischen den Zeilen ist
zu lesen, dass das Haus in der NS-Zeit an die Reichsfinanzverwaltung kam
und nach Klärung des Restitutionsverfahrens nach 1945 vorübergehend
wieder der Familie Isidor Lorsch gehörte, die es jedoch weiterverkauft
hat. |
| |
|
|
Erinnerungsarbeit
vor Ort - einzelne Berichte
| Januar 2011:
Vortragsreihe zur Aufarbeitung des in der NS-Zeit
Geschehenen |
Artikel im "Lauterbacher Anzeiger"
vom 6. Januar 2011 (Artikel):
"Romrod. Den Faden der Geschichte der jüdischen Gemeinde aufnehmen
ROMROD. Am 13. Januar startet in der Romröder Synagoge die Vortragsreihe 'Die verlorene
Welt'
Romrod (rwh). Heute in einer Woche beginnt in Romrod eine kleine Geschichts- und Vortragsreihe, mit der die Initiatoren, der Heimat- und Kulturverein, sich besonders der jüdischen Geschichte ihrer Stadt widmen wollen. Unter dem Titel
'Die verlorene Welt' werden im 14-Tag-Rhythmus Heimatforscher, Experten und Zeitzeugen
'das noch vorhandene Wissen' über dieses Kapitel der Stadtgeschichte zusammentragen, wie Romrods Bürgermeisterin Dr. Birgit Richtberg, eine der Initiatoren der Reihe, deren Zielsetzung beschreibt..." |
| |
| Januar 2011:
Erster Vortrag in der Reihe "Die verlorene Welt"
mit einem Filminterview mit Michael Maynard |
Artikel im "Lauterbacher Anzeiger"
vom 15. Januar 2011 (Artikel):
"Auf der Suche nach dem ehemaligen jüdischen Leben
ROMROD. Auftakt der Reihe 'Die verlorene Welt' in der restaurierten Romröder Synagoge.
(gsi). Den Faden der jüdischen Geschichte Romrods neu aufzunehmen, das ist das Ziel eines Projektes, das am Donnerstagabend in der ehemaligen Synagoge in Romrod startete. Bürgermeisterin Dr. Birgit Richtberg konnte zur Auftaktveranstaltung einer ganzen Reihe von Vorträgen, die den Romröder Bürgern helfen soll, sich auf die Suche nach ehemaligem jüdischem Leben in ihrer Stadt zu begeben, neben dem ersten Redner Heinrich Dittmar zahlreiche Gäste in dem Bethaus begrüßen, darunter auch Vertreter anderer Gemeinden, die bereits einen tiefen Blick in ihre jüdische Vergangenheit gewagt und geschafft haben und die in späteren Vorträgen in der Synagoge in Romrod zu Wort kommen werden..."
|
| |
| Januar 2011:
Zweiter Vortrag in der Reihe "Die verlorene
Welt" am
Holocaust-Gedenktag über die "Suche nach einem neuen
Zuhause" |
Artikel
von "de" in der "Oberhessischen Zeitung" vom 29.
Januar 2011: "Auf der Suche nach einem neuen Zuhause. Vortrag von Dr. Marlene Bock in der Romröder Synagoge.
ROMROD (de). Im Rahmen der Veranstaltungsreihe 'Die verlorene Welt' lud die Stadt Romrod in Zusammenarbeit
mit dem Heimat- und Kulturverein Romrod zu einem gut besuchten Vortrag mit
dem Ziel, das Wissen über das jüdische Leben in Romrod zusammenzutragen.
Die Veranstaltung fand am Donnerstagabend statt, dem Jahrestag der denkwürdigen
Befreiung des Vernichtungslagers Auschwitz durch die Rote Armee, der sich zum 66. Mal jährte...."
|
| |
| Februar 2011:
Dritter Vortrag
in der Reihe "Die verlorene Welt" zur Geschichte der Juden im Vogelsberg
|
Artikel im "Gießener Anzeiger" vom 12. Februar 2011 (Artikel):
"Auf dem Judenpfad dem jüdischen Leben auf der Spur
ROMROD. Über Juden im Vogelsberg referierten Ernst-Uwe Offhaus und Joachim Legatis.
(gsi). 'Dies ist der Versuch, Erinnerung zu bewahren' - mit diesem Wunsch begann ein Film über das jüdische Leben in Kestrich, mit dem am Donnerstagabend Ernst-Uwe Offhaus seinen Vortrag in der ehemaligen Synagoge in Romrod eröffnete. Dieser Wunsch steht auch hinter der Veranstaltungsreihe
'Die verlorene Welt', die vom 13. Januar bis zum 10. März in vierzehntägigem Rhythmus Vorträge über die Erforschung jüdischen Lebens anbietet...." |
| |
| Februar 2011:
Vierter Vortrag in der Reihe "Die verlorene Welt" über "Aufarbeitung der Vergangenheit - aber
wie?" |
Artikel von "gsi" im "Gießener Anzeiger" vom 26.
Februar 2011 (Artikel):
"Sammeln und Erinnerungen wecken
ROMROD. Albert Naumann gibt in der Reihe 'Die verlorene Welt' Praxistipps für die Suche nach jüdischem Leben
(gsi). 'Willst du deine Vergangenheit erkennen, dann betrachte dich selbst in der Gegenwart, denn sie ist das Resultat deiner
Vergangenheit.' Mit diesem Zitat von Buddha begrüßte am Donnerstagabend Stadtrat Bernd Rausch zahlreiche Gäste sowie den Referenten Albert Naumann in der ehemaligen Synagoge zur vierten Veranstaltung der Reihe
'Die verlorene Welt', mit der Romrod die eigene Suche nach jüdischem Leben starten will..."
|
| |
| März 2011:
Fünfter Vortrag der Reihe "Die Verlorene
Welt" am 10. März 2011 |
Foto
links. Wiedergabe eines Poesiealbum-Eintrages von 1935, aus der
Dauerausstellung in der ehemaligen Synagoge in Romrod: Selma Cohn schrieb einer Mitschülerin, christlichen Glaubens diesen
eindrücklichen Text in ihr Album.
Pressemitteilung des Heimat- und Kulturvereins Romrod Anfang März
2011:
"Die Stadt Romrod und der Heimat- und Kulturverein präsentieren am Donnerstag den 10. März, 20.00 Uhr die letzte Veranstaltung der Reihe "Die Verlorene Welt" im Betsaal der ehemaligen Synagoge am Ocherbach. Referent Heinrich Dittmar und Zeitzeugen aus Romrod werden versuchen, die Geschehnisse der Zeit vor und nach 1933 zu erhellen. Interessierte Menschen sind herzlich eingeladen." |
| |
Artikel von "mel" im "Gießener Anzeiger" vom 12.
März 2011 (Artikel):
"Erinnerungen dürfen nicht verloren gehen
ROMROD. 'Die verlorene Welt': Heinrich Dittmar tauscht mit Romröder Zeitzeuginnen Wissen über die jüdische Gemeinde aus.
(mel). In Erinnerungen an lang vergangene Zeiten schwelgte man am Donnerstagabend in der Romröder Synagoge. Beim letzten Vortrag der Reihe
'Die verlorene Welt' berichtete Heimatforscher Heinrich Dittmar über das jüdische Leben in Romrod. Gemeinsam mit Romröder Zeitzeuginnen trug er Informationen über jüdische Familien, deren Lebensumstände und Werdegang zusammen.
Ein bisschen wehmütig zeigte sich Bürgermeisterin Dr. Birgit Richtberg: Am vergangenen Donnerstag hielt Heimatforscher Heinrich Dittmar den letzten Vortrag der Reihe
'Die verlorene Welt' im Betsaal der Synagoge am Ocherbach in Romrod. Bei Kerzenschein von siebenarmigen Leuchtern berichtete Dittmar davon, was er über das jüdische Leben in Romrod zusammengetragen hatte.
'Es geht nicht darum, die NS-Zeit aufzuarbeiten', betonte Dittmar. Im Mittelpunkt standen an diesem Abend vielmehr die konkreten Erfahrungen, die Juden in Romrod gemacht haben..."
|
| |
| März
2011:
Besichtigung der jüdischen Friedhöfe in Kirtorf
und Angenrod |
Artikel im "Lauterbacher Anzeiger" vom 21. März 2011 (Artikel):
"Auf Spurensuche nach einstigem jüdischen Leben
KIRTORF. 'Die verlorene Welt': Exkursion zu jüdischen Friedhöfen - Spuren auf dem Friedhof in Angenrod weisen nach Romrod.
(gsi). Zum Abschluss der Reihe 'Die verlorene Welt', die seit Januar den Auftakt für Romrods Suche nach jüdischem Leben im Ort bildete, hatte Albert Naumann, Judaika-Forscher aus Kirtorf, zu einer Exkursion zu den jüdischen Friedhöfen in Kirtorf und Angenrod eingeladen. Am Freitagnachmittag startete diese im Kirtorfer Rathaus mit einem kurzen Überblick über das jüdische Leben in Kirtorf, über das Naumann seit einigen Jahren sehr engagiert recherchiert..."
|
| |
| November 2017:
Besuch von Nachkommen der Familie
Lorsch |
Artikel in der Alsfelder Allgemeine"
vom 30. November 2017: "Für Enkelin schließt sich Kreis.
Bereits zum vierten Mal besuchte Carla Gordon, die Enkelin der aus Romrod vertriebenen jüdischen Familie Lorsch, die ehemalige Heimat ihrer Mutter, Großeltern und Urgroßeltern. Seit 2008 hat sich für die aus Quincy (Illinois) angereiste Carla Gordon durch den Kontakt zu Horst Blaschko, Vorsitzender des Heimat- und Kulturvereins, eine Beziehung zu Romrod entwickelt. Bereits in 2011 war sie mit zwei ihrer erwachsenen Kinder im Vogelsberg, um ihnen die Heimat ihrer Vorfahren zu zeigen.
Dieses Mal hatte Carla Gordon, die in den USA in Vorträgen über die Lebensgeschichte ihrer Eltern und deren Familien berichtet, etwas Besonderes mitgebracht, um es dem Heimat- und Kulturverein als Dauerleihgabe zu überreichen. Es handelt sich um ein Ölbild des früheren Hauses Lorsch in Romrod, welches ihre Mutter wahrscheinlich von einem Chicagoer Auftragsmaler nach einer Fotovorlage hat malen lassen.
Dieser Tage fand in der ehemaligen Synagoge die Übergabe des Bildes statt. Dieses Bild hatte für die 1997 verstorbene Johanna Lorsch eine große Bedeutung. Auch deshalb möchte es die Tochter Carla Gordon in Absprache mit ihren Kindern der Stadt zur Verfügung stellen.
In ihrer Ansprache berichtete Gordon darüber, dass sie durch ihren Vater Herbert Weil, ein mit seinen Eltern aus Steinheim in Ostwestfalen geflohener und in die USA entkommener Jude, und ihrer Großmutter, die der Deportation nach Ausschwitz entkommen konnte, seit der Kindheit langjährige Kontakte zu Steinheim hat.
Über Romrod, den Geburtsort ihrer Mutter, erfuhr sie erst durch den Kontakt zu Horst Blaschko. Die Besuche in den vergangenen Jahren, das Treffen mit Freundinnen und Bekannten ihrer verstorbenen Mutter, die Besichtigung des früheren Hauses Lorsch, die restaurierte ehemalige Synagoge – dies habe sie sehr bewegt. Nun komme die Nachfolgegeneration in ein Alter, welches es notwendig mache, die Erinnerung weiterzugeben.
Aus diesem Grunde hatte sie Fotografien mitgebracht, die sie mit dem Bild im Kreis ihrer Kinder und Enkel zeigen. »Durch die Übergabe des Bildes schließt sich ein Kreis, der das Weiterbestehen unserer Familie und deren Beziehung zu Romrod symbolisieren soll. Ich hoffe, dass in der Zukunft auch meine Kinder mit ihren Kindern Romrod besuchen und die gemeinsame Erinnerung bewahren«, so Carla Gordon zum Abschluss. Matthias Heller für die Stadt Romrod und Horst Blaschko für den Heimat- und Kulturverein bedankten sich bei Frau Gordon für ihr Engagement und die großherzige Geste. Beide betonten, dass die Bewahrung der Erinnerung nicht einfacher werde, aber trotzdem notwendig sei und versprachen, das Bild in einem würdigen Rahmen zu präsentieren."
Link
zum Artikel |
| |
|
Juni 2019:
Nachkommen früherer jüdischer
Familien zu Besuch in Romrod und Kestrich |
Artikel von Joachim Legatis in der
"Alsfelder Allgemeinen" vom 3. Juni 2019: "Jüdische Vogelsberger.
Plakette für ermordeten Großonkel in Kestrich
Nachkommen von jüdischen Vogelsbergern in der Heimat ihrer Vorfahren: In
Kestrich war eine Gruppe aus Südafrika zu Gast, Großnichten von Sally
Bacharach, der 1942 ermordet wurde.
Besuch aus Johannesburg in Südafrika bekam dieser Tage Ernst-Uwe Offhaus.
Der Vorsitzende des Vereins Historisches Feldatal führte einmal mehr
Nachfahren von jüdischen Vogelsbergern durch die Alte Synagoge Kestrich. Er
zeigte das frühere Wohnhaus der Familie Bacharach und fuhr mit zum Grab der
Ur-Großvaters. Zuvor waren die Nachfahren Siegmund Bacharachs in Polen und
in Romrod unterwegs gewesen. Lindsey Clare Krawitz und Carol Elaine Rabin
kamen nicht mit leeren Händen nach Kestrich. Sie hatten eine Gedenkplakette
für die Alte Synagoge dabei, die an ihren Großonkel Sally Bacharach
erinnert. Er war im September 1942 mit dem Ehepaar Kapenberg von der Polizei
verschleppt worden und in das Konzentrationslager Theresienstadt gebracht.
Er wurde im KZ Auschwitz oder Vernichtungslager Treblinka ermordet. Lindsay
und Carol waren mit Ehemann, Kindern und einem Enkel gekommen und zeigten
sich beeindruckt von der restaurierten alten Synagoge. Genau studierten sie
die kleine Ausstellung mit Fundstücken des 2005 restaurierten
Fachwerkgebäudes.
In den nach dem Zweiten Weltkrieg eingezogenen Zwischenböden des ehemaligen
Gotteshauses fanden die Bauarbeiter Reste des Kristallleuchters und
Fragmente von Gebetbüchern. Die Gäste aus Südafrika freuten sich, dass der
Verein die alte Synagoge als einen Ort der Erinnerung und der Kultur
bewahrt. Gerhard Zinßer vom Verein Gedenkstätte Speier Angenrod erläuterte
die Erinnerungsarbeit zu jüdischen Vogelsbergern durch die Vereine. Lindsey
und Carol sind geborene Bacharachs, ihr Großvater war Siegmund Bacharach,
der mit seiner Familie 1936 nach Südafrika flüchten konnte. Sein Bruder
Sally blieb damals in Kestrich zurück, um den schwerkranken Vater zu
pflegen. Dieser starb einige Wochen später. Sein Grab ist das letzte, das
auf dem jüdischen Friedhof belegt wurde, wie Offhaus erläuterte. Carol E.
Rabin erzählte, der Großvater Siegmund war ein stolzer Deutscher gewesen. Er
hatte im Ersten Weltkrieg als Soldat in einer berittenen Einheit gedient.
Der Viehhändler und seine Familie starteten in Johannesburg bei Null. "Sie
hatten nichts und er arbeitete als Metzger, um den Lebensunterhalt zu
verdienen", sagt Carol Rabin. Sein Sohn Helmut wurde Elektriker.
Besuch auch in Romrod. Seine Frau Marianne Margot war ebenfalls eine
Überlebende des Holocaust, sie war mit einem Kindertransport nach England
geflüchtet, die Eltern wurden getötet. Ihre Mutter wurde Krankenschwester,
wie Carol Rabin weiter erzählt. Die Reise nach Europa unternahmen Elaine
Rabin, Ehemann Harvey, Tochter Sarah Blumberg mit Ehemann Raphael und Enkel
Jona sowie Lindsay Krawitz mit Tochter Jacqui. Die Schwestern freuen sich
über den Nachwuchs, was ihnen nach dem Leid in der Familie sehr wichtig ist.
Eine Visite der Gedenkstätte im ehemaligen KZ Auschwitz habe sie sehr
traurig über die Grausamkeit von Menschen gemacht, sagt Lindsey Krawitz. Sie
sieht aber auch das Gute: "Wir und unsere Kinder leben, Hitler hat uns als
Juden nicht vernichten können". Erste Station beim Besuch von Lindsay
Krawitz und Carol Rabin mit ihren Angehörigen im Vogelsberg war Romrod. Dort
trafen sie Horst Blaschko vom Heimatverein und Bürgermeisterin Dr. Birgit
Richtberg und besichtigten die Alte Synagoge. Blaschko erläuterte, dass in
Romrod nach 1933 noch die Familien Fischer, Lorsch und Stern gelebt haben.
Ihre Existenz war geprägt durch Überfälle und Einschüchterungen. So starb
Berta Fischer im Jahre 1936 nach einem Überfall örtlicher Nazis auf das Haus
der Familie in der Alsfelder Straße. Schon vorher wurden Mitglieder der
jüdischen Gemeinde gezwungen, wichtige Gegenstände aus der Synagoge
öffentlich zu verbrennen. Es war diese Drangsal, vor der die Familien
flüchteten. So auch die Eltern der Mutter von Elaine Rabin und Lindsey
Krawitz, Klara und Adolf Stern, die mit Tochter Margot nach Karlsruhe zogen.
Margot Stern konnte nach dem Novemberpogrom 1938 mit einem Kindertransport
nach England entkommen. Ihre Eltern deportierten die Nationalsozialisten im
Jahre 1940 mit etwa 6500 Juden nach Südfrankreich. Sie wurden 1942 im
Vernichtungslager Auschwitz ermordet."
Link zum Artikel
Vgl. Artikel in der "Oberhessischen Zeitung" vom 1. Juni 2019: "Jüdische
Familien aus Südafrika besuchen Romrod und Kestrich"
Link zum Artikel
sowie Artikel in "nh24.de" vom 30. Mai 2019: "Auf den Spuren einer
verlorenen Welt. Enkelinnen der früheren jüdischen Familien Stern und
Bacharach besuchen Romrod und Kestrich"
Link zum Artikel |
| |
Links und Literatur
Links:
Literatur:
 | Paul Arnsberg: Die jüdischen Gemeinden in Hessen. Anfang -
Untergang - Neubeginn. 1971. Bd. II S. 231. |
 | Thea Altaras: Synagogen in Hessen. Was geschah seit
1945? 1988 S. 112. |
 | dies.: Das jüdische Rituelle Tauchbad und: Synagogen in
Hessen. Was geschah seit 1945 Teil II. 1994. S. 102-105. |
 | Studienkreis Deutscher Widerstand (Hg.):
Heimatgeschichtlicher Wegweiser zu Stätten des Widerstandes und der
Verfolgung 1933-1945. Hessen II Regierungsbezirk Gießen und Kassel. 1995 S. 199-200. |
 | Pinkas Hakehillot: Encyclopedia of Jewish
Communities from their foundation till after the Holocaust. Germany Volume
III: Hesse - Hesse-Nassau - Frankfurt. Hg. von Yad Vashem 1992
(hebräisch) S. 298. |
 | Katharina Jakob (Verein Landjudentum Vogelsberg): Romrod: Gesetze und
Konflikte. Eingestellt
als pdf-Datei. Dazu: Quellenverzeichnis
zu diesem Beitrag. |
 |
Mathilda Wertheim Stein: The Way it Was: The Jewish World of Rural Hesse. 427
pages.
FrederickMax Publications 2000. ISBN 978 0 967 3282 01.
Weitere Informationen: siehe eingestellte
pdf-Datei mit Bestellmöglichkeit über www.israeled.org
bzw. http://www.amazon.com/The-way-was-Jewish-world/dp/0967328209
Darin u.a. in Kap.3: "The Flörsheim Family of Romrod". |

Article from "The Encyclopedia of Jewish life Before and During the
Holocaust".
First published in 2001 by NEW
YORK UNIVERSITY PRESS; Copyright © 2001 by Yad
Vashem Jerusalem, Israel.
Romrod
Hesse. The community, numbering 74 in 1871, disbanded in 1935. By
September 1938 all the Jews had left.

vorherige Synagoge zur ersten Synagoge nächste Synagoge
|