|
Eingangsseite
Aktuelle Informationen
Jahrestagungen von Alemannia Judaica
Die Mitglieder der
Arbeitsgemeinschaft
Jüdische Friedhöfe
(Frühere und bestehende) Synagogen
Übersicht: Jüdische Kulturdenkmale
in der Region
Bestehende jüdische Gemeinden
in der Region
Jüdische Museen
FORSCHUNGS-
PROJEKTE
Literatur und Presseartikel
Adressliste
Digitale Postkarten
Links
| |
zurück zur Übersicht "Synagogen in der
Region"
zurück zur Übersicht "Synagogen in
Hessen"
Zur
Übersicht "Synagogen im Kreis Kassel"
Breuna mit
Niederelsungen, Oberlistingen und Wettesingen (Kreis Kassel)
Jüdische Geschichte / Synagoge
Übersicht:
Zur Geschichte der jüdischen Gemeinde (english
version)
In Breuna bestand eine jüdische Gemeinde bis nach 1933. Ihre Entstehung geht in
die Zeit des 18. Jahrhunderts zurück. 1744 und 1776 gab es je vier jüdische
Familien am Ort.
Im 19. Jahrhundert entwickelte sich die Zahl der jüdischen Einwohner
wie
folgt: 1833 53 jüdische Einwohner (mit dem Gut Escheberg, vgl. unten
Artikel zu Bernhard Weinberg), 1861 43 jüdische Einwohner (4,3 % von insgesamt 996 Einwohnern),
1871 29 (2,1 % von 924), 1885 40 (4,3 % von 934), 1889 56 (Quelle:
Statistisches Jahrbuch des Deutsch-Israelitischen Gemeindebundes), 1895 33 (3,5 % von 950;
nach dem Statistischen Handbuch 1895 50 Gemeindeglieder in 10 Familien, davon 20
schulpflichtige Kinder), 1905
23 (2,6 % von 896), 1910 14 (1,5 % von 908).
Zur jüdischen Gemeinde Breuna
gehörten zuletzt auch die in den umliegenden Orten lebenden jüdischen Personen: in Niederelsungen
(1924 12, 1932 10; Angehörige der Familien Eichholz und Möllerich), Oberlistingen (1924 6,
1932 3), Wettesingen (1932 1).
Bis 1862 gab es auch eine eigene Synagoge in Niederelsungen, die in diesem Jahr
abgebrannt ist (siehe Bericht unten). Bis vor 1890 werden im Statistischen Handbuch des Deutsch-Israelitischen
Gemeindebundes die Gemeinden Niederelsungen und Oberlistingen noch als
selbständig aufgeführt, die Gemeinde Oberlistingen um 1878/1889 mit dem
Gemeindevorsteher J. Neuwahl. Ende des 19. Jahrhunderts wird im Statistischen
Handbuch des Deutsch-Israelitischen Gemeindebundes dann die Gemeinde "Oberlistingen-Wettesingen"
als selbständig aufgeführt (um 1894 sechs Familien unter Vorsitz von C. Rose; um
1897 27 Gemeindeglieder in sieben Familien von insgesamt 1463 Einwohnern
in sieben Familien). 1916 wurde die jüdische Gemeinde Oberlistingen aufgelöst
und der jüdischen Gemeinde Breuna zugeteilt (siehe Mitteilung unten).
Die
jüdischen Haushaltsvorsteher verdienten den Lebensunterhalt insbesondere durch
den Vieh- und Pferdehandel; viele hatten aber auch Landwirtschaft.
An Einrichtungen bestanden eine Synagoge (s.u.), eine jüdische Schule
(Religionsschule),
ein rituelles Bad und ein Friedhof. Zur
Besorgung religiöser Aufgaben der Gemeinde war im 19. Jahrhundert zeitweise ein
jüdischer Lehrer angestellt, der zugleich als Vorbeter und Schochet tätig war,
dann übernahmen auswärtige Lehrer diese Aufgaben.
So unterrichtete 1889 Lehrer Joseph Wertheim aus
Volkmarsen auch die jüdischen Kinder aus
Breuna und Oberlistingen mit Wettesingen. 1895 waren von Lehrer Wertheim in
Breuna 20 Kinder zu unterrichten.
Die Gemeinde gehörte innerhalb des damaligen Kreises Wolfhagen zum
Rabbinatsbezirk Niederhessen mit Sitz in Kassel.
An jüdischen Vereinen werden genannt: der Wohltätigkeits- und
Beerdigungsverein Chewra Kadischa (um 1889 unter Leitung von Joseph Braunsberg).
Von den Gemeindevorstehern werden genannt: in Breuna von ca. 1885
bis zu seinem Tod 1934 Baruch Hamberg.
Um 1889 hatten die jüdischen Familien in Oberlistingen noch einen eigenen Vorsteher
mit J. Neuwahl. Um 1892/1896 war Vorsteher der damals sieben in Oberlistingen
und Wettesingen lebenden jüdischen Familien C. Rose (in Wettesingen). Um 1901
war Gemeindevorsteher in Oberlistingen-Wettesingen (damals noch 15
Gemeindeglieder in 3 Haushaltungen, davon vier schulpflichtige Kinder) Berthold
Goldschmidt.
Im Ersten Weltkrieg fielen aus der jüdischen Gemeinde Leopold
Goldschmidt aus Oberlistingen (geb. 17.4.1895 in Oberlistingen, gef. 25.10.1916)
sowie Hermann Rosenbaum aus Wettesingen (geb. 1.8.1881 in Wettesingen, gef.
25.7.1918). Außerdem ist gefallen: Siegmund Hamburg (geb. 6.2.1876 in Breuna,
vor 1914 in Essen wohnhaft, gef. 3.5.1917).
Um 1924, als noch 18 jüdische Einwohner gezählt wurden (1,8 % von
insgesamt 1.002 Einwohnern), war Vorsteher der Gemeinde Baruch M. Hamberg (siehe
Bericht unten zu seinem 75. Geburtstag 1931). An
jüdischen Vereinen gab es den Wohltätigkeits- und Bestattungsverein Chewra
Kadischa (beziehungsweise Chevroth, gegründet 1869; 1924/32 unter
Leitung von Viktor Braunsberg mit 15/10 Mitgliedern; Ziele: Unterstützung
Hilfsbedürftiger). 1932 war Gemeindevorsteher weiterhin Baruch M. Hamberg (1.
Vors.; gestorben 1934, nachdem er insgesamt fast 50 Jahre Vorsteher der Gemeinde
war; Grab auf dem Friedhof).
1933 lebten noch 13 jüdische Personen in Breuna. In
den folgenden Jahren ist ein Teil der
jüdischen Gemeindeglieder auf Grund der Folgen des wirtschaftlichen Boykotts,
der zunehmenden Entrechtung und der
Repressalien weggezogen beziehungsweise ausgewandert.
Von den in Breuna geborenen und/oder
längere Zeit am Ort wohnhaften jüdischen Personen sind in der NS-Zeit
umgekommen (Angaben nach den Listen von Yad
Vashem, Jerusalem und den Angaben des "Gedenkbuches
- Opfer der Verfolgung der Juden unter der nationalsozialistischen
Gewaltherrschaft in Deutschland 1933-1945"): Emilie Braunsberg geb.
Stern (1892), Hermann Braunsberg (1888), Viktor Braunsberg (1887), Rosa Cohn
geb. Hamberg (1859), Fanny David geb. Hamberg (1894), Moritz Goldwein (1884; war
bis zur NS-Zeit Lehrer in Korbach, siehe
unten);
Betty Hamberg geb. Pulver (1897), Hermann Hamberg (1890), Minna Hamberg (1861),
Minna Hamberg geb. Braunsberg (1889), Moritz Hamberg (1886), Sally Hamberg
(1887), Susanne (Susi) Hamberg (1929), Julie Lichtmann geb. Hamberg (1882),
Henriette Meyer geb. Hamberg (1884), Johanna Münz geb. Hamberg
(1897).
| Erinnerung an Susanne
(Susi) Hamberg |
 |
 |
| |
Zum jüdischen Friedhof
führt der "Susanne-Hamberg-Weg". Text der Tafel: "Susanne
(Susi) Hamberg, 1929-1942. Einziges Breunaer Kind jüdischen Glaubens,
welches durch die Nationalsozialisten (Nazis) in das Konzentrationslager
(KZ) Majdanek/Lublin (Polen) deportiert wurde." |
Von den in Niederelsungen geborenen und/oder
längere Zeit am Ort wohnhaften jüdischen Personen sind umgekommen:
Bernhard Eichholz (1892), Isidor Eichholz (1890), Rosel Eichholz (1925), Ida
Katz geb. Möllerich (1888), Mathilde Katzenberg geb. Möllerich (1892), Minna
Löwenstein geb. Eichholz (1862), Minna Markus geb. Möllerich (1890), Max
Möllerich (1896), Moritz Möllerich (1886), Simon Möllerich (1853), Willi
Möllerich (1893).
Von den in Oberlistingen geborenen und/oder
längere Zeit am Ort wohnhaften jüdischen Personen sind umgekommen: Hedwig Johanna Cahn geb.
Ferse (1892), Hedwig Goldschmidt (1918), Jakob Goldschmidt (1921), Siegfried
Goldschmidt (1896), Gottfried Israel (1900), Hermann Israel (1896), Siegfried
Israel (1893), Jettchen Katz (1873), Rosalie Löwenstern
(1879).
Von den in Wettesingen geborenen und/oder
längere Zeit am Ort wohnhaften jüdischen Personen ist umgekommen: Malwine Rosenthal geb.
Rose (1885).
Berichte aus der Geschichte der jüdischen Gemeinde
Berichte aus dem jüdischen
Gemeindeleben
Die Synagoge in Niederelsungen ist
abgebrannt (1862)
Mitteilung
in "Jeschurun" vom Dezember 1862 S. 146: "Am 27. Oktober dieses Jahres ist
die kleine Synagogengemeinde Niederelsungen durch eine in Breuna,
dem Hauptorte derselben, ausgebrochene Feuersbrunst schwer
heimgesucht worden. Leider ist auch die Synagoge mit ihrem ganzen Inhalte,
darunter drei Torarollen (sifrei tora) ein Raub der
Flammen geworden. In ihrer Bedrängnis, und bei ihrer fast gänzlichen
Mittellosigkeit wendet sie sich an brüderlich gesinnte Glaubensgenossen mit
der dringenden Bitte, sie durch Schenkung einer Torarolle (sefer
tora) oder der Mittel dazu zur ferneren Haltung eines Gottesdienstes
in den Stand zu setzen und des Lohnes des Allgütigen gewärtig zu sein.
Die löbliche Redaktion des Jeschurun wird gerne darauf bezügliche Spenden in
Empfang nehmen und an die Gemeinde befördern." |
Auflösung der jüdischen Gemeinde
Oberlistingen (1916)
Mitteilung
in "Der Gemeindebote" vom 28. Juli 1916: "Die Synagogengemeinde in
Oberlistingen ist aufgelöst und dem Bezirke der Synagogengemeinde Breuna
zugeteilt worden" |
Berichte
zu einzelnen Personen aus der jüdischen Gemeinde
Erinnerung an Jakob Goldschmidt in
Oberlistingen (Bericht von 1915)
Anmerkung: der ganze Text mit den Erinnerungen von Bergingenieur Louis
Rosenthal findet sich auf der Seite zu
Niedermeiser und Liebenau.
Ausschnitt
aus einem Artikel in "Neue jüdische Presse" vom 16. Juni 1915: "Erinnerungen
aus den Tagen der Kindheit. Vom Bergingenieur L. Rosenthal (Basel)
"...Da ich doch einmal bei den grotesken Gestalten meiner Kindheit bin, kann
ich nicht umhin, auch des 'Schnobels' von Oberlistingen flüchtig zu erwähnen. Ob er so hieß, weil er durch die Nase
'schnubbelte' oder weil er eine ungeheure, rüsselartige Oberlippe hatte, die, wie der Schnabel eines Vogels, einem Gesicht vorausstrebte, mag dahingestellt bleiben. So viel ist gewiss, dass der
Jakob Goldschmidt, wie er eigentlich hieß, ein etwas beschränkter Herr war. Aber fleißig – sehr fleißig. Unermüdlich lief er von einem Dorfe nach dem anderen, kaufte Hippel- und Hafenfelle, Hedengarn, altes Eisen etc. Man erzählte von ihm, dass er einmal am frühen Morgen vor lauter Geschäftseifer seine Stiefel verkehrt angezogen habe, d.h. den rechten an den linken und den linken an den rechten Fuß. Im tiefen Schnee marschierte er so zwei Stunden über Westuffeln nach
Meimbressen, wo ihn sein Geschäftsfreund Katzenstein darauf aufmerksam machte, dass er ja die Stiefel verkehrt anhabe. Da ging ein Erleuchten über das feistem bartlose Gesicht des Schnobels, und in seiner unbehilflichen Sprechweise sagte er:
'Guck – s'is mer doch den ganzen Morgen so nerr'sch gewesen – ich wusst nor
nit warum'. " |
70. Geburtstag von
Gemeindevorsteher Baruch Hamberg (1931)
Vgl. genealogische Informationen: The Hamberg family from Breuna, originally
from Burgsinn
https://jinh.lima-city.de/gene/hamberg/The_Hamberg_Family_from_Breuna.html
Artikel
in "Jüdisch-liberale Zeitung" vom 24. Juni 1931: "Breuna. (Persönliches).
Der langjährige Vorsteher unserer Gemeinde, Herr B. Hamberg, beging
kürzlich in seltener körperlicher Rüstigkeit und geistiger Frische seinen
70. Geburtstag und wurde aus diesem Anlass von vielen Seiten geehrt. Seit 46
Jahren war der Jubilar Führer und Berater der Gemeinde, deren Interessen er
mit Geschick und Eifer vertrat. Bei seinem Scheiden aus dem Amt wurde ihm
durch den Landrat des Kreises Wolfhagen Dank und Anerkennung für sein
vorbildliches Wirken im Gemeindeinteresse ausgesprochen. " |
75. Geburtstag von Gemeindevorsteher Baruch Hamberg
(1931)
Artikel in der "Jüdischen Wochenzeitung für Kassel, Kurhessen und
Waldeck"
vom 29. Mai 1931: "Breuna. Ein beliebtes und
angesehenes Mitglied unserer Gemeinde, Herr Baruch Hamberg, begeht
am heutigen Freitag in seltener körperlicher Rüstigkeit und geistiger
Frische seinen 75. Geburtstag. 46 Jahre, also fast ein halbes Jahrhundert
hat der Jubilar mit Umsicht und Tatkraft die Geschicke der kleinen
Gemeinde als Vorsteher geleitet und durch seinen Gerechtigkeitssinn und
seine Friedensliebe der Allgemeinheit wertvolle Dienste geleistet. Darum
erfreut sich der nun an der Schwelle des biblischen Alters stehende
rüstige Greis über die Grenzen seines Heimatortes hinaus großer
Wertschätzung, die auch an dem seltenen Familienfeste sicher in
mancherlei Form zum Ausdruck kommen wird. Dass Herr Hamberg auch bei den
Behörden Dank und Anerkennung für seine dem jüdischen Gemeindeleben
gewidmete Arbeit gefunden hat, beweist ein in freundlichen Worten
abgefasstes Schreiben, das der Landrat des Kreises Wolfhagen dem Jubilar
anlässlich seines Scheidens aus dem Amte zugehen ließ. Wir wünschen dem
alten lebensfrohen Herrn, dem man seine 75 Jahre nicht anmerkt, noch viele
glückliche Jahre im Kreise der Familie. Ad meoh weesrim schenoh!
(Alles Gute bis 120 Jahre!)." |
Goldene Hochzeit von Mathias
Braunsberg und Helene geb. Katzenstein (1937)
Anmerkung: Helene Braunsberg starb 1939. Mathias Braunsberg starb 1940, doch
verwehrten die Nationalsozialisten ihm eine würdige Bestattung. Entgegen diesem
Verbot hat ihn der Breunaer Totengräber beigesetzt. Vgl.
Seite zum Friedhof Breuna (Foto des
Grabsteines). Genealogische Informationen auch
https://jinh.lima-city.de/gene/fam_meimbressen/Descendants_of_Salomon_Samuel_Goldwein_and_Hendel.htm.
Mitteilung
in der "CV-Zeitung" (Zeitschrift des "Central-Vereins" vom 4. November 1937:
"Matthias Braunsberg und Frau Helene geb. Katzenstein (Breuna
bei Kassel) feiern am 7. November ihre goldene Hochzeit." |
| |
Mitteilung
in "Jüdische Rundschau" vom 5. November 1937: "Familien-Nachrichten. Herr
Mathias Braunsberg und Frau Helene geb. Katzenstein, Breuna bei
Kassel, begehen am 7. November die goldene Hochzeit. " |
Über Lehrer Moritz Goldwein (1884 in Breuna - 1944 KZ
Auschwitz)
Anmerkung: Moritz Goldwein hielt den Gottesdienst zum 50-jährigen Bestehen
der Synagoge in Breuna im Dezember 1926 (siehe unten).
Moritz Goldwein ist am 16. Februar 1884 in
Breuna
geboren als Sohn von Markus Goldwein und Fannie geb. Herzfeld. Er war seit
dem 24. April 1914 (in Volkmarsen) verheiratet mit Rosa geb.
Schnellenberg, die am 7. Juli 1883 in Neheim (Westfalen) geboren ist
als Tochter von Isaak Schnellenberg und seiner Frau Helene geb. Steinberg.
Das Ehepaar hatte einen Sohn Manfred, der am 19. April 1924 in Bochum
geboren ist. Familie Goldwein war um 1924 Lehrer und Kantor der jüdischen
Gemeinde in Bochum, lebte bis 1930 in Wanne-Eickel. Seit 1930 war Moritz Goldwein Lehrer in der jüdischen Gemeinde
Korbach. Sohn
Manfred Goldwein konnte 1938 in die USA emigrieren (Delaware). Im Juli
1942 wurden Moritz und Rosalie Goldwein von Korbach nach Kassel und ab
Kassel über Chemnitz in das Ghetto Theresienstadt deportiert, am 9.
Oktober 1944 in das Vernichtungslager Auschwitz, wo beide ermordet wurden.
Sohn Manfred Goldwein starb am 29. Dezember 1999 in Philadelphia PA, USA
(war verheiratet mit Margaret geb. Sluizer; drei Kinder).
Ein Enkel von Manfred Goldwein (Urenkel von Moritz Goldwein) hatte 2003
seine Bar Mizwa und reiste aus diesem Anlass nach Deutschland. Heritage
Bar Mitzvah Tour of Germany.
Seite zu Moritz
und Rosalie Goldwein im Gedenkportal Korbach bzw. http://www.gedenkportal-korbach.de/11-20.html
vgl. Stammbaum
der Familie Goldwein
vgl. Seite
über Manfred Goldwein
Links: Gedenkblatt (Page of Testimony) in der Gedenkstätte Yad Vashem
Jerusalem. |
| |
Fotos von Lehrer
Moritz Goldwein und
seiner Rosa geb. Schnellenberg
( © Yad Vashem Jerusalem) |
 |
 |
Rechts: Geburtsanzeige
für
Sohn Manfred in der
"CV-Zeitung" vom 1. Mai 1924 |
 |
Kleine Mitteilungen zu einzelnen
Personen
- 1884: bei einer Spendensammlung "für
russische Flüchtlinge in Jerusalem" sammelt Lehrer J. Wertheim (Volkmarsen)
bei der Einweihung des Hauses von Benjamin Möllerich in Niederelsungen
3.33 M, und bei der Einweihung des Hauses von Moses Eichholz ebd.
1.65 M, sodass er abzüglich Porto 4.88 M. weiterleiten kann (Mitteilung
in "Der Israelit" vom 7. Juli 1884 S. 145).
- seit den 1880er-Jahren werden bei Spendensammlungen immer Angehörige
der Familie Möllerich in Niederelsungen als Spender genannt (Ergebnisse
in "Der Israelit" und anderswo) |
Anzeigen
Nach der Emigration: Hochzeitsanzeige von Walter
Goldschmidt (früher Oberlistingen) und Hilda geb. Weis (1944)
Anzeige in der Zeitschrift "Der Aufbau" vom 11. Februar 1944:
"Cpl. Walter Goldschmidt - Hilda Goldschmidt geb. Weis.
Vermählte.
Die Trauung findet statt in der Synagoge Congregat. Ahuvath Thora
2024 Amsterdam Av., zu. 160.-161. St. am Samstag, 12. Febr. 1944, 8.30
p.m.
Kennedy General Hospital Memphis, Tenn., U.S. Army (frueher
Oberlistingen Bez. Kassel) -
95 Thayer Street New York City (früher Gelnhausen)." |
Berichte zu
weiteren Personen/Familien aus der Gemeinde
Über die Familie Weinberg
Quelle: Arnsberg s.Lit. I S. 95; Delvaus Chronik von Frankfurt am
Main (pdf-Datei);
Salomon Weinberg war Anfang des 19.
Jahrhunderts Landwirt und Pferdehändler auf dem Gut
Escheberg.
Sein Sohn Bernhard Weinberg (geb. 1815 in Kassel, gest. 1877 in
Frankfurt) heiratete am 18. Juni 1858 in Frankfurt Pauline Gans (geb. 5.
November 1836 als Tochter von Ludwig Aron Gans und Rosette geb.
Goldschmidt). Ludwig Aron Gans war der Schwiegersohn einer Schwester des
aus Friedberg stammenden jüdischen
Kaufmanns Leopold Cassella. Dieser Leopold Cassella hatte 1798 in
Frankfurt eine "Handlung" eröffnet, die natürliche Farbstoffe
und Farbhölzer aus Indien, China und Südamerika importierte. Nach dem
Tod Cassellas 1847 führten Ludwig Gans und Bernhard Weinberg die Firma
Cassella weiter. 1870 wurde in Fechenheim bei Frankfurt die Frankfurter
Anilinfabrik gegründet. Maßgeblich war an der Gründung Dr. Leo Gans
beteiligt, der Sohn von Ludwig Gans. Mit der Gründung der Firma sollte
die Handelsfirma Cassella von den Farbproduzenten in Höchst und Biebrich
unabhängig machen.
Bernhard Weinberg hatte zwei Söhne: Arthur und Carl Weinberg
(beide 1908 durch Kaiser Wilhelm II geadelt: Arthur von Weinberg
[geb. 1860 in Frankfurt] und Carl von Weinberg [geb. 1861 in
Frankfurt]). 1882/83 traten Arthur und Carl Weinberg in die Firma
Leopold Cassella & Co. ein, die 1894 mit der Frankfurter
Anillinfabrik von Leo Gans zu den Cassella Farbwerken Mainkur AG fusionierte.
Die Firma stieg ein in die Teerfarbenproduktion und in die synthetische
Farbproduktion von Baumwollfarbstoffen und wurde bis um 1900 die weltweit
größte Produktionsstätte von Azolfarben (1900 neben 80 Chemikern, 170
Kaufleuten etwa 1800 Arbeiter). Arthur und Carl von Weinberg hatten
maßgeblichen Anteil an dem Aufbau der 1925 gegründeten IG
Farbenindustrie AG, in der die Firma Cassella aufgegangen ist.
Arthur war über viele Jahre ein bedeutender Mäzen und Stifter
wissenschaftlicher und kultureller Einrichtungen (1930 10. Ehrenbürger
der Stadt Frankfurt). In der NS-Zeit verlor er alle Funktionen und Ämter.
Er übersiedelte zu einer seiner Töchter nach Schloss Pähl am Ammersee
in Bayern, wo er am 2. Juni 1942 verhaftet und in das KZ Theresienstadt
verschleppt wurde. Hier ist er am 20. März 1943 umgekommen.
Weitere Informationen siehe Wikipedia-Artikel
zu Arthur von Weinberg und Seite
der Universität Frankfurt sowie Artikel
in der FAZ.
Auch Carl von Weinberg hatte große Bedeutung als Müzen und
Stifter. Als Dank für seine Stiftungen an die Universität Frankfurt
erhielt er 1927 die Ehrendoktorwürde. Auch politisch hatte er besondere
Bedeutung, u.a. 1919 als Mitglied der deutschen Delegation bei den
Versailler Friedensverhandlungen. Nach 1933 musste auch er alle Ämter und
Funktionen aufgeben. Er zog 1937 zu seiner Schwester ins Exil nach
Italien, wo er am 14. März 1943 starb. Weitere Informationen siehe u.a. Wikipedia-Artikel
zu Carl von Weinberg. |
Zur Geschichte der Synagoge
Zunächst war eine erste Synagoge beziehungsweise
ein Gebäude vorhanden, in dem vermutlich sowohl der Betraum wie auch die Schule
eingerichtet waren. 1867 wurden die Schuleinrichtungen der Israeliten im
Kreis Wolfhagen geprüft. Aus dem Bericht des Landbaumeisters Herrmann geht
hervor, dass das Schulzimmer in Größe und zweckmäßiger Einrichtung für die
Anzahl der Schüler ausreichend war. Das Schulzimmer befand sich nach dem
Bericht im zweiten Obergeschoss eines "aus Holz erbauten
Privathauses". Dabei ist war nicht die Rede von einer Synagoge, dennoch
kann sich in dem Gebäude - wie auch andernorts üblich - auch der Betraum
befunden haben.
Seit Sommer 1869 bemühte sich die jüdische Gemeinde um den Neubau
einer Synagoge. Man wollte zunächst ein großes Grundstück mit zwei darauf
bestehenden Fachwerkhäusern kaufen, um eines davon abbrechen und das andere
für eine Synagoge und einen Schulraum umzubauen. Der vom Kreisamt für ein
Gutachten beauftragte Baukommissar Hudernitz sprach sich jedoch gegen diesen
Plan aus. Er schlug einen Abbruch beider Gebäude und den Verkauf abgetragener
Baumaterialien vor, um auf dem großen "Gartenbauplatz" einen
Synagogenneubau errichten zu können. Die jüdische Gemeinde ging darauf ein und
kaufte das für den Synagogenbau vorgesehene Anwesen im November 1869 für
300 Thaler. An die Bauausführung konnte man - vermutlich aus finanziellen
Gründen - nicht gleich gehen.
Vier Jahre später (1873/74) kam es zu erneuten Verhandlung zwischen der
jüdischen Gemeinde und der Ortsgemeinde im Blick auf den Synagogen-Neubau.
Über einen neuen Plan wurde nachgedacht, nämlich auf einem Grundstück, dem
sogenannten "Reuterplatz" am Warburger Weg die Synagoge zu bauen. Die
jüdische Gemeinde hoffte, dass die Ortsgemeinde das in ihrem Besitz befindliche
Grundstück möglicherweise kostenlos zum Synagogenbau abgeben könnte.
Bürgermeister Raabe und der Gemeinderat von Breuna gingen auf den Vorschlag
jedoch nicht ein.
Im Oktober 1875 kaufte die jüdische Gemeinde - vertreten durch Marcus
Goldwein - ein Grundstück für die Errichtung einer neuen Synagoge zum Preis
von 600 Mark. Goldwein Im Februar 1876 war der Bauplatz im Eigentum der
Gemeinde. Im März konnte ein Vertrag mit Maurermeister Christoph Hohlmann
abgeschlossen werden. Er verpflichtete sich, das Gebäude
"schlüsselfertig" zu erstellen. Hohlmann ging zügig ans Werk. Noch
im selben Jahr (1876) konnte die Synagoge fertiggestellt und eingeweiht werden.
Die Kosten betrugen insgesamt 5.100 Mark, die durch Spenden, Kollekten und durch
einen Kredit bei der Sparkasse in Wolfhagen aufgebracht wurden. Die Rückzahlung
des aufgenommenen Kredites bedeutet noch eine längere finanzielle Belastung der
Gemeindeglieder.
Maurermeister Hohlmann erstellte zur Nutzung als Synagoge einen zweigeschossigen
verputzten Massivbau aus Bruchsteinmauerwerk mit einem steilen Satteldach
(möglicherweise ursprünglich beidseitige Krüppelwalmen). Der Bau ist 11,70
Meter lang und etwa 9 m breit. Die Rundbogenöffnungen (Fenster, Eingangstor)
haben Steinumrahmungen aus rotem Sandstein.
Vermutlich in den 1920er-Jahren (kurz vor der 1926 durchgeführten
50-jährigen Jubiläumsfeier) wurde das Gebäude umfassend renoviert. Die
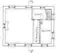
Inneneinrichtung wurde beim Umbau völlig verändert, auch die Gebetsrichtung
wurde um 90 Grad verändert von südöstlicher auf nordöstlicher Richtung
(siehe Zeichnung unten). Eine neue Frauenempore wurde eingezogen. Vor der
Renovierung hatte es 36 Plätze für Männer, 12 für Frauen, nach der
Renovierung 50 beziehungsweise 20 Plätze. Beim 50-jährigen Jubiläum der
Synagoge hielt der aus Breuna stammende Lehrer Goldwein (Lehrer in Bochum) die Festpredigt; gleichzeitig wurde eine
Gedenktafel für die Gefallenen des Ersten Weltkrieges
eingeweiht.
Feier zum 50-jährigen Bestehen der
Synagoge (1926)
Artikel
in "Der Israelit" vom 16. Dezember 1926: "Breuna (Kreis Wolfhagen),
7. Dezember. Unsere Gemeinde beging am Schabbat die Feier ihres
50-jährigen Bestehens (sc. gemeint: der Synagoge). Der
Feier wohnten die Mitglieder aus Breuna, Oberlistingen und Wettesingen bei.
Ein Breunaer Kind, Lehrer Goldwein, erfreute uns durch schönen
Gottesdienst und sinnreiche Predigt. Gleichzeitig weihte er die den zwei im
Weltkrieg Gefallenen der Gemeinde errichtete Gedenktafel ein." |
| |
Artikel
in "Jüdisch-liberale Zeitung" vom 26. November 1926: "Breuna (Hessen).
(50 Jahrfeier der Synagoge.) Die hiesige kleine Gemeinde, die das Los
aller Landgemeinden teilt, auf eine bescheidene Anzahl ihrer früheren
Mitglieder zusammengeschrumpft zu sein, zumal auch die Nachbarorte
Oberlistingen und Wettesingen nur noch ein oder zwei jüdische Familien
zählen, beging dieser Tage in bescheidenen, schlichtem Rahmen die Feier des
50-jährigen Bestehens ihrer Synagoge, mit der auch die Enthüllung einer
Gedenktafel für die aus den genannten Orten gefallenen jüdischen Krieger
verbunden war. Der aus der Gemeinde hervorgegangene Kantor M. Goldwein,
Bochum, hielt eine dem Charakter des Tages angepasste Festrede, die auf
alle Teilnehmer der Feier einen tiefen Eindruck machte." |
Im August 1938 wurde die Synagoge von
der jüdischen Gemeinde verkauft. Dennoch ist das Gebäude beim Novemberpogrom 1938
durch SA-Leute angezündet worden, wodurch die Inneneinrichtung und das Dach
vernichtet wurden. Dennoch blieb das Gebäude insgesamt erhalten und wurde 1939
in eine Scheune umgebaut. Das ursprünglich Aussehen veränderte sich durch neu
eingebrochene Fenster, Türen und Tore. Auch in der Folgezeit (Besitzerwechsel
um 1980) wurde immer wieder an dem Gebäude gebaut. Ende der 1980er-Jahre befand
sich in der ehemaligen Synagoge eine Garage auf der linken und ein Kaninchenstall mit Boxen bis zur Decke auf der rechten Seite.
Im November 1988 wurde eine Gedenktafel an der ehemaligen
Synagoge angebracht.
1991 wurden die Kaninchen-Boxen aus der ehemaligen Synagoge entfernt.
Offenbar war vom Besitzer der Umbau in ein Wohnhaus geplant, zu dem es jedoch
nicht gekommen ist.
Adresse/Standort der Synagoge: Lange
Straße
Fotos
Links und Literatur
Links:
Quellen:
| Hinweis
auf online einsehbare Familienregister der jüdischen Gemeinde Breuna mit
Niederelsungen, Oberlistingen und Wettesingen |
In der Website des Hessischen Hauptstaatsarchivs
(innerhalb Arcinsys Hessen) sind die erhaltenen Familienregister aus
hessischen jüdischen Gemeinden einsehbar:
Link zur Übersicht (nach Ortsalphabet) https://arcinsys.hessen.de/arcinsys/llist?nodeid=g186590&page=1&reload=true&sorting=41
Zu Breuna sind vorhanden (auf der jeweiligen Unterseite zur
Einsichtnahme weiter über "Digitalisate anzeigen"):
HHStAW 365,96 Verzeichnis aller Familienväter und ihrer
Söhne aus der Synagogengemeinde Breuna 1807 - 1832:
Verzeichnis der Väter und Söhne mit Angaben zum Gewerbestand und den
Geburtsdaten der Söhne; enthält auch Escheberg und Niederelsungen
https://arcinsys.hessen.de/arcinsys/detailAction?detailid=v2379123
HHStAW 365,97 Gräberverzeichnis des jüdischen
Friedhofs der Synagogengemeinde in Breuna, aufgenommen im Juli 1938
von Baruch Wormser aus Grebenstein
1819 - 1934; enthält einen Bericht zur Geschichte des jüdischen
Friedhofs in Breuna mit Situationsplan, Verzeichnis aller Gräber, auch
derjenigen ohne Grabstein, nach Angaben des Gemeindeältesten Hamberg in
Breuna, hebräische und deutsche Inschriften mit Angaben zu Standort und
Erhaltungszustand der Grabsteine; enthält auch Gräber von Personen aus Niederelsungen,
Oberlistingen und Wettesingen, darin auch eine Planskizze zur
Belegung der Gräberfelder https://arcinsys.hessen.de/arcinsys/detailAction?detailid=v1030572
HHStAW 365,94 Sterberegister der Juden von
Breuna 1826 - 1852 enthält auch Niederelsungen https://arcinsys.hessen.de/arcinsys/detailAction?detailid=v2719768
HHStAW 365,89 Geburtsregister der Juden von
Breuna 1828 - 1852 enthält auch Niederelsungen https://arcinsys.hessen.de/arcinsys/detailAction?detailid=v3031373
HHStAW 365,90 Geburtsregister der Juden von
Breuna 1828 - 1852 enthält auch Niederelsungen https://arcinsys.hessen.de/arcinsys/detailAction?detailid=v1245102
HHStAW 365,92 Trauregister der Juden von Breuna
1833 - 1851 enthält auch Niederelsungen https://arcinsys.hessen.de/arcinsys/detailAction?detailid=v3553147
HHStAW 365,95 Sterberegister der Juden von Breuna
1853 - 1877 enthält auch Niederelsungen https://arcinsys.hessen.de/arcinsys/detailAction?detailid=v825427
HHStAW 365,93 Trauregister der Juden von Breuna
1854 - 1874 https://arcinsys.hessen.de/arcinsys/detailAction?detailid=v2126645
HHStAW 365,91 Geburtsregister der Juden von Breuna
1866 - 1878 enthält auch Niederelsungen https://arcinsys.hessen.de/arcinsys/detailAction?detailid=v1230084
|
| |
Zu Oberlistingen mit Wettesingen sind vorhanden (auf der jeweiligen Unterseite zur
Einsichtnahme weiter über "Digitalisate anzeigen"):
HHStAW 365,668 Geburtsregister der Juden von
Oberlistingen 1826 - 1852: darin auch Auszüge aus
Gemeinderechnungen um 1883 - 1885; Statuten eines jüdischen Vereins zur
Pflege des rleigiösen Lebens in Oberlistingen, o.D.; enthält auch
Angaben zu Personen aus Wettesingen https://arcinsys.hessen.de/arcinsys/detailAction?detailid=v4971262
HHStAW 365,673 Abschrift der Geburts-, Trau- und
Sterberegister der Juden von Oberlistingen 1826 - 1890 (erstellt
1937): jüdisches Geburtsregister 1826 - 1885, jüdisches Trauregister
1828 - 1886, jüdisches Sterberegister 1827 - 1890; enthält auch Angaben
zu Personen aus Wettesingen https://arcinsys.hessen.de/arcinsys/detailAction?detailid=v3732265
HHStAW 365,671 Sterberegister der Juden von
Oberlistingen 1827 - 1852, enthält auch Angaben zu
Personen aus Wettesingen https://arcinsys.hessen.de/arcinsys/detailAction?detailid=v3732265
HHStAW 365,669 Trauregister der Juden von Oberlistingen
1828 - 1851, enthält auch Angaben zu Personen aus Wettesingen https://arcinsys.hessen.de/arcinsys/detailAction?detailid=v2924724
HHStAW 365,670 Trauregister der Juden von Oberlistingen
1853 - 1886, enthält auch Angaben zu Personen aus Wettesingen https://arcinsys.hessen.de/arcinsys/detailAction?detailid=v1245116
HHStAW 365,672 Sterberegister der Juden von
Oberlistingen 1853 - 1890, enthält auch Angaben zu Personen aus
Wettesingen https://arcinsys.hessen.de/arcinsys/detailAction?detailid=v2126662 |
Literatur:
 | Umfassende Literaturhinweise siehe bei Michael
Dorhs [Zsst.]: Bibliographie zur Kultur und Sozialgeschichte der
Jüdinnen und Juden im Bereich der alten Landkreise Hofgeismar, Kassel,
Wolfhagen und in der Stadt Kassel. Ausführliche Zusammenstellung. 208 S.
Eingestellt als pdf-Datei (Stand
30. Dezember 2024). |
 | Paul Arnsberg: Die jüdischen Gemeinden in Hessen. Anfang -
Untergang - Neubeginn. 1971. Bd. I S. 94-95 (zu Breuna), Bd. II S.
364-365 (zu Wettesingen). |
 | Kein Artikel zu Breuna bei Thea Altaras: Synagogen in Hessen. Was geschah seit
1945? 1988. |
 | Ausführliche Beschreibungen und Rekonstruktionen in dies.: Das jüdische Rituelle Tauchbad und: Synagogen in
Hessen. Was geschah seit 1945 Teil II. 1994. S. 42-44.162. |
 | Studienkreis Deutscher Widerstand (Hg.):
Heimatgeschichtlicher Wegweiser zu Stätten des Widerstandes und der
Verfolgung 1933-1945. Hessen II Regierungsbezirke Gießen und Kassel. 1995 S.
72. |
 | Pinkas Hakehillot: Encyclopedia of Jewish
Communities from their foundation till after the Holocaust. Germany Volume
III: Hesse - Hesse-Nassau - Frankfurt. Hg. von Yad Vashem 1992
(hebräisch) S. 403-404. |

Article from "The Encyclopedia of Jewish life Before and During the
Holocaust".
First published in 2001 by NEW
YORK UNIVERSITY PRESS; Copyright © 2001 by Yad
Vashem Jerusalem, Israel.
Breuna
Hesse-Nassau. Jews lived there from the mid-18th century, hat a regional
synagogue (1876), and numbered 43 (4 % of the total) in 1861. Only 17 Jews
remained by September 1937; the last six were deported in 1942.

vorherige Synagoge zur ersten Synagoge nächste Synagoge
|