|
Eingangsseite
Aktuelle Informationen
Jahrestagungen von Alemannia
Judaica
Die Mitglieder der Arbeitsgemeinschaft
Jüdische Friedhöfe
(Frühere und
bestehende) Synagogen
Übersicht:
Jüdische Kulturdenkmale in der Region
Bestehende
jüdische Gemeinden in der Region
Jüdische
Museen
FORSCHUNGS-
PROJEKTE
Literatur
und Presseartikel
Adressliste
Digitale
Postkarten
Links
| |
zurück zur Übersicht "Synagogen in der Region"
zurück zur Übersicht "Synagogen in Hessen"
Zur Übersicht
"Synagogen im Kreis Groß-Gerau"
Wolfskehlen mit
Goddelau
(Stadt
Riedstadt, Kreis Groß-Gerau)
Jüdische Geschichte / Synagoge
Zur Geschichte der jüdischen Gemeinde (english
version)
In Wolfskehlen
und Goddelau bestand eine für beide Orte gemeinsame jüdische Gemeinde mit
Synagoge in Wolfskehlen bis 1939/40. Ihre Entstehung geht mindestens in die
Zeit des 18. Jahrhunderts zurück.
Seit der zweiten Hälfte des 17. Jahrhunderts lebte in Darmstadt die durch
mehrere Vertreter der Familie bekannte Familie Wolfskehl, die sich nach
ihrem Herkunftsort Wolfskehlen nannte (siehe unten). Daher ist eine jüdischen
Ansiedlung in Wolfskehlen bereits für die erste Hälfte des 17. Jahrhunderts
anzunehmen, vermutet werden erste jüdische Ansiedlungen in Wolfskehlen bereits
im Mittelalter. Die erste urkundliche Erwähnung der "Judenschaft zu
Wolfskehlen" stammt aus dem Jahr 1686.
1725 lebten drei jüdische Familien in Wolfskehlen.
Die Zahl der jüdischen Einwohner entwickelte sich im 19. Jahrhundert wie
folgt: in Wolfskehlen 1802 fünf Familien, 1828 34 jüdische
Einwohner, 1900 23, 1907 21 (1,8 % von 1.130), in Goddelau 1828 32 jüdische
Einwohner, 1861 63 (5,4 % von insgesamt 1.164 Einwohnern), 1880 47 (3,5 % von
1.329), 1900 59 (2,8 % von 2.112), 1905 54 (2,2 % von 2.482 Einwohnern), 1910 50
(1,9 % von 2.629). Bis 1877 gehörten auch die in Erfelden lebenden jüdischen
Personen zur Gemeinde Goddelau - Wolfskehlen.
An Einrichtungen bestanden eine Synagoge in Wolfskehlen (s.u.), eine
Religionsschule und ein rituelles Bad. Letzteres wurde nach 1847 neu erbaut. Zur
Besorgung religiöser Aufgaben der Gemeinde war ein Lehrer angestellt,
der zugleich als Vorbeter und Schochet tätig war (vgl. Ausschreibungen der
Stelle unten). Die Gemeinde gehörte zum orthodoxen Rabbinatsbezirk Darmstadt
II. Die Toten der Gemeinde wurden auf dem jüdischen Friedhof
in Groß-Gerau beigesetzt.
Im Ersten Weltkrieg fiel aus der jüdischen Gemeinde Rudolf Montag
(Goddelau; geb. 7.3.1883 in Goddelau, gef. 27.11.1914).
Im Philippshospital in Goddelau (psychiatrisches Krankenhaus, heute: Zentrum
für soziale Psychiatrie Philippshospital, Riedstadt) waren auch jüdische
Patienten untergebracht.
Um 1924, als der Israelitischen Gemeinde Goddelau-Wolfskehlen noch
13 Personen in vier Familien in Wolfskehlen und 17 Personen in Goddelau angehörten,
war ihr Vorsteher A. Oppenheimer. In Goddelau lebten die Familien
Schellenberg, Montag und Wreschner, die Haushaltsvorstände waren Kaufleute. In Wolfskehlen
wohnten die Familien Lachenbruch (Metzgerei und Viehhandel) und Lichtenstein,
Abraham Oppenheimer (Textilhandel), Ferdinand Jakob (Landesproduktenhandel),
Moses Eisenberger (Fruchthandel) und die Geschwister Hanna und Kätchen Neustätter
(Hausierhandel); Julius (Isaak) Veit war bei Opel tätig. Zwei Kinder aus der
Gemeinde erhielten Religionsunterricht durch den jüdischen Lehrer W. Bergen aus
Crumstadt. 1932
lebten fünf Familien in Goddelau (Eisenwarenhändler Max Bruchfeld, Eisenhändler
Adolf Schellenberg, Textilkaufmann Leopold Schellenberg, Arbeiter bei Opel
Julius (Isaak) Veit , drei Familien in Wolfskehlen. Gemeindevorsteher war
inzwischen Adolf Schellenberg. Religionsunterricht erhielten vier jüdische
Kinder.
1933 lebten noch 9 jüdische Personen in Wolfskehlen, die in den folgenden Jahren auf Grund der zunehmenden Entrechtung und der
Repressalien weggezogen beziehungsweise ausgewandert sind. Aus Goddelau emigrierte
die Familie Schellenberg über Frankfurt in die USA (1936/38), Angehörige der
Familie Wreschner nach Palästina beziehungsweise Israel. Beim Novemberpogrom
1938 wurde von SA-Leuten die Synagoge geschändet und demoliert. Anschließend
wurden die Wohnungen der noch in Wolfskehlen und Goddelau lebenden jüdischen
Familien überfallen und verwüstet. Insbesondere traf es das Kaufhaus von
Leopold Schellenberg (Hospitalstr. 15), das geplündert wurde. Im November 1939
lebten in Wolfskehlen noch 7 jüdische Personen, im Dezember 1940 noch fünf, die
vermutlich alle deportiert wurden. Goddelau war im November 1940 in
der NS-Sprache "judenfrei".
Von den in Wolfskehlen geborenen und/oder
längere Zeit am Ort wohnhaften jüdischen Personen sind in der NS-Zeit
umgekommen (Angaben nach den Listen von Yad
Vashem, Jerusalem und den Angaben des "Gedenkbuches
- Opfer der Verfolgung der Juden unter der nationalsozialistischen
Gewaltherrschaft in Deutschland 1933-1945", ergänzt durch Angaben bei Schleindl s.Lit. S. 263): Alice
Jakob (1917), Ferdinand Jakob (1881), Helene Jakob (1915), Johanna (Ida) Jacob geb.
Neustädter (1884), Paul Lachenbruch (1905), Elisabeth (Settchen) Lazarus geb.
Lachenbruch (1864), Herbert
Lichtenstein (1932), Kurt Lichtenstein (1929), Lina Lichtenstein geb.
Lachenbruch (1899), Moritz Lichtenstein (1894), Adolf Neustädter (1868),
Karoline Neustädter (1872), Pauline Neustädter (1864), Babette (Rosa)
Oppenheimer (1883), Simon Oppenheimer (1880), Recha Rosenkranz geb. Regenstein
(1877), Babette Samuelsohn geb. Lachenbruch (1866), Anna Stern geb. Neustädter
(1875; für sie wurde 2012 in Malsch KA
ein "Stolperstein" verlegt).
In Wolfskehlen wurden bis 2017 elf "Stolpersteine" zum Gedenken an
Opfer der NS-Zeit verlegt.
Von den in Goddelau geborenen und/oder
längere Zeit am Ort wohnhaften jüdischen Personen sind in der NS-Zeit
umgekommen (Angaben nach den Listen von Yad
Vashem, Jerusalem und den Angaben des "Gedenkbuches
- Opfer der Verfolgung der Juden unter der nationalsozialistischen
Gewaltherrschaft in Deutschland 1933-1945", ergänzt durch Angaben bei Schleindl s.Lit. S. 249): Adolf Abraham (1889),
Johanna Abraham (1883), Clothilde Amram geb. Rotschild (1859), Max Fuld (1874), Alfred
Kramer (1898), Klara Schellenberg geb.
Fuld (1882), Leopold Schellenberg (1884), (Adolf) Manfred Schellenberg (1873), Arnold
Tannenbaum (1928), Bertha Veit geb. Amram (1894), Erika Veit (1911), Julius
(Isaak) Veit (1884), Emma Wreschner geb. Montag (1875), Ludwig Wreschner (1883).
In Goddelau wurden bis 2017 22 "Stolpersteine" zum Gedenken an
Opfer der NS-Zeit verlegt.
Unter dem - allein im Jahr 1941 mindestens 596 - Kranken des Philippshospitals,
die in den Gaskammern von Hadamar ermordet wurden, waren auch jüdische
Patientinnen und Patienten, u.a. Bruno Baum (1883), Emma Bodenheim (1892),
Amalie Goldschmidt geb. Marx (1865), Max Gutmann (1899), Erna Hirsch (1910),
Luitpold Kahn (1894), Isaak Kamm (1881), Alfred Kramer (1898), Minna Lehmann
(1902), Ferdinand Lorsch (1909), Rosa Nathan (1890), Ernst Oppenheimer (1890),
Hugo Oppenheimer (1891), Emilie Reiss (1900), Berta Schmidt (1884), Rebecka
Schwan geb. Lindheimer (1872), Moritz Sichel (1887), Isaak Strauß (1868), David
Sußmann (1889), Arnold Tannenbaum (1928).
Berichte aus der Geschichte der jüdischen Gemeinde
Aus der Geschichte der
jüdischen Lehrer
Ausschreibungen der Stelle des Religionslehrers / Vorbeters / Schochet 1869 -
1879
Anmerkung: innerhalb weniger Jahre wurde die Stelle unter dem
Vorsteher M. Oppenheimer mindestens 10
mal ausgeschrieben - die Gemeinde hatte damals kein Glück, was eine kontinuierliche
Besetzung der Stelle betraf.
Anzeige
in der Zeitschrift "Der Israelit" vom 18. August 1869: "Vakante
Lehrerstelle. Die hiesige israelitische Gemeinde sucht einen
Religionslehrer, Vorbeter und Schächter (auch kann die Stelle ohne
Schächterdienst vergeben werden). Der jährliche Gehalt mit
Nebeneinkünften beträgt ungefähr 200 Thaler sowie freie Wohnung.
Bewerber wollen sich baldigst melden beim Vorstande.
Wolfskehlen bei Darmstadt, im August 1869. M. Oppenheimer." |
|
|
Anzeige in
der Zeitschrift "Der Israelit" vom 27. Juli 1870: "Vakante
Lehrerstelle. Die in der hiesigen israelitischen Religionsgemeinde in
Erledigung kommende Religionslehrer- Schochet- Chasan-Stelle (auch kann
dieselbe ohne Schechita, Schächteramt vergeben werden) soll bis Mitte
September dieses Jahres wieder mit einem tüchtigen Manne besetzt werden.
Der Gehalt beträgt 300 Gulden und wird bemerkt, dass die
Nebenverdienste nicht unbedeutend sind. Reflektierende wollen ihre
Anmeldung unter Beilage ihrer Zeugnisse an Unterzeichneten machen.
Wolfskehlen an der Riedbahn, im Juli 1870.
Der Vorstand. M.
Oppenheimer". |
| |
Anzeige in der Zeitschrift "Der Israelit" vom 6. März 1872:
"In Wolfskehlen bei Darmstadt ist die Schochet-, Chasan (Vorbeter-)
und Religionslehrerstelle sofort zu besetzen. Der fixe Gehalt beträgt
jährlich 280 Gulden. Nebeneinkünfte circa 40 Gulden, die Funktion als
Schochet circa 60 Gulden (auch wird dieselbe ohne Schechita vergeben).
Bewerber wollen ihre Zeugnisse einsenden an M. Oppenheimer,
Vorstand." |
| |
Anzeige in
der Zeitschrift "Der Israelit" vom 19. Juni 1872: "Vakante
Lehrerstelle. In Wolfskehlen bei Darmstadt ist die Chasan- und
Religionslehrerstelle sofort zu
besetzen.
Der fixe Gehalt beträgt jährlich 300 Gulden, Nebeneinkünfte ca. 40
Gulden. Bewerber wollen ihre Zeugnisse einsenden an M. Oppenheimer,
Vorstand." |
| |
Anzeige in
der Zeitschrift "Der Israelit" vom 10. November 1875: "In der
israelitischen Gemeinde Wolfskehlen bei Darmstadt ist die Schochet,
Chasan- und Religionslehrerstelle sofort zu besetzen. Gehalt 420 Mark
fixe, circa 70 Mark Nebeneinkünfte und circa 200 Mark Schächtergebühren.
Die Stelle kann auch ohne Schächterfunktion vergeben werden.
Im November 1875. Oppenheimer, Vorsteher." |
| |
Anzeige
in der Zeitschrift "Der Israelit" vom 24. Februar 1875:
"In der israelitischen Gemeinde Wolfskehlen wird bis 1. April
laufenden Jahres ein Religionslehrer, Vorsänger und Schächter gesucht.
Gehalt 280 Gulden fix, 40 Gulden Nebeneinkünfte, ca. 80 Gulden für
Schächtergebühren. Die Stelle kann auch ohne Schächterfunktion vergeben
werden. Im Januar 1875. Oppenheimer, Vorsteher"
|
| |
Anzeige in
der Zeitschrift "Der Israelit" vom 17. Mai 1876: "Ein
Vorbeter und Religionslehrer (unverheiratet) wird gesucht in der
israelitischen Gemeinde Wolfskehlen bei Darmstadt. Gehalt 600 Mark fix und
ca. 60 Mark Nebeneinkünfte. Bewerber wollen ihre Zeugnisse baldigst
einsenden.
Wolfskehlen, im Mai 1876. Oppenheimer, Vorsteher." |
| |
Anzeige in
der Zeitschrift "Der Israelit" vom 12. September 1877: "Die
hiesige Religionslehrer- und Vorbeterstelle ist bis 1. November dieses
Jahres vakant. Gehalt 650 Mark, Nebeneinkünfte nicht unbedeutend.
Privatunterricht steht auch in Aussicht. Nur unverheiratete Person wird
erwünscht. Bewerber wollen ihre Zeugnisse baldigst einsehenden.
Wolfskehlen bei Darmstadt, im August 1877. Oppenheimer, Vorsteher." |
| |
Anzeige in
der Zeitschrift "Der Israelit" vom 14. November 1877: "Ein
unverheirateter Vorsänger und Religionslehrer, der gründlichen hebräischen
Unterricht erteilen kann, wird sofort gesucht. Gehalt 700 Mark mit
entsprechenden Nebeneinkünften. Wolfskehlen bei Darmstadt, im November
1877. Vorsteher Oppenheimer". |
| |
Anzeige in
der Zeitschrift "Der Israelit" vom 5. Juni 1878: "Ein Vorsänger
und Religionslehrer (unverheiratet) wird sofort oder bis 1. Juli gesucht.
Gehalt nebst freier Wohnung 700 Mark mit entsprechenden Nebeneinkünften.
Wolfskehlen bei Darmstadt an der Riedbahn, im Mai 1878. Der israelitische
Gemeindevorstand." |
| |
Anzeige
in der Zeitschrift "Der Israelit" vom 29. Mai 1878:
"Ein Vorsänger und Religionslehrer (unverheiratet) wird sofort oder
bis 1. Juli gesucht. Gehalt nebst freier Wohnung 700 Mark mit
entsprechenden Nebeneinkünften. Wolfskehlen bei Darmstadt, an der
Riedbahn, im Mai 1878. Der israelitische Gemeindevorstand." |
| |
Anzeige in
der Zeitschrift "Der Israelit" vom 30. April 1879: "Die
Stelle eines Religionslehrers und Vorbeters für die hiesige Gemeinde ist
mit einem jährlichen Gehalt von 600 Mark nebst Nebeneinkünften und
freier Wohnung zum 1. Juni zu besetzen (ledige Personen werden bevorzugt).
Russen und Polen werden nicht berücksichtigt. Wolfskehlen bei Darmstadt,
an der Riedbahn, im April 1879. Der Vorsteher Oppenheimer." |
Berichte aus dem
jüdischen Gemeindeleben
Die Gemeinden Wolfskehlen, Goddelau und Erfelden
schaffen gemeinsam einen Leichenwagen an und weihen diesen zur zur Beisetzung
von Salomon Montag aus Goddelau ein (1885)
Artikel in der "Allgemeinen Zeitung des Judentums"
vom 13. Januar 1885: "Darmstadt, im Dezember (1885). Es
ist als eine recht erfreuliche Tatsache zu verzeichnen, dass selbst in
kleinen jüdischen Landgemeinden, wo man noch den überlieferten Satzungen
und Bräuchen mit gewissenhafter Treue anhangt, man in jüngster Zeit
bestrebt ist, manchem heiligen Brauche die veraltete Missgestalt
abzunehmen, ihn in ein modernes Gewand zu kleinen und auf diese Weise dem
Sinne für Anstand und Schicklichkeit Rechnung zu tragen. Ein Beispiel
hierzu lieferten dieser Tage die kleinen jüdischen Gemeinden Wolfskehlen,
Goddelau und Erfelden. In der
Provinz Starkenburg bestehen nämlich ungefähr 5 bis 6 israelitische
Friedhofsverbände, von welchen an manchem 10 bis 15 oder gar noch mehr
Landgemeinden partizipieren, und von diesen liegen die meisten stundenweit
von dem gemeinschaftlichen Begräbnisplatze entfernt. Tritt in einer
solchen Gemeinde ein Todesfall ein, so wird der Verstorbene, nachdem sein
Tod vom Arzte konstatiert und die Erlaubnis, ihn zu begraben, erteilt
worden ist, in einen Sarg (Oron) gelegt, dieser auf einen Wagen geladen
und unter Begleitung der Verwandten, Freunde, Glaubensgenossen etc. bis
zum Begräbnisplatze gefahren und daselbst begraben. Dieser Wagen besteht
gewöhnlich in einem sogenannten Leiterwagen, manchmal aber auch in einem
Mistwagen. Eine Leiche, auf einen solchen Wagen gesellt, bietet wahrlich
einen ganz widerlichen Anblick dar, der noch vergrößert wird, wenn
dieselbe stundenlang im Regenwetter transportiert wird. Da haben sich denn
jüngstens die oben erwähnten 3 Gemeinden, deren gemeinschaftlicher
Begräbnisplatz bei dem Kreisstädtchen Groß Gerau liegt,
zusammengeschart, aus eigenen Mitteln die erforderliche Summe Geldes
aufgebracht, und mit dieser einen bedeckten, mit schwarzem Tuche
überzogenen Totenwagen sowie auch einen schwarzen Anzug für den Fuhrmann
angekauft. Herr M. Sternfels aus Erfelden
bewilligte überdies 2 schwarze Decken für die Pferde. Und am Sonntag,
den 21. dieses Monats wurde der erste Tote, Salomon Montag aus Goddelau,
in dieser modernen Bestattungsart zu Grabe gebracht. Sowohl seitens der
Juden wie der Christen wurde diese Neuerung mit Beifall aufgenommen, und
bereitet den dortigen Israeliten desto mehr Ehre, als, wie man hört, die
meisten nicht zu den Reichen gezählt werden können, aber sich dennoch
bereit fanden, dem Fortschritt dieses Geldopfer zu bringen. - Es gibt
allerdings noch viele Orthodoxe, die in solcher Neuerung eine Nachahmung
fremder Sitten erblicken und sie daher für unerlaubt halten. Aber
möchten sie doch des Ausspruches des Talmuds eingedenk sein, dass die
Israeliten zwar die fremden törichten Sitten meiden, dagegen die
vernünftigen und löblichen nachahmen sollen. Und man wird doch
wahrlich die Sitte, die Totenbestattung in einer schönen anständigen
Form zu verrichten und dadurch ihr Ansehen und ihre Wertschätzung zu
erhöhen, zu den löblichen rechnen müssen.
Am Grabe des verstorbenen Salomon Montag hielt Rabbiner Dr. Landsberger
eine ergreifende Rede; während des Leichenzuges läuteten die Glocken der
Kirche." |
Berichte zu einzelnen Personen aus der Gemeinde
Zum 95. Geburtstag der aus Wolfskehlen stammenden Henriette Moses geb. Simon
1928
Artikel
im "Gemeindeblatt der Frankfurter Israelitischen Gemeinde vom Januar
1928 S. 154: "Eine Fünfundneunzigjährige. Am 1. Januar
dieses Jahres beging Frau Ludwig Moses Wwe., Henriette geb. Simon ihren
95. Geburtstag. Die Jubilarin erfreut sich in geistiger und körperlicher
Beziehung einer erstaunlichen Frische. Sie ist in Wolfskehlen bei
Darmstadt als zweijüngstes Kind von sieben Kindern geboren und von
diesen, die sämtlich hoch betagt gestorben sind, die einzig Überlebende.
Von einfachen Eltern in Anspruchslosigkeit, aber in Frömmigkeit und
Gottvertrauen erzogen, hat sie hartes Geschick geduldig ertragen. In
Bingen, wohin sie sich verheiratete, verlor sie nach sechsjähriger
glücklichster Ehe ihren Mann im Jahre 1866, und es oblag ihr, das von
diesem betriebene Eisengeschäft weiterzuführen. Der tatkräftigen Frau
genügte dies jedoch nicht, und sie gründete ein
Grundstücksverkaufsgeschäft, dem sie viele Jahre in außerordentlich
erfolgreiches Weise vorstand. Im Jahre 122 verließ sie ihren Wohnsitz in
Bingen, um zu ihrem Sohne nach Frankfurt am Main überzusiedeln, doch
genießt sie heute noch in ihrer Heimat allgemeines Ansehen. Frau Moses
hat im Laufe ihres langen Lebens nicht nur für ihre Familie, sondern auch
für Fernstehende in aufopfernder Weise gesorgt; für sich hatte sie keine
Wünsche. Die Jubilarin verfolgt mit seltener Teilnahme die Ereignisse des
Tages, liest ihre Zeitung, macht Handarbeiten und betätigt sich noch im
Haushalt ihres Sohnes. Möge der rüstigen Greisin, die wohl die älteste
Frau unserer Gemeinde ist, ein langer und gesegneter Lebensabend
beschieden sein!" |
Zu Familie
Wolfskehl, die sich in Darmstadt nach ihrem
Herkunftsort Wolfskehlen nannte
(nach dem Artikel
"Wolfskehl" bei wikipedia.
Ursprünge der Familie gehen auf
mittelalterliche Zeiten zurück. Der Schriftsteller Karl Wolfskehl wies
eine verwandtschaftliche Beziehung zwischen der vermutlich bereits Ende
des 10. Jahrhunderts in Mainz lebenden
(aus Lucca zugezogene) Familie Kalonymus nach.
Berühmte Vertreter der Familie waren: |
| Heyum Wolfskehl
(1776-1866),
Hof-Bankier in Darmstadt unter Großherzog Ludwig I. und Ludwig III.,
Gründer des Bankhauses Heyum Wolfskehl und Söhne |
| Joseph Carl Theodor Wolfskehl
(1814-1863), Darmstädter Bankier |
| Wilhelm Otto Wolfskehl
(1841-1907),
Jurist, Darmstädter Bankier und Stadtverordneter, langjähriger
Landtagsabgeordneter und Vizepräsident der zweiten Kammer des Hessischen
Landtags, Gründer des Bauvereins für Arbeiterwohnungen, Gründer der
Hessischen Landeshypothekenbank, Vorsitzender der jüdischen Gemeinde
Darmstadt. |
Karl Joseph Wolfskehl
(1869-1948),
Schriftsteller und Übersetzer. |
Paul Friedrich Wolfskehl (1856-1906),
Mathematiker und testamentarischer Stifter des
Wolfskehl-Preises. |
Anzeigen
jüdischer Gewerbebetriebe und Privatpersonen
Anzeige von Moses Eisenberger (1912)
Anzeige
im "Frankfurter Israelitischen Familienblatt" vom 10. Mai 1912:
"Für meine 2 Söhne (Zwillinge), 14 Jahre alt, mit guter
Schulbildung, kräftig entwickelt, suche in kaufmännischem Hause
Lehrstelle.
Moses Eisenberger, Wolfskehlen bei Darmstadt." |
Zur Geschichte der Synagoge
Eine Synagoge war in Wolfskehlen vermutlich seit Anfang des
19. Jahrhunderts vorhanden. Sie wurde auch von den in Goddelau und (bis 1877)
von den in Erfelden lebenden jüdischen Einwohnern mitbenutzt (1828 umfasste die
34 Personen in Wolfkehlen, 32 in Goddelau und 25 in Erfelden). 1907 wurde diese
ältere Synagoge erneuert beziehungsweise weitgehend neu gebaut.
Beim Novemberpogrom 1938 wurde die Synagoge von SA-Leuten geschändet. Türen und
Fenster wurden eingeschlagen, die Inneneinrichtung wurde zertrümmert, die
Torarollen verbrannt.
Das ehemalige Synagogengebäude wurde Anfang der 1950er-Jahre nach
Abschluss des Restitutionsverfahrens von der JRSO verkauft und vom neuen
Besitzer in ein Wohnhaus umgebaut. Aus dem früheren Synagogensaal wurde ein
Wohnzimmer, aus dem Frauenabteil (in einem Nebenraum zum Synagogensaal, nicht
auf einer Empore) wurde die Küche. Über dem Ankauf des früheren rituellen Bades
entstand eine Terrasse. Im ersten Stock des Gebäudes war bereits zu
Synagogenzeiten eine kleine Wohnung mit zwei Kammern und einer Küche (für den
Lehrer der Gemeinde gedacht).
Adresse/Standort der Synagoge: Sackgasse 13
Fotos
(Quelle: Altaras 1988 S. 142 und 1994 S. 119 sowie
Schleindl S. 351)
 |
 |
 |
Das Gebäude der
ehemaligen Synagoge 1945 |
Das Gebäude der
ehemaligen Synagoge 1953 |
Das Gebäude der
ehemaligen Synagoge im August 1985 |
| |
|
|
 |
 |
 |
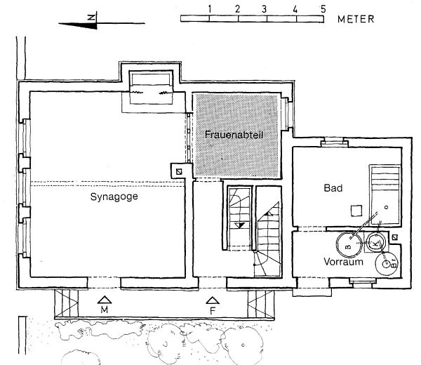
Grundriss des Dachgeschosses
mit der Lehrerwohnung
|
Grundriss des Erdgeschosses
des
Synagogengebäudes mit Betsaal der
Männer (Synagoge) und Frauenabteil
sowie dem rituellen Bad |
Grundriss des rituellen Bades
(gegenüber dem Grundriss in der Mitte
um 90 Grad gedreht!) |
| |
|
| |
|
|
| Das Gebäude
der ehemaligen Synagoge 2007 |
|
 |
 |
 |
Blick auf das
ehemalige Synagogengebäude mit dem kleinen Vorbau
des ehemaligen
Toraschreines |
Davidstern im Giebel
der
Fassade |
Erinnerungsarbeit
vor Ort - einzelne Berichte
Hinweis: Im Blick auf die Erinnerungsarbeit
in Riedstadt engagiert sich die PROJEKTGRUPPE DES FÖRDERVEREINS JÜDISCHE GESCHICHTE
UND KULTUR IM KREIS GROSS-GERAU (FJGK).
Wer sich für die Mitarbeit in der Projektgruppe interessiert, kann bei einem der Treffen vorbeikommen. Außerdem werden weiter Sponsoren gesucht, die sich finanziell an dem Projekt beteiligen möchten. Dies ist beispielsweise durch die Übernahme einer Patenschaft für einen Stolperstein möglich, wofür ein Betrag von 120 Euro zu zahlen ist.
Für weitere Auskünfte steht der Vorsitzende des Fördervereins, Walter Ullrich (Ringstraße 50, 65468
Trebur-Geinsheim, Telefon 06147- 83 61, E-Mail:
walter.ullrich@freenet.de) zur Verfügung. |
| |
| Februar 2015:
Erste Verlegung von "Stolpersteinen" in
Goddelau (und Crumstadt) |
Artikel in Echo-Online.de vom 31. Januar 2015: "Riedstadt. Stolpersteine erstmals auch in Crumstadt
RIEDSTADT - Gedenksteine – Dritte Riedstädter Verlegungsaktion mit Gunter Demnig am 4. Februar in Goddelau und Crumstadt
In Riedstadt werden in der kommenden Woche zum dritten Mal Stolpersteine zum Gedenken an die Opfer des deutschen Faschismus verlegt.
Am Mittwoch (4.) ab 10.30 Uhr wird der Kölner Künstler Gunter Demnig zum dritten Mal nach Riedstadt kommen, um für 15 ehemalige Nachbarn seine Stolpersteine zu verlegen. Die Aktion ist von einer Projektgruppe des Fördervereins Jüdische Geschichte und Kultur im Kreis Groß-Gerau (FJGK) vorbereitet worden.
Die Teilnehmer der Gedenkveranstaltung treffen sich in Goddelau, Starkenburger Straße 17, wo die Steine für die Familien Veit und Amram in den Gehsteig eingelassen werden. Issak Julius Veit kam durch seine Ehe mit Rosa Schellenberg nach Goddelau. Ihre gemeinsame Tochter Erika wurde 1911 geboren. Nach dem Tod seiner Ehefrau heiratete Veit Berta Amram. Ihr gemeinsamer Sohn Phillip (Fritz) kam 1920 zur Welt. 1934 zog auch Bertas Mutter Clothilde Amram in das Haus. Veit war Arbeiter bei Opel. Die Familie betrieb außerdem einen kleinen Kolonial- und Kurzwarenhandel.
Die Eheleute wurden am 15. September 1942 nach Theresienstadt deportiert. Julius wurde dort am 8. März 1944 ermordet. Seine Frau kam im Oktober 1944 nach Auschwitz, wo sie am 18. Oktober 1944 ermordet wurde. Auch Tochter Erika kam zunächst über Theresienstadt nach Auschwitz und wurde am gleichen Tag wie ihre Mutter umgebracht. Großmutter Clothilde Amram wurde 1942 nach Theresienstadt deportiert, wo sie am 16. März 1943 starb.
Nur Sohn Phillip gelang 1939 die Flucht nach London und über Kanada in die USA. Dort studierte er Deutsche Literatur und wurde Dozent an der Universität Boston. Seine Tochter Barbara Veit-Rosen lebt heute bei New York. Sie wird als Familienangehörige an der Stolpersteinverlegung teilnehmen.
Anschließend werden drei weitere Stolpersteine vor dem Haus Starkenburger Straße 18 eingelassen, das Max Bruchfeld 1928 erbaute. Seine Eltern betrieben in Crumstadt einen Eisenwarenladen. Max heiratete Rachel Fuchs; ihr Sohn Lutz wurde 1923 geboren. In seinem Haus wurden Eisenwaren, Fahrräder und Möbel verkauft. Der Familie Bruchfeld gelang 1938 die Flucht in die USA, wo sie einen neuen Namen annahmen.
Nur wenige Meter weiter steht das Haus der ehemaligen Familie Lazarus (Laase) Montag. In der Weidstraße 18 betrieben sie ein Kolonialwaren- und Schuhgeschäft. Nachdem Sohn Rudolf im Ersten Weltkrieg gefallen war, führte Tochter Emma mit ihrem Mann Ludwig Wreschner das Geschäft. 1910 wurde ihr Sohn Ernst Julius geboren. Die Familie verkaufte auf Druck der Gemeinde 1936 ihr Haus und zog nach Frankfurt. Deportiert am 1. September 1942, wurden Emma am 14. Februar 1943 und Ludwig am 20. März 1944 in Theresienstadt ermordet. Ihr Sohn floh 1938 über die Tschechoslowakei nach Israel. In Haifa hatte er später eine Bäckerei. 1964 war er zuletzt in Goddelau und traf Freunde und Schulkameraden.
Mit der dritten Stolpersteinaktion am 4. Februar wird auch in Crumstadt an Nazi-Opfer
erinnert (siehe weiteren Text auf der Seite
zu Crumstadt)."
Link zum Artikel: Stolpersteine erstmals auch in Crumstadt (Echo Online, 31.01.2015) " |
| |
Links und Literatur
Links:
Literatur:
 | Paul Arnsberg: Die jüdischen Gemeinden in Hessen. Anfang -
Untergang - Neubeginn. 1971. Bd. I S. 270-271. |
 | Thea Altaras: Synagogen in Hessen. Was geschah seit
1945? 1988 S. 141-142. |
 | dies.: Das jüdische Rituelle Tauchbad und: Synagogen in
Hessen. Was geschah seit 1945 Teil II. 1994. S. 119. |
 | Angelika Schleindl: Verschwundene Nachbarn.
Jüdische Gemeinden und Synagogen im Kreis Groß-Gerau. Hg. Kreisausschuss
des Kreises Groß-Gerau und Kreisvolkshochschule. Groß-Gerau 1990. |
 | Studienkreis Deutscher Widerstand (Hg.):
Heimatgeschichtlicher Wegweiser zu Stätten des Widerstandes und der
Verfolgung 1933-1945. Hessen I Regierungsbezirk Darmstadt. 1995 S. 170-172. |
 | Pinkas Hakehillot: Encyclopedia of Jewish
Communities from their foundation till after the Holocaust. Germany Volume
III: Hesse - Hesse-Nassau - Frankfurt. Hg. von Yad Vashem 1992
(hebräisch) S. 120-121 (unter Goddelau). |
 | Monica Kingreen: Jüdische Patienten im Philippshospital und die Ermordung von 29 jüdischen Pfleglingen im Februar 1941, in: Irmtrud
Sahmlan, Sabine Trosse, Christina Vanja, Hartmut Berger, Kurt
Ernst: "Haltestation Philippshospital". Ein psychiatrisches Zentrum – Kontinuität und Wandel 1535-1904-2004. Eine Festschrift zum 500. Geburtstag Philipps von Hessen. Historische Schriftenreihe des Landeswohlfahrtsverbandes Hessen. Quellen und Studien Band 10, Marburg 2004, S. 202-224. |

Article from "The Encyclopedia of Jewish life Before and During the
Holocaust".
First published in 2001 by NEW
YORK UNIVERSITY PRESS; Copyright © 2001 by Yad
Vashem Jerusalem, Israel.
Goddelau
Hesse. Excluding members in nearby Wolfskehlen, with whom they formed one
community, the Jews numbered 63 (5 % of the total) in 1861, dwindling to 19 in
1933. Those who remained left Goddelau after Kristallnacht (9-10 November
1938), when villagers helped destroy the synagogue and burn Torah scrolls. In
February 1941, 29 Jewish patients in a local psychiatric hospital fell victim to
'mercy killings.'

vorherige Synagoge zur ersten Synagoge nächste Synagoge
|